




本申请要求于2021年03月31日提交中国国家知识产权局、申请号为202110354837.6、申请名称为“一种电源转换电路和适配器”的中国专利申请的优先权,其全部内容通过引用结合在本申请中。This application claims the priority of the Chinese patent application with the application number 202110354837.6 and the application title "A Power Conversion Circuit and Adapter" filed with the State Intellectual Property Office of China on March 31, 2021, the entire contents of which are incorporated herein by reference Applying.
本申请涉及电路领域,并且更具体地,涉及一种电源转换电路和适配器。The present application relates to the field of circuits, and more particularly, to a power conversion circuit and an adapter.
据估计,2020年全世界仅智能手机的保有量就超过60亿部,加上其他移动终端设备如电脑等,最低保有量可能超过120亿部。各类移动电子设备都需要使用AC-DC电源适配器进行供电或者储能,可以简单推算出,全世界的AC-DC电源适配器数量超过120亿个。调查发现多数人的使用习惯是电源适配器长期插在电源插座上的,而按照相关标准,电源适配器的待机功耗门槛是100mW,也就是说,插在电源插座上的电源适配器未连接终端设备(即空载)时也会产生功耗。It is estimated that the number of smartphones in the world alone will exceed 6 billion in 2020, and other mobile terminal equipment such as computers, the minimum number may exceed 12 billion. All kinds of mobile electronic devices need to use AC-DC power adapters for power supply or energy storage. It can be simply calculated that the number of AC-DC power adapters in the world exceeds 12 billion. The survey found that most people's usage habits are that the power adapter is plugged into the power socket for a long time. According to relevant standards, the standby power consumption threshold of the power adapter is 100mW, that is to say, the power adapter plugged into the power socket is not connected to the terminal equipment ( i.e. no load) will also generate power consumption.
在带载模式下,AC-DC电源适配器的最大转换效率一般设计在标称输出功率的70%~90%之间,当输出功率小于标称功率的70%时,随着输出功率降低,电源的转换效率也跟着降低。因此,在输出空载或者轻载的情况下,现有电源适配器的转换电路的转换效率较低。In the load mode, the maximum conversion efficiency of the AC-DC power adapter is generally designed to be between 70% and 90% of the nominal output power. When the output power is less than 70% of the nominal power, as the output power decreases, the power The conversion efficiency also decreases. Therefore, in the case of no-load or light-load output, the conversion efficiency of the conversion circuit of the existing power adapter is low.
发明内容SUMMARY OF THE INVENTION
本申请实施例提供了一种电源转换电路和适配器,能够降低空载模式下的待机功耗和提升轻载模式下的转换效率。Embodiments of the present application provide a power conversion circuit and an adapter, which can reduce standby power consumption in no-load mode and improve conversion efficiency in light-load mode.
第一方面,本申请实施例提供了一种电源转换电路,具有电源输入端和电源输出端,所述电源转换电路包括:初级电路,包括第一整流滤波电路和第一控制芯片,所述第一整流滤波电路与所述电源输入端连接;次级电路,包括第二整流滤波电路和第二控制芯片,所述第二整流滤波电路与所述电源输出端连接,所述第二控制芯片用于根据所需工作电压对所述第二整流滤波电路中的电压进行调整并将调整后的电压通过所述电源输出端输出;变压器,包括磁芯、初级绕组和第一次级绕组,所述初级绕组在所述初级电路侧缠绕在所述磁芯上,并与所述第一整流滤波电路的输出端连接,所述第一次级绕组在所述次级电路侧缠绕在所述磁芯上,并与所述第二整流滤波电路的输入端连接;所述电源转换电路还包括第一采样电路,所述第一采样电路用于采集所述电源输出端处的输出电流,所述第一控制芯片用于根据所述第一采样电路采集的输出电流输出或停止输出PWM信号,其中:当所述电源输出端连接负载时,所述第一采样电路采样的所述输出电流不连续为零,所述第一控制芯片输出所述PWM信号给所述初级绕组;当所述电源输出端未连接负载时,所述第一采样电路采样的所述输出 电流连续为零,所述第一控制芯片停止输出PWM信号给所述初级绕组,以关断所述次级电路、所述变压器和所述第一控制芯片的用于输出所述PWM信号的电路。In a first aspect, an embodiment of the present application provides a power conversion circuit, which has a power input terminal and a power output terminal. The power conversion circuit includes: a primary circuit, including a first rectifier and filter circuit and a first control chip, the first A rectifier and filter circuit is connected to the input end of the power supply; the secondary circuit includes a second rectifier filter circuit and a second control chip, the second rectifier filter circuit is connected to the output end of the power supply, and the second control chip uses Adjust the voltage in the second rectifier filter circuit according to the required working voltage and output the adjusted voltage through the power output; the transformer includes a magnetic core, a primary winding and a first secondary winding, the The primary winding is wound on the magnetic core on the side of the primary circuit and is connected to the output end of the first rectifier and filter circuit, and the first secondary winding is wound on the magnetic core on the side of the secondary circuit and connected to the input end of the second rectification filter circuit; the power conversion circuit further includes a first sampling circuit, the first sampling circuit is used to collect the output current at the output end of the power supply, the first sampling circuit A control chip is used to output or stop outputting a PWM signal according to the output current collected by the first sampling circuit, wherein: when the power output terminal is connected to a load, the output current sampled by the first sampling circuit is discontinuous as zero, the first control chip outputs the PWM signal to the primary winding; when the power output is not connected to a load, the output current sampled by the first sampling circuit is continuously zero, and the first The control chip stops outputting the PWM signal to the primary winding, so as to turn off the secondary circuit, the transformer and the circuit of the first control chip for outputting the PWM signal.
在上述方案中,电源转换电路的电源输出端连接有负载时,第一采样电路采样的输出电流不连续为零,第一控制芯片能够根据该输出电流输出PWM信号,使电源转换电路的输出端输出适用于该负载的工作电压,而在空载模式下,电源输出端没有连接负载,第一采样电路采样的输出电流连续为零,此时,电源转换电路的第一控制芯片能够停止输出PWM信号给初级绕组,即第一控制芯片的GATE管脚关闭输出,不再输出跳变信号,使次级电路、变压器和第一控制芯片的用于输出信号的电路被关断,从而降低了空载时的功率消耗,并且在电源转换电路的电源输出端重新连接负载时,第一采样电路采样的输出电流不连续为零,第一控制芯片能够根据该输出电流恢复输出PWM信号,即在空载时被关断的电路能够自动恢复开启,保证在带载模式下能够满足正常工作要求。并且,光耦器件的作用可由电流传感器替代,因此,可去掉光耦器件,相对光耦器件,电流传感器反应灵敏,使得第一控制芯片控制精度和实时性更好。In the above solution, when the power output terminal of the power conversion circuit is connected to a load, the output current sampled by the first sampling circuit is discontinuous to zero, and the first control chip can output a PWM signal according to the output current, so that the output terminal of the power conversion circuit can output a PWM signal. The output is suitable for the working voltage of the load, and in the no-load mode, the power output is not connected to the load, and the output current sampled by the first sampling circuit is continuously zero. At this time, the first control chip of the power conversion circuit can stop outputting PWM The signal is sent to the primary winding, that is, the GATE pin of the first control chip turns off the output, and no longer outputs the jump signal, so that the secondary circuit, the transformer and the circuit used for outputting the signal of the first control chip are turned off, thereby reducing the power consumption. The power consumption during load and when the power output terminal of the power conversion circuit is reconnected to the load, the output current sampled by the first sampling circuit is discontinuous to zero, and the first control chip can resume the output PWM signal according to the output current, that is, when the output current is empty The circuit that is turned off during load can be automatically turned on to ensure that it can meet the normal working requirements under the load mode. In addition, the role of the optocoupler device can be replaced by a current sensor. Therefore, the optocoupler device can be removed. Compared with the optocoupler device, the current sensor has a more sensitive response, which makes the control accuracy and real-time performance of the first control chip better.
在一种可能的实现方式中,所述第一整流滤波电路用于对通过所述电源输入端输入的交流高压电进行整流和滤波处理后形成直流高压电并输入所述初级绕组,所述第一控制芯片输出给所述初级绕组的PWM信号用于将所述直流高压电转换为高频高压脉冲波形,并通过所述第一次级绕组将所述高频高压脉冲波形转换为高频低压脉冲波形后输出给所述第二整流滤波电路,所述第二整流滤波电路用于对所述高频低压脉冲波形进行整流和滤波处理。也就是说,通过第一整流滤波电路可对从电源输入端输入的交流高压电进行整流和滤波,获得直流高压电,接着,通过第一控制芯片输出PWM信号,可将高压直流电转换为高频高压脉冲波形,再通过变压器可将高频脉冲转换为高频低压脉冲,然后,通过第二滤波整流电路对高频低压脉冲波形进行整流和滤波等处理,并且第二控制芯片对第二整流滤波电路中的电压进行调整,即可从电源输出端输出所需工作电压。In a possible implementation manner, the first rectifying and filtering circuit is configured to rectify and filter the AC high voltage power input through the power input terminal to form a DC high voltage power and input it to the primary winding, so The PWM signal output by the first control chip to the primary winding is used to convert the DC high voltage into a high-frequency high-voltage pulse waveform, and the high-frequency high-voltage pulse waveform is converted into a high-frequency high-voltage pulse waveform through the first secondary winding. The high-frequency low-voltage pulse waveform is then output to the second rectifying and filtering circuit, and the second rectifying and filtering circuit is used for rectifying and filtering the high-frequency low-voltage pulse waveform. That is to say, the AC high-voltage power input from the power input terminal can be rectified and filtered through the first rectifier and filter circuit to obtain the DC high-voltage power. Then, the PWM signal can be output through the first control chip, and the high-voltage DC power can be converted into The high-frequency high-voltage pulse waveform can be converted into a high-frequency low-voltage pulse through a transformer, and then the high-frequency low-voltage pulse waveform is rectified and filtered through the second filter and rectifier circuit. The voltage in the rectifier and filter circuit can be adjusted, and the required working voltage can be output from the output terminal of the power supply.
在一种可能的实现方式中,所述第一采样电路包括电流传感器,所述电流传感器包括:霍尔芯片和导线,所述霍尔芯片上设置有多个磁信号感应点,所述导线的中间部分设置在所述多个磁信号感应点之间,且所述导线与所述多个磁信号感应点电气绝缘,所述电源输出端包括输出正极和输出负极,所述导线耦接于所述次级电路的正极输出端与所述输出正极之间或所述导线耦接于所述次级电路的负极输出端与所述输出负极之间,所述多个磁信号感应点用于将所述导线中的电流信号转换为磁信号,所述霍尔芯片用于将所述磁信号转换为电压信号或数字信号;通信管脚,一端与所述霍尔芯片相连且另一端用于与所述第一控制芯片相连,以向所述第一控制芯片反馈所述电压信号或所述数字信号,使所述第一控制芯片根据所述电压信号或所述数字信号获得所述输出电流。其中,“次级电路的正极输出端”是指次级电路的与电源转换电路的电源输出端中的输出正极相连的输出端,“次级电路的负极输出端”是指次级电路的与电源转换电路的电源输出端中的输出负极相连的输出端。由于电流传感器的导线与多个磁信号感应点电气绝缘,这样当用户触碰电源输出端时不会发生触电现象,使用更加安全。In a possible implementation manner, the first sampling circuit includes a current sensor, the current sensor includes: a Hall chip and a wire, the Hall chip is provided with a plurality of magnetic signal sensing points, and the wire is The middle part is arranged between the plurality of magnetic signal induction points, and the wire is electrically insulated from the plurality of magnetic signal induction points, the power output terminal includes an output positive electrode and an output negative electrode, and the wire is coupled to the Between the positive output terminal of the secondary circuit and the output positive terminal or the wire is coupled between the negative output terminal of the secondary circuit and the output negative terminal, the plurality of magnetic signal induction points are used to connect the The current signal in the wire is converted into a magnetic signal, and the Hall chip is used to convert the magnetic signal into a voltage signal or a digital signal; one end of the communication pin is connected to the Hall chip and the other end is used to communicate with the Hall chip. The first control chip is connected to feed back the voltage signal or the digital signal to the first control chip, so that the first control chip obtains the output current according to the voltage signal or the digital signal. Among them, the "positive output terminal of the secondary circuit" refers to the output terminal of the secondary circuit that is connected to the output positive terminal of the power output terminal of the power conversion circuit, and the "negative output terminal of the secondary circuit" refers to the output terminal of the secondary circuit and the output terminal of the power conversion circuit. The output terminal of the power output terminal of the power conversion circuit is connected to the output negative pole. Since the wires of the current sensor are electrically insulated from the plurality of magnetic signal sensing points, there is no electric shock when the user touches the output end of the power supply, and the use is safer.
在一种可能的实现方式中,所述初级电路还包括第一供电电路,所述第一供电电路用于在所述第一控制芯片未输出所述PWM信号时给所述第一控制芯片供电。由于第一控制芯片输出PWM信号时,才能依靠变压器的第二次级绕组进行供电,为了保证第一控制芯片未输出PWM信号时能够正常工作,初级电路还包括第一供电电路,以在第一控制芯片未输出PWM信号时给第一控制芯片供电。In a possible implementation manner, the primary circuit further includes a first power supply circuit, and the first power supply circuit is configured to supply power to the first control chip when the first control chip does not output the PWM signal . Since the first control chip can only rely on the second secondary winding of the transformer for power supply when it outputs the PWM signal, in order to ensure that the first control chip can work normally when the PWM signal is not output, the primary circuit also includes a first power supply circuit to provide power when the first control chip does not output the PWM signal. When the control chip does not output the PWM signal, power is supplied to the first control chip.
在一种可能的实现方式中,所述电源输入端包括为输入正极和输入负极,所述第一供电电路包括:第一二极管,耦接于所述输入正极和第一节点之间;第二二极管,耦接于所述输入负极和所述第一节点之间;第一电阻,耦接于所述第一节点和所述第一控制芯片之间。In a possible implementation manner, the power input terminal includes an input anode and an input cathode, and the first power supply circuit includes: a first diode coupled between the input anode and the first node; A second diode is coupled between the input cathode and the first node; a first resistor is coupled between the first node and the first control chip.
在一种可能的实现方式中,所述变压器还包括第二次级绕组,所述初级电路还包括第二供电电路,所述第二次级绕组在所述初级电路侧缠绕在所述磁芯上并与所述初级绕组间隔设置,所述第二次级绕组用于将所述高频高压脉冲波形转换为高频低压脉冲波形,所述第二供电电路用于在所述第一控制芯片输出所述PWM信号时将所述第二次级绕组中的高频低压脉冲波形转换为输出电压,所述输出电压为适于给所述第一控制芯片供电的直流电压。这样第一控制芯片输出PWM信号时,能够依靠变压器的第二次级绕组进行供电,相对于采用第一供电电路供电,此时电路的损耗较小。In a possible implementation manner, the transformer further includes a second secondary winding, the primary circuit further includes a second power supply circuit, and the second secondary winding is wound around the magnetic core on the primary circuit side on top of and spaced apart from the primary winding, the second secondary winding is used to convert the high-frequency high-voltage pulse waveform into a high-frequency low-voltage pulse waveform, and the second power supply circuit is used for the first control chip. When outputting the PWM signal, the high-frequency low-voltage pulse waveform in the second secondary winding is converted into an output voltage, and the output voltage is a DC voltage suitable for supplying power to the first control chip. In this way, when the first control chip outputs the PWM signal, it can rely on the second secondary winding of the transformer to supply power. Compared with using the first power supply circuit to supply power, the loss of the circuit is smaller at this time.
在一种可能的实现方式中,所述第二供电电路包括:第三整流滤波电路,所述第三整流滤波电路用于将所述第二次级绕组中的高频低压脉冲波形转换为直流电压;分压滤波电路,用于对所述直流电压进行滤波和分压处理,以产生所述输出电压。也就是说,第一控制芯片输出PWM信号时不能直接利用第二次级绕组中的高频低压脉冲波形进行供电,该高频低压脉冲波形需要先经过滤波整流电路转换为直流电压,再通过分压滤波电路才能产生适于给所述第一控制芯片供电的输出电压。In a possible implementation manner, the second power supply circuit includes: a third rectifier and filter circuit, and the third rectifier and filter circuit is used to convert the high-frequency low-voltage pulse waveform in the second secondary winding into DC voltage; a voltage dividing filter circuit for filtering and dividing the DC voltage to generate the output voltage. That is to say, when the first control chip outputs the PWM signal, it cannot directly use the high-frequency low-voltage pulse waveform in the second secondary winding for power supply. Only the voltage filter circuit can generate an output voltage suitable for supplying power to the first control chip.
在一种可能的实现方式中,所述第三整流滤波电路包括:第一电容,所述第一电容的一端接地;第三二极管,所述第三二极管的阴极与所述第一电容的另一端连接,所述第三二极管的阳极与所述第二次级绕组的一端连接,所述第二次级绕组的另一端接地。In a possible implementation manner, the third rectifying filter circuit includes: a first capacitor, one end of which is grounded; a third diode, a cathode of the third diode is connected to the first capacitor The other end of a capacitor is connected, the anode of the third diode is connected to one end of the second secondary winding, and the other end of the second secondary winding is grounded.
在一种可能的实现方式中,所述分压滤波电路包括:第二电阻,所述第二电阻耦接于所述第二次级绕组的一端与第二节点之间;第三电阻,所述第三电阻的一端接地,另一端与所述第二节点连接;第二电容,所述第二电容的一端接地,另一端依次连接所述第二节点和所述第一控制芯片。In a possible implementation manner, the voltage dividing filter circuit includes: a second resistor, the second resistor is coupled between one end of the second secondary winding and the second node; a third resistor, the One end of the third resistor is grounded, and the other end is connected to the second node; for the second capacitor, one end of the second capacitor is grounded, and the other end is connected to the second node and the first control chip in sequence.
在一种可能的实现方式中,所述电源转换电路还包括第二采样电路,用于采样所述第一整流滤波电路输出的电流和电压,以获得初级输入功率,所述第一控制芯片根据所述输出电流与所述初级输入功率的比值,调整所述PWM波形的频率。也就是说,在电源转换电路的输出通道上串接了电流传感器,通过电流传感器可获得次级输出电流,通过第二采样电路采样第一整流滤波电路输出的电流和电压可获得初级输入功率,根据实时获得的次级输出电流和初级输入功率的比值与设定阈值的大小关系,通过电流传感器检测到的实时输出电流值可动态调整PWM波形的频率。在保证电源转换电路的输出通道的输出电压满足工作要求的前提下,通过降低PWM波形的频率,可降低电源转换电路中的开关管(如与第一控制芯片的GATE管脚连接的MOSFET)和二 极管的动态损耗、变压器的磁芯损耗,从而提升轻载状态时的转换效率。并且,可以去掉PSM电路和EMI电路,能够简化电路结构。In a possible implementation manner, the power conversion circuit further includes a second sampling circuit, configured to sample the current and voltage output by the first rectification and filtering circuit to obtain the primary input power, and the first control chip according to The ratio of the output current to the primary input power adjusts the frequency of the PWM waveform. That is to say, a current sensor is connected in series on the output channel of the power conversion circuit, the secondary output current can be obtained through the current sensor, and the primary input power can be obtained by sampling the current and voltage output by the first rectification filter circuit through the second sampling circuit, According to the relationship between the ratio of the secondary output current and the primary input power obtained in real time and the set threshold value, the real-time output current value detected by the current sensor can dynamically adjust the frequency of the PWM waveform. On the premise of ensuring that the output voltage of the output channel of the power conversion circuit meets the working requirements, by reducing the frequency of the PWM waveform, the switching transistors (such as the MOSFET connected to the GATE pin of the first control chip) and the power conversion circuit can be reduced. The dynamic loss of the diode and the core loss of the transformer can improve the conversion efficiency at light load conditions. In addition, the PSM circuit and the EMI circuit can be eliminated, and the circuit structure can be simplified.
在一种可能的实现方式中,所述第一控制芯片配置为:获取所述输出电流与所述初级输入功率的第一比值,在确定所述第一比值小于设定阈值时,将所述PWM波形的频率向下调整第一设定值,再次获取所述输出电流与所述初级输入功率的第二比值;在确定所述第二比值大于所述第一比值时,将所述PWM波形的频率继续向下调整所述第一设定值;在确定所述第二比值小于所述第一比值时,将所述PWM波形的频率向上回调第二设定值,所述第二设定值小于所述第一设定值;经过调整,使得所述输出电流与所述初级输入功率的比值最大。也就是说,在确定电源转换电路的输出功率较小时,可获取输出电流与初级输入功率的比值(第一比值),然后,将PWM波形的频率调小第一设定值一次,获取调整频率后的输出电流与初级输入功率的比值(第二比值),若第二比值大于第一比值,说明可以继续调小频率,若第二比值小于第一比值,说明调整过大,即最大比值位于第一比值和第二比值之间,此时,可回调第二设定值(小于第一设定值),经过调整,即可确定最大比值时PWM波形的频率。In a possible implementation manner, the first control chip is configured to: acquire a first ratio of the output current to the primary input power, and when it is determined that the first ratio is less than a set threshold, set the The frequency of the PWM waveform is adjusted downward by the first set value, and the second ratio of the output current to the primary input power is obtained again; when it is determined that the second ratio is greater than the first ratio, the PWM waveform is The frequency of the PWM waveform continues to adjust the first set value downward; when it is determined that the second ratio is smaller than the first ratio, the frequency of the PWM waveform is adjusted upward to the second set value, and the second set value is The value is smaller than the first set value; after adjustment, the ratio of the output current to the primary input power is maximized. That is to say, when it is determined that the output power of the power conversion circuit is small, the ratio of the output current to the primary input power (the first ratio) can be obtained, and then the frequency of the PWM waveform is reduced by the first set value once to obtain the adjusted frequency The ratio of the output current to the primary input power (the second ratio), if the second ratio is greater than the first ratio, it means that the frequency can continue to be reduced; if the second ratio is less than the first ratio, it means that the adjustment is too large, that is, the maximum ratio is at Between the first ratio and the second ratio, at this time, the second set value (less than the first set value) can be recalled, and after adjustment, the frequency of the PWM waveform at the maximum ratio can be determined.
在一种可能的实现方式中,所述第二设定值为所述第一设定值/Nm,N为正整数,且N≥2,m为连续进行回调的次数,m为正整数,且m≥1。也就是说,如果出现连续回调的情况,则每次回调值为上次回调值的N分之一。举例而言,假设N=2,第一设定值为Δf,第二设定值为Δf/Nm=Δf/2m,当输出功率低于标称值的90%时,获取次级输出电流和初级输入功率比值,将PWM波形频率向下调整Δf,再获取次级输出电流和初级输入功率比值,如果当前比值大于上次比值,继续向下调整Δf,如果当前比值小于上次比值,则向上回调Δf/2;再获取次级输出电流和初级输入功率比值,如果当前比值仍小于上次比值,则向上回调Δf/4;如果当前比值大于上次比值,则向下回调Δf/4;经过逐步调整,使得次级输出电流和初级输入功率比值最大。In a possible implementation manner, the second set value is the first set value/Nm , N is a positive integer, and N≥2, m is the number of consecutive callbacks, and m is a positive integer , and m≥1. That is to say, if there are consecutive callbacks, the value of each callback will be one-Nth of the previous callback value. For example, assuming N=2, the first setting value is Δf, the second setting value is Δf/Nm =Δf/2m , when the output power is lower than 90% of the nominal value, the secondary output is obtained The ratio of current to primary input power, adjust the PWM waveform frequency downward by Δf, and then obtain the ratio of secondary output current and primary input power. If the current ratio is greater than the previous ratio, continue to adjust Δf downward. If the current ratio is smaller than the previous ratio, Then adjust upward by Δf/2; then obtain the ratio of secondary output current and primary input power, if the current ratio is still smaller than the previous ratio, then adjust upward by Δf/4; if the current ratio is greater than the previous ratio, then adjust downward by Δf/4 ; After gradual adjustment, the ratio of secondary output current to primary input power is maximized.
在一种可能的实现方式中,所述第一整流滤波电路包括:第一滤波电路,用于将通过所述电源输入端输入的交流高压电中的噪声滤除;第一整流电路,用于将滤除噪声后的交流高压电转换为直流高压电;第二滤波电路,用于将所述直流高压电中的噪声滤除并将滤除噪声后的所述直流高压电输出给所述初级绕组;所述第二采样电路包括采样电阻,所述采样电阻串联在所述第一整流电路的正极输出端与所述第二滤波电路的正极输出端之间,所述第一控制芯片与所述采样电阻的两端连接,以采集所述采样电阻两端处的电压,并根据所述采样电阻两端处的电压差和所述采样电阻的电阻获得所述初级输入功率。也就是说,在初级电路中串接了采样电阻,通过采样电阻可获得初级输入功率,假定采样电阻的阻值是r,采样电阻的第一侧与第一整流电路的正极输出端连接,采样电阻的第一侧的电压为U1、采样电阻的第二侧与第二滤波电路的正极输出端连接,采样电阻的第二侧的电压为U2,初级输入功率Pin=U1(U1-U2)/r,U1大于U2。In a possible implementation manner, the first rectifying and filtering circuit includes: a first filtering circuit for filtering out noise in the AC high-voltage power input through the power input terminal; a first rectifying circuit for filtering The second filter circuit is used to filter the noise in the DC high voltage and filter the noise from the DC high voltage. output to the primary winding; the second sampling circuit includes a sampling resistor, the sampling resistor is connected in series between the positive output terminal of the first rectifier circuit and the positive output terminal of the second filter circuit, the first A control chip is connected to both ends of the sampling resistor to collect the voltage at both ends of the sampling resistor, and obtain the primary input power according to the voltage difference between the two ends of the sampling resistor and the resistance of the sampling resistor . That is to say, a sampling resistor is connected in series in the primary circuit, and the primary input power can be obtained through the sampling resistor. Assuming that the resistance of the sampling resistor is r, the first side of the sampling resistor is connected to the positive output terminal of the first rectifier circuit, and the sampling The voltage of the first side of the resistor is U1, the second side of the sampling resistor is connected to the positive output terminal of the second filter circuit, the voltage of the second side of the sampling resistor is U2, and the primary input power Pin=U1(U1-U2)/ r, U1 is greater than U2.
在一种可能的实现方式中,所述第二滤波电路包括:第三电容,所述第三电容的负极接地,所述第三电容的正极与所述第一整流电路的正极输出端连接,所述第一整流电路的负极输出端接地;第四电容,所述第四电容的负极与所述初级绕组的一端连接,所述第四电容的正极与所述初级绕组的另一端连接;所述采样电阻耦接于所述第 三电容的正极与所述第四电容的正极之间。In a possible implementation manner, the second filter circuit includes: a third capacitor, the negative electrode of the third capacitor is grounded, and the positive electrode of the third capacitor is connected to the positive output end of the first rectifier circuit, The negative output end of the first rectifier circuit is grounded; the fourth capacitor, the negative electrode of the fourth capacitor is connected to one end of the primary winding, and the positive electrode of the fourth capacitor is connected to the other end of the primary winding; The sampling resistor is coupled between the positive electrode of the third capacitor and the positive electrode of the fourth capacitor.
在一种可能的实现方式中,所述第二整流滤波电路包括:第二整流电路,与所述第一次级绕组连接,用于将所述第一次级绕组中的高频低压脉冲波形转为直流电压;第三滤波电路,用于对所述直流电压进行滤波处理并通过所述电源输出端输出。In a possible implementation manner, the second rectifying and filtering circuit includes: a second rectifying circuit, connected to the first secondary winding, for converting the high-frequency low-voltage pulse waveform in the first secondary winding Converted to a direct current voltage; a third filter circuit is used to filter the direct current voltage and output it through the power supply output terminal.
第二方面,本申请实施例提供了一种适配器,所述适配器包括上述第一方面提供的电源转换电路。In a second aspect, an embodiment of the present application provides an adapter, where the adapter includes the power conversion circuit provided in the first aspect.
本申请实施例的电源转换电路和适配器,能够降低空载模式下的待机功耗和提升轻载模式下的转换效率。具体地,空载模式下,能够关断次级电路、变压器和部分初级电路(如第一控制芯片的用于输出PWM信号的电路),从而降低了空载时的功率消耗,并且重新连接用电设备(负载)时,能够自动恢复开启相关电路,保证在带载模式下能够满足正常工作要求;在轻负载下,能够调整PWM波形的频率,拓宽了电源高效率充电的负载范围,使轻负载时也可保持较高的转换效率,实现降低了系统的整体功耗,能够为节能减排做贡献。The power conversion circuit and the adapter of the embodiments of the present application can reduce the standby power consumption in the no-load mode and improve the conversion efficiency in the light-load mode. Specifically, in the no-load mode, the secondary circuit, the transformer and part of the primary circuit (such as the circuit of the first control chip for outputting the PWM signal) can be turned off, thereby reducing the power consumption at no-load, and reconnecting the When the electrical equipment (load) is turned on, it can automatically restore the opening of the relevant circuits to ensure that the normal working requirements can be met under the load mode; under the light load, the frequency of the PWM waveform can be adjusted, which broadens the load range of the high-efficiency charging of the power supply. It can also maintain a high conversion efficiency under load, which reduces the overall power consumption of the system and contributes to energy conservation and emission reduction.
图1是本申请实施例提供的一种适配器的应用场景示意图;FIG. 1 is a schematic diagram of an application scenario of an adapter provided by an embodiment of the present application;
图2是图1中的适配器的电源转换电路的结构示意图;2 is a schematic structural diagram of a power conversion circuit of the adapter in FIG. 1;
图3是本申请第一实施例提供的电源转换电路的结构示意图;3 is a schematic structural diagram of a power conversion circuit provided by the first embodiment of the present application;
图4是图3的电源转换电路中的电流传感器的结构示意图;4 is a schematic structural diagram of a current sensor in the power conversion circuit of FIG. 3;
图5是本申请第二实施例提供的电源转换电路的结构示意图。FIG. 5 is a schematic structural diagram of a power conversion circuit provided by a second embodiment of the present application.
下面将结合附图,对本发明实施例中的技术方案进行描述。显然,所描述的实施例仅是本说明书一部分实施例,而不是全部的实施例。The technical solutions in the embodiments of the present invention will be described below with reference to the accompanying drawings. Obviously, the described embodiments are only some of the embodiments of the present specification, but not all of the embodiments.
在本说明书的描述中“一个实施例”或“一些实施例”等意味着在本说明书的一个或多个实施例中包括结合该实施例描述的特定特征、结构或特点。由此,在本说明书中的不同之处出现的语句“在一个实施例中”、“在一些实施例中”、“在其他一些实施例中”、“在另外一些实施例中”等不是必然都参考相同的实施例,而是意味着“一个或多个但不是所有的实施例”,除非是以其他方式另外特别强调。In the description of this specification, "one embodiment" or "some embodiments" etc. means that a particular feature, structure or characteristic described in connection with the embodiment is included in one or more embodiments of this specification. Thus, appearances of the phrases "in one embodiment," "in some embodiments," "in other embodiments," "in other embodiments," etc. in various places in this specification are not necessarily All refer to the same embodiment, but mean "one or more but not all embodiments" unless specifically emphasized otherwise.
其中,在本说明书的描述中,除非另有说明,“/”表示或的意思,例如,A/B可以表示A或B;本文中的“和/或”仅仅是一种描述关联对象的关联关系,表示可以存在三种关系,例如,A和/或B,可以表示:单独存在A,同时存在A和B,单独存在B这三种情况。另外,在本申请实施例的描述中,“多个”是指两个或多于两个。Wherein, in the description of this specification, unless otherwise stated, "/" means or means, for example, A/B can mean A or B; "and/or" in this document is only an association to describe the associated object Relation, it means that there can be three kinds of relations, for example, A and/or B can mean that A exists alone, A and B exist at the same time, and B exists alone. In addition, in the description of the embodiments of the present application, "plurality" refers to two or more than two.
在本说明书的描述中,术语“第一”、“第二”仅用于描述目的,而不能理解为指示或暗示相对重要性或者隐含指明所指示的技术特征的数量。由此,限定有“第一”、“第二”的特征可以明示或者隐含地包括一个或者更多个该特征。术语“包括”、“包含”、“具有”及它们的变形都意味着“包括但不限于”,除非是以其他方式另外特别强调。In the description of this specification, the terms "first" and "second" are only used for descriptive purposes, and cannot be understood as indicating or implying relative importance or implying the number of indicated technical features. Thus, a feature defined as "first" or "second" may expressly or implicitly include one or more of that feature. The terms "including", "including", "having" and their variants mean "including but not limited to" unless specifically emphasized otherwise.
可以理解的是,在本申请的实施例中涉及的各种数字编号仅为描述方便进行的区 分,并不用来限制本申请的实施例的范围。It can be understood that, various numbers and numbers involved in the embodiments of the present application are only for the convenience of description, and are not used to limit the scope of the embodiments of the present application.
图1是本申请实施例提供的一种适配器的应用场景示意图。如图1所示,该应用场景包括外部电源11、适配器12以及待充电设备13。其中,外部电源11可为交流市电,待充电设备13可包括手机、笔记本电脑、电池等,本申请实施例对此并不限定。通常情况下,适配器12可以与外部电源11连接,适配器12包括电源转换电路,电源转换电路用于将外部电源11提供的较高电压转换为符合待充电设备13充电或供电标准的较低电压,并为待充电设备13进行充电或供电。FIG. 1 is a schematic diagram of an application scenario of an adapter provided by an embodiment of the present application. As shown in FIG. 1 , the application scenario includes an
带载模式下,AC-DC电源适配器的最大转换效率一般设计在标称输出功率的70%~90%之间,当输出功率小于标称功率的70%时,随着输出功率降低,电源的转换效率也跟着降低;设备在空闲时或者休眠时,AC-DC电源转换电路的负载非常轻,通常在电源标称输出功率的10%以下,使得AC-DC电源转换电路本身成为系统整体的降功耗瓶颈。在当前AC-DC电源转换电路带载模式下的转换效率设计已经非常成熟,因此,提升AC-DC电源转换电路空载和轻负载下的转换效率,是节能减排的重点发展方向。Under the load mode, the maximum conversion efficiency of the AC-DC power adapter is generally designed to be between 70% and 90% of the nominal output power. When the output power is less than 70% of the nominal power, as the output power decreases, the power The conversion efficiency also decreases; when the device is idle or dormant, the load of the AC-DC power conversion circuit is very light, usually below 10% of the nominal output power of the power supply, making the AC-DC power conversion circuit itself a reduction in the overall system. power consumption bottleneck. The conversion efficiency design of the current AC-DC power conversion circuit under load mode is very mature. Therefore, improving the conversion efficiency of the AC-DC power conversion circuit under no-load and light load is the key development direction of energy conservation and emission reduction.
图2是图1中的适配器的电源转换电路的结构示意图。如图2所示,电源转换电路20通常包括初级电路21、次级电路22以及变压器23。次级电路21与变压器23的初级绕组连接,次级电路22与变压器23的次级绕组连接。其中,初级电路可包括PWM控制芯片,次级电路可包括协议控制芯片,PWM控制芯片和协议控制芯片之间连接有光耦器件(图中未示出)。光耦器件可包括发射部分和接收部分,发射部分与协议控制芯片连接,接收部分与PWM控制芯片连接。FIG. 2 is a schematic structural diagram of a power conversion circuit of the adapter in FIG. 1 . As shown in FIG. 2 , the
其中,在空载模式下(即次级电路的输出端未连接负载),与带载模式相同,是通过光耦器件大致反馈输出电流的大小,PWM控制芯片根据该输出电流调整PWM脉冲波形,保证电源转换电路的输出功率能够满足工作要求且转换效率相对较高。具体地,当输出电流变大时,发射部分输出的光变弱,接收部分将光信号转换为电信号的值对应变小,PWM控制芯片根据变弱的信号,提高输出的PWM信号占空比;当输出电流变小时,发射部分输出的光变强,接收部分将光信号转换为电信号的值对应变大,PWM控制芯片根据变大的信号,降低输出的PWM信号占空比。Among them, in the no-load mode (that is, the output terminal of the secondary circuit is not connected to the load), the same as the load mode, the size of the output current is roughly fed back through the optocoupler device, and the PWM control chip adjusts the PWM pulse waveform according to the output current. It is ensured that the output power of the power conversion circuit can meet the working requirements and the conversion efficiency is relatively high. Specifically, when the output current becomes larger, the light output by the transmitting part becomes weaker, and the value of the optical signal converted into an electrical signal by the receiving part becomes correspondingly smaller. The PWM control chip increases the duty cycle of the output PWM signal according to the weakened signal. ; When the output current becomes smaller, the light output by the transmitting part becomes stronger, and the value of the receiving part converting the optical signal into an electrical signal becomes correspondingly larger, and the PWM control chip reduces the duty cycle of the output PWM signal according to the larger signal.
上述电源转换电路在空载模式下无法实现次级电路的关闭及唤醒功能,即空载模式时次级电路仍旧处于连通状态,导致电路存在较高的基底功耗。具体地,根据相关功耗要求,例如50W以下的电源适配器,空载功耗可为100mW;50W到250W的电源适配器,空载功耗可为210mW。若能优化电源适配器的电路设计,以便降低电源适配器的待机功耗,全世界的节能减排收益是非常可观的。The above-mentioned power conversion circuit cannot realize the shutdown and wake-up functions of the secondary circuit in the no-load mode, that is, the secondary circuit is still in the connected state in the no-load mode, resulting in high base power consumption of the circuit. Specifically, according to the relevant power consumption requirements, for example, for a power adapter below 50W, the no-load power consumption can be 100mW; for a power adapter from 50W to 250W, the no-load power consumption can be 210mW. If the circuit design of the power adapter can be optimized in order to reduce the standby power consumption of the power adapter, the benefits of energy saving and emission reduction in the world are very considerable.
另外,上述电源转换电路在轻载模式下是通过使用脉冲跳频模式(又称脉冲阶梯调制,pulse step modulation,PSM)提高轻负载的效率;在带载模式(如电源转换电路的输出端连接负载且电源转换电路的输出端的输出功率位于标称功率的设定范围70%~90%内)时,AC/DC电源转环电路的工作在脉冲宽度调制(Pulse Width Modulation,PWM)模式,在轻负载时,AC/DC电源转环电路的工作模式由PWM模式转换为PSM模式,这样可将双管工作切换为单管工作,从而提升轻负载下的转换效率。但PSM模式会产生超宽频噪声,导致电磁干扰(Electro Magnetic Interference,EMI)滤波难度 增加,为满足EMI标准要求,需增加EMI电路。In addition, the above-mentioned power conversion circuit improves the efficiency of light load by using the pulse frequency hopping mode (also known as pulse step modulation, PSM) in the light load mode; When the load and the output power of the output end of the power conversion circuit are within the setting range of 70% to 90% of the nominal power), the AC/DC power swivel circuit works in the pulse width modulation (Pulse Width Modulation, PWM) mode. At light load, the working mode of the AC/DC power swivel circuit is converted from PWM mode to PSM mode, which can switch the dual-tube operation to single-tube operation, thereby improving the conversion efficiency under light load. However, the PSM mode will generate ultra-wide-band noise, which increases the difficulty of electromagnetic interference (Electro Magnetic Interference, EMI) filtering. In order to meet the requirements of the EMI standard, an EMI circuit needs to be added.
也就是说,上述方案在输出空载或者轻载的情况下,AC-DC转换电路的转换效率较低。That is to say, in the case of no-load or light-load output of the above solution, the conversion efficiency of the AC-DC conversion circuit is low.
鉴于此,本申请实施例提供一种电源转换电路和包括该电源转换电路的适配器,能够降低空载模式下的待机功耗和提升轻载模式下的转换效率。具体地,空载模式下,能够关断次级电路、变压器和部分初级电路(如第一控制芯片的用于输出PWM信号的电路),从而降低了空载时的功率消耗,并且重新连接用电设备时,能够自动恢复开启相关电路,保证在带载模式下能够满足正常工作要求;在轻负载下,能够调整PWM波形的频率,拓宽了电源高效率充电的负载范围,使轻负载时也可保持较高的转换效率,实现降低了系统的整体功耗,能够为节能减排做贡献。例如,仅将手机电源适配器的待机功耗降低到20mW以下,保守估计全世界一年能够减少8亿度电能消耗。由于大功率的电源适配器空载功耗更高,该技术方案也能够应用到大功率的电源适配器上,带来的收益更为可观。In view of this, embodiments of the present application provide a power conversion circuit and an adapter including the power conversion circuit, which can reduce standby power consumption in no-load mode and improve conversion efficiency in light-load mode. Specifically, in the no-load mode, the secondary circuit, the transformer and part of the primary circuit (such as the circuit of the first control chip for outputting the PWM signal) can be turned off, thereby reducing the power consumption at no-load, and reconnecting the When the power supply is turned on, the related circuits can be automatically restored to ensure that the normal working requirements can be met under the load mode; under the light load, the frequency of the PWM waveform can be adjusted, which broadens the load range of the high-efficiency charging of the power supply. It can maintain a high conversion efficiency, reduce the overall power consumption of the system, and contribute to energy conservation and emission reduction. For example, only reducing the standby power consumption of the mobile phone power adapter to less than 20mW, it is conservatively estimated that the world can reduce the power consumption of 800 million kilowatt-hours a year. Since the no-load power consumption of the high-power power adapter is higher, the technical solution can also be applied to the high-power power adapter, which brings more considerable benefits.
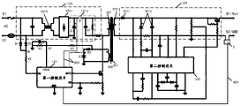
图3是本申请第一实施例提供的电源转换电路的具体结构示意图。如图3所示,电源转换电路具有电源输入端和电源输出端。电源输入端包括输入正极P1和输入负极P2,电源输出端包括输出正极Q1/VOUT和输出负极Q2/GND。电源转换电路包括初级电路100、次级电路200和变压器300。初级电路100包括第一整流滤波电路101和第一控制芯片102,第一整流滤波电路101与电源输入端即输入正极P1和输入负极P2连接。次级电路200包括第二整流滤波电路201和第二控制芯片202,第二整流滤波电路201与电源输出端即输出正极Q1和输出负极Q2连接,第二控制芯片202用于根据所需工作电压对第二整流滤波电路201中的电压进行调整并将调整后的电压通过电源输出端即输出正极Q1和输出负极Q2输出。变压器300包括磁芯301、初级绕组302和第一次级绕组303,初级绕组302在初级电路100侧缠绕在磁芯301上,并与第一整流滤波电路101的输出端连接,第一次级绕组303在次级电路200侧缠绕在磁芯301上,并与第二整流滤波电路201的输入端连接。FIG. 3 is a schematic diagram of a specific structure of the power conversion circuit provided by the first embodiment of the present application. As shown in FIG. 3 , the power conversion circuit has a power input terminal and a power output terminal. The power input terminal includes an input positive pole P1 and an input negative pole P2, and the power output terminal includes an output positive pole Q1/VOUT and an output negative pole Q2/GND. The power conversion circuit includes a
其中,第一整流滤波电路101用于对通过电源输入端即输入正极P1和输入负极P2输入的交流高压电进行整流和滤波处理后形成直流高压电并输入初级绕组302,第一控制芯片102输出给初级绕组302的PWM信号用于将直流高压电转换为高频高压脉冲波形,并通过第一次级绕组303将高频高压脉冲波形转换为高频低压脉冲波形后输出给第二整流滤波电路201,第二整流滤波电路201用于对高频低压脉冲波形进行整流和滤波处理。The first rectifying and
进一步地,第一整流滤波电路101可包括第一滤波电路1011、第一整流电路1012和第二滤波电路1013。第一滤波电路1011用于将通过电源输入端即输入正极P1和输入负极P2输入的交流高压电中的噪声滤除。第一整流电路1012用于将滤除噪声后的交流高压电转换为直流高压电。第二滤波电路1013用于将直流高压电中的噪声滤除并将滤除噪声后的直流高压电输出给初级绕组302。并且,第二滤波电路1013可包括第三电容C3和第四电容C4。第三电容C3的负极接地,第三电容C3的正极与第一整流电路1012的正极输出端连接,第一整流电路1012的负极输出端接地。第四电容C4的负极与初级绕组302的一端连接,第四电容C4的正极与初级绕组302的另一端连 接。也就是说,交流市电AC进入适配器的电源转换电路后,经过第一滤波电路1011、全桥整流电路1012和第二滤波电路1013到达变压器300。其中,滤波电路用于滤除噪声,全桥整流电路用于将交流高压电转换为直流高压电。第一控制芯片102如PWM控制芯片可将高压直流电转换过高频脉冲波形,然后由变压器300转换为低压脉冲波形,再配合后级整流电路201及第二控制芯片202如协议控制芯片,实现低压直流电的输出。Further, the first rectifying and
并且,第二整流滤波电路201可包括第二整流电路2011和第三滤波电路2012。第二整流电路2011与第一次级绕组303连接,用于将第一次级绕组303中的高频低压脉冲波形转为直流电压。第三滤波电路2012用于对直流电压进行滤波处理并通过电源输出端Q1、Q2输出。Also, the second rectifying and
如图3所示,初级电路100还包括第一供电电路,第一供电电路用于在第一控制芯片102未输出PWM信号时给第一控制芯片102供电。具体地,第一供电电路包括第一二极管D1、第二二极管D2和第一电阻R1。第一二极管D1耦接于输入正极P1和第一节点N1之间。第二二极管D2耦接于输入负极P2和第一节点N1之间。第一电阻R1耦接于第一节点N1和第一控制芯片102之间。As shown in FIG. 3 , the
另外,变压器300还包括第二次级绕组304,初级电路100还包括第二供电电路,第二次级绕组304在初级电路100侧缠绕在磁芯301上并与初级绕组302间隔设置,第二次级绕组304用于将高频高压脉冲波形转换为高频低压脉冲波形,第二供电电路用于在第一控制芯片102输出PWM信号时将第二次级绕组304中的高频低压脉冲波形转换为输出电压,输出电压为适于给第一控制芯片102供电的直流电压。也就是说,第一控制芯片102未输出PWM信号时,第一控制芯片102由第一供电电路供电;第一控制芯片102输出PWM信号时,第一控制芯片102由第二供电电路即变压器300的第二次级绕组304供电。In addition, the
具体地,第二供电电路可包括第三整流滤波电路和分压滤波电路。第三整流滤波电路用于将第二次级绕组304中的高频低压脉冲波形转换为直流电压。分压滤波电路用于对直流电压进行滤波和分压处理,以产生输出电压。其中,第三整流滤波电路包括第一电容C1和第三二极管D3。第一电容C1的一端接地。第三二极管D3的阴极与第一电容C1的另一端连接,第三二极管D3的阳极与第二次级绕组304的一端连接,第二次级绕组304的另一端接地。分压滤波电路包括第二电阻R2、第三电阻R3和第二电容C2。第二电阻R2耦接于第二次级绕组304的一端与第二节点N2之间。第三电阻R3的一端接地,另一端与第二节点N2连接。第二电容C2的一端接地,另一端依次连接第二节点N2和第一控制芯片102。Specifically, the second power supply circuit may include a third rectification filter circuit and a voltage divider filter circuit. The third rectifying filter circuit is used to convert the high frequency low voltage pulse waveform in the second secondary winding 304 into a DC voltage. The voltage divider filter circuit is used to filter and divide the DC voltage to generate the output voltage. Wherein, the third rectifying filter circuit includes a first capacitor C1 and a third diode D3. One end of the first capacitor C1 is grounded. The cathode of the third diode D3 is connected to the other end of the first capacitor C1, the anode of the third diode D3 is connected to one end of the second secondary winding 304, and the other end of the second secondary winding 304 is grounded. The voltage dividing filter circuit includes a second resistor R2, a third resistor R3 and a second capacitor C2. The second resistor R2 is coupled between one end of the second secondary winding 304 and the second node N2. One end of the third resistor R3 is grounded, and the other end is connected to the second node N2. One end of the second capacitor C2 is grounded, and the other end is connected to the second node N2 and the
继续参考图3,电源转换电路还包括第一采样电路400,第一采样电路400用于采集电源输出端即输出正极Q1或输出负极Q2处的输出电流,第一控制芯片102用于根据第一采样电路400采集的输出电流输出或停止输出PWM信号,其中,第一采样电路400可包括电流传感器S,PWM信号通过与第一控制芯片102的GATE端连接的开关管MOSFET输出给初级绕组302。当有负载连接电源输出端即输出正极Q1和输出负极Q2时,第一采样电路400采样的输出电流不连续为零,第一控制芯片102输出PWM信号给初级绕组302。当电源输出端即输出正极Q1和输出负极Q2未连接负载 时,第一采样电路400采样的输出电流连续为零,第一控制芯片102停止输出PWM信号给初级绕组302,以关断次级电路200、变压器300和第一控制芯片102的用于输出PWM信号的电路。Continuing to refer to FIG. 3 , the power conversion circuit further includes a
也就是说,在电源转换电路的电源输出端连接有负载时,第一采样电路400采样的输出电流不连续为零,第一控制芯片102能够根据该输出电流输出PWM信号,使电源转换电路的输出端输出适用于该负载的工作电压,而在空载模式下,电源输出端没有连接负载,第一采样电路400采样的输出电流连续为零,此时,电源转换电路的第一控制芯片102能够停止输出PWM信号给初级绕组302,即第一控制芯片102的GATE管脚关闭输出,不再输出跳变信号,使次级电路200、变压器300和第一控制芯片102的用于输出PWM信号的电路被关断,从而降低了空载时的功率消耗,并且在电源转换电路的电源输出端重新连接负载时,第一采样电路400采样的输出电流不连续为零,第一控制芯片102能够根据该输出电流恢复输出PWM信号,即在空载时被关断的电路能够自动恢复开启,保证在带载模式下能够满足正常工作要求。That is to say, when a load is connected to the power output end of the power conversion circuit, the output current sampled by the
图4是图3的电源转换电路中的电流传感器S的结构示意图。如图4所示,电流传感器S包括霍尔芯片S1、导线S2和通信管脚。霍尔芯片S1上设置有多个磁信号感应点,导线S2的中间部分设置在多个磁信号感应点之间,且导线S2与多个磁信号感应点电气绝缘,导线S2耦接于次级电路200的正极输出端与输出正极Q1之间或导线S2耦接于次级电路200的负极输出端与输出负极Q2之间。也就是说,导线S2的一端为电流输入管脚,导线S2的另一端为电流输出管脚,导线S2的电流输入管脚和电流输出管脚串接在电源转换电路的输出端中的输出正极Q1或输出负极Q2处。如图3所示,导线S2的电流输入管脚和电流输出管脚串接在电源转换电路的输出负极Q2处。FIG. 4 is a schematic structural diagram of the current sensor S in the power conversion circuit of FIG. 3 . As shown in FIG. 4 , the current sensor S includes a hall chip S1 , a wire S2 and a communication pin. The Hall chip S1 is provided with a plurality of magnetic signal induction points, the middle part of the wire S2 is arranged between the plurality of magnetic signal induction points, and the wire S2 is electrically insulated from the plurality of magnetic signal induction points, and the wire S2 is coupled to the secondary The positive output terminal of the
其中,“次级电路200的正极输出端”是指次级电路200的与电源转换电路的电源输出端中的输出正极Q1相连的输出端,“次级电路200的负极输出端”是指次级电路200的与电源转换电路的电源输出端中的输出负极Q2相连的输出端。由于电流传感器S的导线S2与多个磁信号感应点电气绝缘,这样当用户触碰电源输出端时不会发生触电现象,使用更加安全。The “positive output terminal of the
多个磁信号感应点用于将导线S2中的电流信号转换为磁信号,霍尔芯片S1用于将磁信号转换为电压信号或数字信号。通信管脚S3一端与霍尔芯片S1相连且另一端用于与第一控制芯片102相连,以向第一控制芯片102反馈电压信号或数字信号,使第一控制芯片102根据电压信号或数字信号获得输出电流。The plurality of magnetic signal sensing points are used to convert the current signal in the wire S2 into a magnetic signal, and the Hall chip S1 is used to convert the magnetic signal into a voltage signal or a digital signal. One end of the communication pin S3 is connected to the Hall chip S1 and the other end is connected to the
并且,电流传感器S可包括多个通信管脚。另外,电流传感器S还可包括电源管脚和接地管脚以及外壳S3,电源管脚用于与电源连接,以给霍尔芯片S1供电,接地管脚用于接地。电流输入管脚和电流输出管脚以及电源管脚、接地管脚、通信管脚伸出外壳S3设置。Also, the current sensor S may include a plurality of communication pins. In addition, the current sensor S may further include a power supply pin, a grounding pin and a casing S3, the power supply pin is used for connecting with the power supply to supply power to the Hall chip S1, and the grounding pin is used for grounding. Current input pins, current output pins, power supply pins, ground pins, and communication pins are set out of the casing S3.
如图3和图4所示,在本申请第一实施例的电源转换电路中,电源转换电路的输出通道上串接了电流传感器S,第一控制芯片102根据电流传感器S检测到的电流值进行电路控制。具体地,当手机或者其他用电设备从电源转换电路的输出端拔掉后,与输出端相连的输出通道上的电流连续为零,电流传感器S反馈给第一控制芯片102电流值连续为零的信号,第一控制芯片102收到该信号后,关断PWM波形输出,即 第一控制芯片102的GATE管脚关闭输出,不再输出跳变信号,从而使得次级电路200、变压器300和第一控制芯片102的用于输出PWM信号的电路中的器件都处于断电状态,此时电源转换电路的空载功耗为初级电路中的部分电路如第一滤波电路1101、第一整流电路1102、第一供电电路和第一控制芯片102的部分电路等的功耗,从而降低了电路的损耗。当电源转换电路的输出端重新连接用电设备时,电流传感器S上会产生扰动电流/冲击电流,第一控制芯片102收到该扰动电流/冲击电流信号后,开启初级电路的PWM波形输出,使电路处于正常工作状态,直到电流传感器S再次连续检测到输出电流为零时,PWM波形输出才被关断。并且,光耦器件的作用可由电流传感器S替代,因此,可去掉光耦器件,相对光耦器件,电流传感器S反应灵敏,使得第一控制芯片102控制精度和实时性更好。As shown in FIG. 3 and FIG. 4 , in the power conversion circuit of the first embodiment of the present application, a current sensor S is connected in series to the output channel of the power conversion circuit, and the
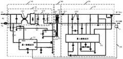
图5是本申请第二实施例提供的电源转换电路的具体结构示意图。如图5所示,与图4所示的第一实施例的电源转换电路的不同之处在于,本申请第二实施例的电源转换电路还包括第二采样电路500,用于采样第一整流滤波电路101输出的电流和电压,以获得初级输入功率,第一控制芯片102根据输出电流与初级输入功率的比值,调整PWM波形的频率。FIG. 5 is a schematic diagram of a specific structure of a power conversion circuit provided by a second embodiment of the present application. As shown in FIG. 5 , the difference from the power conversion circuit of the first embodiment shown in FIG. 4 is that the power conversion circuit of the second embodiment of the present application further includes a
其中,第二采样电路400包括采样电阻R,采样电阻R串联在第一整流电路1012的正极输出端与第二滤波电路1013的正极输出端之间,第一控制芯片102与采样电阻R的两端连接,以采集采样电阻R两端处的电压,并根据采样电阻R两端处的电压差和采样电阻R的电阻获得初级输入功率。进一步地,第二滤波电路1013可包括第三电容C3和第四电容C4。第三电容C3的负极接地,第三电容C3的正极与第一整流电路1012的正极输出端连接,第一整流电路1012的负极输出端接地。第四电容C4的负极与初级绕组302的一端连接,第四电容C4的正极与初级绕组302的另一端连接。采样电阻R耦接于第三电容C3的正极与第四电容C4的正极之间。The
假定采样电阻R的阻值是r,采样电阻R的第一侧与第一整流电路1012的正极输出端连接,采样电阻R的第一侧的电压为U1、采样电阻R的第二侧与第二滤波电路1013的正极输出端连接,采样电阻R的第二侧的电压为U2,初级输入功率Pin=U1×(U1-U2)/r,其中,U1大于U2。Assuming that the resistance value of the sampling resistor R is r, the first side of the sampling resistor R is connected to the positive output terminal of the
具体地,选定变压器300的磁芯301后,AC-DC电源转换电路的PWM波频率与输出功率之间存在以下关系:Specifically, after the
Po=K×F×Ae×Ac(W),其中,Po是输出功率,K是电路系数,F是PWM波频率,Ae是磁芯横截面积,Ac是磁芯窗口面积。Po=K×F×Ae×Ac(W), where Po is the output power, K is the circuit coefficient, F is the PWM wave frequency, Ae is the cross-sectional area of the magnetic core, and Ac is the window area of the magnetic core.
由公式可知,对于固定的磁芯,PWM波形的频率越高,能够输出的最大功率越高;反之,对于一定的输出功率,可以通过提升PWM波形的频率,降低磁芯体积。It can be seen from the formula that for a fixed magnetic core, the higher the frequency of the PWM waveform, the higher the maximum power that can be output; on the contrary, for a certain output power, the volume of the magnetic core can be reduced by increasing the frequency of the PWM waveform.
另外,对于固定的磁芯,PWM波形的频率越高,磁芯损耗越大。并且,MOSFET和二极管的动态损耗与PWM波频率存在正比关系。Also, for a fixed core, the higher the frequency of the PWM waveform, the greater the core loss. Also, the dynamic losses of MOSFETs and diodes are proportional to the PWM wave frequency.
也就是说,对于同一电源转换电路(即变压器300的磁芯301固定),可通过提高PWM波形的频率来提高电源转换电路的输出功率,但PWM波形的频率越高,磁芯损耗、MOSFET和二极管的动态损耗越大。为了使得输出电流与初级输入功率的比值最大,可通过多次调整PWM的频率来实现。That is to say, for the same power conversion circuit (that is, the
具体地,第一控制芯片102配置为:获取输出电流与初级输入功率的第一比值,在确定第一比值小于设定阈值时,将PWM波形的频率向下调整第一设定值,再次获取输出电流与初级输入功率的第二比值;在确定第二比值大于第一比值时,将PWM波形的频率继续向下调整第一设定值;在确定第二比值小于第一比值时,将PWM波形的频率向上回调第二设定值,第二设定值小于第一设定值;经过调整,使得输出电流与初级输入功率的比值最大。Specifically, the
其中,第二设定值为第一设定阈值/Nm,N为正整数,且N≥2,m为连续进行回调的次数,m为正整数,且m≥1,也就是说,连续进行回调时,每次回调值为上次回调值的N分之一。举例而言,假设N=2,第一设定值为Δf,则第二设定值为Δf/Nm,当输出功率低于标称值的90%时,获取次级输出电流和初级输入功率比值,将PWM波形频率向下调整Δf,再获取次级输出电流和初级输入功率比值,如果当前比值大于上次比值,继续向下调整Δf,如果当前比值小于上次比值,则向上回调Δf/2,再获取次级输出电流和初级输入功率比值,如果当前比值小于上次比值,则向上回调Δf/4;如果当前比值大于上次比值,则向下回调Δf/4;经过逐步调整,使得次级输出电流和初级输入功率比值最大。Wherein, the second set value is the first set threshold/Nm , N is a positive integer, and N≥2, m is the number of consecutive callbacks, m is a positive integer, and m≥1, that is, continuous When a callback is made, the value of each callback is N times the value of the previous callback. For example, assuming N=2, the first set value is Δf, the second set value is Δf/Nm , when the output power is lower than 90% of the nominal value, the secondary output current and primary input are obtained Power ratio, adjust the PWM waveform frequency downward by Δf, and then obtain the ratio of secondary output current and primary input power. If the current ratio is greater than the previous ratio, continue to adjust Δf downward. If the current ratio is smaller than the previous ratio, then adjust Δf upward. /2, and then obtain the ratio of the secondary output current to the primary input power. If the current ratio is smaller than the previous ratio, it will be adjusted upward by Δf/4; if the current ratio is greater than the previous ratio, it will be adjusted downward by Δf/4; after gradual adjustment, Maximize the ratio of secondary output current to primary input power.
如图5所示,在本申请第二实施例的电源转换电路中,电源转换电路的输出通道上串接了电流传感器S,在初级电路中串接了采样电阻R,通过电流传感器S可获得次级输出电流,通过采样电阻R可获得初级输入功率,根据实时获得的次级输出电流和初级输入功率的比值,可动态调整PWM波形的频率。当输出功率为标称值的90%以上时,PWM波形频率可按照设计的最大值控制开关管如与第一控制芯片102的GATE管脚连接的MOSFET。当轻负载时,在保证电源转换电路的输出通道输出的电压满足工作要求的前提下,通过降低PWM波形的频率,可降低MOSFET和二极管的动态损耗、变压器的磁芯损耗,从而提升轻载状态时的转换效率。并且,可以去掉PSM电路和EMI电路,能够简化电路结构。As shown in FIG. 5 , in the power conversion circuit of the second embodiment of the present application, a current sensor S is connected in series to the output channel of the power conversion circuit, and a sampling resistor R is connected in series in the primary circuit. For the secondary output current, the primary input power can be obtained through the sampling resistor R, and the frequency of the PWM waveform can be dynamically adjusted according to the ratio of the secondary output current and the primary input power obtained in real time. When the output power is more than 90% of the nominal value, the PWM waveform frequency can control the switch tube such as the MOSFET connected to the GATE pin of the
综上所述,通过在AC-DC电源转换电路的输出端增加电流传感器,获取电源转换电路的工作状态,在电源转换电路空载时,关闭电源转换电路的次级电路和变压器以及第一控制芯片的部分电路,从而实现电源转换空载的极低功耗;在重新连接用电设备时,通过电流传感器检测到得扰动电流实现电路的自动开启,从而在满足大众使用习惯的情况下,实现电源适配器的超低空载功耗,能够为整体的节能减排做出贡献,构成产品的超级卖点,提升产品的市场竞争力。通过在AC-DC转换电路的输出端增加电流传感器,以采样输出电流,在初级电路中增加采样电阻,以采样电流和电压来获得输入功率,构成闭环反馈系统,根据输出电流和输入功率的比值,在轻负载时,实时调整PWM波形频率,能够拓宽电源高效率转换的负载范围,提升了电源转换电路轻载时的转换效率,即轻负载下电源也能保持较高的转换效率,从而实现降低系统的整体功耗,为节能减排做贡献。To sum up, by adding a current sensor to the output end of the AC-DC power conversion circuit, the working state of the power conversion circuit is obtained, and when the power conversion circuit is no-load, the secondary circuit and the transformer of the power conversion circuit and the first control circuit are turned off. Part of the circuit of the chip, so as to realize the extremely low power consumption of no-load power conversion; when reconnecting the electrical equipment, the disturbance current detected by the current sensor realizes the automatic opening of the circuit, so as to meet the public's usage habits. The ultra-low no-load power consumption of the power adapter can contribute to the overall energy saving and emission reduction, constitute the super selling point of the product, and enhance the market competitiveness of the product. By adding a current sensor at the output end of the AC-DC conversion circuit to sample the output current, adding a sampling resistor in the primary circuit to obtain the input power by sampling the current and voltage, a closed-loop feedback system is formed, according to the ratio of the output current to the input power , At light load, the PWM waveform frequency can be adjusted in real time, which can broaden the load range of high-efficiency conversion of the power supply, and improve the conversion efficiency of the power conversion circuit at light load, that is, the power supply can maintain a high conversion efficiency under light load, so as to achieve Reduce the overall power consumption of the system and contribute to energy conservation and emission reduction.
以上所述,仅为本发明的具体实施方式,但本发明的保护范围并不局限于此,任何熟悉本技术领域的技术人员在本发明揭露的技术范围内,可轻易想到变化或替换,都应涵盖在本发明的保护范围之内。因此,本发明的保护范围应以所述权利要求的保护范围为准。The above are only specific embodiments of the present invention, but the protection scope of the present invention is not limited thereto. Any person skilled in the art can easily think of changes or substitutions within the technical scope disclosed by the present invention. should be included within the protection scope of the present invention. Therefore, the protection scope of the present invention should be based on the protection scope of the claims.
| Application Number | Priority Date | Filing Date | Title |
|---|---|---|---|
| CN202110354837.6ACN113054854B (en) | 2021-03-31 | 2021-03-31 | Power conversion circuit and adapter |
| CN202110354837.6 | 2021-03-31 |
| Publication Number | Publication Date |
|---|---|
| WO2022206481A1true WO2022206481A1 (en) | 2022-10-06 |
| Application Number | Title | Priority Date | Filing Date |
|---|---|---|---|
| PCT/CN2022/082230CeasedWO2022206481A1 (en) | 2021-03-31 | 2022-03-22 | Power conversion circuit and adapter |
| Country | Link |
|---|---|
| CN (1) | CN113054854B (en) |
| WO (1) | WO2022206481A1 (en) |
| Publication number | Priority date | Publication date | Assignee | Title |
|---|---|---|---|---|
| CN113054854B (en)* | 2021-03-31 | 2022-09-23 | 华为技术有限公司 | Power conversion circuit and adapter |
| CN115441738B (en)* | 2022-04-08 | 2024-05-28 | 华源智信半导体(深圳)有限公司 | Power converter, power adapter and electronic equipment |
| CN116094126B (en)* | 2023-02-22 | 2023-11-17 | 深圳市永联科技股份有限公司 | Charging module output control method and system |
| Publication number | Priority date | Publication date | Assignee | Title |
|---|---|---|---|---|
| CN1473387A (en)* | 2001-07-18 | 2004-02-04 | ���ṫ˾ | Switching power supply unit |
| JP2005151672A (en)* | 2003-11-13 | 2005-06-09 | Ricoh Co Ltd | Power supply |
| US20060098462A1 (en)* | 2003-07-15 | 2006-05-11 | Sanken Electric Co., Ltd. | Power supply and its controlling method |
| CN103078478A (en)* | 2013-01-23 | 2013-05-01 | 成都启臣微电子有限公司 | Controller for switching power supply and switching power supply |
| CN105515362A (en)* | 2014-09-23 | 2016-04-20 | 深圳市瑞必达科技有限公司 | Ultra-low standby control circuit, power supply circuit and electric equipment |
| CN113054854A (en)* | 2021-03-31 | 2021-06-29 | 华为技术有限公司 | Power conversion circuit and adapter |
| Publication number | Priority date | Publication date | Assignee | Title |
|---|---|---|---|---|
| US6366070B1 (en)* | 2001-07-12 | 2002-04-02 | Analog Devices, Inc. | Switching voltage regulator with dual modulation control scheme |
| TWI371670B (en)* | 2008-01-18 | 2012-09-01 | Advanced Analog Technology Inc | Switching voltage regulator control circuit |
| CN101552560B (en)* | 2009-01-13 | 2011-06-22 | 成都芯源系统有限公司 | Switch voltage stabilizing circuit and control method thereof |
| CN102468740A (en)* | 2010-11-19 | 2012-05-23 | 无锡芯朋微电子有限公司 | Method for modulating high-efficiency and self-adaptive oscillation frequency of switching power supply |
| CN102332841B (en)* | 2011-09-16 | 2013-08-28 | 浙江大学 | Control method of flyback photovoltaic grid-connected micro inverter under peak current control |
| US9331589B2 (en)* | 2012-09-24 | 2016-05-03 | Dialog Semiconductor Inc. | Primary feedback switching power converter controller with intelligent determination of and response to output voltage drops due to dynamic load conditions |
| CN111740599A (en)* | 2020-07-03 | 2020-10-02 | 上海艾为电子技术股份有限公司 | DC-DC buck converter and control method and control system thereof |
| Publication number | Priority date | Publication date | Assignee | Title |
|---|---|---|---|---|
| CN1473387A (en)* | 2001-07-18 | 2004-02-04 | ���ṫ˾ | Switching power supply unit |
| US20060098462A1 (en)* | 2003-07-15 | 2006-05-11 | Sanken Electric Co., Ltd. | Power supply and its controlling method |
| JP2005151672A (en)* | 2003-11-13 | 2005-06-09 | Ricoh Co Ltd | Power supply |
| CN103078478A (en)* | 2013-01-23 | 2013-05-01 | 成都启臣微电子有限公司 | Controller for switching power supply and switching power supply |
| CN105515362A (en)* | 2014-09-23 | 2016-04-20 | 深圳市瑞必达科技有限公司 | Ultra-low standby control circuit, power supply circuit and electric equipment |
| CN113054854A (en)* | 2021-03-31 | 2021-06-29 | 华为技术有限公司 | Power conversion circuit and adapter |
| Publication number | Publication date |
|---|---|
| CN113054854A (en) | 2021-06-29 |
| CN113054854B (en) | 2022-09-23 |
| Publication | Publication Date | Title |
|---|---|---|
| CN203368317U (en) | High PFC constant current control device without loop compensation and voltage converter | |
| CN113054854B (en) | Power conversion circuit and adapter | |
| CN103427656B (en) | A kind of crisscross parallel inverse-excitation type LED drive power and PFM control circuit thereof | |
| CN101801136A (en) | High-efficiency LED constant current driving circuit | |
| CN110995025A (en) | A switching power supply circuit | |
| CN114884356A (en) | Flyback converter and power supply system | |
| CN217063563U (en) | A low-power charger based on single-stage PFC | |
| CN105792438B (en) | A kind of buck single-stage LED drive circuit of unity power factor | |
| CN210297567U (en) | Switching power supply control circuit for improving dynamic performance and switching power supply system | |
| CN104124862A (en) | High-PFC constant current control device without loop compensation and voltage converter | |
| CN208589926U (en) | A kind of synchronous rectification power supply circuit with absorption function | |
| CN211266788U (en) | A switching power supply circuit | |
| CN217427719U (en) | Multi-protocol quick charging circuit and device | |
| CN210669601U (en) | Battery charging circuit | |
| CN2631116Y (en) | Portable energy-saving switch power source | |
| CN101753040A (en) | power adapter | |
| CN212210576U (en) | Power supply circuit of low-power-consumption storage battery charger | |
| CN202818129U (en) | DSP-controlled adjustable large power distribution type DC power supply | |
| TWI414135B (en) | Single-stage flyback power factor correction converter | |
| CN112838757B (en) | A power factor correction converter for time-division multiplexing transformers | |
| CN210075087U (en) | Direct current conversion circuit and direct current conversion device with high conversion efficiency | |
| CN223230904U (en) | A charging control circuit and multi-port charger thereof | |
| CN217693075U (en) | High-energy-efficiency switching power supply of LED lamp strip | |
| CN223109711U (en) | Wireless charging circuit and wireless charging device | |
| CN105450018A (en) | Power boost chopper control system |
| Date | Code | Title | Description |
|---|---|---|---|
| 121 | Ep: the epo has been informed by wipo that ep was designated in this application | Ref document number:22778664 Country of ref document:EP Kind code of ref document:A1 | |
| NENP | Non-entry into the national phase | Ref country code:DE | |
| 122 | Ep: pct application non-entry in european phase | Ref document number:22778664 Country of ref document:EP Kind code of ref document:A1 |