




본 발명은 폐가스 처리장치에 관한 것으로서, 보다 상세하게는 안전상의 이유로 구비되는 반응챔버 외측의 냉각부를 냉각유체의 유동방식으로 구성하여 반응챔버의 직경을 감소시켜 장치의 소형화를 구현할 수 있는 폐가스 처리장치에 관한 것이다.The present invention relates to a waste gas treatment apparatus, and more particularly, a waste gas treatment apparatus capable of miniaturizing the apparatus by reducing the diameter of the reaction chamber by configuring a cooling unit outside the reaction chamber provided for safety reasons in the flow of cooling fluid. It is about.
일반적으로 반도체 산업은 그 유용성만큼이나 복잡하면서도 매우 정교한 정밀도를 요구하는 많은 종류의 제조설비 및 제조공정을 필요로 한다. 이러한 반도체 제조공정이나 LCD 제조공정 등은 그 공정 특성상, 인체에 치명적인 각종 유독성, 부식성, 인화성 가스를 다량으로 사용하는 것이 일반적이다.In general, the semiconductor industry requires many kinds of manufacturing equipment and manufacturing processes that are as complex as their usefulness and require very precise precision. Such a semiconductor manufacturing process or LCD manufacturing process generally uses a large amount of various toxic, corrosive, and flammable gases that are fatal to the human body due to its process characteristics.
예를 들어 대표적인 반도체 제조 공정 중 하나인 CVD(Chemical Vapor Deposition)공정에서는 다량의 실란, 디클로실란, 암모니아, 산화질소, 아르신, 포스핀, 디보론, 보론, 트리클로라이드 등의 유독성 가스를 사용한다.For example, CVD (Chemical Vapor Deposition) process, one of the representative semiconductor manufacturing processes, uses a large amount of toxic gases such as silane, diclosilane, ammonia, nitrogen oxide, arsine, phosphine, diboron, boron, and trichloride. do.
이러한, CVD공정 이외에도 플라즈마에칭, 에피택시증착, 스퍼터링 등과 같은 여러 종류의 반도체 공정들에서도 상술한 각종 유독성가스를 다량으로 사용하고 있다.In addition to the CVD process, various kinds of semiconductor processes such as plasma etching, epitaxy deposition, sputtering, and the like are used in a large amount.
그런데, 상술한 바와 같은 반도체 제조공정이나 LCD 제조공정에 사용되는 가스는 그 독성이 매우 심각하여 제조공정 후에 이 유독성가스를 아무런 순화과정 없이 대기 중으로 무단 방출할 경우, 인체 및 생태계에 심각한 영향을 미칠 수 있다.However, the gas used in the semiconductor manufacturing process or the LCD manufacturing process as described above is very toxic, and if the toxic gas is released to the atmosphere without any purification process after the manufacturing process, it will seriously affect the human body and the ecosystem. Can be.
그리하여, 최근에는 고온연소가 가능한 플라즈마 토치를 이용하여 반도체, TFT LCD, OLED 등의 제조공정에서 발생된 독성 PFC가스를 연소시켜 인체에 유해한 상태의 폐가스를 무해한 상태로 부산물과 안전한 상태의 가스로 배출되도록 하기 위한 폐가스 처리장치가 사용되고 있다.Therefore, recently, by using a plasma torch capable of high-temperature combustion, toxic PFC gas generated in the manufacturing process of semiconductors, TFT LCDs, OLEDs, etc. is combusted to discharge waste gases in a harmless state as by-products and safe gases. Waste gas treatment devices are being used to ensure this.
이러한 폐가스 처리장치는 고온연소가 가능한 플라즈마 토치를 이용하기 때문에 폐가스를 가열하여 분해하는 처리공간이 고온으로 유지되기 때문에 사용자가 폐가스 처리장치에 접촉할 경우 화상의 우려가 발생하였다. 이를 위해 상기 처리공간의 외측으로 냉각유닛을 구비하여 챔버를 냉각시켜 사용자가 접촉하더라도 안전할 수 있도록 구성된다.Since the waste gas treatment apparatus uses a plasma torch capable of high temperature combustion, a processing space for heating and decomposing waste gas is maintained at a high temperature, and thus a user may be burned when the user touches the waste gas treatment apparatus. To this end, the cooling unit is provided to the outside of the processing space to cool the chamber and is configured to be safe even if the user touches it.
그러나, 종래의 폐가스 처리장치의 냉각유닛은 외부에서 상기 폐가스 처리장치의 챔버 벽에 냉각유체를 스프레이 방식으로 분사하여 상기 챔버 벽을 냉각시키는 방식을 이용하였다. 따라서, 상기 챔버외부에 냉각유체 분사를 위한 공간이 소요되어, 상기 폐가스 처리장치의 크기가 커지는 문제점이 있었다. 또한, 냉각유체 분사를 위해 각종 연결관 및 분사노즐 등이 필요하기 때문에, 장치가 복잡해지고 비용이 증가하는 문제점도 존재하였다.However, the cooling unit of the conventional waste gas treatment apparatus uses a method of cooling the chamber wall by spraying a cooling fluid to the chamber wall of the waste gas treatment apparatus from the outside in a spray method. Therefore, a space for cooling fluid injection is required outside the chamber, thereby increasing the size of the waste gas treatment device. In addition, since various connection pipes and injection nozzles are required for the cooling fluid injection, there is a problem that the apparatus becomes complicated and the cost increases.
본 발명은 상기한 종래의 문제점을 해결하기 위한 것으로서, 본 발명의 목적은 안전상의 이유로 구비되는 반응챔버 외측의 챔버냉각유닛의 구조를 개선하여 반응챔버의 직경을 감소시켜 장치의 소형화를 구현할 수 있는 폐가스 처리장치를 제공하기 위한 것이다.The present invention is to solve the above-mentioned problems, the object of the present invention is to improve the structure of the chamber cooling unit outside the reaction chamber provided for safety reasons to reduce the diameter of the reaction chamber can implement a miniaturization of the device It is to provide a waste gas treatment device.
본 발명의 다른 목적은, 챔버냉각유닛의 구조를 단순화하여 냉각을 위해 소요되는 비용을 절감하는 폐가스 처리장치를 제공하기 위한 것이다.Another object of the present invention, to simplify the structure of the chamber cooling unit to provide a waste gas treatment apparatus for reducing the cost required for cooling.
본 발명의 다른 목적은 냉각유체를 재활용하여 챔버 외벽을 냉각시키는 데 소요되는 비용을 절감하고 효율적인 냉각이 가능한 폐가스 처리장치를 제공하기 위한 것이다.Another object of the present invention is to provide a waste gas treatment apparatus capable of efficiently cooling and reducing the cost of cooling the chamber outer wall by recycling the cooling fluid.
상기와 같은 목적을 달성하기 위하여, 본 발명에서는 아크 방전을 이용하여 폐가스를 정화 처리하는 열처리유닛, 상기 열처리유닛을 고정하며 상기 폐가스의 처리가 이루어지는 처리공간을 제공하는 챔버, 상기 챔버 외측면을 냉각시키기 위하여 상기 챔버의 측면부를 따라 액상의 냉각유체 수용을 위한 유체 수용공간이 형성되며, 상기 냉각유체를 상기 수용공간 내로 유입시키는 유입구 및 상기 냉각유체를 상기 수용공간 외부로 배출시키는 배출구를 가지는 챔버냉각유닛 및 상기 챔버를 통하여 정화 처리된 가스를 냉각시키는 가스냉각유닛을 포함하는 폐가스 처리장치를 제공한다.In order to achieve the above object, the present invention provides a heat treatment unit for purifying waste gas using arc discharge, a chamber for fixing the heat treatment unit and providing a processing space in which the waste gas is treated, and cooling the chamber outer surface. A fluid accommodating space for accommodating the liquid cooling fluid is formed along the side surface of the chamber, the chamber cooling having an inlet for introducing the cooling fluid into the accommodating space and an outlet for discharging the cooling fluid out of the accommodating space. Provided is a waste gas treatment apparatus comprising a unit and a gas cooling unit for cooling the gas purged through the chamber.
본 발명의 실시예에 따른 폐가스 처리장치에서, 상기 열처리유닛은 상기 챔버의 상부에 위치하고, 플라즈마 토치를 사용할 수 있다.In the waste gas treatment apparatus according to an embodiment of the present invention, the heat treatment unit is located on the upper portion of the chamber, it is possible to use a plasma torch.
본 발명의 실시예에 따른 폐가스 처리장치에서, 상기 챔버냉각유닛의 배출구는 상기 유입구에 대하여 수직방향 상부에 구비되어 상기 냉각유체가 상기 수용공간 내부가 빈 공간이 없을 때에만 냉각유체를 배출할 수 있도록 할 수 있다.In the waste gas treatment apparatus according to an embodiment of the present invention, the outlet of the chamber cooling unit is provided in the upper vertical direction with respect to the inlet, the cooling fluid can discharge the cooling fluid only when there is no empty space in the receiving space. You can do that.
본 발명의 실시예에 따른 폐가스 처리장치에서, 상기 가스냉각유닛의 측면에는 내부로 냉각수를 주입하기 위한 냉각수 유입구가 구비되고, 상기 배출구에서 배출되는 냉각유체를 상기 가스냉각유닛으로 안내하도록 상기 챔버냉각유닛의 상기 배출구와 상기 가스냉각유닛의 상기 냉각수 유입구를 연결하는 연결관을 더 포함할 수 있다.In the waste gas treatment apparatus according to an embodiment of the present invention, the side surface of the gas cooling unit is provided with a cooling water inlet for injecting the cooling water therein, the chamber cooling to guide the cooling fluid discharged from the outlet to the gas cooling unit The apparatus may further include a connection pipe connecting the outlet of the unit and the cooling water inlet of the gas cooling unit.
본 발명의 실시예에 따른 폐가스 처리장치에서, 상기 챔버 내부의 처리공간과 상기 챔버냉각유닛 사이에는 상기 챔버냉각유닛의 냉각작용으로 인하여 상기 챔버 내부의 열이 외부로 빠져나가는 것을 차단하는 단열재를 더 포함하여 이루어 질 수 있다.In the waste gas treatment apparatus according to an embodiment of the present invention, between the processing space inside the chamber and the chamber cooling unit further comprises a heat insulating material to block the heat inside the chamber to escape due to the cooling action of the chamber cooling unit. It can be done including.
본 발명의 실시예에 따른 폐가스 처리장치에서, 상기 단열재와 상기 챔버냉각부 사이에는 상기 단열재를 고정하는 단열재고정부가 구비될 수 있다. 여기에서, 상기 단열재고정부 외측면은 상기 냉각유체 수용공간의 일부를 형성할 수 있다.In the waste gas treatment apparatus according to an embodiment of the present invention, a heat insulating material fixing part for fixing the heat insulating material between the heat insulating material and the chamber cooling unit may be provided. Here, the outer surface of the insulation inventory may form part of the cooling fluid receiving space.
상기의 구성을 가지는 본 발명에 따른 폐가스 처리장치는 다음과 같은 효과 가 있다.Waste gas treatment apparatus according to the present invention having the above configuration has the following effects.
첫째, 폐가스 처리장치가 작동하는 동안 챔버가 가열되어 사용자가 접촉하였을 경우에 발생할 수 있는 화상의 위험을 방지하기 위하여 구비되는 반응챔버 외측의 챔버냉각유닛을 유로를 통한 냉각유체의 유동방식으로 변경함으로써 반응챔버의 직경을 감소시켜 장치의 소형화를 구현할 수 있는 효과가 있다.First, by changing the chamber cooling unit outside the reaction chamber provided to the flow of cooling fluid through the flow path to prevent the risk of burns that may occur when the chamber is heated while the waste gas treatment apparatus is in operation. By reducing the diameter of the reaction chamber has an effect that can be miniaturized the device.
또한, 챔버를 냉각시키는 기존의 분사 방식에 비해 상기 유동방식을 통한 챔버를 냉각시키는 방식이 구성이 간단하고, 챔버의 냉각에 소요되는 비용을 절감할 수 있는 이점이 있다.In addition, the method of cooling the chamber through the flow method is simple compared to the conventional injection method for cooling the chamber, there is an advantage that can reduce the cost required for cooling the chamber.
둘째, 반응챔버의 외측면에 구비되는 배출구와 가스냉각유닛의 측면에 구비된 냉각수 유입구 사이에 연통하는 연결관을 배치하여 상기 배출구에서 배출된 냉각유체가 반응챔버 하부의 가스냉각유닛의 냉각수 유입구로 주입되어 재사용될 수 있어 냉각유체를 효과적을 활용할 수 있는 장점이 있다.Second, a connection tube is disposed between the outlet provided on the outer side of the reaction chamber and the cooling water inlet provided on the side of the gas cooling unit, so that the cooling fluid discharged from the outlet is the cooling water inlet of the gas cooling unit below the reaction chamber. Since it can be injected and reused, there is an advantage that can effectively utilize the cooling fluid.
셋째, 챔버 내부의 처리공간과 챔버냉각유닛 사이에 단열재를 구비함으로써, 상기 챔버냉각유닛의 냉각작용으로 인하여 상기 챔버 내부의 열이 외부로 빠져나가는 것을 차단하는 효과가 있다.Third, by providing an insulating material between the processing space and the chamber cooling unit inside the chamber, there is an effect of blocking the heat inside the chamber to escape to the outside due to the cooling action of the chamber cooling unit.
이하 본 발명의 목적이 구체적으로 실현될 수 있는 본 발명의 바람직한 실시예를 첨부된 도면을 참조하여 설명한다. 본 실시예를 설명함에 있어서, 동일 구성에 대해서는 동일 명칭 및 동일 부호가 사용되며 이에 따른 부가적인 설명은 생략하기로 한다.DETAILED DESCRIPTION Hereinafter, exemplary embodiments of the present invention will be described in detail with reference to the accompanying drawings. In the description of this embodiment, the same name and the same reference numerals are used for the same configuration and additional description thereof will be omitted.
도 1 내지 도 4를 참조하여 본 발명의 일 실시예에 따른 폐가스 처리장치의 구성을 설명하면 다음과 같다. 여기서, 도 1은 본 실시예에 따른 폐가스 처리장치의 구성도이고, 도 2는 도 1의 챔버 내부를 도시한 단면도이며, 도 3은 냉각유체가 유입되고, 배출되는 과정을 나타내는 상태도이고, 도 4는 도 1의 가스냉각유닛의 구성도이다.Referring to Figures 1 to 4 the configuration of the waste gas treatment apparatus according to an embodiment of the present invention. 1 is a configuration diagram of a waste gas treatment apparatus according to the present embodiment, FIG. 2 is a cross-sectional view illustrating the inside of the chamber of FIG. 1, and FIG. 3 is a state diagram illustrating a process of introducing and discharging cooling fluid. 4 is a configuration diagram of the gas cooling unit of FIG. 1.
도 1 내지 도 4에 도시된 바와 같이 본 실시예에 따른 폐가스 처리장치는, 아크 방전을 이용하는 열처리유닛(100), 상기 열처리유닛(100)을 고정하는 챔버(200), 상기 챔버(200) 외측면을 냉각시키기 위한 챔버냉각유닛(300) 및 상기 챔버(200)를 통하여 정화 처리된 가스를 냉각시키는 가스냉각유닛(400)을 포함하여 구성된다.1 to 4, the waste gas treating apparatus according to the present embodiment includes a
상기 열처리유닛(100)은 상기 챔버(200)의 상부에 위치하고, 아크방전을 이용한 플라즈마 토치를 사용할 수 있다. 이러한 상기 열처리유닛(100)은 플라즈마 토치를 이용하여 상기 챔버(200) 내부의 처리공간(210)에 고온의 열을 공급하여 상기 폐가스가 열 분해 되는 역할을 담당한다.The
상기 챔버(200)는 상기 열처리유닛(100)에 의해 상기 폐가스가 처리되는 처리공간(210)을 제공하고 있다.The
상기 챔버(200)의 가장자리에 구비되는 폐가스 유입구(220)를 통해서 유입되는 상기 폐가스는 후술하는 단열재(260)와 단열재고정부(240) 사이에 형성되는 폐가스 유동경로(222)를 거쳐 상기 열처리유닛(100)의 화염 중앙부분으로 유입된다.The waste gas introduced through the
상기 챔버(200)와 상기 가스냉각유닛(400) 사이에 재결합방지가스 유입 구(280)가 구비되고, 상기 재결합방지가스 유입구(280)와 연통하는 안내관(282)을 따라 상기 재결합방지가스 유입구(280)를 통하여 상기 챔버(200)내의 처리공간(210)에서 상기 열처리유닛(100)에 의해 열 분해된 상기 폐가스가 재결합하는 것을 방지하기 위하여 재결합방지가스가 주입된다.A recombination
상기 재결합방지가스 유입구(280)를 통하여 주입된 재결합방지가스는 상기 안내관(282)을 따라 안내되어 상기 챔버(200)내부의 처리공간(210)에서 열 분해된 가스가 가스냉각유닛(400)으로 배출되기 전에 분사된다. 여기에서, 상기 재결합방지가스로는 질소가스, 산소가스 등을 들 수 있으며, 이밖에 고온분위기에서 활성을 나타내는 가스를 모두 사용할 수 있다.The anti-recombination gas injected through the
상기 챔버(200)는 상기 폐가스 유입구(220)를 통하여 유입된 상기 폐가스가 상기 열처리유닛(100)의 플라즈마 토치에서 발생하는 화염에 의하여 열 분해되는 처리공간(210)을 제공하는 실린더 형태로 구비될 수 있다.The
본 실시예에서는 상기 챔버(200)의 형태가 실린더 형태로 구비된 것을 예시하고 있지만, 이에 한정하지 않고 설계 조건에 맞게 다양하게 변화될 수 있다.In the present embodiment, but the shape of the
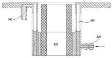
상기 챔버냉각유닛(300)은 상기 챔버(200) 외측면을 냉각시키기 위하여 상기 챔버(200)의 측면부를 따라 액상의 냉각유체(F) 수용을 위한 유체 수용공간(360), 상기 냉각유체(F)를 상기 수용공간(360) 내로 유입시키는 유입구(320), 상기 냉각유체(F)를 상기 수용공간(360) 외부로 배출시키는 배출구(340)를 포함하여 구성된다.The chamber cooling unit 300 includes a fluid accommodating
상기 챔버냉각유닛(300)에서 상기 유입구(320)는 상기 배출구(340)에 대하여 수직방향 하부에 구비되는 것이 바람직하다.In the chamber cooling unit 300, the
도3a에 도시된 바와 같이 상기 유입구(320)를 통하여 유입된 상기 냉각유체(F)는 상기 수용공간(360)에 채워지게 되고, 도3b에 도시된 바와 같이 상기 수용공간(360)에 상기 냉각유체(F)가 가득 채워지면, 상기 배출구(340)를 통하여 상기 냉각유체(F)는 배출되게 된다.As shown in FIG. 3A, the cooling fluid F introduced through the
이에 따라, 상기 냉각유체(F)는 상기 챔버(200) 외측면을 냉각시킬 수 있도록 상기 수용공간(360)을 따라 유동하게 된다.Accordingly, the cooling fluid F flows along the
한편, 도면에 도시되지는 않았지만, 상기 배출구(340)를 통하여 배출되는 상기 냉각유체(F)를 상기 가스냉각유닛(400)으로 안내하도록 상기 배출구(340)와 상기 가스냉각유닛(400)의 측면에 냉각수를 주입하기 위하여 구비되는 냉각수 유입구(420)를 연결하는 연결관이 구비될 수도 있다.Although not shown in the drawing, side surfaces of the
따라서, 상기 챔버냉각유닛(300)에서 사용되는 냉각유체(F)가 상기 가스냉각유닛(400)에서 재사용 될 수 있어 상기 폐가스 처리장치에 사용되는 냉각유체(F)를 절약할 수 있게 되는 장점이 있다.Therefore, the cooling fluid (F) used in the chamber cooling unit 300 can be reused in the
도 2에 도시된 바와 같이 본 실시예에서, 상기 단열재(260)는 상기 열처리유닛(100)의 플라즈마 토치에 의하여 상기 폐가스가 처리되는 처리공간(210) 외측으로 구비되고 상기 처리공간(210) 내부의 열이 외부로 유출되는 것을 방지하는 것을 담당한다.As shown in FIG. 2, the
여기에서, 상기 단열재(260)는 상기 열처리유닛(100)의 화염에 의하여 발생 하는 상기 처리공간(201)의 고온에서도 견딜 수 있도록 알루미나(Al2O3) 성분을 포함하는 것이 바람직하다.Here, the
또한, 상기 단열재(260)의 외측면은 상기 챔버(200)의 측면에 구비된 폐가스 유입구(220)에서 유입된 폐가스가 상기 처리공간(210) 내부에서 발생되는 플라즈마 토치의 화염의 중앙부분으로 상기 폐가스가 안내되도록 하는 폐가스 유동경로(222)의 일부를 형성하는 것이 바람직하다.In addition, the outer surface of the
상기 단열재(260)와 상기 챔버냉각유닛(300) 사이에는 상기 단열재(260)를 고정하는 단열재고정부(240)가 구비되고, 상기 단열재 고정부(240) 외측면은 상기 냉각유체(F) 수용공간(360)의 일부를 형성하도록 하는 것이 바람직하다.Between the
상기 단열재고정부(240) 내부에는 상기 안내관(282)과 연통되는 안내유로(242)가 구비되어 상기 폐가스 유입구(220)로 유입된 폐가스가 상기 폐가스 유동경로(222)를 통하여 상기 처리공간(210)으로 유입될 때 상기 재결합방지가스가 함께 유입될 수 있도록 하고 있다.Inside the
도 4에 도시된 바와 같이 상기 가스냉각유닛(400)은 내벽(460)과 외벽(450), 상기 챔버(200)와 연통하는 플렌지(410), 상기 가스냉각유닛(400)의 상부 측면에 구비되는 퍼지가스 유입구(440), 상기 가스냉각유닛(400)의 하부 측면에 구비되는 냉각수 유입구(420)로 구성되어 있다.As shown in FIG. 4, the
또한, 상기 가스냉각유닛(400)의 내부에는 상기 챔버(200) 내의 처리공간(210)에서 상기 폐가스가 열 분해되는 과정에서 발생하는 파우더의 적층을 방지 하는 차단판(412), 상기 차단판(412) 상에 구비되고, 상기 퍼지가스 유입구(440)와 연통되어 퍼지가스를 분사하는 퍼지가스 분사구(442), 상기 냉각수 유입구(420)로 유입된 냉각수의 흐름을 유도하는 냉각수 가이드(422)로 구성되어 있다.In addition, the
상기 차단판(412)은, 상기 냉각부의 상부에 위치하여 상기 열처리부(100)에 의해 상기 챔버(200) 내의 처리공간(210)에서 상기 폐가스가 열 분해되는 과정에서 발생되는 파우더가 적층됨으로써 발생되는 부식을 방지하기 위하여 냉각부의 상부의 경사면에 수막을 형성하여 냉각 및 파우더 적층을 차단하고 오버플로우(over-flow)되는 냉각수가 상기 챔버(200)의 내부로 튀는 것을 방지하도록 경사지게 구비될 수 있다. 또한, 상기 차단판(412)에 적층되는 파우더는 상기 차단판(412) 상에 구비된 퍼지가스 분사구(442)를 통하여 분사되는 고압의 퍼지가스에 의하여 상기 냉각수와 함께 외부로 배출된다.The blocking
상기 가스냉각유닛(400)에서 냉각수 유입구(420)로부터 유입된 냉각수가 상기 외벽(450)과 상기 내벽(460) 사이로 안내되어 상기 냉각수 가이드(422)를 통하여 흐르게 된다. 따라서, 상기 가스냉각유닛(400)을 거친 처리 가스는 상온까지 냉각된 후 외부로 배출되게 된다.Cooling water introduced from the
본 발명은 상술한 실시예에 한정되지 않으며, 첨부된 청구범위에서 알 수 있는 바와 같이 본 발명이 속한 분야의 통상의 지식을 가진 자는 본 발명의 정신을 벗어나지 않고 변형이 가능하고 이러한 변형은 본 발명의 범위에 속한다.The present invention is not limited to the above-described embodiments, and as can be seen in the appended claims, those skilled in the art can make modifications without departing from the spirit of the present invention, and such modifications are possible. Belongs to the scope of.
도 1은 본 발명의 실시예에 따른 폐가스 처리장치의 구성도;1 is a block diagram of a waste gas treatment apparatus according to an embodiment of the present invention;
도 2는 도 1의 챔버 내부를 도시한 단면도;FIG. 2 is a cross-sectional view of the interior of the chamber of FIG. 1; FIG.
도 3a는 냉각유체가 유입되는 과정을 나타내는 상태도;Figure 3a is a state diagram showing a process in which the cooling fluid is introduced;
도 3b는 냉각유체가 배출되는 과정을 나타내는 상태도;Figure 3b is a state diagram showing a process in which the cooling fluid is discharged;
도 4는 도1의 가스냉각유닛의 구성도이다.4 is a configuration diagram of the gas cooling unit of FIG.
< 도면의 주요부분에 대한 부호 설명 ><Explanation of Signs of Major Parts of Drawings>
100: 열처리유닛200: 챔버100: heat treatment unit 200: chamber
210: 처리공간220: 폐가스 유입구210: treatment space 220: waste gas inlet
222: 폐가스 유동경로240: 단열재고정부222: waste gas flow path 240: insulation inventory
242: 안내유로260: 단열재242: guide flow path 260: insulation
280: 재결합방지가스 유입구282: 안내관280: recombination prevention gas inlet 282: guide tube
300: 챔버냉각유닛320: 유입구300: chamber cooling unit 320: inlet
340: 배출구360: 수용공간340: outlet 360: receiving space
400: 가스냉각유닛410: 플렌지400: gas cooling unit 410: flange
412: 차단판420: 냉각수 유입구412: blocking plate 420: cooling water inlet
422: 냉각수 가이드440: 퍼지가스 유입구422
442: 퍼지가스 분사구450: 외벽442: purge gas injection port 450: outer wall
460: 내벽460: inner wall
| Application Number | Priority Date | Filing Date | Title |
|---|---|---|---|
| KR1020080021469AKR20090096098A (en) | 2008-03-07 | 2008-03-07 | Waste Gas Processing |
| Application Number | Priority Date | Filing Date | Title |
|---|---|---|---|
| KR1020080021469AKR20090096098A (en) | 2008-03-07 | 2008-03-07 | Waste Gas Processing |
| Publication Number | Publication Date |
|---|---|
| KR20090096098Atrue KR20090096098A (en) | 2009-09-10 |
| Application Number | Title | Priority Date | Filing Date |
|---|---|---|---|
| KR1020080021469ACeasedKR20090096098A (en) | 2008-03-07 | 2008-03-07 | Waste Gas Processing |
| Country | Link |
|---|---|
| KR (1) | KR20090096098A (en) |
| Publication number | Priority date | Publication date | Assignee | Title |
|---|---|---|---|---|
| WO2015002740A1 (en)* | 2013-07-03 | 2015-01-08 | Applied Materials, Inc. | Reactor gas panel common exhaust |
| Publication number | Priority date | Publication date | Assignee | Title |
|---|---|---|---|---|
| WO2015002740A1 (en)* | 2013-07-03 | 2015-01-08 | Applied Materials, Inc. | Reactor gas panel common exhaust |
| Publication | Publication Date | Title |
|---|---|---|
| KR101411964B1 (en) | Gas treatment device | |
| JP4153942B2 (en) | Waste gas treatment equipment | |
| TWI581827B (en) | Gas handling device | |
| US10005025B2 (en) | Corrosion resistant abatement system | |
| JP6005262B2 (en) | Nozzle unit and substrate processing equipment having the nozzle unit | |
| KR101006384B1 (en) | Waste gas treatment system | |
| KR20120131959A (en) | Apparatus for treating hazardous gas using counterflow of plasma and hazardous gas, method for treating hazardous gas using the same | |
| KR100972829B1 (en) | Waste gas treatment system | |
| KR20090096098A (en) | Waste Gas Processing | |
| KR20090096087A (en) | Waste Gas Processing | |
| KR100997207B1 (en) | Treatment device that double-oxidizes harmful gas by heat and light using halogen heater | |
| KR20090132145A (en) | Waste gas treatment system | |
| KR20100009228A (en) | Waste gas processing | |
| KR100921702B1 (en) | Waste gas treatment device equipped with auxiliary heat treatment unit | |
| KR100937697B1 (en) | Waste gas treatment system | |
| KR100929535B1 (en) | Nozzle Unit and Atomic Layer Deposition Equipment with the Unit | |
| WO2018221067A1 (en) | Exhaust gas decompression detoxification method and device therefor | |
| KR102072643B1 (en) | POU scrubber plasma torch and semiconductor waste gas treatment apparatus comprising the same | |
| KR102362761B1 (en) | Gas treating apparatus | |
| KR20090061835A (en) | Waste gas treatment device equipped with a plurality of plasma torch | |
| KR102793288B1 (en) | Apparatus for treating waste gas and method for treating waste gas by using heater, catalyst and spacer | |
| KR100749770B1 (en) | Plasma process equipment | |
| KR20240108870A (en) | waste gas treatment unit | |
| WO2017068609A1 (en) | Exhaust gas treatment device | |
| KR20230095695A (en) | Ecofriendly system and method for treating industrial processes gas using swirl type |
| Date | Code | Title | Description |
|---|---|---|---|
| A201 | Request for examination | ||
| PA0109 | Patent application | Patent event code:PA01091R01D Comment text:Patent Application Patent event date:20080307 | |
| PA0201 | Request for examination | ||
| PG1501 | Laying open of application | ||
| E902 | Notification of reason for refusal | ||
| PE0902 | Notice of grounds for rejection | Comment text:Notification of reason for refusal Patent event date:20100128 Patent event code:PE09021S01D | |
| E601 | Decision to refuse application | ||
| PE0601 | Decision on rejection of patent | Patent event date:20100414 Comment text:Decision to Refuse Application Patent event code:PE06012S01D Patent event date:20100128 Comment text:Notification of reason for refusal Patent event code:PE06011S01I |