











본 발명은 외기전담 시스템에 관한 것으로, 보다 상세하게는 액체식 제가습장치를 이용하여 여름철 제습/냉방 및 겨울철 가습/난방 모드로 작동 가능한 외기전담 시스템에 관한 것이다.The present invention relates to a dedicated outdoor system, and more particularly, to an outdoor dedicated system that can be operated in dehumidification/cooling in summer and humidification/heating in winter using a liquid dehumidifying device.
쾌적한 실내 환경을 조성하기 위해 다양한 종류의 공조 시스템이 개발되고 있다. 일반적으로 공조 시스템은 냉매 증발을 유도하는 압축식 냉동 사이클을 이용하여 처리공기를 냉각함으로써 건물 실내를 냉방한다. 또한, 여름철 제습을 위해서 제습 사이클이 적용된 공조 시스템이 개발되기도 하고, 하기 선행기술문헌의 특허문헌에 개시된 바와 같이 압축식 냉동 시스템과 액체식 제습 시스템이 결합된 복합식 제습 냉방시스템도 제안되고 있다.In order to create a comfortable indoor environment, various types of air conditioning systems are being developed. In general, an air conditioning system cools the interior of a building by cooling process air using a compression refrigeration cycle that induces refrigerant evaporation. In addition, an air conditioning system to which a dehumidification cycle is applied has been developed for dehumidification in summer, and a combined dehumidification and cooling system in which a compression refrigeration system and a liquid dehumidification system are combined as disclosed in the Patent Documents of the following prior art documents has also been proposed.
그러나 복합식 제습 냉방시스템은 공기의 제습을 주목적으로 운용된다. 압축식 냉동 시스템은 제습의 효율을 높이기 위한 용도로 사용되고 있기 때문에 냉방에는 한계가 있다. 또한, 압축식 냉방 시스템의 냉매가 한 방향으로만 흐르므로 냉열원과 온열원의 공급 위치가 고정되며 공기조화를 목적으로 사용하기가 어렵다. 나아가, 공기 제습을 목적으로 하기 때문에 사계절이 뚜렷한 우리나라의 경우 겨울철과 같이 제습이 필요하지 않은 기간에는 사용되지 않는다. 또한, 기존 액체식 제습 시스템은 액체식 제습제의 온도와 유량, 농도 등을 제어하여 환기와 제습 및 가습을 수행하는데, 특성상 낮은 온도의 외기에서는 제습 수용액의 결정화 등과 같은 문제가 발생할 수 있다.However, the combined dehumidification cooling system is operated for the main purpose of dehumidifying air. Since the compression-type refrigeration system is used to increase the efficiency of dehumidification, there is a limit to cooling. In addition, since the refrigerant of the compression cooling system flows in only one direction, the supply positions of the cooling heat source and the hot heat source are fixed, and it is difficult to use the coolant for the purpose of air conditioning. Furthermore, since it is for the purpose of dehumidifying air, it is not used during periods when dehumidification is not required, such as in winter, in the case of Korea, which has four distinct seasons. In addition, the existing liquid dehumidifying system performs ventilation, dehumidification, and humidification by controlling the temperature, flow rate, and concentration of the liquid dehumidifying agent.
이에 종래 공조시스템의 문제를 해결하기 위한 방안이 절실히 요구되고 있는 상황이다.Accordingly, there is an urgent need for a method to solve the problem of the conventional air conditioning system.
본 발명은 상술한 종래기술의 문제점을 해결하기 위한 것으로, 본 발명의 일 측면은 열전모듈 히트펌프가 액체식 제가습 장치의 보조 열원으로 사용되어 제가습 수용액의 온도를 조정하는 외기전담 시스템을 제공하는 데 있다.The present invention is to solve the problems of the prior art described above, and an aspect of the present invention is to provide an external dedicated system in which a thermoelectric module heat pump is used as an auxiliary heat source of a liquid dehumidification device to adjust the temperature of an aqueous dehumidification solution. is to do
본 발명의 실시예에 따른 외기전담 시스템은 외기를 냉각 및 제습, 또는 가열 및 가습하여 실내로 급기하는 외기전담 시스템에 있어서, 상기 실내에서 배출되는 배기와 상기 외기를 열교환시키는 전열교환기; 조습용액을 저장하는 조습용액 저장조; 상기 조습용액 저장조에 저장된 상기 조습용액 중 일부인 제1 조습용액이 유입되는 제1 흡열부, 냉열원이 유입되는 제1 방열부, 및 상기 제1 흡열부와 상기 제1 방열부 사이에 배치되는 제1 열전소자를 포함하고, 펠티어 효과를 이용해 상기 제1 조습용액을 냉각하는 제1 열전히트펌프; 온열원이 유입되는 제2 흡열부, 상기 조습용액 저장조에 저장된 상기 조습용액 중 다른 일부인 제2 조습용액이 유입되는 제2 방열부, 및 상기 제2 흡열부와 상기 제2 방열부 사이에 배치되는 제2 열전소자를 포함하고, 펠티어 효과를 이용해 상기 제2 조습용액을 가열하는 제2 열전히트펌프; 상기 전열교환기에서 열교환된 상기 외기 및 상기 배기 중 어느 하나인 제1 유입공기와, 냉각된 상기 제1 조습용액 및 가열된 상기 제2 조습용액 중 어느 하나 사이에 열 및 수분을 교환시켜 각각 배출하는 제1 열수분교환기; 및 상기 제1 유입공기와 다른 하나인 제2 유입공기와, 가열된 상기 제2 조습용액 사이에 열 및 수분을 교환시켜 각각 배출하는 제2 열수분교환기;를 포함한다.An external exclusive system according to an embodiment of the present invention is an external exclusive system for cooling and dehumidifying, or heating and humidifying, external air to supply air into a room, the system comprising: a total heat exchanger for exchanging heat between the exhaust discharged from the room and the outside air; a humidity control solution storage tank for storing the humidity control solution; A first heat absorbing part into which a first humidity control solution, which is a part of the humidity control solution stored in the humidity control solution storage tank, flows, a first heat dissipation part into which a cooling heat source flows, and a first heat absorbing part disposed between the first heat absorbing part and the first heat dissipation part a first thermoelectric heat pump including one thermoelectric element and cooling the first humidity control solution using a Peltier effect; A second heat absorbing part into which a heat source is introduced, a second heat dissipation part into which a second humidity control solution, which is another part of the humidity control solution stored in the humidity control solution storage tank, flows, and the second heat absorbing part and the second heat dissipation part a second thermoelectric heat pump including a second thermoelectric element and heating the second humidity control solution using a Peltier effect; Exchanging heat and moisture between the first inlet air, which is any one of the external air and the exhaust heat exchanged in the total heat exchanger, and any one of the cooled first humidity control solution and the heated second humidity control solution a first heat water exchanger; and a second heat and moisture exchanger for exchanging heat and moisture between the first inlet air and the other second inlet air and the heated second humidity control solution to discharge the heat and moisture, respectively.
또한, 본 발명의 실시예에 따른 외기전담 시스템에 있어서, 상기 외기가 상기 배기보다 고온인 경우에, 상기 제1 열수분교환기에서 상기 외기가 상기 제1 조습용액과 열 및 수분 교환되어 냉각 및 제습된 후에 급기되고, 열 및 수분 교환된 상기 제1 조습용액은 상기 조습용액 저수조로 유입되며, 상기 제2 조습용액은 상기 제2 열수분교환기에서 상기 배기와 열 및 수분 교환되어 재생되고, 상기 외기가 상기 배기보다 저온인 경우에, 상기 제1 열수분교환기에서 상기 외기가 상기 제2 조습용액과 열 및 수분 교환되어 가열 및 가습된 후에 급기될 수 있다.In addition, in the dedicated external air system according to an embodiment of the present invention, when the outdoor air is hotter than the exhaust, the outdoor air in the first heat and moisture exchanger exchanges heat and moisture with the first humidity control solution to cool and dehumidify After being supplied, the heat and moisture exchanged with the first humidity control solution flows into the humidity control solution storage tank, and the second humidity control solution is regenerated by exchanging heat and moisture with the exhaust in the second heat and moisture exchanger, and the outdoor air When is lower than the exhaust, the outside air in the first heat and moisture exchanger may be supplied with heat and moisture after heat and moisture exchange with the second humidity control solution to be heated and humidified.
또한, 본 발명의 실시예에 따른 외기전담 시스템에 있어서, 상기 냉열원을 저장하는 냉수 저장조; 및 상기 온열원을 저장하는 온수 저장조;를 더 포함할 수 있다.In addition, in the external exclusive system according to an embodiment of the present invention, a cold water storage tank for storing the cooling heat source; and a hot water storage tank for storing the heat source.
또한, 본 발명의 실시예에 따른 외기전담 시스템에 있어서, 상기 전열교환기에서 상기 제1 열수분교환기로 공급되는 상기 제1 유입공기를, 상기 냉수 저장조로부터 공급되는 상기 냉열원과 열교환시켜 냉각하는 냉각부; 및 상기 전열교환기에서 상기 제2 열수분교환기로 공급되는 상기 제2 유입공기를, 상기 온수 저장조로부터 공급되는 상기 온열원과 열교환시켜 가열하는 제1 가열부;를 더 포함할 수 있다.In addition, in the external exclusive system according to an embodiment of the present invention, the first inlet air supplied from the total heat exchanger to the first heat and moisture exchanger is cooled by exchanging heat with the cooling heat source supplied from the cold water storage tank. wealth; and a first heating unit configured to heat the second inlet air supplied from the total heat exchanger to the second heat and moisture exchanger by exchanging heat with the heat source supplied from the hot water storage tank.
또한, 본 발명의 실시예에 따른 외기전담 시스템에 있어서, 상기 제1 흡열부는, 상기 제1 제습용액이 통과하는 제1 흡열유로, 및 상기 냉수 저장조로부터 공급되는 일부의 상기 냉열원이 통과하는 제2 흡열유로를 포함하고, 상기 제2 방열부는, 상기 제2 제습용액이 통과하는 제1 방열유로, 및 상기 온수 저장조로부터 공급되는 일부의 상기 온열원이 통과하는 제2 방열유로를 포함하며, 상기 제2 흡열유로를 통과하여 냉각된 상기 냉열원은 상기 냉각부를 관류하여 상기 냉수 저장조로 복귀되고, 상기 제2 방열유로를 통과하여 가열된 상기 온열원은 상기 제1 가열부를 관류하여 상기 온수 조장조로 복귀될 수 있다.In addition, in the external exclusive system according to an embodiment of the present invention, the first heat absorbing unit includes a first heat absorbing flow path through which the first dehumidifying solution passes, and a portion of the cooling heat source supplied from the cold water storage tank through which it passes. 2 heat absorbing flow paths, wherein the second heat dissipation unit includes a first heat dissipation path through which the second dehumidifying solution passes, and a second heat dissipation path through which some of the heat sources supplied from the hot water storage tank pass; The cooling heat source cooled by passing through the second heat absorbing passage flows through the cooling unit to return to the cold water storage tank, and the heat source heated through the second heat dissipation passage flows through the first heating unit to the hot water tank. can be returned
또한, 본 발명의 실시예에 따른 외기전담 시스템에 있어서, 상기 외기가 상기 배기보다 고온인 경우에, 상기 냉각부를 관류한 상기 외기가 상기 제1 열수분교환기에서 상기 제1 조습용액과 열 및 수분 교환되어 냉각 및 제습된 후에 급기되고, 열 및 수분 교환된 상기 제1 조습용액은 상기 조습용액 저수조로 유입되며, 상기 제2 조습용액은 상기 제2 열수분교환기에서 상기 배기와 열 및 수분 교환되어 재생되고, 상기 외기가 상기 배기보다 저온인 경우에, 상기 제1 가열부를 관류한 상기 외기가 상기 제2 열수분교환기에서 상기 제2 조습용액과 열 및 수분 교환되어 가열 및 가습된 후에 급기될 수 있다.In addition, in the dedicated external air system according to an embodiment of the present invention, when the external air is higher than the exhaust, the external air flowing through the cooling unit is the first humidity control solution and heat and moisture in the first heat and moisture exchanger The first humidity control solution, which is exchanged and cooled and dehumidified, is supplied, and heat and moisture are exchanged, flows into the humidity control solution storage tank, and the second humidity control solution is exchanged with the exhaust in the second heat and moisture exchanger for heat and moisture. Regenerated, when the outdoor air is lower than the exhaust, the outdoor air that has flowed through the first heating part is heat and moisture exchanged with the second humidity control solution in the second heat and moisture exchanger to be heated and humidified, and then supplied air have.
또한, 본 발명의 실시예에 따른 외기전담 시스템에 있어서, 상기 외기가 상기 배기보다 고온인 경우에, 상기 온열원 중 일부가 상기 제1 흡열부로 유입되고, 상기 냉열원이 상기 1 방열부로 유입되어, 제백 효과에 의해 열전발전할 수 있다.In addition, in the dedicated outdoor system according to the embodiment of the present invention, when the outdoor air is higher than the exhaust, some of the heat sources are introduced into the first heat absorbing part, and the cooling heat source is introduced into the first heat dissipating part. , thermoelectric power can be generated by the Seebeck effect.
또한, 본 발명의 실시예에 따른 외기전담 시스템에 있어서, 상기 외기가 상기 배기보다 저온인 경우에, 상기 제1 가열부를 관류한 상기 외기가 2갈래로 분기되고, 분기된 일부의 상기 외기는 상기 제2 열수분교환기에서 가열 및 가습된 후에 급기되며, 분기된 다른 일부의 상기 외기는 상기 제1 열수분교환기로 공급되고, 상기 제2 조습용액과 열 및 수분 교환되어 가열 및 가습된 후에 급기될 수 있다.In addition, in the dedicated external air system according to an embodiment of the present invention, when the outdoor air is lower than the exhaust, the outdoor air that has flown through the first heating unit is branched into two, and the branched part of the outdoor air is the After being heated and humidified in the second heat and moisture exchanger, the air is supplied, and the branched outside air is supplied to the first heat and moisture exchanger, and heat and moisture are exchanged with the second moisture control solution to be supplied after heating and humidification. can
또한, 본 발명의 실시예에 따른 외기전담 시스템에 있어서, 상기 외기가 상기 배기보다 저온인 경우에, 상기 외기가 2갈래로 분기되고, 분기된 일부의 제1 외기는 상기 제1 가열부 및 상기 제2 열수분교환기를 순차적으로 관류하여 가열 및 가습된 후에 급기되며, 분기된 다른 일부의 제2 외기는 상기 제1 열수분교환기로 공급되고, 상기 제2 조습용액과 열 및 수분 교환되어 가열 및 가습된 후에 급기될 수 있다.In addition, in the dedicated external air system according to an embodiment of the present invention, when the outdoor air is lower than the exhaust temperature, the outdoor air is branched into two, and the branched first outdoor air is part of the first heating unit and the The second heat and moisture exchanger is sequentially flowed through to supply air after heating and humidification, and the second part of the branched second external air is supplied to the first heat and moisture exchanger, and heat and moisture are exchanged with the second humidity control solution to heat and After humidification, it can be supplied with air.
또한, 본 발명의 실시예에 따른 외기전담 시스템에 있어서, 상기 전열교환기에서 상기 제1 열수분교환기로 공급되는 상기 제2 외기를, 상기 온수 저장조로부터 공급되는 상기 온열원과 열교환시켜 가열하는 제2 가열부;를 더 포함할 수 있다.In addition, in the dedicated outdoor system according to an embodiment of the present invention, the second outdoor air supplied from the total heat exchanger to the first heat and moisture exchanger is heated by exchanging heat with the heat source supplied from the hot water storage tank. It may further include a heating unit.
본 발명의 특징 및 이점들은 첨부도면에 의거한 다음의 상세한 설명으로 더욱 명백해질 것이다.The features and advantages of the present invention will become more apparent from the following detailed description taken in conjunction with the accompanying drawings.
이에 앞서 본 명세서 및 청구범위에 사용된 용어나 단어는 통상적이고 사전적인 의미로 해석되어서는 아니 되며, 발명자가 그 자신의 발명을 가장 최선의 방법으로 설명하기 위해 용어의 개념을 적절하게 정의할 수 있다는 원칙에 입각하여 본 발명의 기술적 사상에 부합하는 의미와 개념으로 해석되어야만 한다.Prior to this, the terms or words used in the present specification and claims should not be construed in a conventional and dictionary meaning, and the inventor may properly define the concept of the term to describe his invention in the best way. Based on the principle that there is, it should be interpreted as meaning and concept consistent with the technical idea of the present invention.
본 발명에 따르면, 열전모듈 히트펌프가 액체식 제가습 장치의 보조 열원으로 사용되어 제가습 수용액의 온도를 조정함으로써, 액체식 제가습 장치의 불안정성 요소를 제거하여 효과적으로 외기를 이용한 실내 환기, 냉난방, 제습 및 가습이 가능하도록 운용될 수 있고, 실내에 추가적인 냉난방 기기의 설치 없이 쾌적한 실내 환경을 유지할 수 있다.According to the present invention, the thermoelectric module heat pump is used as an auxiliary heat source of the liquid type dehumidifying device to adjust the temperature of the dehumidifying aqueous solution, thereby removing the unstable element of the liquid type dehumidifying device and effectively using outside air for indoor ventilation, air conditioning, heating and cooling, It can be operated to enable dehumidification and humidification, and it is possible to maintain a comfortable indoor environment without installing additional heating and cooling devices in the room.
도 1은 본 발명의 제1 실시예에 따른 외기전담 시스템의 구성도이다.
도 2 내지 도 4는 본 발명의 제1 실시예에 따른 외기전담 시스템의 작동을 설명하는 설명도이다.
도 5는 본 발명의 제2 실시예에 따른 외기전담 시스템의 구성도이다.
도 6 내지 도 9는 본 발명의 제2 실시예에 따른 외기전담 시스템의 작동을 설명하는 설명도이다.
도 10은 본 발명의 제3 실시예에 따른 외기전담 시스템의 구성도이다.
도 11 내지 도 12는 본 발명의 제3 실시예에 따른 외기전담 시스템의 작동을 설명하는 설명도이다.1 is a block diagram of an external dedicated system according to a first embodiment of the present invention.
 2 to 4 are explanatory views for explaining the operation of the external dedicated system according to the first embodiment of the present invention.
 5 is a block diagram of an external dedicated system according to a second embodiment of the present invention.
 6 to 9 are explanatory views for explaining the operation of the external dedicated system according to the second embodiment of the present invention.
 10 is a block diagram of an external dedicated system according to a third embodiment of the present invention.
 11 to 12 are explanatory views for explaining the operation of the external dedicated system according to the third embodiment of the present invention.
본 발명의 목적, 특정한 장점들 및 신규 특징들은 첨부된 도면들과 연관되어지는 이하의 상세한 설명과 바람직한 실시예들로부터 더욱 명백해질 것이다. 본 명세서에서 각 도면의 구성요소들에 참조번호를 부가함에 있어서, 동일한 구성 요소들에 한해서는 비록 다른 도면상에 표시되더라도 가능한 한 동일한 번호를 가지도록 하고 있음에 유의하여야 한다. 또한, "제1", "제2" 등의 용어는 하나의 구성요소를 다른 구성요소로부터 구별하기 위해 사용되는 것으로, 구성요소가 상기 용어들에 의해 제한되는 것은 아니다. 이하, 본 발명을 설명함에 있어서, 본 발명의 요지를 불필요하게 흐릴 수 있는 관련된 공지 기술에 대한 상세한 설명은 생략한다.The objects, specific advantages and novel features of the present invention will become more apparent from the following detailed description taken in conjunction with the accompanying drawings and preferred embodiments. In the present specification, in adding reference numbers to the components of each drawing, it should be noted that only the same components are given the same number as possible even though they are indicated on different drawings. In addition, terms such as “first” and “second” are used to distinguish one component from another, and the component is not limited by the terms. Hereinafter, in describing the present invention, detailed descriptions of related known technologies that may unnecessarily obscure the subject matter of the present invention will be omitted.
이하, 첨부된 도면을 참조하여 본 발명의 바람직한 실시형태를 상세히 설명하기로 한다.Hereinafter, preferred embodiments of the present invention will be described in detail with reference to the accompanying drawings.
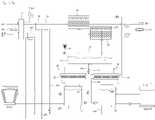
도 1은 본 발명의 제1 실시예에 따른 외기전담 시스템의 구성도이고, 도 2 내지 도 4는 본 발명의 제1 실시예에 따른 외기전담 시스템의 작동을 설명하는 설명도이다.1 is a block diagram of a dedicated outdoor system according to a first embodiment of the present invention, and FIGS. 2 to 4 are explanatory diagrams for explaining the operation of an outdoor dedicated system according to a first embodiment of the present invention.
도 1 내지 도 4에 도시된 바와 같이, 본 발명의 제1 실시예에 따른 외기전담 시스템은 외기를 냉각 및 제습, 또는 가열 및 가습하여 실내로 급기하는 외기전담 시스템에 있어서, 실내에서 배출되는 배기와 외기를 열교환시키는 전열교환기(10), 조습용액(HS)을 저장하는 조습용액 저장조(20), 조습용액 저장조(20)에 저장된 조습용액(HS) 중 일부인 제1 조습용액(HS1)이 유입되는 제1 흡열부(31), 냉열원(CW)이 유입되는 제1 방열부(33), 및 제1 흡열부(31)와 제1 방열부(33) 사이에 배치되는 제1 열전소자(35)를 포함하고, 펠티어 효과를 이용해 제1 조습용액(HS1)을 냉각하는 제1 열전히트펌프(30), 온열원(HW)이 유입되는 제2 흡열부(41), 조습용액 저장조(20)에 저장된 조습용액(HS) 중 다른 일부인 제2 조습용액(HS2)이 유입되는 제2 방열부(43), 및 제2 흡열부(41)와 제2 방열부(43) 사이에 배치되는 제2 열전소자(45)를 포함하고, 펠티어 효과를 이용해 제2 조습용액(HS2)을 가열하는 제2 열전히트펌프(40), 전열교환기(10)에서 열교환된 외기 및 배기 중 어느 하나인 제1 유입공기와, 냉각된 제1 조습용액(HS1) 및 가열된 제2 조습용액(HS2) 중 어느 하나 사이에 열 및 수분을 교환시켜 각각 배출하는 제1 열수분교환기(50), 및 제1 유입공기와 다른 하나인 제2 유입공기와, 가열된 제2 조습용액(HS2) 사이에 열 및 수분을 교환시켜 각각 배출하는 제2 열수분교환기(60)를 포함한다.As shown in FIGS. 1 to 4 , the external exclusive system according to the first embodiment of the present invention is an external exclusive system for cooling and dehumidifying, or heating and humidifying, external air to supply air into the room, the exhaust discharged from the room The first humidity control solution (HS1), which is a part of the total heat exchanger (10) for exchanging heat with the outside air, the humidity control solution storage tank (20) for storing the humidity control solution (HS), and the humidity control solution (HS) stored in the humidity control solution storage tank (20) flows in A first
본 발명은 외기를 냉각 및 제습, 또는 가열 및 가습하여 실내로 공급함으로써, 환기와 냉각/제습 및 가열/가습을 수행하는 공기조화 시스템인 외기전담 시스템에 관한 것으로, 전열교환기(10), 조습용액 저장조(20), 제1 열전히트펌프(30), 제2 열전히트펌프(40), 제1 열수분교환기(50), 및 제2 열수분교환기(60)를 포함한다.The present invention relates to an outdoor dedicated system, which is an air conditioning system that performs ventilation, cooling/dehumidification, and heating/humidification by cooling and dehumidifying, or heating and humidifying, external air and supplying it to a room. It includes a
전열교환기(10)는 실내에서 배출되는 실내공기인 배기와, 실외에서 실내로 급기되는 외기를 열교환시켜, 1차적으로 외기의 온도 및 습도를 조절한다. 여기서, 외기가 배기보다 고온의 경우, 예를 들면 여름철의 경우, 전열교환기(10)를 통과한 외기는 냉각되고 제습된다. 반대로 외기가 배기보다 저온인 경우, 예를 들면 겨울철의 경우, 전열교환기(10)를 통과한 외기는 가열되고 가습된다. 전열교환기(10)를 통과하면서 1차적으로 온도 및 습도가 조절된 외기는 제1 열수분교환기(50) 및/또는 제2 열수분교환기(60)를 관류하면서 추가적으로 온도 및 습도가 제어된다.The total heat exchanger 10 exchanges heat between the exhaust, which is the indoor air discharged from the room, and the outdoor air, which is supplied from the outside to the room, to primarily control the temperature and humidity of the outside air. Here, when the outside air is hotter than the exhaust, for example, in summer, the outside air passing through the
조습용액 저장조(20)는 조습용액(HS)을 저장하는 저장조이다. 여기서, 조습용액(HS)은 염화리튬(LiCl), 염화칼슘(CaCl2), 브롬화리튬(LiBr) 등과 같은 조습제가 용해된 용액으로서, 조습용액 저장조(20)에 저장되었다가 제1 열수분교환기(50) 및/또는 제2 열수분교환기(60)를 관류하여 다시 조습용액 저장조(20)로 복귀된다. 조습용액(HS)과 공기가 접촉하는 경우, 수증기 분압차에 의해 조습용액(HS)은 공기에 열 및 수분을 공급하거나, 공기로부터 열 및 수분을 흡수할 수 있다. 이러한 조습용액(HS)의 수증기 분압은 농도가 낮아질수록, 온도가 높아질수록 높아지고, 조습용액(HS)의 수증기 분압이 접촉하는 공기의 수증기 분압보다 높은 경우, 수분이 그 공기로 공급되어 공기가 가습될 수 있다. 반대로, 조습용액(HS)의 수증기 분압이 공기의 수증기 분압보다 낮아지면, 수분이 조습용액(HS)으로 공급되어 공기가 제습될 수 있다. 한편, 조습용액 저장조(20)에 저장된 제습용액은 제1 열수분교환기(50) 및/또는 제2 열수분교환기(60)로 공급되기에 앞서, 그 중 일부인 제1 조습용액(HS1)은 제1 열전히트펌프(30)를, 다른 일부인 제2 조습용액(HS2)은 제2 열전히트펌프(40)를 각각 관류한다.The humidity control
제1 열전히트펌프(30)는 펠티어 효과(peltier effect)를 이용해 제1 조습용액(HS1)을 냉각한다. 펠티어 효과는 두 종류의 도체를 결합하고 전류를 흐르도록 할 때, 한 쪽의 접점은 발열하여 온도가 상승하고, 다른 쪽의 접점에서는 흡열하여 온도가 낮아지는 현상이다. 제1 열전히트펌프(30)는 제1 열전소자(35)를 사이에 두고, 제1 흡열부(31)와 제1 방열부(33)가 마주보도록 배치되며, 전류를 공급하는 전원(도시되지 않음)과 연결된다. 여기서, 제1 조습용액(HS1)이 제1 흡열부(31)를 통과하고, 냉열원(CW)이 제1 방열부(33)를 통과한다. 이때, 전류가 인가되면 제1 열전소자(35)의 펠티어 효과로 인해 제1 조습용액(HS1)이 냉각된다. 이렇게 냉각된 제1 조습용액(HS1)은 제1 열수분교환기(50)로 공급될 수 있다.The first
한편, 냉열원(CW)은 냉수로서, 냉수 저장조(70)에 저장될 수 있다. 여기서, 냉수는 냉각탑에서 증발 냉각을 통해 만들어져 냉수 저장조(70)로 공급될 수 있다.Meanwhile, the cooling heat source CW may be stored in the cold
제2 열전히트펌프(40)는 펠티어 효과를 이용해 제2 조습용액(HS2)을 가열한다. 제2 열전히트펌프(40)는 제2 흡열부(41)와 제2 방열부(43) 사이에 제2 열전소자(45)가 배치되고, 전류를 공급하는 전원(도시되지 않음)과 연결된다. 여기서, 온열원(HW)이 제2 흡열부(41)를 통과하고, 제2 조습용액(HS2)이 제2 방열부(43)를 통과한다. 이때, 전류가 인가되면 제2 열전소자(45)의 펠티어 효과로 인해 제2 조습용액(HS2)이 가열된다. 이렇게 가열된 제2 조습용액(HS2)은 제1 열수분교환기(50) 및 제2 열수분교환기(60)로, 또는 제2 열수분교환기(60)로 공급될 수 있다.The second
한편, 온열원(HW)은 온수로서, 온수 저장조(80)에 저장될 수 있다. 여기서, 온수는 소형 열병합발전 시스템의 폐열로부터 만들어질 수 있다. 소형 열병합발전 시스템은 연료전지, 유기랭킹사이클, 태양광/열 패널 등 전기 생산 시 열이 발생하는 시스템 중 100 kW 미만의 소형 발전 시스템이다. 여기서 발생하는 60 ~ 70℃ 미만의 폐열은 산업용, 주거용으로 직접 활용하기에 온도가 낮지만, 본 발명에서는 이를 활용할 수 있다. 소형 열병합발전 시스템은 전기를 생산하기 위해 항상 운전되는데 반해, 본 발명의 외기전담 시스템에서 온수 저장조(80)의 온열원(HW)은 항상 사용되지 않으므로, 온열원(HW)이 지속적으로 고온으로 유지되는 경우에는 소형 열병합발전 시스템으로부터 공급되는 온열원(HW)의 온도를 방열기(도시되지 않음)를 통해 주변 온도만큼 냉각시킬 수 있다.Meanwhile, the heat source HW is hot water and may be stored in the hot
제1 열수분교환기(50)는 유입공기와 조습용액(HS)을 접촉시켜 유입공기와 조습용액(HS) 사이에 열 및 수분을 교환시키는 장치이다. 이러한 열수분교환기의 내부에는 유입공기와 조습용액(HS)의 접촉 면적을 증대시키는 여재가 배치될 수 있다. 제1 열수분교환기(50)로 유입되는 제1 유입공기는, 전열교환기(10)에서 열교환된 외기 및 배기 중 어느 하나이다. 한편, 상기 제1 유입공기와 열 및 수분 교환되는 조습용액(HS)은, 제1 열전히트펌프(30)에서 냉각된 제1 조습용액(HS1)이거나, 또는 제2 열전히트펌프(40)에서 가열된 제2 조습용액(HS2)일 수 있다. 여기서, 열 및 수분 교환된 외기는 실내로 급기되고, 조습용액(HS)은 조습용액 저장조(20)로 복귀된다.The first heat and
제2 열수분교환기(60)는 유입공기와 조습용액(HS)을 접촉시켜 유입공기와 조습용액(HS) 사이에 열 및 수분을 교환시키는 장치이고, 그 내부에는 여재가 배치될 수 있다. 제2 열수분교환기(60)로 유입되는 제2 유입공기는, 전열교환기(10)에서 열교환된 외기 및 배기 중 상기 제1 유입공기가 아닌 다른 하나이고, 외기가 유입된 경우에는 열 및 수분 교환된 후에 실내로 급기된다. 한편, 상기 제2 유입공기와 열 및 수분 교환되는 조습용액(HS)은, 제2 열전히트펌프(40)에서 가열된 제2 조습용액(HS2)으로, 열 및 수분 교환된 후에 조습용액 저장조(20)로 복귀된다.The second heat and
이하에서는 냉각/제습 모드, 및 가열/가습 모드에 따른 운전 방식에 대해 설명한다.Hereinafter, an operation method according to the cooling/dehumidifying mode and the heating/humidifying mode will be described.
도 2를 참고로, 냉각/제습 모드는 여름철과 같이 외기가 배기보다 고온의 경우에 외기를 냉각 및 제습하여 급기하는 운전 방식이다. 냉각/제습 모드에서 외기는 전열교환기(10)에서 실내공기(배기)와의 전열 교환을 통해 1차적으로 냉각 및 제습된 후, 제1 열수분교환기(50)로 공급된다. 또한, 조습용액 저장조(20)에서 제1 열전히트펌프(30)를 거치면서 냉각된 제1 조습용액(HS1)이 제1 열수분교환기(50)로 공급되어, 외기는 다시 한번 냉각 및 제습되어 실내로 급기된다. 한편, 제1 열수분교환기(50)를 통과한 제1 조습용액(HS1)은 다시 조습용액 저장조(20)로 복귀된다. 이때, 외기를 제습한 제1 조습용액(HS1)은 농도가 묽어지기 때문에 다시 농도를 재생할 필요가 있다. 따라서, 조습용액 저장조(20)로부터 제2 열전히트펌프(40)를 거치면서 가열된 제2 조습용액(HS2), 및 전열교환기(10)를 통과한 배기가 각각 제2 열수분교환기(60)로 공급되고, 여기서 제2 조습용액(HS2)의 수분이 배기로 전달되어 제2 조습용액(HS2)이 재생된 후 조습용액 저장조(20)로 복귀된다.Referring to FIG. 2 , the cooling/dehumidifying mode is a driving method of supplying air by cooling and dehumidifying the outside air when the outside air is hotter than the exhaust, such as in summer. In the cooling/dehumidifying mode, outside air is primarily cooled and dehumidified through total heat exchange with indoor air (exhaust) in the
도 3을 참고로, 가열/가습 모드는 겨울철과 같이 외기가 배기보다 저온의 경우에 외기를 가열 및 가습하여 급기하는 운전 방식이다. 가열/가습 모드에서 외기는 전열교환기(10)에서 실내공기(배기)와의 전열 교환을 통해 1차적으로 가열 및 가습된 후, 제1 열수분교환기(50)로 공급된다. 여기서, 조습용액 저장조(20)에서 제2 열전히트펌프(40)를 거치면서 가열된 제2 조습용액(HS2)이 제1 열수분교환기(50)로 공급되고, 제2 조습용액(HS2)으로부터 열 및 수분이 외기로 전달되어 외기가 가열 및 가습된 후에 급기된다. 제1 열수분교환기(50)를 통과한 제2 조습용액(HS2)은 조습용액 저장조(20)로 복귀된다. 이때, 제2 조습용액(HS2)의 농도가 상승하므로, 시수를 조습용액 저장조(20)에 공급하여 그 농도를 적정 수준으로 낮출 수 있다. 한편, 제2 열수분교환기(60)로는 조습용액(HS)이 공급되지 않고, 전열교환기(10)를 통과한 배기는 제2 열수분교환기(60)를 거쳐 그대로 배출된다.Referring to FIG. 3 , the heating/humidifying mode is a driving method in which outdoor air is heated and humidified to supply air when the outdoor air is lower than exhaust, such as in winter. In the heating/humidification mode, outside air is primarily heated and humidified through total heat exchange with indoor air (exhaust) in the
또한, 가열/가습 모드에서, 외기를 가열 및 가습할 때에 제1 열전히트펌프(30)로 제1 조습용액(HS1) 및 냉열원(CW)이 공급될 필요가 없다. 이에, 도 4와 같이, 외기의 가열 및 가습에 사용되지 않는 제1 열전히트펌프(30)를 이용해 열전발전을 할 수 있다. 구체적으로, 가열/가습 모드에서 제2 열전히트펌프(40)로 공급되는 온열원(HW) 중 일부가 제1 열전히트펌프(30)의 제1 흡열부(31)로 유입되도록, 제1 방열부(33)로 냉열원(CW)이 유입되도록 유도하여, 제1 열전소자(35) 사이에 온도차를 형성함으로써 제백 효과에 의해 열전발전할 수 있다. 여기서, 제1 흡열부(31)로 냉열원(CW)이, 제1 방열부(33)로 온열원(HW)이 유입되어도 무방하고, 반드시 냉열원(CW)은 냉수 저장조(70)로부터, 온열원(HW)은 온수 저장조(80)로부터 공급되어야 하는 것은 아니다.In addition, in the heating/humidification mode, it is not necessary to supply the first humidity control solution HS1 and the cooling heat source CW to the first
도 5는 본 발명의 제2 실시예에 따른 외기전담 시스템의 구성도이고, 도 6 내지 도 9는 본 발명의 제2 실시예에 따른 외기전담 시스템의 작동을 설명하는 설명도이다.5 is a block diagram of a dedicated outdoor system according to a second embodiment of the present invention, and FIGS. 6 to 9 are explanatory diagrams for explaining the operation of an outdoor dedicated system according to a second embodiment of the present invention.
도 5 내지 도 8에 도시된 바와 같이, 본 발명의 제2 실시예에 따른 외기전담 시스템은 냉각부(90), 및 제1 가열부(100)를 더 포함할 수 있다.5 to 8 , the external exclusive system according to the second embodiment of the present invention may further include a
냉각부(90)는 전열교환기(10)에서 제1 열수분교환기(50)로 공급되는 제1 유입공기를 냉수 저장조(70)로부터 공급되는 냉열원(CW)과 열교환시켜 냉각한다. 여기서, 냉각부(90)는 냉각코일로 구현될 수 있지만, 반드시 이에 한정되는 것은 아니다.The cooling
제1 가열부(100)는 전열교환기(10)에서 제2 열수분교환기(60)로 공급되는 제2 유입공기를 상기 온수 저장조(80)로부터 공급되는 온열원(HW)과 열교환시켜 가열한다. 여기서, 제1 가열부(100)는 히팅코일로 구현될 수 있지만, 반드시 이에 한정되는 것은 아니다.The
도 6를 참고로, 냉각/제습 모드에서, 전열교환기(10)에서 실내공기(배기)와의 열교환을 통해 1차 냉각 및 제습된 외기는 냉각부(90)를 관류하면서 추가적으로 냉각된다. 냉각부(90)를 거친 외기는 제1 열수분교환기(50)로 공급되고, 여기서 조습용액 저장조(20)에서 제1 열전히트펌프(30)를 거쳐 냉각된 제1 조습용액(HS1)과의 열 및 수분 교환을 통해 다시 냉각 및 제습된 후 급기된다. 냉각부(90)에서 외기가 추가적으로 냉각됨에 따라 제1 열수분교환기(50)에서의 제습효율이 향상된다. 또한, 전열교환기(10)에서 열교환된 실내공기는 제1 가열부(100)를 관류하면서 추가적으로 가열된 후에 제2 열수분교환기(60)로 공급되고, 여기서 제2 열전히트펌프(40)를 거쳐 가열된 제2 조습용액(HS2)과 열 및 수분 교환되어 제2 조습용액(HS2)을 재생한다. 이때, 실내공기가 추가 가열됨에 따라 실내공기의 상대습도가 낮아지고, 전달받을 수 있는 수증기량이 증대되므로, 제2 열수분교환기(60)에서의 재생효율이 향상된다.Referring to FIG. 6 , in the cooling/dehumidifying mode, the external air that has been primarily cooled and dehumidified through heat exchange with indoor air (exhaust) in the
도 7을 참고로, 가열/가습 모드에서, 전열교환기(10)를 통과하면서 1차 가열 및 가습된 외기는 제1 가열부(100)를 관류하면서 추가적으로 가열된 후에, 제2 열수분교환기(60)로 유입되고, 여기서 제2 열전히트펌프(40)를 거쳐 가열된 제2 조습용액(HS2)과 열 및 수분 교환되어 가열 및 가습된다. 이렇게 가열 및 가습된 외기는 실내로 급기되고, 제2 조습용액(HS2)은 조습용액 저장조(20)로 복귀된다. 제1 가열부(100)를 통해 외기가 추가 가열된 후 제2 열수분교환기(60)로 공급되는 경우, 외기의 상대습도가 낮아지고, 전달받을 수 있는 수증기량이 증대되므로, 제2 열수분교환기(60)에서의 가습효율이 향상된다. 한편, 가열/가습 모드에서는 냉각부(90)로 냉열원(CW)이 공급되지 않고, 제1 열수분교환기(50)로 제습용액이 공급되지 않으며, 전열교환기(10)를 통과한 실내공기는 냉각부(90) 및 제1 열수분교환기(50)를 단순 통과하여 배기된다.Referring to FIG. 7 , in the heating / humidification mode, the first heated and humidified outdoor air passing through the
여기서, 외기는 냉각/제습 모드에서는 냉각부(90)를 관류하고 제1 열수분교환기(50)를 거쳐 배기되고, 가열/가습 모드에서는 제1 가열부(100)를 관류하고 제2 열수분교환기(60)를 거쳐 배기되므로, 외기의 유로 변경이 가능하도록 관로 설비를 구현한다. 일례로, 전열교환기(10)로 유입되기 전 외기와 실내공기의 유로를 변경하는 제1 댐퍼(D1)를, 제1 열수분교환기(50) 및 제2 열수분교환기(60)를 통과한 외기와 배기의 유로를 변경하는 제2 댐퍼(D2)가 설치될 수 있다. 다만, 상기 관로 설비가 반드시 제1 댐퍼(D1) 및 제2 댐퍼(D2)로 한정되는 것은 아니다.Here, outside air flows through the cooling
한편, 본 발명의 제1 실시예에서와 같이, 가열/가습 모드에서 제1 열전히트펌프(30)를 이용해 열전발전할 수 있다.Meanwhile, as in the first embodiment of the present invention, thermoelectric power may be generated using the first
또한, 가열/가습 모드에서, 본 발명의 제2 실시예에 따른 외기전담 시스템은 제2 열수분교환기(60)뿐만 아니라, 제1 열수분교환기(50)도 함께 이용해 외기를 가열 및 가습한 후에 급기할 수 있다. 이 경우 열 및 수분 교환 면적이 증가하므로, 가습 효율이 향상될 수 있다.In addition, in the heating/humidifying mode, the external dedicated system according to the second embodiment of the present invention uses not only the second heat and
일례로, 도 8과 같이, 제1 가열부(100)를 관류한 외기가 2갈래로 분기되고, 분기된 일부의 외기는 제2 열전히트펌프(40)에서 가열된 제2 조습용액(HS2)이 공급되는 제2 열수분교환기(60)를 통과하면서 가열 및 가습된 후 급기되고, 분기된 다른 일부의 외기는 제1 열수분교환기(50)로 공급될 수 있다. 여기서, 제1 열수분교환기(50)로 제2 열전히트펌프(40)에서 가열된 제2 조습용액(HS2)이 공급됨으로써, 제2 외기도 가열 및 가습된 후 급기될 수 있다. 실내공기는 전열교환기를 통과한 후에 배기될 수 있다.For example, as shown in FIG. 8 , the outdoor air that has flowed through the
다른 예로, 도 9와 같이, 전열교환기(10)를 통과하기 전이나, 통과한 후의 외기가 2갈래로 분기되고, 분기된 일부의 외기는 제1 가열부(100) 및 제2 열수분교환기(60)를 순차적으로 관류하면서 가열 및 가습된 후에 급기되고, 다른 일부의 외기는 제1 열수분교환기(50)로 공급될 수 있다. 여기서, 제1 열수분교환기(50)로 제2 열전히트펌프(40)에서 가열된 제2 조습용액(HS2)이 공급됨으로써, 제2 외기도 가열 및 가습된 후 급기될 수 있다. 이때, 전열교환기(10)에서 제1 열수분교환기(50)로 공급되는 제2 외기를 가열하는 제2 가열부(110)가 설치될 수도 있다. 제2 가열부(110)는 온수 저장조(80)로부터 공급되는 온열원(HW)과 제2 외기를 열교환시켜 제2 외기를 가열할 수 있다. 이러한 제2 가열부(110)는 히팅코일로 구현될 수 있지만, 반드시 이에 한정되는 것은 아니다.As another example, as shown in Figure 9, the outside air before or after passing through the
도 10은 본 발명의 제3 실시예에 따른 외기전담 시스템의 구성도이고, 도 11 내지 도 12는 본 발명의 제3 실시예에 따른 외기전담 시스템의 작동을 설명하는 설명도이다.10 is a block diagram of a dedicated outdoor system according to a third embodiment of the present invention, and FIGS. 11 to 12 are explanatory diagrams for explaining the operation of an outdoor dedicated system according to a third embodiment of the present invention.
본 발명의 제2 실시예에 따른 외기전담 시스템의 냉각부(90) 및 제1 가열부(100)는 냉수 저장조(70) 및 온수 저장조(80)로부터 직접 냉열원(CW)과 온열원(HW)을 공급받는 반면, 도 10 내지 도 13에 도시된 바와 같이 본 발명의 제3 실시예에 따른 외기전담 시스템은 제1 열전히트펌프(30) 및 제2 열전히트펌프(40)를 거쳐 냉열원(CW)과 온열원(HW)을 공급받을 수 있다. 이하에서는 제2 실시예와의 차이점 위주로 설명하고, 중복되는 사항에 대해서는 설명을 생략하거나 간단하게만 기재한다.The cooling
여기서, 제1 열전히트펌프(30)의 제1 흡열부(31)는 제1 제습용액이 통과하는 제1 흡열유로, 및 냉수 저장조(70)로부터 공급되는 일부의 냉열원(CW)이 통과하는 제2 흡열유로를 포함한다. 제2 흡열유로를 통과하면서 냉각된 냉열원(CW)은 냉각부(90)를 관류한 후에 냉수 저장조(70)로 복귀된다.Here, the first
또한, 제2 열전히트펌프(40)의 제1 방열부(33)는 제2 제습용액이 통과하는 제1 방열유로, 및 온수 저장조(80)로부터 공급되는 일부의 온열원(HW)이 통과하는 제2 방열유로를 포함한다. 제2 방열유로를 통과하면서 가열된 온열원(HW)은 제1 가열부(100)를 관류한 후에 다시 온수 저장조(80)로 복귀된다.In addition, the first
도 11을 참고로, 냉각/제습 모드에서, 전열교환기(10)에서 실내공기(배기)와의 열교환을 통해 1차 냉각 및 제습된 외기는, 냉각부(90)에서 제2 흡열유로로부터 공급된 냉열원(CW)과 열교환되어 추가적으로 냉각되고, 제1 열수분교환기(50)에서 제1 흡열유로로부터 공급되어 냉각된 제1 조습용액(HS1)과의 열 및 수분 교환을 통해 다시 냉각 및 제습된 후 급기된다. 또한, 전열교환기(10)에서 열교환된 실내공기는, 제1 가열부(100)에서 제2 방열유로로부터 공급된 온열원(HW)과 열교환되어 추가적으로 가열되고, 제2 열수분교환기(60)에서 제1 방열유로로부터 공급되어 가열된 제2 조습용액(HS2)과 열 및 수분 교환되어 제2 조습용액(HS2)을 재생한다.Referring to FIG. 11 , in the cooling/dehumidifying mode, the outdoor air primarily cooled and dehumidified through heat exchange with indoor air (exhaust) in the
도 12를 참고로, 가열/가습 모드에서, 전열교환기(10)를 통과하면서 1차 가열 및 가습된 외기는, 제1 가열부(100)에서 제2 방열유로로부터 공급된 온열원(HW)과 열교환되어 추가적으로 가열되고, 제2 열수분교환기(60)에서 제1 방열유로로부터 공급된 제2 조습용액(HS2)과 열 및 수분 교환되어 가열 및 가습된다. 이렇게 가열 및 가습된 외기는 실내로 급기되고, 제2 조습용액(HS2)은 조습용액 저장조(20)로 복귀된다.Referring to FIG. 12 , in the heating/humidifying mode, the primary heated and humidified external air passing through the
한편, 가열/가습 모드에서 제1 열전히트펌프(30)를 이용한 열전발전이 가능하다.Meanwhile, thermoelectric power generation using the first
또한, 가열/가습 모드에서, 제2 열수분교환기(60)뿐만 아니라, 제1 열수분교환기(50)도 함께 이용해 외기를 가열 및 가습한 후에 급기할 수도 있다.In addition, in the heating/humidification mode, not only the second
상기 외기, 배기, 조습용액, 냉열원, 및 온열원의 유동은 관로, 및 밸브 등을 통해 제어되고, 이를 제어하기 위한 전자설비로서 컨트롤러가 마련될 수 있다.The flow of the external air, exhaust, humidity control solution, cooling heat source, and hot heat source is controlled through a pipe line, a valve, and the like, and a controller may be provided as an electronic device for controlling the flow.
이상 본 발명을 구체적인 실시예를 통하여 상세히 설명하였으나, 이는 본 발명을 구체적으로 설명하기 위한 것으로, 본 발명은 이에 한정되지 않으며, 본 발명의 기술적 사상 내에서 당 분야의 통상의 지식을 가진 자에 의해 그 변형이나 개량이 가능함이 명백하다.Although the present invention has been described in detail through specific examples, it is intended to describe the present invention in detail, and the present invention is not limited thereto, and by those of ordinary skill in the art within the technical spirit of the present invention. It is clear that the modification or improvement is possible.
본 발명의 단순한 변형 내지 변경은 모두 본 발명의 영역에 속한 것으로 본 발명의 구체적인 보호 범위는 첨부된 특허청구범위에 의하여 명확해질 것이다.All simple modifications and variations of the present invention belong to the scope of the present invention, and the specific protection scope of the present invention will be made clear by the appended claims.
10: 전열교환기 20: 조습용액 조장조
30: 제1 열전히트펌프 31: 제1 흡열부
33: 제1 방열부 35: 제1 열전소자
40: 제2 열전히트펌프 41: 제2 흡열부
43: 제2 방열부 45: 제2 열전소자
50: 제1 열수분교환기 60: 제2 열수분교환기
70: 냉수 저장조 80: 온수 저장조
90: 냉각부 100: 제1 가열부
110: 제2 가열부 HS: 조습용액
HS1: 제1 조습용액 HS2: 제2 조습용액
CW: 냉열원 HW: 온열원
D1: 제1 댐퍼 D2: 제2 댐퍼10: total heat exchanger 20: humidity control solution control tank
 30: first thermoelectric heat pump 31: first heat absorbing part
 33: first heat dissipation unit 35: first thermoelectric element
 40: second thermoelectric heat pump 41: second heat absorbing part
 43: second heat dissipation unit 45: second thermoelectric element
 50: first heat water exchanger 60: second heat water exchanger
 70: cold water storage tank 80: hot water storage tank
 90: cooling unit 100: first heating unit
 110: second heating unit HS: humidity control solution
 HS1: 1st humidity control solution HS2: 2nd humidity control solution
 CW: Cooling heat source HW: Warm heat source
 D1: first damper D2: second damper
| Application Number | Priority Date | Filing Date | Title | 
|---|---|---|---|
| KR1020210081446AKR102456292B1 (en) | 2021-06-23 | 2021-06-23 | Dedicated outdoor air system | 
| Application Number | Priority Date | Filing Date | Title | 
|---|---|---|---|
| KR1020210081446AKR102456292B1 (en) | 2021-06-23 | 2021-06-23 | Dedicated outdoor air system | 
| Publication Number | Publication Date | 
|---|---|
| KR102456292B1true KR102456292B1 (en) | 2022-10-18 | 
| Application Number | Title | Priority Date | Filing Date | 
|---|---|---|---|
| KR1020210081446AActiveKR102456292B1 (en) | 2021-06-23 | 2021-06-23 | Dedicated outdoor air system | 
| Country | Link | 
|---|---|
| KR (1) | KR102456292B1 (en) | 
| Publication number | Priority date | Publication date | Assignee | Title | 
|---|---|---|---|---|
| KR20040026242A (en)* | 2002-09-23 | 2004-03-31 | 주식회사 에어필 | Liquid dessicant cooling system using heat pump | 
| KR20040101635A (en) | 2003-05-26 | 2004-12-03 | 한국생산기술연구원 | Hybrid dehumidified cooling system | 
| KR20080092917A (en)* | 2005-12-07 | 2008-10-16 | 아디르 세갈, 엘티디. | Systems and methods for controlling the water content of fluids | 
| KR20130113333A (en)* | 2010-05-25 | 2013-10-15 | 7에이씨 테크놀로지스, 아이엔씨. | Methods and systems using liquid desiccants for air-conditioning and other processes | 
| KR20180112434A (en)* | 2017-04-04 | 2018-10-12 | 한양대학교 산학협력단 | Dehumidifier and Dehumidifier System | 
| Publication number | Priority date | Publication date | Assignee | Title | 
|---|---|---|---|---|
| KR20040026242A (en)* | 2002-09-23 | 2004-03-31 | 주식회사 에어필 | Liquid dessicant cooling system using heat pump | 
| KR20040101635A (en) | 2003-05-26 | 2004-12-03 | 한국생산기술연구원 | Hybrid dehumidified cooling system | 
| KR20080092917A (en)* | 2005-12-07 | 2008-10-16 | 아디르 세갈, 엘티디. | Systems and methods for controlling the water content of fluids | 
| KR20130113333A (en)* | 2010-05-25 | 2013-10-15 | 7에이씨 테크놀로지스, 아이엔씨. | Methods and systems using liquid desiccants for air-conditioning and other processes | 
| KR20180112434A (en)* | 2017-04-04 | 2018-10-12 | 한양대학교 산학협력단 | Dehumidifier and Dehumidifier System | 
| Publication | Publication Date | Title | 
|---|---|---|
| US9518765B2 (en) | System and method for controlling temperature and humidity in multiple spaces using liquid desiccant | |
| JP2000111096A (en) | Desiccant air conditioning system | |
| KR20100005326A (en) | Solar cooling and heating system | |
| JP2012207872A (en) | Air-conditioning system | |
| JP2015048945A (en) | Desiccant air conditioner and desiccant air conditioning method | |
| JP2015014379A (en) | Air conditioning system | |
| KR101525610B1 (en) | Eco-friendly 100% outdoor air conditioning system and air conditioning method based on dehumidification/evaporative cooling | |
| KR102385113B1 (en) | Air conditioning system and controlling method thereof | |
| US7827812B2 (en) | Humidity controller | |
| KR20160037028A (en) | Eco-friendly 100% outdoor air conditioning system and air conditioning method based on dehumidification/evaporative cooling | |
| KR102781395B1 (en) | Heat pump system capable of dehumidification and humidification | |
| KR20120021519A (en) | Low temp hot water air conditioning & generating system | |
| KR102456292B1 (en) | Dedicated outdoor air system | |
| WO2007080979A1 (en) | Dehumidifying air conditioning system | |
| JP2007327693A (en) | Dehumidification air conditioning system | |
| JP6673670B2 (en) | Thermal waste heat storage system and method of operating thermal waste heat storage system | |
| JP5548921B2 (en) | Heat source air conditioner | |
| JP7036491B2 (en) | Humidity control device | |
| JP2004257677A (en) | Coordination system of composite heat source system and air conditioning system | |
| JP2011141057A (en) | Desiccant type ventilation fan | |
| JP5822652B2 (en) | Cogeneration system | |
| CN1168962A (en) | air conditioner | |
| CN216620342U (en) | Absorption refrigeration and solution dehumidification system and air conditioner | |
| KR102382588B1 (en) | Heat pump system | |
| JP2015114039A (en) | Air conditioning system | 
| Date | Code | Title | Description | 
|---|---|---|---|
| PA0109 | Patent application | St.27 status event code:A-0-1-A10-A12-nap-PA0109 | |
| PA0201 | Request for examination | St.27 status event code:A-1-2-D10-D11-exm-PA0201 | |
| D13-X000 | Search requested | St.27 status event code:A-1-2-D10-D13-srh-X000 | |
| D14-X000 | Search report completed | St.27 status event code:A-1-2-D10-D14-srh-X000 | |
| PE0701 | Decision of registration | St.27 status event code:A-1-2-D10-D22-exm-PE0701 | |
| GRNT | Written decision to grant | ||
| PR0701 | Registration of establishment | St.27 status event code:A-2-4-F10-F11-exm-PR0701 | |
| PR1002 | Payment of registration fee | St.27 status event code:A-2-2-U10-U11-oth-PR1002 Fee payment year number:1 | |
| PG1601 | Publication of registration | St.27 status event code:A-4-4-Q10-Q13-nap-PG1601 | |
| PR1001 | Payment of annual fee | St.27 status event code:A-4-4-U10-U11-oth-PR1001 Fee payment year number:4 |