


技术领域technical field
本实用新型属于电力设备领域,具体涉及一种电力巡检车模块化储物柜装置。The utility model belongs to the field of electric equipment, in particular to a modular storage cabinet device for an electric power inspection vehicle.
背景技术Background technique
储物柜主要用于存储不同的物品,分门别类,方便人们的使用。传统的储物柜更多应用于规则且相对有一定空间的地方,如办公场所、商场、居家房间等。Lockers are mainly used to store different items, which are classified into categories to facilitate people's use. Traditional lockers are more used in places with rules and relatively certain space, such as office spaces, shopping malls, home rooms, etc.
然而对于巡检车后备箱这种空间有限且非规则的地方,现有传统的储物柜无法充分利用空间,取物不方便甚至无法操作,并且无法对储物柜的物品进行识别、统计和指示。However, for a place with limited and irregular space such as the trunk of an inspection vehicle, the existing traditional lockers cannot make full use of the space, it is inconvenient or even inoperable to retrieve items, and it is impossible to identify, count and analyze the items in the lockers. instruct.
发明内容SUMMARY OF THE INVENTION
本实用新型的目的在于提供一种电力巡检车模块化储物柜装置,该装置有利于对电力巡检工器具进行精细化管理。The purpose of the utility model is to provide a modular locker device for an electric power inspection vehicle, which is conducive to the refined management of electric power inspection tools.
为实现上述目的,本实用新型采用的技术方案是:一种电力巡检车模块化储物柜装置,包括与电力巡检车后备箱相适应以嵌入其中的储物柜主体框架、嵌入式计算机和触控屏交互终端,所述储物柜主体框架上设有田字形的4个滑轨抽拉柜,每个滑轨抽拉柜的前端面上设有独立开关的柜门及柜门电控锁,每个滑轨抽拉柜中沿后备箱长度方向设有大负载的抽拉式滑轨,各个抽拉式滑轨上沿后备箱长度方向设有若干个独立封闭的箱格,各个箱格上设有独立开关的箱格门及箱格门锁;各个箱格内分别设有RFID读写器,各个RFID读写器分别通过数据线路与嵌入式计算机电性连接,以读取相应箱格内的RFID标签信息,所述触控屏交互终端与嵌入式计算机电性连接,以通过人机交互对储物柜内的电力巡检工器具进行管理。In order to achieve the above purpose, the technical solution adopted by the present utility model is: a modularized locker device for an electric inspection vehicle, comprising a locker main frame adapted to the trunk of the electric inspection vehicle and embedded therein, an embedded computer Interacting with the touch screen terminal, the main frame of the locker is provided with 4 sliding rail pull-out cabinets in the shape of a field, and the front end of each sliding rail pull-out cabinet is provided with an independent switch cabinet door and cabinet door electric control There is a large-load pull-out slide rail in each slide-rail pull-out cabinet along the length of the trunk, and each pull-out slide rail is provided with several independent closed boxes along the length of the trunk. The compartments are provided with independently switched compartment doors and compartment door locks; each compartment is provided with an RFID reader and writer, and each RFID reader is electrically connected to an embedded computer through a data line to read the corresponding compartment. The RFID tag information in the grid is stored, and the touch screen interactive terminal is electrically connected with the embedded computer, so as to manage the power inspection tools in the locker through human-computer interaction.
进一步地,各个抽拉式滑轨上沿后备箱长度方向设有3个独立封闭的箱格,位于上侧的滑轨抽拉柜的箱格的箱格门向后备箱旁侧开启,位于下侧的滑轨抽拉柜的箱格的箱格门向上开启。Further, each pull-out slide rail is provided with three independently closed compartments along the length of the trunk, and the compartment door of the compartment of the slide-rail pull-out cabinet located on the upper side opens to the side of the trunk and is located on the lower side. The box door of the box compartment of the sliding rail drawer on the side is opened upwards.
进一步地,各个电力巡检工器具上均贴附有RFID标签,以通过RFID读写器读取出相应电力巡检工器具上的RFID标签信息。Further, each power inspection tool is attached with an RFID tag, so that the RFID tag information on the corresponding power inspection tool can be read out through the RFID reader.
进一步地,各个箱格均为电子屏蔽箱格,以避免箱格中的RFID读写器串读到其他箱格中的RFID标签。Further, each box is an electronic shield box, so as to prevent the RFID reader string in the box from reading the RFID tags in other boxes.
进一步地,所述储物柜主体框架在相应的滑轨抽拉柜旁侧设有坦克链,以对数据线路进行牵引和保护。Further, the main frame of the locker is provided with a tank chain on the side of the corresponding sliding rail drawer to pull and protect the data line.
进一步地,所述箱格门锁为箱格门电控锁,所述柜门电控锁、箱格门电控锁分别与嵌入式计算机电性连接。Further, the compartment door lock is an electric control lock of the compartment door, and the electric control lock of the cabinet door and the electric control lock of the compartment door are respectively electrically connected with the embedded computer.
进一步地,各个滑轨抽拉柜和箱格上分别设有指示灯,以指示要取出的电力巡检工器具所在的滑轨抽拉柜及箱格。Further, each slide rail drawer cabinet and box compartment are respectively provided with indicator lights to indicate the slide rail drawer cabinet and the box compartment where the power inspection tool to be taken out is located.
进一步地,所述嵌入式计算机设置于电子设备安装壳体内,所述触控屏交互终端嵌设于电子设备安装壳体的前侧面上,所述电子设备安装壳体的前侧面上还设有人脸识别模块和磁卡识别模块,所述人脸识别模块和磁卡识别模块均与嵌入式计算机电性连接,以对用户进行身份识别;所述电子设备安装壳体与储物柜主体框架的前端旁侧可拆连接,以在使用时挂设于储物柜主体框架前端旁侧,而在收合时拆下放置于电力巡检车后备箱内。Further, the embedded computer is arranged in the electronic device installation housing, the touch screen interactive terminal is embedded on the front side of the electronic device installation housing, and a human is also installed on the front side of the electronic device installation housing. A face recognition module and a magnetic card recognition module, the face recognition module and the magnetic card recognition module are both electrically connected with the embedded computer to identify the user; the electronic device installation shell is adjacent to the front end of the main frame of the locker The side can be detachably connected, so that it can be hung on the side of the front end of the main frame of the locker when in use, and can be removed and placed in the trunk of the electric inspection vehicle when it is folded.
与现有技术相比,本实用新型具有以下有益效果:提供了一种可以对电力巡检工器具进行精细化、智能化管理的储物柜,该储物柜设计了与电力巡检车后备箱相适配的框架结构,并嵌入用于分门别类放置电力巡检工器具的模块化箱格,安装在相应的滑轨抽拉柜上,方便展开使用。此外,该装置将电力巡检工器具信息进行标签化,通过RFID读写器读取标签信息,可以实现仪器仪表、安全工器具、备品备件等电力巡检工器具的数字化管理,进而实现储物的精细化、智能化管理。Compared with the prior art, the utility model has the following beneficial effects: it provides a locker that can carry out refined and intelligent management of power inspection tools and appliances, and the locker is designed to be backed up with the power inspection vehicle. The frame structure is suitable for the box, and it is embedded in the modular box grid for placing the power inspection tools and instruments in different categories, and it is installed on the corresponding sliding-rail drawer cabinet for easy deployment. In addition, the device tags the information of power inspection tools, and reads the tag information through the RFID reader, which can realize the digital management of power inspection tools such as instruments, safety tools, and spare parts, and then realize storage. refined and intelligent management.
附图说明Description of drawings
图1是本实用新型实施例的装置结构前视示意图。FIG. 1 is a schematic front view of a device structure according to an embodiment of the present invention.
图2是本实用新型实施例的装置结构俯视示意图。FIG. 2 is a schematic top view of the device structure according to the embodiment of the present invention.
图3是本实用新型实施例的装置结构侧视示意图。FIG. 3 is a schematic side view of the device structure according to the embodiment of the present invention.
具体实施方式Detailed ways
下面结合附图及实施例对本实用新型做进一步说明。The present utility model will be further described below in conjunction with the accompanying drawings and embodiments.
应该指出,以下详细说明都是示例性的,旨在对本申请提供进一步的说明。除非另有指明,本文使用的所有技术和科学术语具有与本申请所属技术领域的普通技术人员通常理解的相同含义。It should be noted that the following detailed description is exemplary and intended to provide further explanation of the application. Unless otherwise defined, all technical and scientific terms used herein have the same meaning as commonly understood by one of ordinary skill in the art to which this application belongs.
需要注意的是,这里所使用的术语仅是为了描述具体实施方式,而非意图限制根据本申请的示例性实施方式。如在这里所使用的,除非上下文另外明确指出,否则单数形式也意图包括复数形式,此外,还应当理解的是,当在本说明书中使用术语“包含”和/或“包括”时,其指明存在特征、步骤、操作、器件、组件和/或它们的组合。It should be noted that the terminology used herein is for the purpose of describing specific embodiments only, and is not intended to limit the exemplary embodiments according to the present application. As used herein, unless the context clearly dictates otherwise, the singular is intended to include the plural as well, furthermore, it is to be understood that when the terms "comprising" and/or "including" are used in this specification, it indicates that There are features, steps, operations, devices, components and/or combinations thereof.
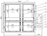
如图1-3所示,本实施例提供了一种电力巡检车模块化储物柜装置,包括与电力巡检车后备箱相适应以嵌入其中的储物柜主体框架1、嵌入式计算机10和触控屏交互终端2,所述储物柜主体框架1上设有田字形的4个滑轨抽拉柜,每个滑轨抽拉柜的前端面上设有独立开关的柜门3及柜门电控锁4,每个滑轨抽拉柜中沿后备箱长度方向设有大负载的抽拉式滑轨5,各个抽拉式滑轨5上沿后备箱长度方向设有若干个独立封闭的箱格6,各个箱格6上设有独立开关的箱格门7及箱格电控门锁8,所述柜门电控锁4、箱格门电控锁8分别与嵌入式计算机10电性连接;各个箱格内分别设有RFID读写器9,各个RFID读写器9分别通过数据线路与嵌入式计算机10电性连接,以读取相应箱格6内的RFID标签信息,所述触控屏交互终端2与嵌入式计算机10电性连接,以通过人机交互对储物柜内的电力巡检工器具进行管理。As shown in Figures 1-3, this embodiment provides a modular locker device for an electric inspection vehicle, including a
在本实施例中,各个抽拉式滑轨5上沿后备箱长度方向设有3个独立封闭的箱格6,位于上侧的滑轨抽拉柜的箱格的箱格门向后备箱旁侧开启,位于下侧的滑轨抽拉柜的箱格的箱格门向上开启。In this embodiment, each pull-out
在本实施例中,储物柜由6061铝型材制成,表面镀锌。储物柜柜体,即储物柜主体框架的尺寸为H950mm*W1020mm*D1221mm。In this embodiment, the locker is made of 6061 aluminum profile with galvanized surface. The size of the locker body, that is, the main frame of the locker, is H950mm*W1020mm*D1221mm.
为了对电力巡检工器具进行识别,各个电力巡检工器具上均贴附有RFID标签,以通过RFID读写器读取出相应的RFID标签信息并识别出相应的电力巡检工器具。在本实施例中,各个箱格6均为电子屏蔽箱格,以避免箱格中的RFID读写器串读到其他箱格中的RFID标签。在本实施例中,RFID读写器采用16路超高频阅读器。In order to identify the power inspection tools, RFID tags are attached to each power inspection tool, so that the corresponding RFID tag information can be read through the RFID reader and the corresponding power inspection tools can be identified. In this embodiment, each
在本实施例中,所述储物柜主体框架1在相应的滑轨抽拉柜旁侧设有坦克链11,以对数据线路进行牵引和保护。In this embodiment, the
在本实用新型的较佳实施例中,为了避免箱格门电控锁及箱格门在箱格未被拉出时打开,可以在各个箱格上分别设置朝向后备箱侧壁的红外传感器,以检测相应箱格是否已被拉出后备箱。各个红外传感器分别与嵌入式计算机10电性连接,以在箱格被拉出时给出信号,从而可以正常打开箱格门电控锁,否则,则无法打开箱格门电控锁。In a preferred embodiment of the present utility model, in order to prevent the electric control lock of the compartment door and the compartment door from opening when the compartment is not pulled out, an infrared sensor facing the side wall of the trunk can be arranged on each compartment respectively, to detect whether the corresponding compartment has been pulled out of the trunk. Each infrared sensor is electrically connected to the embedded
在本实施例中,各个滑轨抽拉柜和箱格上分别设有指示灯15,以在通过触控屏交互终端选择要取出的电力巡检工器具时,通过指示灯指示相应的电力巡检工器具所在的滑轨抽拉柜及箱格。In this embodiment,
在本实施例中,所述嵌入式计算机10设置于电子设备安装壳体12内,所述触控屏交互终端2嵌设于电子设备安装壳体12的前侧面上,触控屏交互终端2为10.1吋高清电容触控屏,所述电子设备安装壳体12的前侧面上还设有人脸识别模块13和磁卡识别模块14,所述人脸识别模块13和磁卡识别模块14均与嵌入式计算机10电性连接,以对用户进行身份识别;所述电子设备安装壳体12与储物柜主体框架1的前端旁侧可拆连接,以在使用时挂设于储物柜主体框架前端旁侧,而在收合时拆下放置于电力巡检车后备箱内。In this embodiment, the embedded
在本实用新型的较佳实施例中,所述储物柜主体框架1的后端设有若干个嵌入凸块,并通过所述嵌入凸块嵌设于电力巡检车后备箱内对应的嵌入槽中,以实现储物柜主体框架的定位;所述储物柜主体框架1的前端旁侧通过紧固件与电力巡检车后备箱固定连接。In a preferred embodiment of the present invention, the rear end of the
取物时,通过触控屏交互终端2选择要取出的电力巡检工器具,嵌入式计算机10控制对应的滑轨抽拉柜及箱格上的指示灯15亮起,并控制相应的柜门电控锁4解锁,打开对应的柜门3。此时,可拉出滑轨抽拉柜。相应箱格上的箱格门电控锁8解锁,打开对应的箱格门7。此时,可取出相应的电力巡检工器具。When taking out objects, select the power inspection tool to be taken out through the touch screen
以上所述,仅是本实用新型的较佳实施例而已,并非是对本实用新型作其它形式的限制,任何熟悉本专业的技术人员可能利用上述揭示的技术内容加以变更或改型为等同变化的等效实施例。但是凡是未脱离本实用新型技术方案内容,依据本实用新型的技术实质对以上实施例所作的任何简单修改、等同变化与改型,仍属于本实用新型技术方案的保护范围。The above is only a preferred embodiment of the present invention, and is not intended to limit the present invention in other forms. Any person skilled in the art may use the technical content disclosed above to change or remodel to equivalent changes. Equivalent Example. However, any simple modifications, equivalent changes and modifications made to the above embodiments according to the technical essence of the present invention without departing from the content of the technical solutions of the present invention still belong to the protection scope of the technical solutions of the present invention.
| Application Number | Priority Date | Filing Date | Title |
|---|---|---|---|
| CN202221431209.XUCN217532649U (en) | 2022-06-09 | 2022-06-09 | Electric power inspection vehicle modularization locker device |
| Application Number | Priority Date | Filing Date | Title |
|---|---|---|---|
| CN202221431209.XUCN217532649U (en) | 2022-06-09 | 2022-06-09 | Electric power inspection vehicle modularization locker device |
| Publication Number | Publication Date |
|---|---|
| CN217532649Utrue CN217532649U (en) | 2022-10-04 |
| Application Number | Title | Priority Date | Filing Date |
|---|---|---|---|
| CN202221431209.XUActiveCN217532649U (en) | 2022-06-09 | 2022-06-09 | Electric power inspection vehicle modularization locker device |
| Country | Link |
|---|---|
| CN (1) | CN217532649U (en) |
| Publication number | Priority date | Publication date | Assignee | Title |
|---|---|---|---|---|
| CN114873140A (en)* | 2022-06-09 | 2022-08-09 | 国网福建省电力有限公司 | Modular locker system of electric power inspection vehicle |
| Publication number | Priority date | Publication date | Assignee | Title |
|---|---|---|---|---|
| CN114873140A (en)* | 2022-06-09 | 2022-08-09 | 国网福建省电力有限公司 | Modular locker system of electric power inspection vehicle |
| CN114873140B (en)* | 2022-06-09 | 2023-10-10 | 国网福建省电力有限公司 | A modular locker system for electric patrol vehicles |
| Publication | Publication Date | Title |
|---|---|---|
| CN205665793U (en) | Intelligence article locker | |
| CN201576327U (en) | IC card locker | |
| CN203616829U (en) | Intelligent tool cabinet | |
| CN202882651U (en) | Intelligent instrument storage cabinet | |
| CN217532649U (en) | Electric power inspection vehicle modularization locker device | |
| CN110076739B (en) | RFID tool car for aircraft maintenance | |
| CN208276872U (en) | A kind of Intellisense tool cabinet | |
| CN108214436A (en) | A kind of Intellisense tool cabinet | |
| CN206179123U (en) | A networking locker for water paradise | |
| CN201068706Y (en) | Fingerprint storing cabinet system | |
| CN114873140B (en) | A modular locker system for electric patrol vehicles | |
| CN212165316U (en) | Economic management archives strorage device | |
| CN105261093A (en) | Intelligent key cabinet based on tough screen and PLC | |
| CN206646961U (en) | Noble metal cabinet | |
| CN207250985U (en) | A kind of low-tension switch cabinet that maloperation is prevented equipped with brushing card device | |
| CN205114091U (en) | Intelligent classification garbage bag handing -out machine | |
| CN212694520U (en) | Seat type self-service combined terminal equipment | |
| CN211287222U (en) | Intelligent tail box safe | |
| CN107928185A (en) | A kind of intelligent medical file management cabinet | |
| CN210010958U (en) | A RFID tool bogie for aircraft maintenance | |
| CN209733084U (en) | Storage disc storage device for digital archive management | |
| CN202365270U (en) | Bedside cabinet with monitoring function | |
| CN206144358U (en) | Valuables keeps cabinet based on RFID technique | |
| CN217238838U (en) | Unattended warehouse | |
| CN215776474U (en) | Intelligent locker in usable high-rise space |
| Date | Code | Title | Description |
|---|---|---|---|
| GR01 | Patent grant | ||
| GR01 | Patent grant |