






技术领域technical field
本申请涉及分体式设备设计技术领域,尤其涉及一种供电终端和可穿戴系统。The present application relates to the technical field of split device design, and in particular, to a power supply terminal and a wearable system.
背景技术Background technique
如AR(Augmented Reality,增强现实)设备、VR(Virtual Reality,虚拟现实)设备、MR(Mix Reality,混合现实)设备等分体式可穿戴设备具有小巧轻便、方便佩戴等特点,已逐渐成为AR、VR、MR等领域的设计主流。但是,由于分体式可穿戴设备内部并未设置电源,使得分体式可穿戴设备的主控部分既要为自身工作提供电能供给,还要为可穿戴部分提供电能供给,使得分体式可穿戴设备的主控部分的供电续航能力成为本领域急待解决的技术问题。Such as AR (Augmented Reality, Augmented Reality) equipment, VR (Virtual Reality, Virtual Reality) equipment, MR (Mix Reality, Mixed Reality, Mixed Reality) equipment and other split wearable devices have the characteristics of being small, lightweight and easy to wear, and have gradually become AR, Design mainstream in VR, MR and other fields. However, since there is no power supply inside the split wearable device, the main control part of the split wearable device not only provides power supply for its own work, but also provides power supply for the wearable part, so that the power supply of the split wearable device is The power supply endurance capability of the main control part has become an urgent technical problem to be solved in this field.
实用新型内容Utility model content
第一方面,本申请实施例提供一种供电终端,包括终端本体以及集成在所述终端本体内的电源模块,所述终端本体上开设有第一端口和第二端口;In a first aspect, an embodiment of the present application provides a power supply terminal, including a terminal body and a power supply module integrated in the terminal body, and a first port and a second port are provided on the terminal body;
所述第一端口包括电源线引脚和多个第一数据信号引脚,所述第二端口包括多个第二数据信号引脚;The first port includes a power line pin and a plurality of first data signal pins, and the second port includes a plurality of second data signal pins;
所述电源线引脚与所述电源模块连接用于传输电能,多个所述第一数据信号引脚分别与多个所述第二数据信号引脚连接用于传输数据信号。The power line pins are connected to the power module for transmitting electrical energy, and the plurality of first data signal pins are respectively connected to the plurality of second data signal pins for transmitting data signals.
进一步,作为一种可能的实现方式,多个所述第一数据信号引脚包括第一DP信号引脚、第一USB信号引脚和第二USB信号引脚中的至少一个,多个所述第二数据信号引脚包括第二DP信号引脚、第三USB信号引脚和第四USB信号引脚中的至少一个;Further, as a possible implementation manner, the plurality of first data signal pins include at least one of a first DP signal pin, a first USB signal pin and a second USB signal pin, and a plurality of the first data signal pins include at least one of a first DP signal pin, a first USB signal pin, and a second USB signal pin. The second data signal pin includes at least one of the second DP signal pin, the third USB signal pin and the fourth USB signal pin;
所述第一DP信号引脚与所述第二DP信号引脚连接用于传输音视频信号,所述第一USB信号引脚与所述第三USB信号引脚连接、所述第二USB信号引脚与所述第四USB信号引脚连接用于传输通用串行总线数据。The first DP signal pin is connected with the second DP signal pin for transmitting audio and video signals, the first USB signal pin is connected with the third USB signal pin, the second USB signal The pin is connected to the fourth USB signal pin for transmitting universal serial bus data.
进一步,作为一种可能的实现方式,所述供电终端还可包括信号桥接模块,该信号桥接模块包括DP信号桥接子模块、第一USB信号桥接子模块和第二USB信号桥接子模块;Further, as a possible implementation manner, the power supply terminal may further include a signal bridging module, and the signal bridging module includes a DP signal bridging sub-module, a first USB signal bridging sub-module and a second USB signal bridging sub-module;
所述DP信号桥接子模块的输入端与所述第二DP信号引脚连接、输出端与所述第一DP信号引脚连接;The input end of the DP signal bridge sub-module is connected with the second DP signal pin, and the output end is connected with the first DP signal pin;
所述第一USB信号桥接子模块的输入端与所述第二USB信号引脚连接、输出端与所述第一USB信号引脚连接;The input end of the first USB signal bridge sub-module is connected with the second USB signal pin, and the output end is connected with the first USB signal pin;
所述第二USB信号桥接子模块的输入端与所述第三USB信号引脚连接、输出端与所述第四USB信号引脚连接。The input end of the second USB signal bridge sub-module is connected to the third USB signal pin, and the output end is connected to the fourth USB signal pin.
进一步,作为一种可能的实现方式,所述供电终端还可包括DP信号中继器;Further, as a possible implementation manner, the power supply terminal may further include a DP signal repeater;
所述DP信号中继器连接于所述第一DP信号引脚和所述第二DP信号引脚(D2)之间。The DP signal repeater is connected between the first DP signal pin and the second DP signal pin (D2).
进一步,作为一种可能的实现方式,所述供电终端还可包括USB信号中继器;Further, as a possible implementation manner, the power supply terminal may further include a USB signal repeater;
所述USB信号中继器连接于所述第一USB信号引脚(U1)和所述第三USB信号引脚(U3)之间;和/或The USB signal repeater is connected between the first USB signal pin (U1) and the third USB signal pin (U3); and/or
所述USB信号中继器连接于所述第二USB信号引脚(U2)和所述第四USB信号引脚(U4)之间。The USB signal repeater is connected between the second USB signal pin (U2) and the fourth USB signal pin (U4).
进一步,作为一种可能的实现方式,所述电源模块中设置有电能储存模块。Further, as a possible implementation manner, the power supply module is provided with an electric energy storage module.
进一步,作为一种可能的实现方式,所述第一端口为Type-c接口,所述第二端口为未设置VBUS引脚的Type-c接口。Further, as a possible implementation manner, the first port is a Type-c interface, and the second port is a Type-c interface without a VBUS pin.
进一步,作为一种可能的实现方式,所述供电终端还包括第一线缆,所述第一线缆的一端设置在所述供电终端内部,并与所述第二端口电连接。Further, as a possible implementation manner, the power supply terminal further includes a first cable, and one end of the first cable is disposed inside the power supply terminal and is electrically connected to the second port.
第二方面,本申请实施例还提供一种可穿戴系统,包括分体式可穿戴设备和上述的供电终端,所述分体式可穿戴设备包括可穿戴部分和主控部分,In a second aspect, an embodiment of the present application further provides a wearable system, including a split-type wearable device and the above-mentioned power supply terminal, wherein the split-type wearable device includes a wearable part and a main control part,
所述供电终端通过第一端口与所述可穿戴部分连接,所述供电终端通过第二端口与所述主控部分连接。The power supply terminal is connected to the wearable part through a first port, and the power supply terminal is connected to the main control part through a second port.
进一步,作为一种可能的实现方式,所述可穿戴部分为虚拟现实设备、增强现实设备或混合现实设备。Further, as a possible implementation manner, the wearable part is a virtual reality device, an augmented reality device or a mixed reality device.
在本申请实施例给出的上述技术方案中,通过对供电终端的巧妙设计,使得供电终端既能通过设置于第一端口上的电源线引脚对外提供电能供给,还可通过第一端口上的数据信号引脚以及第二端口上的数据信号引脚实现数据信号的转接,以解决相关技术中,主控部分与可穿戴部分在数据交互时,由于主控部分还需要为分体式可穿戴设备中的可穿戴部分提供电能供给而导致的主控部分的供电续航能力差的问题。In the above technical solutions given in the embodiments of the present application, through clever design of the power supply terminal, the power supply terminal can not only provide power supply externally through the power line pins disposed on the first port, but also through the power supply terminal on the first port. The data signal pin on the second port and the data signal pin on the second port realize the transfer of the data signal, so as to solve the problem that in the related art, when the main control part and the wearable part interact with data, because the main control part also needs to be a split-type wearable part. The wearable part in the wearable device provides power supply, which leads to the problem of poor power supply endurance of the main control part.
附图说明Description of drawings
此处所说明的附图用来提供对本申请的进一步理解,构成本申请的一部分,本申请的示意性实施例及其说明用于解释本申请,并不构成对本申请的不当限定。在附图中:The drawings described herein are used to provide further understanding of the present application and constitute a part of the present application. The schematic embodiments and descriptions of the present application are used to explain the present application and do not constitute an improper limitation of the present application. In the attached image:
图1为一示例性实施例提供的供电终端的方框结构示意图。FIG. 1 is a schematic block diagram of a power supply terminal provided by an exemplary embodiment.
图2为另一示例性实施例提供的供电终端的方框结构示意图。FIG. 2 is a schematic block diagram of a power supply terminal provided by another exemplary embodiment.
图3为又一示例性实施例提供的供电终端的方框结构示意图。FIG. 3 is a schematic block diagram of a power supply terminal provided by another exemplary embodiment.
图4为又一示例性实施例提供的供电终端的方框结构示意图。FIG. 4 is a schematic block diagram of a power supply terminal provided by another exemplary embodiment.
图5为又一示例性实施例提供的供电终端的方框结构示意图。FIG. 5 is a schematic block diagram of a power supply terminal provided by another exemplary embodiment.
图6为一示例性实施例提供的可穿戴系统的方框结构示意图。FIG. 6 is a schematic block diagram of a wearable system provided by an exemplary embodiment.
图7为一示例性实施例提供的供电终端的应用场景示意图。FIG. 7 is a schematic diagram of an application scenario of a power supply terminal provided by an exemplary embodiment.
图标:10-供电终端;11-终端本体;110-第一端口;111-第二端口;12-电源模块;13-信号桥接模块;130-DP信号桥接子模块;131-第一USB信号桥接子模块;132-第二USB信号桥接子模块;20-主控部分;30-可穿戴部分;50-第一线缆;40-第二线缆。Icon: 10-power supply terminal; 11-terminal body; 110-first port; 111-second port; 12-power module; 13-signal bridge module; 130-DP signal bridge sub-module; 131-first USB signal bridge sub-module; 132-second USB signal bridge sub-module; 20-main control part; 30-wearable part; 50-first cable; 40-second cable.
具体实施方式Detailed ways
为使本申请的目的、技术方案和优点更加清楚,下面将结合本申请具体实施例及相应的附图对本申请技术方案进行清楚、完整地描述。显然,所描述的实施例仅是本申请一部分实施例,而不是全部的实施例。基于本申请中的实施例,本领域普通技术人员在没有做出创造性劳动前提下所获得的所有其他实施例,都属于本申请保护的范围。In order to make the objectives, technical solutions and advantages of the present application clearer, the technical solutions of the present application will be clearly and completely described below with reference to the specific embodiments of the present application and the corresponding drawings. Obviously, the described embodiments are only a part of the embodiments of the present application, but not all of the embodiments. Based on the embodiments in the present application, all other embodiments obtained by those of ordinary skill in the art without creative efforts shall fall within the protection scope of the present application.
需要说明的是,需要说明的是,本实用新型的说明书和权利要求书及上述附图中的术语“第一”、“第二”等是用于区别类似的对象,而不必用于描述特定的顺序或先后次序。应该理解这样使用的数据在适当情况下可以互换,以便这里描述的本实用新型的实施例能够以除了在这里图示或描述的那些以外的顺序实施。此外,术语“包括”和“具有”以及他们的任何变形,意图在于覆盖不排他的包含,例如,包含了一系列步骤或单元的过程、方法、系统、产品或设备不必限于清楚地列出的那些步骤或单元,而是可包括没有清楚地列出的或对于这些过程、方法、产品或设备固有的其它步骤或单元。It should be noted that the terms "first" and "second" in the description and claims of the present invention and the above drawings are used to distinguish similar objects, and are not necessarily used to describe specific order or sequence. It is to be understood that the data so used may be interchanged under appropriate circumstances so that the embodiments of the invention described herein can be practiced in sequences other than those illustrated or described herein. Furthermore, the terms "comprising" and "having" and any variations thereof, are intended to cover non-exclusive inclusion, for example, a process, method, system, product or device comprising a series of steps or units is not necessarily limited to those expressly listed Rather, those steps or units may include other steps or units not expressly listed or inherent to these processes, methods, products or devices.
以下结合附图,详细说明本申请各实施例提供的技术方案。The technical solutions provided by the embodiments of the present application will be described in detail below with reference to the accompanying drawings.
以分体式可穿戴设备为AR设备为例,现有的AR设备中的头戴部分与主控部分之间通过线缆连接。其中,头戴部分用于基于设置的传感器(如图像采集传感器、湿度传感器、温度传感器、声音采集传感器等)实现数据采集的功能,并将采集的数据发送给主控部分。主控部分对接收到数据进行处理后回传至头戴部分并利用头戴部分中的显示器进行显示,或者向头戴部分发送操控指令等。在前述数据交互过程中,AR设备的功耗大小主要取决于主控部分中的CPU(Central Processing Unit,中央处理器)、GPU(Graphics ProcessingUnit,图形处理器)等的计算量大小以及头戴部分本身的工作耗能。其中,由于头戴部分工作过程中的电能由主控部分提供,从而使得头戴部分具有便捷、小巧等性能,但这也同时导致主控部分的电池续航时间短。Taking the split wearable device as an AR device as an example, the head-mounted part and the main control part in the existing AR device are connected by cables. Among them, the head-mounted part is used to realize the function of data acquisition based on the set sensors (such as image acquisition sensor, humidity sensor, temperature sensor, sound acquisition sensor, etc.), and send the collected data to the main control part. The main control part processes the received data and sends it back to the head-mounted part and uses the display in the head-mounted part to display, or sends control instructions to the head-mounted part. In the aforementioned data interaction process, the power consumption of the AR device mainly depends on the calculation amount of the CPU (Central Processing Unit, central processing unit), GPU (Graphics Processing Unit, graphics processor), etc. in the main control part and the headset part. The work itself consumes energy. Among them, since the electric energy of the head-mounted part is provided by the main control part during the working process, the head-mounted part has the functions of convenience and compactness, but this also leads to a short battery life time of the main control part.
对此,为了延长与分体式可穿戴设备连接的主控部分的续航时间,降低各部分功能模块的能耗,目前主要通过如降低CPU、GPU的使用率、降低屏幕亮度、降低音量、不同应用场景关闭不需要的功能模块等方式实现能耗降低,但这些方式会降低CPU、GPU使用率,相当于减小主控部分这一主端的运行速度,而这会使得一些如大型游戏类的应用运行卡顿、延迟等。此外,降低屏幕亮度、音量等方式也会降低穿戴者的感官体验。In this regard, in order to extend the battery life of the main control part connected to the split wearable device and reduce the energy consumption of each functional module, currently, the main methods are: Turning off unnecessary function modules in the scene can reduce energy consumption, but these methods will reduce the CPU and GPU usage, which is equivalent to reducing the running speed of the main control part, which will make some applications such as large-scale games. Running stutters, delays, etc. In addition, reducing screen brightness, volume, etc. will also reduce the wearer's sensory experience.
鉴于此,本申请给出一种供电终端10和可穿戴系统,能够在不改变分体式设备,特别是分体式可穿戴设备原有结构的基础上解决上述至少一个技术问题。下面结合附图和实施例对本申请给出的技术方案进行说明,内容如下。In view of this, the present application provides a
实施例一Example 1
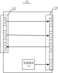
如图1所示,为本申请实施例一提供的供电终端10的方框结构示意图,该供电终端10包括终端本体11以及集成在终端本体11内的电源模块12,终端本体11上开设有第一端口110和第二端口120。第一端口110包括电源线引脚V1和多个第一数据信号引脚,第二端口111包括多个第二数据信号引脚。电源线引脚V1与电源模块12连接用于传输电能,多个第一数据信号引脚分别与多个第二数据信号引脚连接用于传输数据信号。As shown in FIG. 1 , which is a schematic block diagram of a
其中,电源模块12用于为通过第一端口110连接的外部设备提供电能供给,例如,电源模块12可以为AR、VR、MR等分体式可穿戴设备供电,以使其能够进行信息采集、显示或者与主控部分进行数据交互。The
可选地,电源模块12的型号可以根据实际所需进行灵活选取,例如,电源模块12可选用,但不限于5V/2A电源模块等。作为一种可能的实现方式,电源模块12中还可设置有电能储存模块,该电能储存模块可通过现有充电宝的技术实现,本实施例在此不再赘述。Optionally, the model of the
进一步,第一端口110用于实现电能、数据信号的传输,第二端口111用于实现数据信号的传输。可选地,第一端口的多个第一数据信号引脚和第二端口的多个第一数据信号引脚一一对应连接实现传输数据信号。其中,此处所提及的数据信号包括表示控制的信号、表示音视频等的信号等。Further, the
可选地,多个第一数据信号引脚可包括第一DP(DisplayPort)信号引脚、第一USB(Universal Serial BUS,通用串行总线)信号引脚和第二USB信号引脚中的至少一个,多个第二数据信号引脚可包括第二DP信号引脚、第三USB信号引脚和第四USB信号引脚中的至少一个。其中,第一DP信号引脚、第一USB信号引脚、第二USB信号引脚、第二DP信号引脚、第三USB信号引脚和第四USB信号引脚中的每一个引脚不限定其所包括的引脚数量,例如,第一DP信号引脚可以具体为一个引脚或两个引脚或四个引脚。Optionally, the plurality of first data signal pins may include at least one of a first DP (DisplayPort) signal pin, a first USB (Universal Serial BUS, Universal Serial Bus) signal pin, and a second USB signal pin. One, the plurality of second data signal pins may include at least one of a second DP signal pin, a third USB signal pin, and a fourth USB signal pin. Wherein, each of the first DP signal pin, the first USB signal pin, the second USB signal pin, the second DP signal pin, the third USB signal pin and the fourth USB signal pin is not The number of pins included is limited, for example, the first DP signal pin may be one pin, two pins, or four pins.
其中,第一DP信号引脚与第二DP信号引脚连接用于传输音视频信号,第一USB信号引脚与第三USB信号引脚连接、第二USB信号引脚与第四USB信号引脚连接用于传输通用串行总线数据。应注意,关于第一端口110和第二端口111中的数据信号引脚的实际设置情况可根据需求进行灵活设置,本实施例在此不做限制。当第一端口110和第二端口111分别与分体式设备连接时,分体式设备的两个部分可以通过第一端口110和第二端口111进行交互。The first DP signal pin is connected with the second DP signal pin for transmitting audio and video signals, the first USB signal pin is connected with the third USB signal pin, the second USB signal pin is connected with the fourth USB signal pin The pin connections are used to transmit Universal Serial Bus data. It should be noted that the actual setting of the data signal pins in the
例如图2所示,当需要通过供电终端10实现音视频信号的转接时,多个第一数据信号引脚可包括第一DP信号引脚D1,多个第二数据信号引脚可包括第二DP信号引脚D2,第一DP信号引脚D1与第二DP信号引脚D2连接用于传输音视频信号。For example, as shown in FIG. 2 , when the audio and video signals need to be switched through the
又例如图3所示,当需要通过供电终端10实现通用串行总线数据的转接时,多个第一数据信号引脚可包括第一USB信号引脚U1和第二USB信号引脚U2,多个第二数据信号引脚包括第三USB信号引脚U3和第四USB信号引脚U4,第一USB信号引脚U1与第三USB信号引脚U3连接、第二USB信号引脚U2与第四USB信号引脚U4连接用于传输通用串行总线数据。For another example, as shown in FIG. 3, when the USB data transfer needs to be realized through the
又例如图4所示,当需要通过供电终端10实现音视频信号和通用串行总线数据的传输时,多个第一数据信号引脚可包括第一DP信号引脚D1、第一USB信号引脚U1和第二USB信号引脚U2,多个第二数据信号引脚包括第二DP信号引脚D2、第三USB信号引脚U3和第四USB信号引脚U4。第一DP信号引脚D1与第二DP信号引脚D2连接用于传输音视频信号,第一USB信号引脚U1与第三USB信号引脚U3连接、第二USB信号引脚U2与第四USB信号引脚U4连接用于传输通用串行总线数据。For another example, as shown in FIG. 4 , when it is necessary to realize the transmission of audio and video signals and universal serial bus data through the
实际实施,第一端口110可以选用,但不限于Type-c接口,第二端口111也可以选用,但不限于未设置VBUS引脚的Type-c接口,本实施例对此不做限制。In actual implementation, the
通过在供电终端10上设置第一端口110和第二端口111,使得供电终端10既能通过设置于第一端口110上的电源线引脚V1对外提供电能供给,还可通过第一端口110上的数据信号引脚以及第二端口111上的数据信号引脚实现数据信号的转接,以解决相关技术中,主控部分与可穿戴部分在数据交互时,由于主控部分还需要为可穿戴部分提供电能供给导致的主控部分的供电续航能力差的问题。By arranging the
进一步,为了有效确保信号转接质量,供电终端10还可包括信号桥接模块13,该信号桥接模块13包括DP信号桥接子模块130、第一USB信号桥接子模块131和第二USB信号桥接子模块132。DP信号桥接子模块130的输入端与第二DP信号引脚D2连接、输出端与第一DP信号引脚D1连接。Further, in order to effectively ensure the signal transfer quality, the
第一USB信号桥接子模块131的输入端与第三USB信号引脚U3连接、输出端与第一USB信号引脚U1连接。第二USB信号桥接子模块132的输入端与第二USB信号引脚U2连接、输出端与第四USB信号引脚U4连接。The input end of the first USB
通过前述信号桥接模块13的设置,能够有效提高通过供电终端10进行信号桥接时的信号质量。应注意,根据第一端口110和第二端口111设置的引脚的种类,信号桥接模块13中可以仅包括DP信号桥接子模块130,也可仅包括USB信号桥接子模块,也可以包括DP信号桥接子模块130和USB信号桥接子模块,本实施例对此不做限制。Through the arrangement of the aforementioned
作为一种可选地实现方式,信号桥接模块13中的各子模块可以选用,但不限于具有低功耗和小尺寸性能的Spectra 7 DreamWeVR芯片。例如,第一DP信号桥接子模块130可以选用VR8300-DisplayPort芯片或VR8200-DisplayPort,其中,VR8300-DisplayPort HBR3嵌入式电缆处理器,能够以5K分辨率提供高达32.4Gbps的DisplayPort带宽,适用于1500万像素的影院级视频。VR8200-DisplayPort HBR2嵌入式电缆处理器能够以4K分辨率提供高达21.6Gbps的DisplayPort带宽。As an optional implementation manner, each sub-module in the
又例如,第一USB信号桥接子模块131、第二USB信号桥接子模块130、可以选用VR8051、VR8050芯片,其中,VR8051-USB 3.2Gen 2嵌入式电缆处理器能够提供高达10Gbps的传感器/摄像机数据,用于位置跟踪和手势识别等。VR8050-USB 3.2Gen 1嵌入式电缆处理器-提供高达5Gbps的传感器/摄像机数据,用于位置跟踪和手势识别等。实际实施时,第一USB信号桥接子模块131、第二USB信号桥接子模块132可以相同,也可以不同,本实施例对此不做限制。For another example, the first USB signal bridging sub-module 131 and the second USB signal bridging sub-module 130 can choose VR8051 and VR8050 chips, wherein the VR8051-USB 3.2
作为一种可能的实现方式,在通过信号桥接模块13进行信号桥接转发时,信号桥接模块13工作时所需要的电能供给可以由电源模块12提供,也可以由与第二端口111的外接设备(如主控部分)提供,本实施例一在此不做限制。As a possible implementation manner, when the
进一步,供电终端10还可包括第一线缆,第一线缆的一端设置在供电终端10内部,并与第二端口111电连接。可选地,第一线缆可选用,但不限于未设置VBUS的Type-c数据线。该Type-C是USB接口的一种连接介面,不分正反两面均可插入,大小约为8.3mm×2.5mm,和其他介面一样支持USB标准的充电、数据传输、显示输出等功能。应注意,若需要通过供电终端10为主控部分供电,第一线缆可选用Type-C数据线,本实施例对此不再限制。Further, the
此外,供电终端10还可包括第二线缆,该第二线缆的一端与第一端口110连接、另一端外接外部设备,实际实施时,第二线缆也可以选用Type-c数据线。本实施例在此不做限制。In addition, the
基于上述对供电终端10的设计和描述,作为一种可能的实现方式,如图6所示,假设本实施例中给出的供电终端10可应用于包括可穿戴部分30和主控部分20的分体式可穿戴设备,主控部分20一般是指可以发出操控命令或/和进行数据处理等的计算机、手机、平板电脑等电子设备。可穿戴部分30可以是虚拟现实设备、增强现实设备或混合现实设备等需要借助主控部分20提供电能供给进行如信息显示、数据采集等功能的电子设备。Based on the above design and description of the
那么,供电终端10的第一端口110可以与可穿戴部分30连接、第二端口111与主控部分20连接,进而可通过供电终端10为可穿戴部分30进行供电,使得可穿戴部分30能够进行信息采集、数据显示或与主控部分20进行数据交互,有效避免了现有的需要通过主控部分20为可穿戴部分30供电从而导致主控部分20的电池续航能力差的问题出现,大幅降低了主控部分20的电能损耗,有效延长了分体式可穿戴设备的电池续航时间。Then, the
另外,通过设置于供电终端10上的第一端口110、第二端口111,在实现主控部分20和可穿戴部分30之间的数据交互的同时,还能够在不改变分体式可穿戴设备原有结构的基础上,实现基于供电终端10为可穿戴部分30提供电能供给的功能,有效改善了用户体验,降低了产品实现成本。In addition, through the
实施例二
在实施例一给出的供电终端10的基础上,本实施例二给出的供电终端10还包括用于信号增强的中继器。例如,供电终端10可包括DP信号中继器或/和USB中继器。On the basis of the
作为一种可能的实现方式,供电终端10可包括DP信号中继器;该DP信号中继器连接于第一DP信号引脚D1和第二DP信号引脚D2之间。例如,该DP信号中继器可连接于第一DP信号引脚D1与信号桥接子模块130之间,又例如,该DP信号中继器还可连接于第二DP信号引脚D2与信号桥接子模块130之间等。As a possible implementation manner, the
作为又一种实现方式,供电终端10还可包括USB信号中继器;该USB信号中继器可连接于第一USB信号引脚U1和第三USB信号引脚U3之间;和/或USB信号中继器连接于第二USB信号引脚U2和第四USB信号引脚U4之间。例如,该USB信号中继器可连接于第一USB信号引脚U1与第一USB信号桥接子模块131之间,又例如,该USB信号中继器还可连接于第一USB信号桥接子模块131与第三USB信号引脚U3之间等。As yet another implementation manner, the
可选地,本实施例二给出的中继器可以包括一个或多个DP中继器和USB中继器(如USB3.0中继器)。此外,需要说明的是,在一些实施例中,对于一些单向传输协议,例如DP协议,可以仅设置一个中继器,而在一些实施例中,对于双向传播协议,例如USB3.0协议,则需要在双向传输的数据的接收端分别放置一个中继器,从而实现对双向数据的放大处理,确保数据传输质量。Optionally, the repeater provided in the second embodiment may include one or more DP repeaters and USB repeaters (eg, USB 3.0 repeaters). In addition, it should be noted that, in some embodiments, for some unidirectional transmission protocols, such as DP protocol, only one repeater may be set, while in some embodiments, for bidirectional transmission protocols, such as USB3.0 protocol, Then, a repeater needs to be placed at the receiving end of the bidirectionally transmitted data, so as to realize the amplification processing of the bidirectional data and ensure the quality of the data transmission.
作为一种可能的实现方式,信号桥接模块13、DP中继器、USB中继器可集成在PCB(Printed Circuit Board,中文名称为印制电路板)电路板上,进而将集成有信号桥接模块13和中继器的PCB电路板设置于终端本体11内。应注意,关于信号桥接模块13和中继器在PCB电路板上的集成方式本实施例不做限制。As a possible implementation, the
在本实施例二给出的上述技术方案中,通过在供电终端10增加中继器(如DP中继器、USB中继器)能够有效避免由于信号衰减导致的可穿戴部分30与主控部分20之间数据交互效率低、信号不稳定等问题,确保分体式可穿戴设备的工作性能。尤其在可穿戴部分30、供电终端10与主控部分20时间的距离过远的情况下,通过中继器的设计,能够有效确保用户体验。In the above technical solution given in the second embodiment, by adding a repeater (such as a DP repeater, a USB repeater) to the
实施例三Embodiment 3
在实施例一、实施例二给出的供电终端10的基础上,本实施例给出一种可穿戴系统,该可穿戴系统可包括分体式可穿戴设备和上述的供电终端10,分体式可穿戴设备可包括图6所示的可穿戴部分30和主控部分20。供电终端10通过第一端口110与可穿戴部分30连接,供电终端10通过第二端口111与主控部分20连接。其中,供电终端10中的电源模块12为可穿戴部分30提供电能供给,以实现与主控部分20之间的数据交互。On the basis of the
可选地,主控部分20一般是指可以发出操控命令或/和进行数据处理等的计算机、手机、平板电脑等的电子设备。可穿戴部分30可以是虚拟现实设备、增强现实设备或混合现实设备等需要借助主控部分20提供电能供给进行如信息显示、数据采集等功能的电子设备。Optionally, the
应注意,由于本实施例给出的可穿戴系统中的供电终端10与上述实施例一或实施例二中给出的供电终端10具有相同或相应的技术手段,因此,关于本实施例给出的可穿戴系统的供电终端10的详细描述可参照上述实施例一或实施例二中对供电终端10的详细描述,本实施例在此不再赘述。It should be noted that since the
基于前述可穿戴系统的描述,请结合参阅图7,图7中所示的眼镜状的电子设备为可穿戴部分30,手机状的电子设备为主控部分20。其中,第一线缆50用于实现控制信号或其他数据信号的传输,第二线缆40用于实现电能、控制信号或其他数据信号的传输。可以理解的是,第二线缆40与可穿戴部分30之间,以及第一线缆50与供电终端10之间的连接方式,可以采用如图7所示的固定连接方式,也可以根据实际需要将二者之间的连接设计为可拆卸式连接,本实施例对此不做限制。Based on the foregoing description of the wearable system, please refer to FIG. 7 , the glasses-shaped electronic device shown in FIG. 7 is the
在本申请实施例给出的可穿戴系统中,通过供电终端10为分体式可穿戴设备中的可穿戴部分30提供电能供给,替代了现有的通过主控部分20为可穿戴部分30提供电能供给的方式,从而大幅降低了主控部分20的电能损耗,有效延长了分体式可穿戴设备的电池续航时间。In the wearable system given in the embodiment of the present application, the
另外,通过设置于供电终端10内的信号桥接模块13实现分体式可穿戴设备中的主控部分20和可穿戴部分30之间的数据交互,能够在不改变分体式可穿戴设备原有结构的基础上,实现基于供电终端10中为可穿戴部分30提供电能供给的功能,有效改善了用户体验,降低了产品实现成本。In addition, the data exchange between the
上述本实用新型实施例序号仅仅为了描述,不代表实施例的优劣。The above-mentioned serial numbers of the embodiments of the present invention are only for description, and do not represent the advantages or disadvantages of the embodiments.
上述实施例中的集成的单元如果以软件功能单元的形式实现并作为独立的产品销售或使用时,可以存储在上述计算机可读取的存储介质中。基于这样的理解,本实用新型的技术方案本质上或者说对现有技术做出贡献的部分或者该技术方案的全部或部分可以以软件产品的形式体现出来,该计算机软件产品存储在存储介质中,包括若干指令用以使得一台或多台计算机设备(可为个人计算机、服务器或者网络设备等)执行本实用新型各个实施例方法的全部或部分步骤。If the integrated units in the above-mentioned embodiments are implemented in the form of software functional units and sold or used as independent products, they may be stored in the above-mentioned computer-readable storage medium. Based on such understanding, the technical solution of the present invention can be embodied in the form of a software product in essence, or the part that contributes to the prior art, or all or part of the technical solution, and the computer software product is stored in a storage medium , including several instructions for causing one or more computer devices (which may be personal computers, servers, or network devices, etc.) to execute all or part of the steps of the methods of the various embodiments of the present invention.
在本实用新型的上述实施例中,对各个实施例的描述都各有侧重,某个实施例中没有详述的部分,可以参见其他实施例的相关描述。In the above-mentioned embodiments of the present invention, the description of each embodiment has its own emphasis, and for parts that are not described in detail in a certain embodiment, reference may be made to the relevant descriptions of other embodiments.
在本申请所提供的几个实施例中,应该理解到,所揭露的客户端,可通过其它的方式实现。其中,以上所描述的装置实施例仅仅是示意性的,例如单元的划分,仅仅为一种逻辑功能划分,实际实现时可以有另外的划分方式,例如多个单元或组件可以结合或者可以集成到另一个系统,或一些特征可以忽略,或不执行。另一点,所显示或讨论的相互之间的耦合或直接耦合或通信连接可以是通过一些接口,单元或模块的间接耦合或通信连接,可以是电性或其它的形式。In the several embodiments provided in this application, it should be understood that the disclosed client may be implemented in other manners. The device embodiments described above are only illustrative, for example, the division of units is only a logical function division. In actual implementation, there may be other division methods, for example, multiple units or components may be combined or integrated into Another system, or some features can be ignored, or not implemented. On the other hand, the shown or discussed mutual coupling or direct coupling or communication connection may be through some interfaces, indirect coupling or communication connection of units or modules, and may be in electrical or other forms.
作为分离部件说明的单元可以是或者也可以不是物理上分开的,作为单元显示的部件可以是或者也可以不是物理单元,即可以位于一个地方,或者也可以分布到多个网络单元上。可以根据实际的需要选择其中的部分或者全部单元来实现本实施例方案的目的。Units described as separate components may or may not be physically separated, and components shown as units may or may not be physical units, that is, may be located in one place, or may be distributed to multiple network units. Some or all of the units may be selected according to actual needs to achieve the purpose of the solution in this embodiment.
另外,在本实用新型各个实施例中的各功能单元可以集成在一个处理单元中,也可以是各个单元单独物理存在,也可以两个或两个以上单元集成在一个单元中。上述集成的单元既可以采用硬件的形式实现,也可以采用软件功能单元的形式实现。In addition, each functional unit in each embodiment of the present invention may be integrated into one processing unit, or each unit may exist physically alone, or two or more units may be integrated into one unit. The above-mentioned integrated units may be implemented in the form of hardware, or may be implemented in the form of software functional units.
以上仅是本实用新型的优选实施方式,应当指出,对于本技术领域的普通技术人员来说,在不脱离本实用新型原理的前提下,还可以做出若干改进和润饰,这些改进和润饰也应视为本实用新型的保护范围。The above are only the preferred embodiments of the present utility model. It should be pointed out that for those skilled in the art, without departing from the principles of the present utility model, several improvements and modifications can also be made. It should be regarded as the protection scope of the present invention.
| Application Number | Priority Date | Filing Date | Title |
|---|---|---|---|
| CN201921897847.9UCN210577891U (en) | 2019-11-04 | 2019-11-04 | Power supply terminals and wearable systems |
| Application Number | Priority Date | Filing Date | Title |
|---|---|---|---|
| CN201921897847.9UCN210577891U (en) | 2019-11-04 | 2019-11-04 | Power supply terminals and wearable systems |
| Publication Number | Publication Date |
|---|---|
| CN210577891Utrue CN210577891U (en) | 2020-05-19 |
| Application Number | Title | Priority Date | Filing Date |
|---|---|---|---|
| CN201921897847.9UActiveCN210577891U (en) | 2019-11-04 | 2019-11-04 | Power supply terminals and wearable systems |
| Country | Link |
|---|---|
| CN (1) | CN210577891U (en) |
| Publication number | Priority date | Publication date | Assignee | Title |
|---|---|---|---|---|
| CN113904401A (en)* | 2019-11-04 | 2022-01-07 | 优奈柯恩(北京)科技有限公司 | Power supply terminal and wearable system |
| Publication number | Priority date | Publication date | Assignee | Title |
|---|---|---|---|---|
| CN113904401A (en)* | 2019-11-04 | 2022-01-07 | 优奈柯恩(北京)科技有限公司 | Power supply terminal and wearable system |
| Publication | Publication Date | Title |
|---|---|---|
| CN205139907U (en) | A USB Type-C data cable | |
| CN115733549B (en) | PCIE network card, switching method of interface modes of PCIE network card, electronic equipment and storage medium | |
| US20180033402A1 (en) | Head-wearable display device | |
| US20170116147A1 (en) | System, device and method for transmitting signals between different communication interfaces | |
| CN110879792B (en) | Electronic equipment and interface control method thereof | |
| JP3229746U (en) | Interface conversion circuit and equipment | |
| CN204650513U (en) | Distributed structure/architecture equipment and serial port circuit thereof | |
| CN108369567A (en) | Increased data flow in universal serial bus (USB) cable | |
| CN205029143U (en) | USB Type-C conversion module | |
| CN108959141A (en) | USB interface system, method, apparatus, device and storage medium for allocating USB bandwidth | |
| CN210577891U (en) | Power supply terminals and wearable systems | |
| CN110854948A (en) | Power supply terminals and wearable systems | |
| CN204947285U (en) | USB Type-C conversion module | |
| CN116521114B (en) | Image processing modules, equipment and systems | |
| CN207303601U (en) | A kind of VR/AR connection cables | |
| CN112702083B (en) | Electronic equipment and communication method | |
| TWM634558U (en) | Usb integrated circuit | |
| CN103489431A (en) | Display terminal | |
| CN110518937A (en) | Junction cable and augmented reality system | |
| CN209560528U (en) | interface compatible device and display panel | |
| CN221884301U (en) | High-speed interface expansion board card and electronic equipment | |
| CN202551076U (en) | Display device and conversion device thereof | |
| CN205029144U (en) | USB Type-C conversion module | |
| CN216956856U (en) | Special mainboard for machine vision system | |
| CN205068314U (en) | computer switching device |
| Date | Code | Title | Description |
|---|---|---|---|
| GR01 | Patent grant | ||
| GR01 | Patent grant |