Movatterモバイル変換


[0]ホーム

URL:


CN203116208U - External cooling type evaporative cooling and mechanical refrigeration combined air-conditioning system for data machine room - Google Patents

External cooling type evaporative cooling and mechanical refrigeration combined air-conditioning system for data machine room
Download PDF

Info

Publication number
CN203116208U
CN203116208UCN 201320122734CN201320122734UCN203116208UCN 203116208 UCN203116208 UCN 203116208UCN 201320122734CN201320122734CN 201320122734CN 201320122734 UCN201320122734 UCN 201320122734UCN 203116208 UCN203116208 UCN 203116208U
Authority
CN
China
Prior art keywords
water
cooler
air
mechanical refrigeration
cooling
Prior art date
Legal status (The legal status is an assumption and is not a legal conclusion. Google has not performed a legal analysis and makes no representation as to the accuracy of the status listed.)
Expired - Fee Related
Application number
CN 201320122734
Other languages
Chinese (zh)
Inventor
黄翔
范坤
宋姣姣
Current Assignee (The listed assignees may be inaccurate. Google has not performed a legal analysis and makes no representation or warranty as to the accuracy of the list.)
Xian Polytechnic University
Original Assignee
Xian Polytechnic University
Priority date (The priority date is an assumption and is not a legal conclusion. Google has not performed a legal analysis and makes no representation as to the accuracy of the date listed.)
Filing date
Publication date
Application filed by Xian Polytechnic UniversityfiledCriticalXian Polytechnic University
Priority to CN 201320122734priorityCriticalpatent/CN203116208U/en
Application grantedgrantedCritical
Publication of CN203116208UpublicationCriticalpatent/CN203116208U/en
Anticipated expirationlegal-statusCritical
Expired - Fee Relatedlegal-statusCriticalCurrent

Links

Images

Landscapes

Abstract

Translated fromChinese

本实用新型公开了数据机房用外冷式蒸发冷却与机械制冷复合空调系统,包括有设置于室内的空气处理机组和设置于室外的蒸发冷却高温冷水机组及机械制冷冷水机组,空气处理机组通过管网分别与蒸发冷却高温冷水机组及机械制冷冷水机组连接。本实用新型的数据机房用外冷式蒸发冷却与机械制冷复合空调系统不仅具有较好的制冷能力,而且具有良好的节能效果,同时非常适用于空气含尘量较大的地区。

Figure 201320122734

The utility model discloses an external cooling evaporative cooling and mechanical refrigeration composite air-conditioning system for a data computer room, which includes an indoor air handling unit, an evaporative cooling high-temperature chiller and a mechanical refrigeration chiller located outdoors, and the air handling unit passes through a tube The network is respectively connected with the evaporative cooling high-temperature chiller and the mechanical refrigeration chiller. The external cooling type evaporative cooling and mechanical refrigeration composite air conditioning system for the data computer room of the utility model not only has good cooling capacity, but also has good energy saving effect, and is very suitable for areas with a large amount of dust in the air.

Figure 201320122734

Description

Data machine room external-cooling type evaporative cooling and mechanical refrigeration composite air conditioner system
Technical field
The utility model belongs to the operation of air conditioning systems technical field, relate to a kind of data machine room with external-cooling type evaporative cooling and mechanical refrigeration composite air conditioner system, be specifically related to a kind of by the compound machine room external-cooling type air-conditioning system of forming of pyrometric scale cooler, cryometer cooler, direct evaporative cooler, evaporation cooling high-temperature handpiece Water Chilling Units and mechanical refrigeration.
Background technology
In China profuse regenerative resource is arranged---the dry air energy, should fully be used at this favourable climate characteristic, consume big problem with the energy refrigeration in summer of alleviating China.
The Evaporative Cooling Air Conditioning technology namely takes full advantage of the dry air energy and reaches the effect of cooling energy-saving.Through constantly research and test, evaporation cooling high-temperature handpiece Water Chilling Units, direct evaporative cooler and handpiece Water Chilling Units is compound and air-conditioning system that constitute can have been given play to the advantage of Evaporative Cooling Air Conditioning, evaporation cooling high-temperature handpiece Water Chilling Units wherein is the strong evaporative cooling equipment of a kind of compact conformation, cooling ability, have low-carbon (LC), environmental protection, advantage of low energy consumption, be a kind of equipment that meets China's " energy-saving and emission-reduction " policy environment, obtained fine application in the NORTHWEST CHINA area at present.
Summary of the invention
The purpose of this utility model is to provide a kind of data machine room with external-cooling type evaporative cooling and mechanical refrigeration composite air conditioner system, has not only improved the ability of refrigeration, and has had good energy-saving effect.
The technical scheme that the utility model adopts is, data machine room external-cooling type evaporative cooling and mechanical refrigeration composite air conditioner system, include and be arranged at indoor air-treatment unit and be arranged at outdoor evaporation cooling high-temperature handpiece Water Chilling Units and mechanical refrigeration handpiece Water Chilling Units, the air-treatment unit is connected with evaporation cooling high-temperature handpiece Water Chilling Units and mechanical refrigeration handpiece Water Chilling Units respectively by pipe network.
Characteristics of the present utility model also are,
The air-treatment unit includes the air-conditioning unit, the air-conditioning unit is respectively arranged with air inlet, exhaust outlet on the relative two side, be disposed with roughing efficiency air filter, pyrometric scale cooler, cryometer cooler, direct evaporative cooler a, water fender and pressure fan by new wind approach axis in the air-conditioning unit, the bottom of cryometer cooler is provided with water pond with fixed attention, direct evaporative cooler a includes filler a, the top of filler a is provided with water-locator, the bottom of filler a is provided with cistern, cistern is connected with water-locator by feed pipe, and feed pipe is provided with water circulating pump a.
Filler among the direct evaporative cooler a adopts string filler, filling material of polymers, aluminium foil filler or stainless steel helices.
Be provided with direct evaporative cooler b in the evaporation cooling high-temperature handpiece Water Chilling Units, the both sides of direct evaporative cooler b are respectively arranged with an indirect evaporation cooler, all are provided with fresh wind port on two the corresponding evaporation cooling high-temperature handpiece Water Chilling Units of indirect evaporation cooler sidewalls;
Direct evaporative cooler b includes filler b, and the top of filler b is disposed with water-distributing device a, water fender and exhaust blower, and the bottom of filler b is provided with header tank;
Indirect evaporation cooler includes heat exchanger, and the top of heat exchanger is disposed with water-distributing device, water fender and blower fan, and the heat exchanger bottom is provided with water tank, and water tank is connected with water-distributing device by water pipe, and water pipe is provided with water pump.
Filler among the direct evaporative cooler b adopts string filler, filling material of polymers, aluminium foil filler or stainless steel helices.
Pyrometric scale cooler in the air-treatment unit is by water inlet pipe G1Be connected with the water-distributing device a in the evaporation cooling high-temperature handpiece Water Chilling Units, the pyrometric scale cooler is also by outlet pipe G2Be connected water inlet pipe G with header tank1Be provided with circulating pump and valve, the cryometer cooler is respectively by water inlet pipe G3, outlet pipe G4Be connected water inlet pipe G with the mechanical refrigeration handpiece Water Chilling Units3Be provided with circulating pump, outlet pipe G4Be provided with valve.
The beneficial effects of the utility model are:
1) the air-treatment unit in the composite air conditioner system of the present utility model has the advantage that volume is little and floor space is little, when the air-treatment unit need be arranged in the Air Conditioning Facilities, can effectively save the interior space;
2) the evaporation cooling high-temperature handpiece Water Chilling Units in the composite air conditioner system of the present utility model adopts indirectly+direct evaporation cooling construction, and its complete machine structure configuration is more reasonable, and cooling capacity is stronger, can also be applicable to the area that dust content of air is bigger;
3) pyrometric scale cooler and cryometer cooler are set in the composite air conditioner system of the present utility model respectively, can be according to the needs of outdoor weather condition and the variation of machine room internal load, adjust the pattern of opening operation flexibly, the effect of each functional section of refinement finally reaches purpose of energy saving.
Description of drawings
Fig. 1 is the structural representation that data machine room of the present utility model is used external-cooling type evaporative cooling and mechanical refrigeration composite air conditioner system;
Fig. 2 is the procedure chart that adopts data machine room of the present utility model with external-cooling type evaporative cooling and mechanical refrigeration composite air conditioner system air to be handled.
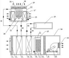
Among the figure, 1. air inlet; 2. roughing efficiency air filter; 3. pyrometric scale cooler; 4. coagulate water pond; 5. cryometer cooler; 6. water circulating pump a; 7. cistern; 8. filler a; 9. water fender a; 10. pressure fan; 11. water-locator; 12. the evaporation cooling high-temperature handpiece Water Chilling Units, 13. mechanical refrigeration handpiece Water Chilling Units, 14. air-treatment units, 15. direct evaporative cooler a, 16. exhaust outlet, 17. fresh wind ports, 18. direct evaporative cooler b, 19. indirect evaporation coolers, 20. filler b, 21. water-distributing device a, 22. header tanks, 23. heat exchangers.
The specific embodiment
Below in conjunction with the drawings and specific embodiments the utility model is elaborated.
Data machine room of the present utility model external-cooling type evaporative cooling and mechanical refrigeration composite air conditioner system, its structure as shown in Figure 1, include and be arranged at indoor air-treatment unit 14 and be arranged at outdoor evaporation cooling high-temperature handpieceWater Chilling Units 12 and mechanical refrigeration handpieceWater Chilling Units 13, air-treatment unit 14 is connected with evaporation cooling high-temperature handpieceWater Chilling Units 12 and mechanical refrigeration handpieceWater Chilling Units 13 respectively by pipe network.
Air-treatment unit 14 includes the air-conditioning unit, the air-conditioning unit is respectively arranged with air inlet 1 on the relative two side,exhaust outlet 16, be disposed with roughing efficiency air filter 2 by new wind approach axis in the air-conditioning unit,pyrometric scale cooler 3, cryometer cooler 5, direct evaporative cooler a15, water fender a9 andpressure fan 10, the bottom of cryometer cooler 5 is provided withwater pond 4 with fixed attention, direct evaporative cooler a15 includes filler a8, the top of filler a8 is provided with water-locator 11, the bottom of filler a8 is provided withcistern 7,cistern 7 is connected with water-locator 11 by feed pipe, and feed pipe is provided with water circulating pump a6.
Be provided with direct evaporative cooler b18 in the evaporation cooling high-temperature handpieceWater Chilling Units 12, the both sides of direct evaporative cooler b18 are respectively arranged with anindirect evaporation cooler 19, all are provided withfresh wind port 17 onindirect evaporation cooler 19 corresponding evaporation cooling high-temperature handpieceWater Chilling Units 12 sidewalls of both sides;
Direct evaporative cooler b18 includes filler b20, and the top of filler b20 is disposed with water-distributing device a21, water fender and exhaust blower, and the bottom of filler b20 is provided withheader tank 22;
Indirect evaporation cooler 19 includesheat exchanger 23, and the top ofheat exchanger 23 is disposed with water-distributing device, water fender and blower fan, andheat exchanger 23 bottoms are provided with water tank, and water tank is connected with water-distributing device by water pipe, and water pipe is provided with water pump.
Air-treatment unit 14 is connected with evaporation cooling high-temperature handpieceWater Chilling Units 12 and mechanical refrigeration handpieceWater Chilling Units 13 by pipe network, and its pipe network structure is: thepyrometric scale cooler 3 in the air-treatment unit 14 is by water inlet pipe G1Be connected with the water-distributing device a21 in the evaporation cooling high-temperature handpieceWater Chilling Units 12,pyrometric scale cooler 3 is also by outlet pipe G2Be connected water inlet pipe G withheader tank 221Be provided with circulating pump and valve, cryometer cooler 5 is respectively by water inlet pipe G3, outlet pipe G4Be connected water inlet pipe G with mechanical refrigeration handpieceWater Chilling Units 133Be provided with circulating pump, outlet pipe G4Be provided with valve.
Data machine room of the present utility model is with in external-cooling type evaporative cooling and the mechanical refrigeration composite air conditioner system, be arranged at outdoor evaporation cooling high-temperature handpieceWater Chilling Units 12 and mechanical refrigeration handpieceWater Chilling Units 13 and be respectivelypyrometric scale cooler 3 and the cryometer cooler 5 supply low-temperature cold waters that are arranged in the indoor air-treatment unit 14, the air that needs to handle enters in the air-treatment unit 14 by air inlet 1, enteringpyrometric scale cooler 3 after filtering through roughing efficiency air filter 2 earlier carries out etc. but clammy, and then enter the cryometer cooler 5 that band coagulateswater pond 4 and carry out further waiting wet cooling, carry out the constant enthalpy cooling by direct evaporative cooler a15 at last, by behind the water fender a9, deliver to air conditioning area bypressure fan 10 again.
When air-treatment unit 14 when indoor temperature is higher than outdoor temperature, handle 100% outdoor new wind and send into indoorly, discharged by supply air system again; When indoor temperature was lower than outdoor temperature, this air-treatment unit 14 was handled new wind and the mixed air of return air according to certain mixing ratio, perhaps handles 100% return air, all can realize.
Data machine room of the present utility model can adopt brand-new wind direct air system with external-cooling type evaporative cooling and mechanical refrigeration composite air conditioner system, also can handle air according to certain new wind and return air ratio.The air of handling through direct evaporative cooler is the air of low temperature and high relative humidity, can satisfy the needs of data machine room air wetting, the filler in the direct evaporative cooler wherein adopts string filler, filling material of polymers, aluminium foil filler and stainless steel helices.The high temperature cold water of handling through evaporation cooling high-temperature handpieceWater Chilling Units 12 feeds in thepyrometric scale cooler 3 of air-treatment unit in the Air Conditioning Facilities through pipeline, air is cooled off, if the air throughpyrometric scale cooler 3 can't reach the data machine room to the temperature requirement of air intake, just need to open mechanical refrigeration handpieceWater Chilling Units 13, the low-temperature cold water of mechanical refrigeration handpieceWater Chilling Units 13 outputs feeds cryometer cooler 5 again, air is further processed, sends into data machine room inside through direct evaporative cooling section then.Such design refinement temperature-fall period, if the air afterpyrometric scale cooler 3 is handled can satisfy the air-supply requirement, just do not need mechanical refrigeration handpieceWater Chilling Units 13, open mechanical refrigeration handpiece Water ChillingUnits 13 if desired, 12 pairs of air of evaporation cooling high-temperature handpiece Water Chilling Units carry out precooling so, reduce the operating load of handpiece Water Chilling Units, the operating cost of evaporation cooling high-temperature handpieceWater Chilling Units 12 is far below the operating cost of mechanical refrigeration handpieceWater Chilling Units 13, reduce the operation energy consumption of a whole set of data computer-room air conditioning system, reached purpose of energy saving.
The utility model data machine room is handled the course of work of brand-new wind with air-treatment unit indoor in external-cooling type evaporative cooling and the mechanical refrigeration composite air conditioner system 14:
Psychrometric chart is as shown in Figure 2 when transition season is handled brand-new wind for air-treatment unit 14 in the Air Conditioning Facilities, during (Fig. 2 represent be the process of handling air when being in excessive season) operation composite air conditioner system of the present utility model: open evaporation cooling high-temperature handpieceWater Chilling Units 12, close mechanical refrigeration handpieceWater Chilling Units 13, evaporation cooling high-temperature handpieceWater Chilling Units 12 provides high temperature cold water for thepyrometric scale cooler 3 in the air-treatment unit 14, outdoor new wind is through air inlet 1, enterpyrometric scale cooler 3 after the roughing efficiency air filter 2, W from Fig. 2 such as orders at the wet a of being cooled to point, processed air reaches in the direct evaporative cooler a15 then, processed air is cooled to ventilation state point O point Fig. 2 from a point constant enthalpy in direct evaporative cooler a15, then by water fender a9, sent into indoorly at last bypressure fan 10, arrive the N point.
The data machine room of the present utility model course of work of external-cooling type evaporative cooling and mechanical refrigeration composite air conditioner system grey water system:
In evaporation cooling high-temperature handpieceWater Chilling Units 12, water in theheader tank 22 is delivered to thepyrometric scale cooler 3 that is arranged in Air Conditioning Facilities air-treatment unit 14 by circulating pump, 3 pairs of processed air by its outer surface of pyrometric scale cooler carry out etc. clammy but after, water temperature rises, get back in the evaporation cooling high-temperature handpieceWater Chilling Units 12 by pipeline and circulating pump, so circulation.
Low-temperature cold water in the mechanical refrigeration handpieceWater Chilling Units 13 is delivered to the cryometer cooler 5 that is arranged in Air Conditioning Facilities air-treatment unit 14 by pipeline and circulating pump, 5 pairs of processed air by its outer surface of cryometer cooler carry out etc. clammy but after, water temperature rises, get back in the mechanical refrigeration handpieceWater Chilling Units 13 by pipeline and circulating pump then, so circulation.
Among the direct evaporative cooler a15, the water in thecistern 7 is delivered to the water-locator 11 that is arranged in filler a8 top by water circulating pump a6, and spray is to filler a8 uniformly then, and last unnecessary water is got back under the effect of gravity in thecistern 7, so circulation.
Data machine room of the present utility model overcomes the deficiencies in the prior art part with external-cooling type evaporative cooling and mechanical refrigeration composite air conditioner system, can reach more effective being applied in the middle of the reality, by pyrometric scale cooler, cryometer cooler, direct evaporative cooler, evaporation cooling high-temperature handpiece Water Chilling Units and the suitable combination of mechanical refrigeration handpiece Water Chilling Units having been constructed a kind of air-conditioning system at the data center machine room design.

Claims (6)

1. the data machine room is with external-cooling type evaporative cooling and mechanical refrigeration composite air conditioner system, it is characterized in that, include and be arranged at indoor air-treatment unit (14) and be arranged at outdoor evaporation cooling high-temperature handpiece Water Chilling Units (12) and mechanical refrigeration handpiece Water Chilling Units (13), described air-treatment unit (14) is connected with described evaporation cooling high-temperature handpiece Water Chilling Units (12) and mechanical refrigeration handpiece Water Chilling Units (13) respectively by pipe network.
2. data machine room according to claim 1 is with external-cooling type evaporative cooling and mechanical refrigeration composite air conditioner system, it is characterized in that, described air-treatment unit (14) includes the air-conditioning unit, described air-conditioning unit is respectively arranged with air inlet (1) on the relative two side, exhaust outlet (16), be disposed with roughing efficiency air filter (2) by new wind approach axis in the described air-conditioning unit, pyrometric scale cooler (3), cryometer cooler (5), direct evaporative cooler a(15), water fender (9) and pressure fan (10), the bottom of described cryometer cooler (5) is provided with water pond (4) with fixed attention, described direct evaporative cooler a(15) includes filler a(8), described filler a(8) top is provided with water-locator (11), described filler a(8) bottom is provided with cistern (7), described cistern (7) is connected with described water-locator (11) by feed pipe, and described feed pipe is provided with water circulating pump a(6).
3. data machine room according to claim 2 is with external-cooling type evaporative cooling and mechanical refrigeration composite air conditioner system, it is characterized in that described direct evaporative cooler a(15) in filler adopt string filler, filling material of polymers, aluminium foil filler or stainless steel helices.
4. data machine room according to claim 1 is with external-cooling type evaporative cooling and mechanical refrigeration composite air conditioner system, it is characterized in that, be provided with direct evaporative cooler b(18 in the described evaporation cooling high-temperature handpiece Water Chilling Units (12)), described direct evaporative cooler b(18) both sides are respectively arranged with an indirect evaporation cooler (19), all are provided with fresh wind port (17) on the corresponding evaporation cooling high-temperature handpiece Water Chilling Units of two indirect evaporation coolers (19) (12) sidewall;
Described direct evaporative cooler b(18) include filler b(20), described filler b(20) top be disposed with water-distributing device a(21), water fender and exhaust blower, described filler b(20) the bottom be provided with header tank (22);
Described indirect evaporation cooler (19) includes heat exchanger (23), the top of described heat exchanger (23) is disposed with water-distributing device, water fender and blower fan, described heat exchanger (23) bottom is provided with water tank, described water tank is connected with water-distributing device by water pipe, and described water pipe is provided with water pump.
5. data machine room according to claim 4 is with external-cooling type evaporative cooling and mechanical refrigeration composite air conditioner system, it is characterized in that described direct evaporative cooler b(18) in filler adopt string filler, filling material of polymers, aluminium foil filler or stainless steel helices.
6. according to claim 2 or 4 described data machine rooms external-cooling type evaporative cooling and mechanical refrigeration composite air conditioner systems, it is characterized in that, pyrometric scale cooler (3) in the described air-treatment unit (14) is by the water-distributing device a(21 in water inlet pipe G1 and the described evaporation cooling high-temperature handpiece Water Chilling Units (12)) be connected, described pyrometric scale cooler (3) also passes through outlet pipe G2Be connected described water inlet pipe G with described header tank (22)1Be provided with circulating pump and valve, described cryometer cooler (5) is respectively by water inlet pipe G3, outlet pipe G4Be connected described water inlet pipe G with described mechanical refrigeration handpiece Water Chilling Units (13)3Be provided with circulating pump, described outlet pipe G4Be provided with valve.
CN 2013201227342013-03-192013-03-19External cooling type evaporative cooling and mechanical refrigeration combined air-conditioning system for data machine roomExpired - Fee RelatedCN203116208U (en)

Priority Applications (1)

Application NumberPriority DateFiling DateTitle
CN 201320122734CN203116208U (en)2013-03-192013-03-19External cooling type evaporative cooling and mechanical refrigeration combined air-conditioning system for data machine room

Applications Claiming Priority (1)

Application NumberPriority DateFiling DateTitle
CN 201320122734CN203116208U (en)2013-03-192013-03-19External cooling type evaporative cooling and mechanical refrigeration combined air-conditioning system for data machine room

Publications (1)

Publication NumberPublication Date
CN203116208Utrue CN203116208U (en)2013-08-07

Family

ID=48896544

Family Applications (1)

Application NumberTitlePriority DateFiling Date
CN 201320122734Expired - Fee RelatedCN203116208U (en)2013-03-192013-03-19External cooling type evaporative cooling and mechanical refrigeration combined air-conditioning system for data machine room

Country Status (1)

CountryLink
CN (1)CN203116208U (en)

Cited By (24)

* Cited by examiner, † Cited by third party
Publication numberPriority datePublication dateAssigneeTitle
CN104456793A (en)*2014-11-262015-03-25西安工程大学Thermal energy/wind energy-driven evaporative cooling and cooling tower integrated cooling system for power plant
CN105299807A (en)*2015-11-302016-02-03西安工程大学Cold supply system combining indirect-evaporation cooling tower with mechanical refrigeration for data center
CN105465928A (en)*2015-12-152016-04-06西安工程大学Fountain heat radiating and mechanical refrigeration combined cold supply system for data center
CN105698311A (en)*2016-03-072016-06-22西安工程大学Power distribution-type evaporative cooling independent temperature-humidity control air conditioning system for dry regions
CN106765771A (en)*2016-12-302017-05-31扬州华奕通讯设备有限公司A kind of energy-efficient evaporative cooling system and its operating method applied in data center's mechanical refrigeration
CN109073265A (en)*2016-03-082018-12-21北狄空气应对加拿大公司For providing cooling system and method to heat load
CN109769376A (en)*2019-02-112019-05-17西安工程大学 A liquid cooling system based on evaporative cooling technology
CN109990412A (en)*2019-03-012019-07-09西安工程大学 Data Center Air Conditioning System Combined with Mechanical Refrigeration and Natural Cooling
CN111194390A (en)*2017-09-082020-05-22北狄空气应对加拿大公司Hybrid direct and indirect air cooling system
US10928082B2 (en)2011-09-022021-02-23Nortek Air Solutions Canada, Inc.Energy exchange system for conditioning air in an enclosed structure
CN112665053A (en)*2021-01-182021-04-16深圳市艾特网能技术有限公司Cooling system
US11035618B2 (en)2012-08-242021-06-15Nortek Air Solutions Canada, Inc.Liquid panel assembly
CN113154559A (en)*2021-04-142021-07-23西安工程大学Direct evaporative cooling and mechanical refrigeration combined type air conditioning system
US11092349B2 (en)2015-05-152021-08-17Nortek Air Solutions Canada, Inc.Systems and methods for providing cooling to a heat load
US11143430B2 (en)2015-05-152021-10-12Nortek Air Solutions Canada, Inc.Using liquid to air membrane energy exchanger for liquid cooling
US11300364B2 (en)2013-03-142022-04-12Nortek Air Solutions Canada, Ine.Membrane-integrated energy exchange assembly
CN114396672A (en)*2022-01-172022-04-26沈阳澳蓝节能科技有限公司 A composite evaporative cooling air unit for cooling the machine room
US11598534B2 (en)2013-03-152023-03-07Nortek Air Solutions Canada, Inc.Control system and method for a liquid desiccant air delivery system
CN117450585A (en)*2023-12-252024-01-26北京市建筑设计研究院有限公司Air treatment device and method with hierarchical humidity regulation and control function
US11892193B2 (en)2017-04-182024-02-06Nortek Air Solutions Canada, Inc.Desiccant enhanced evaporative cooling systems and methods
US12111072B2 (en)2010-06-242024-10-08Nortek Air Solutions Canada, Inc.Liquid-to-air membrane energy exchanger
CN119617561A (en)*2024-11-262025-03-14常州大学Energy-saving fresh air system and method suitable for desert areas
US12385654B2 (en)2017-04-182025-08-12Nortek Air Solutions Canada, Inc.Systems and methods for managing conditions in enclosed space
US12442558B2 (en)2023-09-292025-10-14Nortek Air Solutions Canada, Inc.Using liquid to air membrane energy exchanger for liquid cooling

Cited By (38)

* Cited by examiner, † Cited by third party
Publication numberPriority datePublication dateAssigneeTitle
US12111072B2 (en)2010-06-242024-10-08Nortek Air Solutions Canada, Inc.Liquid-to-air membrane energy exchanger
US10928082B2 (en)2011-09-022021-02-23Nortek Air Solutions Canada, Inc.Energy exchange system for conditioning air in an enclosed structure
US11761645B2 (en)2011-09-022023-09-19Nortek Air Solutions Canada, Inc.Energy exchange system for conditioning air in an enclosed structure
US11035618B2 (en)2012-08-242021-06-15Nortek Air Solutions Canada, Inc.Liquid panel assembly
US11732972B2 (en)2012-08-242023-08-22Nortek Air Solutions Canada, Inc.Liquid panel assembly
US11300364B2 (en)2013-03-142022-04-12Nortek Air Solutions Canada, Ine.Membrane-integrated energy exchange assembly
US11598534B2 (en)2013-03-152023-03-07Nortek Air Solutions Canada, Inc.Control system and method for a liquid desiccant air delivery system
CN104456793B (en)*2014-11-262017-04-19西安工程大学Thermal energy/wind energy-driven evaporative cooling and cooling tower integrated cooling system for power plant
CN104456793A (en)*2014-11-262015-03-25西安工程大学Thermal energy/wind energy-driven evaporative cooling and cooling tower integrated cooling system for power plant
US10808951B2 (en)2015-05-152020-10-20Nortek Air Solutions Canada, Inc.Systems and methods for providing cooling to a heat load
US11143430B2 (en)2015-05-152021-10-12Nortek Air Solutions Canada, Inc.Using liquid to air membrane energy exchanger for liquid cooling
US12038198B2 (en)2015-05-152024-07-16Nortek Air Solutions Canada, Inc.Systems and methods for providing cooling to a heat load
US11092349B2 (en)2015-05-152021-08-17Nortek Air Solutions Canada, Inc.Systems and methods for providing cooling to a heat load
US11815283B2 (en)2015-05-152023-11-14Nortek Air Solutions Canada, Inc.Using liquid to air membrane energy exchanger for liquid cooling
CN105299807A (en)*2015-11-302016-02-03西安工程大学Cold supply system combining indirect-evaporation cooling tower with mechanical refrigeration for data center
CN105299807B (en)*2015-11-302018-04-27西安工程大学Data center indirect evaporating-cooling tower and the united cold supply system of mechanical refrigeration
CN105465928B (en)*2015-12-152018-05-15西安工程大学Data center fountain heat dissipation and the united cold supply system of mechanical refrigeration
CN105465928A (en)*2015-12-152016-04-06西安工程大学Fountain heat radiating and mechanical refrigeration combined cold supply system for data center
CN105698311B (en)*2016-03-072019-03-08西安工程大学 Air conditioning system with independent control of temperature and humidity with power distributed evaporative cooling in dry areas
CN105698311A (en)*2016-03-072016-06-22西安工程大学Power distribution-type evaporative cooling independent temperature-humidity control air conditioning system for dry regions
CN109073265A (en)*2016-03-082018-12-21北狄空气应对加拿大公司For providing cooling system and method to heat load
CN106765771A (en)*2016-12-302017-05-31扬州华奕通讯设备有限公司A kind of energy-efficient evaporative cooling system and its operating method applied in data center's mechanical refrigeration
US11892193B2 (en)2017-04-182024-02-06Nortek Air Solutions Canada, Inc.Desiccant enhanced evaporative cooling systems and methods
US12385654B2 (en)2017-04-182025-08-12Nortek Air Solutions Canada, Inc.Systems and methods for managing conditions in enclosed space
CN111194390A (en)*2017-09-082020-05-22北狄空气应对加拿大公司Hybrid direct and indirect air cooling system
CN111194390B (en)*2017-09-082021-12-31北狄空气应对加拿大公司Hybrid direct and indirect air cooling system
US11781775B2 (en)2017-09-082023-10-10Nortek Air Solutions Canada, Inc.Hybrid direct and indirect air cooling system
CN109769376B (en)*2019-02-112021-03-02西安工程大学Liquid cooling system based on evaporative cooling technology
CN109769376A (en)*2019-02-112019-05-17西安工程大学 A liquid cooling system based on evaporative cooling technology
CN109990412B (en)*2019-03-012020-12-08西安工程大学 Data Center Air Conditioning System Combined with Mechanical Refrigeration and Natural Cooling
CN109990412A (en)*2019-03-012019-07-09西安工程大学 Data Center Air Conditioning System Combined with Mechanical Refrigeration and Natural Cooling
CN112665053A (en)*2021-01-182021-04-16深圳市艾特网能技术有限公司Cooling system
CN113154559A (en)*2021-04-142021-07-23西安工程大学Direct evaporative cooling and mechanical refrigeration combined type air conditioning system
CN114396672A (en)*2022-01-172022-04-26沈阳澳蓝节能科技有限公司 A composite evaporative cooling air unit for cooling the machine room
US12442558B2 (en)2023-09-292025-10-14Nortek Air Solutions Canada, Inc.Using liquid to air membrane energy exchanger for liquid cooling
CN117450585A (en)*2023-12-252024-01-26北京市建筑设计研究院有限公司Air treatment device and method with hierarchical humidity regulation and control function
CN117450585B (en)*2023-12-252024-04-05北京市建筑设计研究院有限公司Air treatment device and method with hierarchical humidity regulation and control function
CN119617561A (en)*2024-11-262025-03-14常州大学Energy-saving fresh air system and method suitable for desert areas

Similar Documents

PublicationPublication DateTitle
CN203116208U (en)External cooling type evaporative cooling and mechanical refrigeration combined air-conditioning system for data machine room
CN105120637B (en)Data center's evaporation cold compound cooling system of cooling water cold wind
CN203116210U (en)Evaporative cooling and mechanical refrigeration combined system for data machine room
CN105135572B (en)The heat pipe combined recovery type evaporative cooling air conditioning system of data center
CN101629743B (en) Ceiling-type evaporative cooling fresh air unit with porous ceramic evaporative cooler
CN204963063U (en)Type air conditioner is united in evaporation cooling water -cooling - forced air cooling system for data center
CN205065912U (en)Heat pipe - heat recovery type evaporative cooling air -conditioning system suitable for data center
CN204084700U (en)The air-conditioning that the runner being applicable to machine room size environment is combined with evaporative cooling unit
CN202485129U (en)Evaporative cooling double-cold-source type semi-concentration type air conditioning system
CN203757913U (en)Evaporative cooling air conditioner combining with carbon dioxide monitoring
CN101788174B (en)Evaporative cooling and air-cooled heat pump type composite water chiller-heater unit
CN206430295U (en)A kind of modular dew point indirect evaporative cooling and mechanical refrigeration combined air conditioner unit
CN104613574B (en)Humiture independence control air conditioner system based on cascaded utilization of energy
CN209165653U (en) An evaporative cooling air conditioning system for a data center with a closed hot aisle
CN201621798U (en) Chiller with combination of evaporative chiller and air-cooled heat pump chiller
CN103104954B (en)Two low-temperature receiver cooperation reclaims the air-conditioning system of the cold and hot amount of indoor exhaust wind
CN103727621A (en)Evaporative cooling air conditioning system based on carbon dioxide monitoring and cooling quantity cascade utilization
CN203116206U (en)Stand pipe type modularization evaporative cooling water chiller
CN202392918U (en)Air-conditioner integrating evaporative cooling and semiconductor refrigeration
CN202254208U (en)Direct expansion air conditioning unit with dew-point indirect evaporative cooling air-side economizer
CN203385116U (en)Heat-pipe thermal control type air conditioning system combining evaporative cooling and mechanical refrigeration
CN201218574Y (en) A heat pipe cold recovery type evaporative cooling high temperature chiller
CN105020807A (en)Supercooling heat pump type solution humidification and evaporation cooling compounded air conditioning system
CN202675496U (en)Jet-flow noise-elimination type evaporative cooling air conditioning unit
CN202403358U (en)Indirect-direct evaporative cooling air conditioning unit

Legal Events

DateCodeTitleDescription
C14Grant of patent or utility model
GR01Patent grant
C17Cessation of patent right
CF01Termination of patent right due to non-payment of annual fee

Granted publication date:20130807

Termination date:20140319


[8]ページ先頭

©2009-2025 Movatter.jp