Movatterモバイル変換


[0]ホーム

URL:


CN202424080U - Alternating-current de-icing system for traction network of electrified railway - Google Patents

Alternating-current de-icing system for traction network of electrified railway
Download PDF

Info

Publication number
CN202424080U
CN202424080UCN2011205352314UCN201120535231UCN202424080UCN 202424080 UCN202424080 UCN 202424080UCN 2011205352314 UCN2011205352314 UCN 2011205352314UCN 201120535231 UCN201120535231 UCN 201120535231UCN 202424080 UCN202424080 UCN 202424080U
Authority
CN
China
Prior art keywords
down transformer
ice
contact line
isolating switch
traction
Prior art date
Legal status (The legal status is an assumption and is not a legal conclusion. Google has not performed a legal analysis and makes no representation as to the accuracy of the status listed.)
Expired - Lifetime
Application number
CN2011205352314U
Other languages
Chinese (zh)
Inventor
楚振宇
陈刚
陈纪纲
徐剑
李剑
潘英
宋兵
林宗良
汪秋宾
Current Assignee (The listed assignees may be inaccurate. Google has not performed a legal analysis and makes no representation or warranty as to the accuracy of the list.)
China Railway Eryuan Engineering Group Co Ltd CREEC
Original Assignee
China Railway Eryuan Engineering Group Co Ltd CREEC
Priority date (The priority date is an assumption and is not a legal conclusion. Google has not performed a legal analysis and makes no representation as to the accuracy of the date listed.)
Filing date
Publication date
Application filed by China Railway Eryuan Engineering Group Co Ltd CREECfiledCriticalChina Railway Eryuan Engineering Group Co Ltd CREEC
Priority to CN2011205352314UpriorityCriticalpatent/CN202424080U/en
Application grantedgrantedCritical
Publication of CN202424080UpublicationCriticalpatent/CN202424080U/en
Anticipated expirationlegal-statusCritical
Expired - Lifetimelegal-statusCriticalCurrent

Links

Images

Landscapes

Abstract

The utility model discloses an alternating-current de-icing system for a traction network of an electrified railway. The alternating-current de-icing system is provided with a step-down transformer and a capacitive electrical device, adjusts the current flowing through the traction network through adjusting the output voltage of the step-down transformer and the impedance of the capacitive electrical device, and melts coated ices by using joule heat generated by that the current flows through a guide line; and the complete set of device is small in electric capacity and high in energy utilization rate. The alternating-current de-icing system comprises a step-down transformer (10), a capacitive electrical device (20), a circuit breaker and an isolating switch, wherein the high-voltage side of the step-down transformer (10) is connected to a 27.5 kV bus (1) of a traction substation through the isolating switch and the circuit breaker; and the low-voltage side of the step-down transformer (10) connects the capacitive electrical device (20), an overhead line system (2) and a bonding conductor (4) with other conductors (3) of the traction network through the circuit breaker and the isolating switch so as to form a de-icing loop.

Description

Electric railway traction net exchanges ice melting system
Technical field
The utility model relates to electric railway traction net, and particularly a kind of electric railway traction net that has step-down transformer and capacitive character electric equipment exchanges ice melting system.
Background technology
Electric railway traction net comprises contact line, rail and additive wire conductors such as (return wire, positive feeders etc.).Multiple line electrified railway power supply arm end is typically provided with the section post of band up-downgoing paralleling switch.Contact line is the important traction power supply facility that electric energy is provided to EMUs and electric locomotive.During the contact line icing, will cause EMUs can't normally contact with contact wire with pantograph in the electric locomotive, thus dead electricity can't move, also possibly cause contact line to wave, pillar is toppled over even contact line is striden serious accident such as collapse.Set up parallel with contact line of additive wire (return wire, positive feeder etc.) adopted steel reinforced aluminium conductor usually, when icing is serious, can break, and influences power supply capacity and transportation safety.Therefore additive wire also need melt icing.
The basic principle of electric railway traction net ice-melt be with through deicing device with contact line and (or) additive wire seals in the ice-melt loop; Thereby produce ice melting current flow through contact line with (or) additive wire, make lead pass through electric current and produce joule heat energy and melt an icing.At present, the method for modal removal traction net conductor icing is that deicing is beaten in manual work, and this method very easily produces mechanical damage to contact line and additive wire.In addition, have unit to propose that the big resistance of series connection comes the interchange ice-melting mode of Control current in traction net, the utilance of this mode electric energy is lower.Have unit to propose the interchange ice-melting mode that directly will draw the net short circuit, utilize short circuit current, the big short circuit current that this mode produces can be difficult to control to the impact damage of electric equipment, and security reliability is lower.Also have unit to propose in the traction net, to be provided with the DC ice melting mode of rectifying device, this mode rectifying device cost is higher, and rectifying device is fragile.
The utility model content
The utility model technical problem to be solved provides a kind of electric railway traction net and exchanges ice melting system; Have step-down transformer and capacitive character electric equipment; Regulate the electric current of the traction net of flowing through through the impedance of regulating step-down transformer output voltage and capacitive character electric equipment; Joule heat that lead produces melts icing to utilize electric current to flow through, and the package unit electrical capacity is little, and capacity usage ratio is high.
It is following that the utility model solves the technical scheme that its technical problem adopted:
The electric railway traction net of the utility model exchanges ice melting system, and it is characterized in that: it comprises step-down transformer, capacitive character electric equipment, and the high-pressure side of said step-down transformer is connected on the traction substation 27.5kV bus through isolating switch, circuit breaker; The low-pressure side of step-down transformer connects into the ice-melt loop through circuit breaker, isolating switch with capacitive character electric equipment, contact line, bonding conductor and other conductor of traction net.
The utility model can be used for single line electric railway and multiple line electric railway, can be used for the electric railway of direct feeding system and autotransformer feeding system, compared with prior art, has the advantage of the following aspects:
(1) cuts down the emotional resistance that traction is netted through the capacitive reactances of choose reasonable or control capacittance property electric equipment, make the ice-melt loop present resistive basically.Because contact line resistance is less, therefore under same ice melting current, the needed electrical capacity of the utility model is less.In the ice-melt loop, the electric heating energy mainly consumes on the resistance of contact line and additive wire, only produces a little loss at step-down transformer and capacitive character electric equipment, and therefore the capacity usage ratio of a whole set of deicing device is higher.
(2) length of supply arm is usually between 10~30km.In order to adapt to the supply arm of different length, the capacitive reactances of step-down transformer low-pressure side output voltage and capacitive character electric equipment can be regulated.
(3) impedance of step-down transformer low-pressure side output voltage and capacitive character electric equipment can according to circumstances be set before system puts into operation, and also can be employed in self-adjusting mode in service.
(4) beat the deicing mode with manual work and compare, the utility model utilizes Joule heat to melt icing, can fully reduce the damage of external force to contact line.Compare with the ice-melting mode that exchanges that utilizes short circuit current, this device is control easily, can not produce the impact damage of big short circuit current to equipment, and security reliability is higher.Compare with the ice-melting mode that exchanges that utilizes the resistance current limliting, the utility model capacity usage ratio is higher.Compare with the DC ice melting mode, the utility model technology maturation, equipment dependability is higher.
(5) system that provides of the utility model can install concentratedly in traction substation or near, also can by disperse to be installed in the traction substation or neighbouring and be installed in the section post or near combine,
Description of drawings
This specification comprises following three width of cloth accompanying drawings:
Fig. 1 is the structural representation that the utility model electric railway traction net exchanges icemelting system embodiment 1;
Fig. 2 is the structural representation that the utility model electric railway traction net exchanges icemelting system embodiment 2;
Fig. 3 is the structural representation that the utility model electric railway traction net exchanges icemelting system embodiment 3.
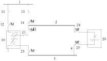
Parts shown in the figure, device name and pairing mark: traction substation 27.5kV bus 1,contact line 2,other conductor 3 of traction net,bonding conductor 4, step-down transformer the 10, the 1st circuit breaker the 11, the 1st isolating switch the 12, the 2nd circuit breaker the 13, the2nd isolating switch 14, capacitive character electric equipment the 20, the 3rd circuit breaker the 21, the 3rd isolating switch the 22, the 4th isolating switch the 23, the 5th isolating switch the 24, the6th isolating switch 25.
Embodiment
Below in conjunction with accompanying drawing and embodiment the utility model is further specified.
With reference to Fig. 1, Fig. 2 or Fig. 3; The electric railway traction net of the utility model exchanges ice melting system; It is characterized in that: it comprises step-downtransformer 10, capacitive characterelectric equipment 20, and the high-pressure side of said step-downtransformer 10 is connected on the traction substation 27.5kV bus 1 through the 1st isolating switch the 12, the1st circuit breaker 11; The low-pressure side of step-downtransformer 10 connects into ice-melt loop with capacitive characterelectric equipment 20,contact line 2,bonding conductor 4 withother conductor 2 of traction net through circuit breaker, isolating switch.
The high-pressure side rated voltage 27.5kV of said step-downtransformer 10, low-pressure side can provide multilevel voltage output (like 10kV/8kV/6kV/4kV etc.), and the user selects suitable low-pressure side operating voltage according to actual needs; Both can be oil immersed type, also can be dry type; Both can be automatic Regulation, also can be artificial pressure regulation.Said capacitive characterelectric equipment 20; It both can be the capacitor group of fixed capacity; It also can be the capacitor group of adjustable capacity; Also can be to demonstrate the capacitive character electric device,, also comprise the corollary equipment of this capacitive character electric equipment like the reactor of thyristor control and the combination shunting means (TCR+FC) of fixed capacitor etc. through power electronic device control.
Also comprise necessary control protective device of above electric equipment operate as normal and supply unit in the system.The control protective device is according to the customer requirements closure or open circuit breaker and isolating switch, can when the device internal fault, cut off the electricity supply rapidly.The control protective device adopts microcomputer type, both can be used as a part of traction substation complex automatic system, also can independently be provided with and through communication interface and traction substation complex automatic system swap data.Supply unit both can utilize the ac and dc systems of traction substation, also can adopt external power supply, carry the mode of AC power supply panel and direct-flow storage battery screen.
What need particularly point out is,other conductor 3 of the traction net in the accompanying drawing can be different traction net conductors under the different application occasion, and as when the ice-melt of single line electrification railway contact net,other conductor 3 of traction net is rail; When contact line and return wire ice-melt simultaneously,other conductor 3 of traction net is return wires; When contact line and positive feeder ice-melt simultaneously,other conductor 3 of traction net is positive feeders; When the ice-melt simultaneously of multiple line electric railway up-downgoing contact line,other conductor 3 of traction net is another contact lines except contact line 2.Bonding conductor 4 can be different conductors under the different application occasion; Likecontact line 2 under the different application occasion respectively with rail, return wire, when positive feeder is connected;Bonding conductor 4 is connecting lines; When the ice-melt simultaneously of multiple line electric railway up-downgoing contact line,bonding conductor 4 is up-downgoing paralleling switches of multiple line electric railway section post.
Embodiment 1:
As shown in Figure 1.Step-downtransformer 10, capacitive characterelectric equipment 20 be installed in the traction substation or near, step-downtransformer 10 high-pressure sides are connected with traction substation 27.5kV bus 1 with the1st circuit breaker 11 through the 1st isolating switch 12.The low-pressure side of step-downtransformer 10 connects capacitive characterelectric equipment 20 earlier, connects and composes the ice-melt loop withcontact line 2, tractionother conductor 3 of net andbonding conductor 4 again.
When oncontact line 2, not having the normal operation of icing, the 1st circuit breaker the 11, the 1st isolating switch the 12, the 3rd circuit breaker the 21, the 3rd isolating switch the 22, the4th isolating switch 23 all is in off-state.When occurring icing on thecontact line 2, need carry out ice-melt when work, the operating procedure of present embodiment is following:
In order the 2nd circuit breaker the 13, the2nd isolating switch 14 is openedcontact line 2 outages;
When being used for the ice-melt of single line electrification railway contact net, with connectingline contact line 2 and rail are linked together at the supply arm end; When being used for the ice-melt simultaneously of contact line and return wire, with connectingline contact line 2 and return wire are linked together at the supply arm end; When being used for the ice-melt simultaneously of contact line and positive feeder, with connectingline contact line 2 and positive feeder are linked together at the supply arm end; When being used for the ice-melt simultaneously of multiple line electric railway up-downgoing contact line, closed section post paralleling switch connects another contact line;
Closed in order the 1st isolating switch the 12, the1st circuit breaker 11, step-downtransformer 10 high-pressure sides are charged;
Closed in order the 3rd isolating switch the 22, the 4th isolating switch the 23, the3rd circuit breaker 21, step-downtransformer 10 low-pressure sides and capacitive characterelectric equipment 20 are charged, form the ice-melt loop;
Ice-melt is opened the 3rd circuit breaker the 21, the3rd isolating switch 22, the 4isolating switches 23 after finishing in order;
Open step-downtransformer 10 on high-tension side the1st circuit breaker 11, the 1isolating switches 12 in order, the ice melting system outage;
At the supply arm end connecting line is removed, or opened the section post paralleling switch;
Closed in order the 2nd isolating switch the 14, the2nd circuit breaker 13,contact line 2 restores electricity.
Embodiment 2:
As shown in Figure 2.Step-down transformer 10, capacitive characterelectric equipment 20 be installed in the traction substation or near, step-downtransformer 10 high-pressure sides are connected with traction substation 27.5kV bus 1 withcircuit breaker 11 through isolating switch 12.The low-pressure side of said step-downtransformer 10 connectscontact line 2,bonding conductor 4 andother conductor 3 of traction net earlier, connects and composes the ice-melt loop with capacitive characterelectric equipment 20 again.
When oncontact line 2, not having the normal operation of icing, the1st circuit breaker 11, the 1 isolating switches the 12, the3rd circuit breaker 21, the 3isolating switches 22, the 4isolating switches 23 all are in off-state.When occurring icing on thecontact line 2, need carry out ice-melt when work, the operating procedure of present embodiment is following:
The 2nd circuit breaker the 13, the2nd isolating switch 14 is openedcontact line 2 outages;
When being used for the ice-melt of single line electrification railway contact net, with connectingline contact line 2 and rail are linked together at the supply arm end; When being used for the ice-melt simultaneously of contact line and return wire, with connectingline contact line 2 and return wire are linked together at the supply arm end; When being used for the ice-melt simultaneously of contact line and positive feeder, with connectingline contact line 2 and positive feeder are linked together at the supply arm end; When being used for the ice-melt simultaneously of multiple line electric railway up-downgoing contact line, closed section post paralleling switch connects another contact line;
Closed in order the 1st isolating switch the 12, the1st circuit breaker 11, step-downtransformer 10 high-pressure sides are charged;
Closed in order the 3rd isolating switch the 22, the 4th isolating switch the 23, the3rd circuit breaker 21, step-down transformer 10 low-pressure sides and capacitive characterelectric equipment 20 charged and formation ice-melt loops;
Ice-melt is opened the 3rd circuit breaker the 21, the3rd isolating switch 22, the 4isolating switches 23 after finishing in order;
Open the 1st isolating switch the 12, the1st circuit breaker 11, the ice melting system outage;
At the supply arm end connecting line is removed, or opened the section post paralleling switch;
Closed in order the 2nd isolating switch the 14, the2nd circuit breaker 13,contact line 2 restores electricity.
Embodiment 3:
As shown in Figure 3.Step-downtransformer 10 be installed in the traction substation or near, capacitive characterelectric equipment 20 is installed near the terminal electric phase-splitting of supply arm (or in the section post or near).The low-pressure side of step-downtransformer 10 is connected withcontact line 2 earlier, connects and composes the ice-melt loop through capacitive characterelectric equipment 20,bonding conductor 4 withother conductor 3 of traction net again.
When oncontact line 2, not having the normal operation of icing, the 1st circuit breaker the 11, the 1st isolating switch the 12, the 3rd circuit breaker the 21, the 3rd isolating switch the 22, the 4th isolating switch the 23, the 5th isolating switch the 24, the6th isolating switch 25 all is in off-state.
When occurring icing on thecontact line 2, need carry out ice-melt when work, the operating procedure of present embodiment is following:
In order the 2nd circuit breaker the 13, the2nd isolating switch 14 is openedcontact line 2 outages;
When being used for the ice-melt of single line electrification railway contact net, with connecting line capacitive characterelectric equipment 20 and rail are linked together at the supply arm end; When being used for the ice-melt simultaneously of contact line and return wire, with connecting line capacitive characterelectric equipment 20 and return wire are linked together at the supply arm end; When being used for the ice-melt simultaneously of contact line and positive feeder, with connecting line capacitive characterelectric equipment 20 and positive feeder are linked together at the supply arm end; When being used for the ice-melt simultaneously of multiple line electric railway up-downgoing contact line, linking together capacitive characterelectric equipment 20 and section post also at the supply arm end with connecting line, closed section post paralleling switch is connected another contact line;
Closed in order the 1st isolating switch the 12, the1st circuit breaker 11, step-downtransformer 10 high-pressure sides are charged;
Closed in order the6th isolating switch 25, the 5 isolating switches the 24, the 4th isolating switch the 23, the 3rd isolating switch the 22, the3rd circuit breaker 21, step-downtransformer 10 low-pressure sides and capacitive characterelectric equipment 20 charged and formation ice-melt loops;
Ice-melt is opened the 3rd circuit breaker the 21, the 3rd isolating switch the 22, the 4th isolating switch the 23, the 5th isolating switch the 24, the6th isolating switch 25 after finishing in order;
Open the 1st isolating switch the 12, the1st circuit breaker 11 in order, the ice melting system outage;
Remove connecting line, or open the section post paralleling switch;
Closed in order the 2nd isolating switch the 14, the2nd circuit breaker 13,contact line 2 restores electricity.
The1st circuit breaker 11 among the above embodiment; The1st isolating switch 12 has utilized back-up circuit; Also can directly utilize modes such as feeder line circuit breaker in the practical application through modes such as cable connections, the compensator with series capaci tance at existing electrified railway supply arm head end also capable of using or middle part forms the ice-melt loop as the capacitive character electric equipment.
The above the utility model electric railway traction net that just explains through diagrams exchanges some principles of ice melting system; Be not be to the utility model be confined to shown in described concrete structure and the scope of application in; So every the modify and equivalent that might be utilized all belongs to the claim that the utility model is applied for.

Claims (5)

CN2011205352314U2011-12-202011-12-20Alternating-current de-icing system for traction network of electrified railwayExpired - LifetimeCN202424080U (en)

Priority Applications (1)

Application NumberPriority DateFiling DateTitle
CN2011205352314UCN202424080U (en)2011-12-202011-12-20Alternating-current de-icing system for traction network of electrified railway

Applications Claiming Priority (1)

Application NumberPriority DateFiling DateTitle
CN2011205352314UCN202424080U (en)2011-12-202011-12-20Alternating-current de-icing system for traction network of electrified railway

Publications (1)

Publication NumberPublication Date
CN202424080Utrue CN202424080U (en)2012-09-05

Family

ID=46748806

Family Applications (1)

Application NumberTitlePriority DateFiling Date
CN2011205352314UExpired - LifetimeCN202424080U (en)2011-12-202011-12-20Alternating-current de-icing system for traction network of electrified railway

Country Status (1)

CountryLink
CN (1)CN202424080U (en)

Cited By (3)

* Cited by examiner, † Cited by third party
Publication numberPriority datePublication dateAssigneeTitle
CN102437542A (en)*2011-12-202012-05-02中铁二院工程集团有限责任公司Alternating current ice melting system of electrified railway traction network
CN109204071A (en)*2018-11-132019-01-15中车株洲电力机车有限公司A kind of rail vehicle electrical power contact rail heater circuit
CN109204072A (en)*2018-11-132019-01-15中车株洲电力机车有限公司A kind of rail vehicle electrical power contact rail heater circuit

Cited By (3)

* Cited by examiner, † Cited by third party
Publication numberPriority datePublication dateAssigneeTitle
CN102437542A (en)*2011-12-202012-05-02中铁二院工程集团有限责任公司Alternating current ice melting system of electrified railway traction network
CN109204071A (en)*2018-11-132019-01-15中车株洲电力机车有限公司A kind of rail vehicle electrical power contact rail heater circuit
CN109204072A (en)*2018-11-132019-01-15中车株洲电力机车有限公司A kind of rail vehicle electrical power contact rail heater circuit

Similar Documents

PublicationPublication DateTitle
CN102510039B (en)Multifunctional direct-current ice melting automatic conversion circuit and conversion method thereof
CN101242087A (en)Ice fusion method for power transmission line
CN102412544B (en)Power-uninterrupted ice melting and SVG-type reactive static compensation compound device and use method thereof
CN101409438B (en)Ice-melting method suitable for transmission line with multiple fission conductor
CN101442198B (en)Ice-melting mode and apparatus for mobile DC power supply
CN102642481B (en)Electricity energy regulating-ice melting device and method for railway traction network
CN104210385A (en)Electrified railway power grid system without negative sequence or spaced power supply networks in whole process
CN101882788B (en)Method and device for improving supply voltage at tail end of long supply arm of heavy haul railway
CN104015632B (en)High speed passenger dedicated railway EMUs whole process did not establish the power supply system of phase-splitting
CN103904636B (en)A kind of DC traction power-supply system based on flexible DC power transmission
CN208522467U (en)The urban transportation
CN101604833B (en) A ground wire ice-melting device that can be used in combination
CN114530814B (en)Direct-current deicing system for overhead contact system of electrified railway and control method thereof
CN202712801U (en)Power transmission device capable of solving loss of overhead ground wire and melting ice
CN202424080U (en)Alternating-current de-icing system for traction network of electrified railway
CN102437542A (en)Alternating current ice melting system of electrified railway traction network
CN201980097U (en)Power regulation and de-icing device for railway traction net
CN105128704A (en)Intelligent automatic neutral section passing system
CN108092182B (en)Segmented ice melting method and system for high-voltage transmission line
CN102431468B (en)Icing preventing and ice melting method for high speed railway and system for realizing method
CN110932215A (en) A system and method for ice melting of overhead lines using photovoltaic power generation
CN213402548U (en)Remote power supply system for high-voltage transmission line tower electric equipment
CN103231667A (en)Double-track electrified railway section post main wiring with capacitive electrical device
CN206049416U (en)Single phase power supply device, electric railway traction power supply system
CN113224716B (en)Online ice melting method for 10kV hand-in-hand line

Legal Events

DateCodeTitleDescription
C14Grant of patent or utility model
GR01Patent grant
CX01Expiry of patent term

Granted publication date:20120905

CX01Expiry of patent term

[8]ページ先頭

©2009-2025 Movatter.jp