

技术领域technical field
本发明涉及配电自动化装置,特别涉及一种低电压串联补偿无间断切换及防止涌流方法。用于农村电网末端低电压串联补偿装置的回路切换和控制。The invention relates to a distribution automation device, in particular to a low-voltage series compensation method for uninterrupted switching and preventing inrush current. It is used for loop switching and control of low-voltage series compensation devices at the end of rural power grids.
背景技术Background technique
配电网线路末端低电压治理问题一直是困扰供电的难题,因为农村电网用电负荷具有分布广、时段性波动大的特点,导致低压配电网线路末端低电压治理问题一直难以解决。现有的通过变压器和线路增容能够解决部分地点的低电压,但由于农网中负荷密度低,平均负荷小,增加设备容量将进一步降低设备利用率,难以大规模应用。The problem of low voltage control at the end of the distribution network line has always been a problem that plagues power supply, because the electricity load of the rural power grid has the characteristics of wide distribution and large time fluctuations, which leads to the problem of low voltage control at the end of the low voltage distribution network line. It has been difficult to solve. The existing transformer and line capacity expansion can solve the low voltage in some locations, but due to the low load density and small average load in the rural grid, increasing the equipment capacity will further reduce the equipment utilization rate, making it difficult to apply on a large scale.
为此,在线路中采用串联补偿控制是一种经济的方案,串联补偿通过补偿变压器副边串接到输电线路中,对线路的电压进行抬升或降低的调节。根据线路电压的实际情况,改变补偿变压器的工作状态。但是,由于补偿装置在工作切换过程中会引起供电中断、补偿变压器的涌流等是目前无法解决的问题,必须在这方面进行突破,才能实现有效的串联电压调节控制。For this reason, it is an economical solution to use series compensation control in the line. The series compensation is connected in series to the transmission line through the secondary side of the compensation transformer to adjust the voltage of the line to increase or decrease. According to the actual situation of the line voltage, change the working state of the compensation transformer. However, since the compensating device will cause power supply interruption and inrush current of the compensating transformer during the work switching process, which cannot be solved at present, breakthroughs must be made in this aspect in order to achieve effective series voltage regulation control.
发明内容SUMMARY OF THE INVENTION
本发明的目的在于提供一种低电压串联补偿无间断切换及防止涌流方法,解决农网末端低电压串联补偿装置在回路切换过程中存在的供电中断、变压器励磁涌流等问题。提高了供电电压质量,同时减少对装置造成的冲击,提高装置可靠性。The purpose of the present invention is to provide a low-voltage series compensation uninterrupted switching and inrush prevention method, and solve the problems of power supply interruption and transformer excitation inrush current in the circuit switching process of the low-voltage series compensation device at the end of the rural grid. The quality of the power supply voltage is improved, the impact on the device is reduced, and the reliability of the device is improved.
本发明的上述目的通过以下技术方案实现:The above-mentioned purpose of the present invention is achieved through the following technical solutions:
低电压串联补偿无间断切换及防止涌流方法,通过开关K1、K2、K3、K4、K5控制低电压串联补偿装置回路切换,通过补偿变压器实现电压的补偿调节;所述开关K2、K5分别由电磁式接触器和IGBT(Insulated Gate Bipolar Transistor绝缘栅双极型晶体管)并联组成;电磁式接触器用于长时间通过大电流,保持补偿装置在低损耗下长期工作;IGBT用于回路的快速切换,实现回路微秒级的快速转换。控制开关K1、K2、K3、K4、K5进行组合,在切换的过程中通过电磁式接触器和IGBT配合,在切换瞬间通过IGBT进行切换,减少切换时间,实现供电无间断的切换。The method of low-voltage series compensation uninterrupted switching and inrush prevention method is to control the loop switching of the low-voltage series compensation device through switches K1, K2, K3, K4 and K5, and realize voltage compensation adjustment through the compensation transformer; the switches K2 and K5 are respectively controlled by electromagnetic Contactor and IGBT (Insulated Gate Bipolar Transistor) are connected in parallel; electromagnetic contactor is used to pass large current for a long time to keep the compensation device working under low loss for a long time; IGBT is used for fast switching of the circuit to achieve Fast switching of loops in microseconds. The control switches K1, K2, K3, K4 and K5 are combined. During the switching process, the electromagnetic contactor cooperates with the IGBT, and the IGBT is switched at the moment of switching, which reduces the switching time and realizes the uninterrupted switching of the power supply.
所述的补偿变压器有3个绕组,分别是W1、W2和W3,其中原边绕组W1和W2完全相同;原边绕组W1和W2有串联和并联两种方式接入到回路中,副边绕组W3串联在输电线路的火线中,进行调压抬升、降低调节;开关K4并联在副边绕组W3的两端。The compensation transformer has 3 windings, W1, W2 and W3 respectively, among which the primary windings W1 and W2 are exactly the same; the primary windings W1 and W2 are connected to the loop in two ways: series and parallel, and the secondary windings are connected to the loop in two ways. W3 is connected in series in the live wire of the transmission line to perform voltage regulation, raising and lowering regulation; the switch K4 is connected in parallel with both ends of the secondary winding W3.
通过控制开关K1、K2、K3、K4、K5,使得低压串联补偿装置工作于5种模式,完成电压1级抬升、2级抬升、1级电压降低、2级电压降低和退出补偿。By controlling the switches K1, K2, K3, K4, K5, the low-voltage series compensation device works in 5 modes to complete voltage 1-level boost, 2-level boost, 1-level voltage reduction, 2-level voltage reduction and exit compensation.
在控制开关K1、K2、K3、K4、K5进行工作模式切换的过程中,通过控制开关K5和K2进行状态的过渡,以防止原边绕组W1、W2开路的工作状态,实现消除补偿变压器励磁涌流的效果。In the process of controlling the switches K1, K2, K3, K4, K5 to switch the working mode, the state transition is carried out by controlling the switches K5 and K2 to prevent the working state of the primary windings W1 and W2 being open, and to eliminate the inrush current of the compensation transformer. Effect.
将补偿变压器的原边电源控制切换为K5的IGBT回路,断开K5的电磁式接触器,然后断开K5的IGBT,接通K2的IGBT,实现各种补偿模式到旁路模式的切换。Switch the primary side power control of the compensation transformer to the IGBT loop of K5, disconnect the electromagnetic contactor of K5, then disconnect the IGBT of K5, and turn on the IGBT of K2 to realize the switching from various compensation modes to bypass mode.
本发明的有益效果在于:发明的低电压串联补偿无间断切换及防止涌流方法,用于农网末端低电压串联补偿装置的回路切换和控制。能够达到切换过程中供电无中断,在切换过程中消除变压器开路状态,避免了变压器励磁涌流;同时,只在补偿变压器原边的两个开关使用IGBT器件,以较少的电力电子开关器件实现无间断切换。实现了线路末端低电压治理,有效提升电能质量。具有保持电压不间断,切换平稳等优点。同时减少对装置造成的冲击,提高装置可靠性。实用性强。The beneficial effects of the present invention are: the inventive low-voltage series compensation method for uninterrupted switching and inrush prevention is used for loop switching and control of the low-voltage series compensation device at the end of the agricultural network. It can achieve no interruption of power supply during the switching process, eliminate the open-circuit state of the transformer during the switching process, and avoid the transformer excitation inrush current; at the same time, only IGBT devices are used in the two switches on the primary side of the compensation transformer, and less power electronic switching devices are used. Switch intermittently. The low-voltage control at the end of the line is realized, and the power quality is effectively improved. It has the advantages of keeping the voltage uninterrupted and switching smoothly. At the same time, the impact on the device is reduced, and the reliability of the device is improved. Strong practicality.
附图说明Description of drawings
此处所说明的附图用来提供对本发明的进一步理解,构成本申请的一部分,本发明的示意性实例及其说明用于解释本发明,并不构成对本发明的不当限定。The accompanying drawings described herein are used to provide a further understanding of the present invention and constitute a part of the present application. The schematic examples of the present invention and their descriptions are used to explain the present invention and do not constitute an improper limitation of the present invention.
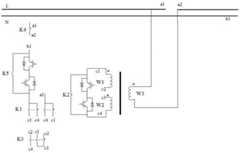
图1为本发明的装置构成及连接关系示意图;1 is a schematic diagram of the device structure and connection relationship of the present invention;
图2为本发明的回路切换流程图。FIG. 2 is a flow chart of loop switching of the present invention.
具体实施方式Detailed ways
下面结合附图进一步说明本发明的详细内容及其具体实施方式。The details of the present invention and the specific implementations thereof will be further described below with reference to the accompanying drawings.
参见图1及图2所示,本发明的低电压串联补偿无间断切换及防止涌流方法,是一种低电压串联补偿无间断的切换方法及补偿变压器励磁涌流消除方法,实现了线路末端低电压治理,有效提升电能质量。具有保持电压不间断,切换平稳等优点。通过开关K1、K2、K3、K4、K5控制低电压串联补偿装置回路切换,控制切换的开关中,电磁式接触器用于长时间通过大电流,保持装置在低损耗下长期工作,IGBT用于回路的快速切换,实现回路微秒级的快速转换。为了降低器件的使用量,提高装置的经济性,通过优化配置,在开关K2、K5配置IGBT(Insulated Gate Bipolar Transistor绝缘栅双极型晶体管)器件,用于控制补偿变压器原边处于带电和短路两种状态的快速切换。通过控制开关K1、K2、K3、K4、K5,使得低压串联补偿装置工作于5种模式,完成电压1级抬升、2级抬升、1级电压降低、2级电压降低和退出补偿。Referring to FIG. 1 and FIG. 2 , the low-voltage series compensation uninterrupted switching and inrush current prevention method of the present invention is a low-voltage series compensation uninterrupted switching method and a compensation transformer excitation inrush current elimination method, which realizes the low voltage at the end of the line. management, and effectively improve the power quality. It has the advantages of keeping the voltage uninterrupted and switching smoothly. Through switches K1, K2, K3, K4, K5, the loop switching of the low-voltage series compensation device is controlled. Among the switches that control the switching, the electromagnetic contactor is used to pass a large current for a long time to keep the device working for a long time with low loss, and the IGBT is used for the loop. The fast switching of the circuit realizes the fast switching of the circuit in microseconds. In order to reduce the usage of the device and improve the economy of the device, IGBT (Insulated Gate Bipolar Transistor) devices are configured in the switches K2 and K5 by optimizing the configuration to control the primary side of the compensation transformer to be charged and short-circuited. fast switching of states. By controlling the switches K1, K2, K3, K4, K5, the low-voltage series compensation device works in 5 modes to complete voltage 1-level boost, 2-level boost, 1-level voltage reduction, 2-level voltage reduction and exit compensation.
电压切换控制的控制逻辑是,先将补偿变压器的原边电源控制切换为K5的IGBT回路,断开K5的电磁式接触器机械开关,然后断开K5的IGBT,接通K2的IGBT,实现各种补偿模式到旁路模式的切换。The control logic of the voltage switching control is to first switch the primary side power control of the compensation transformer to the IGBT circuit of K5, disconnect the mechanical switch of the electromagnetic contactor of K5, then disconnect the IGBT of K5, and turn on the IGBT of K2 to realize the various functions. Switch from compensation mode to bypass mode.
参见图1所示,本发明包括开关K1、K2、K3、K4、K5,以及用于电压补偿调节的补偿变压器,补偿变压器有3个绕组,分别是W1、W2和W3,其中原边绕组W1和W2完全相同。原边绕组W1和W2有串联和并联两种方式接入到回路中,副边绕组W3串联在输电线路的火线中,进行调压抬升、降低调节。Referring to Fig. 1, the present invention includes switches K1, K2, K3, K4, K5, and a compensation transformer for voltage compensation adjustment. The compensation transformer has 3 windings, W1, W2 and W3, among which the primary winding W1 Exactly the same as W2. The primary windings W1 and W2 are connected to the loop in two ways: series and parallel, and the secondary winding W3 is connected in series to the live wire of the transmission line for voltage regulation, raising and lowering regulation.
开关K4并联在副边绕组W3的两端,当副边绕组W3串入回路中保持并关K4为打开状态,当副边绕组W3需要旁路时,开关K4为闭合状态。The switch K4 is connected in parallel at both ends of the secondary winding W3. When the secondary winding W3 is connected in series to the loop, the switch K4 is kept in an open state, and when the secondary winding W3 needs to be bypassed, the switch K4 is in a closed state.
开关K5用于控制补偿变压器原边是否导通的控制开关,开关K5包括电磁式接触器构成的机械开关和IGBT构成的电力电子开关。开关K5的机械开关用于补偿工作状态下保持回路低阻导通,电力电子开关用于补偿变压器原边是否带电的快速切换。The switch K5 is used to control whether the primary side of the compensation transformer is turned on or not. The switch K5 includes a mechanical switch composed of an electromagnetic contactor and a power electronic switch composed of an IGBT. The mechanical switch of the switch K5 is used to compensate for the low resistance of the circuit to be turned on under the working state, and the power electronic switch is used to compensate for the rapid switching of whether the primary side of the transformer is live or not.
开关K1用于补偿变压器原边接入改变极性的控制开关。当开关K1两个常开闭合、两个常闭打开时,电源反向接入补偿变压器原边,形成升压调节模式;当开关K1两个常开打开、两个常闭闭合时,电源同向接入补偿变压器原边,形成降压调节模式。The switch K1 is used to compensate the primary side of the transformer to connect to the control switch that changes the polarity. When the two normally open switches of K1 are closed and the two normally closed ones are open, the power supply is reversely connected to the primary side of the compensation transformer to form a boost regulation mode; when the two normally open switches of the switch K1 are normally open and the two normally closed ones are closed, the power Connect to the primary side of the compensation transformer to form a step-down regulation mode.
开关K3用于控制补偿变压器的原边绕组W1、W2是串联还是并联的方式接入到调压补偿。当需要调节的电压较低时,开关K3的常开打开,常闭闭合,使得原边绕组W1和W2串联;当需要调节的电压较大,开关K3的常开闭合,常闭打开,使得原边绕组W1和W2并联。The switch K3 is used to control whether the primary windings W1 and W2 of the compensation transformer are connected in series or parallel to the voltage regulation compensation. When the voltage to be adjusted is low, the normally open of switch K3 is opened and the normally closed is closed, so that the primary windings W1 and W2 are connected in series; when the voltage to be adjusted is large, the normally open of switch K3 is closed and the normally closed is opened, so that the original windings W1 and W2 are connected in series. The side windings W1 and W2 are connected in parallel.
开关K2用于控制补偿变压器原边绕组短接,开关K2包括电磁式接触器构成的机械开关和IGBT构成的电力电子开关。当需要补偿变压器工作于调压模式时,打开开关K2常闭节点,使原边绕组W1、W2能够接通电源;当需要补偿变压器工作于旁路模式时,闭合开关K2常闭节点,使原边绕组W1、W2处于短路状态。The switch K2 is used to control the short circuit of the primary winding of the compensation transformer, and the switch K2 includes a mechanical switch composed of an electromagnetic contactor and a power electronic switch composed of an IGBT. When the compensation transformer needs to work in the voltage regulation mode, open the normally closed node of the switch K2, so that the primary windings W1 and W2 can be powered on; when the compensation transformer needs to work in the bypass mode, close the normally closed node of the switch K2, so that the original The side windings W1 and W2 are in a short-circuit state.
参见图2所示,当需要改变补偿变压器的工作模式,改变串入到线路中的电压时,为了防止切换时出现机械开关动作时间长出现的短时供电中断或电压波动问题,设计控制切换方法。控制切换主要包括退出过渡模式和接入过渡模式两个步骤。Referring to Figure 2, when it is necessary to change the working mode of the compensation transformer and change the voltage connected in series to the line, in order to prevent the short-term power interruption or voltage fluctuation caused by the long mechanical switch action time during switching, a control switching method is designed. . Control switching mainly includes two steps of exiting the transition mode and entering the transition mode.
当要改变补偿变压器工作模式,具体步骤如下:When changing the working mode of the compensation transformer, the specific steps are as follows:
步骤1:首先由原来的工作模式切换为退出过渡模式:退出过渡模式的动作过程为:(1)闭合K5的电力电子开关,打开K5的机械开关;(2)延时20mS打开K5的电力电子开关,延时2微秒,闭合K2的电力电子开关,同时闭合K2的机械开关,使得W1、W2短路,作为一种过渡的非补偿模式。Step 1: First, switch from the original working mode to exit the transition mode: The action process of exiting the transition mode is: (1) close the power electronic switch of K5, open the mechanical switch of K5; (2) delay 20mS to open the power electronic switch of K5 Switch, delay 2 microseconds, close the power electronic switch of K2, and close the mechanical switch of K2 at the same time, so that W1 and W2 are short-circuited, as a transitional non-compensation mode.
步骤2:改变开关K1、K3的状态,是原边绕组W1、W2处于期望的接入记性和串并联状态。Step 2: Change the state of the switches K1 and K3, so that the primary windings W1 and W2 are in the desired access memory and series-parallel state.
步骤3:(1)闭合K2的电力电子开关;(2)打开K2的机械开关,延时20mS;(3)打开K2的电力电子开关,延时2微秒,闭合K5的电力电子开关,闭合K5的机械开关,进入新的补偿工作模式。Step 3: (1) Close the power electronic switch of K2; (2) Open the mechanical switch of K2, delay 20mS; (3) Open the power electronic switch of K2, delay 2 microseconds, close the power electronic switch of K5, close The mechanical switch of K5 enters a new compensation mode.
以上所述仅为本发明的优选实例而已,并不用于限制本发明,对于本领域的技术人员来说,本发明可以有各种更改和变化。凡对本发明所作的任何修改、等同替换、改进等,均应包含在本发明的保护范围之内。The above descriptions are only preferred examples of the present invention, and are not intended to limit the present invention. For those skilled in the art, the present invention may have various modifications and changes. Any modification, equivalent replacement, improvement, etc. made to the present invention shall be included within the protection scope of the present invention.
| Application Number | Priority Date | Filing Date | Title |
|---|---|---|---|
| CN202210362157.3ACN114696331A (en) | 2022-04-07 | 2022-04-07 | Low-voltage series compensation uninterrupted switching and inrush current prevention method |
| Application Number | Priority Date | Filing Date | Title |
|---|---|---|---|
| CN202210362157.3ACN114696331A (en) | 2022-04-07 | 2022-04-07 | Low-voltage series compensation uninterrupted switching and inrush current prevention method |
| Publication Number | Publication Date |
|---|---|
| CN114696331Atrue CN114696331A (en) | 2022-07-01 |
| Application Number | Title | Priority Date | Filing Date |
|---|---|---|---|
| CN202210362157.3APendingCN114696331A (en) | 2022-04-07 | 2022-04-07 | Low-voltage series compensation uninterrupted switching and inrush current prevention method |
| Country | Link |
|---|---|
| CN (1) | CN114696331A (en) |
| Publication number | Priority date | Publication date | Assignee | Title |
|---|---|---|---|---|
| CN115347764A (en)* | 2022-08-31 | 2022-11-15 | 科华数据股份有限公司 | Gear switching method of voltage stabilizer, control device, compensating transformer and medium |
| Publication number | Priority date | Publication date | Assignee | Title |
|---|---|---|---|---|
| KR200416148Y1 (en)* | 2006-02-13 | 2006-05-15 | 박우용 | Voltage regulator using reactor transformer |
| CN105974984A (en)* | 2016-07-13 | 2016-09-28 | 龚宇雷 | Switch diverting device applied to series-connection alternating current voltage stabilizer |
| CN106505594A (en)* | 2016-11-28 | 2017-03-15 | 国家电网公司 | A three-phase unbalance adjustment commutation switch and method |
| CN110021938A (en)* | 2018-11-12 | 2019-07-16 | 国家电网有限公司 | A kind of low-voltage circuit adjusts and compensation device and its compensation method |
| CN112821408A (en)* | 2021-01-09 | 2021-05-18 | 华北电力大学(保定) | Bidirectional voltage self-adaptive adjustment method for electromagnetic series transmission line |
| CN114759565A (en)* | 2022-04-07 | 2022-07-15 | 东北电力大学 | Low-voltage series compensation device and control method |
| Publication number | Priority date | Publication date | Assignee | Title |
|---|---|---|---|---|
| KR200416148Y1 (en)* | 2006-02-13 | 2006-05-15 | 박우용 | Voltage regulator using reactor transformer |
| CN105974984A (en)* | 2016-07-13 | 2016-09-28 | 龚宇雷 | Switch diverting device applied to series-connection alternating current voltage stabilizer |
| CN106505594A (en)* | 2016-11-28 | 2017-03-15 | 国家电网公司 | A three-phase unbalance adjustment commutation switch and method |
| CN110021938A (en)* | 2018-11-12 | 2019-07-16 | 国家电网有限公司 | A kind of low-voltage circuit adjusts and compensation device and its compensation method |
| CN112821408A (en)* | 2021-01-09 | 2021-05-18 | 华北电力大学(保定) | Bidirectional voltage self-adaptive adjustment method for electromagnetic series transmission line |
| CN114759565A (en)* | 2022-04-07 | 2022-07-15 | 东北电力大学 | Low-voltage series compensation device and control method |
| Publication number | Priority date | Publication date | Assignee | Title |
|---|---|---|---|---|
| CN115347764A (en)* | 2022-08-31 | 2022-11-15 | 科华数据股份有限公司 | Gear switching method of voltage stabilizer, control device, compensating transformer and medium |
| CN115347764B (en)* | 2022-08-31 | 2025-07-25 | 科华数据股份有限公司 | Gear switching method of voltage stabilizer, control device, compensation transformer and medium |
| Publication | Publication Date | Title |
|---|---|---|
| Chen et al. | SMES-battery energy storage system for the stabilization of a photovoltaic-based microgrid | |
| Nakajima et al. | A control system for HVDC transmission by voltage sourced converters | |
| CN101345419B (en) | Series Voltage Quality Regulator and Fast Switching On and Off Method | |
| CN107863778A (en) | A kind of commutation energy storage type three-phase load unbalance controlling device and method | |
| CN209516628U (en) | 10kV power distribution network turns electric installation without suture ring | |
| CN108767853B (en) | Hybrid back-to-back intelligent soft switch topology, control system and control method | |
| CN114825451B (en) | A flexible networking system for optical storage microgrids for thermal power plants | |
| CN201388061Y (en) | High-voltage-to-low-voltage reactive power compensation flexible switching device | |
| CN113036737B (en) | Flexible current limiter capable of being connected in series on direct current circuit and control method thereof | |
| CN112531711B (en) | A comprehensive regulation system for medium voltage power supply quality | |
| CN118399769A (en) | Bidirectional DCDC conversion circuit and charge-discharge control method thereof | |
| CN114696331A (en) | Low-voltage series compensation uninterrupted switching and inrush current prevention method | |
| CN116191395A (en) | Improved micro-controllable fixing series compensation device with overcurrent protection | |
| CN215452515U (en) | Flexible control system for closed-loop operation of power distribution network | |
| CN110970880B (en) | Converter station containing RL type superconducting current limiter and DC circuit breaker and DC fault processing strategy thereof | |
| CN108173270A (en) | An energy-saving distribution network low-voltage compensation device and method | |
| CN219659591U (en) | Power circuits, power equipment and photovoltaic systems | |
| CN105974984B (en) | A kind of switching device applied to series AC voltage-stablizer | |
| CN113224743B (en) | A hybrid energy storage DC power supply system off-grid transient control method | |
| CN111371093B (en) | Non-isolated hybrid flexible loop closing device and control method | |
| CN110164726A (en) | A kind of voltage regulating distribution transformer | |
| CN114336550A (en) | A kind of self-energy multi-port DC circuit breaker and application method | |
| CN108242896A (en) | Converter, DC side grounding three-level structure flexible DC system and control method | |
| CN100495854C (en) | A short circuit fault current limiter | |
| CN113572358A (en) | A superconducting magnetic energy storage system and its DC/DC converter |
| Date | Code | Title | Description |
|---|---|---|---|
| PB01 | Publication | ||
| PB01 | Publication | ||
| SE01 | Entry into force of request for substantive examination | ||
| SE01 | Entry into force of request for substantive examination | ||
| CB02 | Change of applicant information | Address after:No.39-7 Siping Street, Heping District, Shenyang, Liaoning 110003 Applicant after:STATE GRID LIAONING ELECTRIC POWER Research Institute Applicant after:NORTHEAST DIANLI University Applicant after:STATE GRID CORPORATION OF CHINA Address before:No. 169, Changchun Road, Jilin City, Jilin Province, 132000 Applicant before:NORTHEAST DIANLI University Applicant before:STATE GRID LIAONING ELECTRIC POWER Research Institute Applicant before:STATE GRID CORPORATION OF CHINA | |
| CB02 | Change of applicant information |