Movatterモバイル変換


[0]ホーム

URL:


CN112983382A - Fracturing equipment and fracturing system - Google Patents

Fracturing equipment and fracturing system
Download PDF

Info

Publication number
CN112983382A
CN112983382ACN202110426496.9ACN202110426496ACN112983382ACN 112983382 ACN112983382 ACN 112983382ACN 202110426496 ACN202110426496 ACN 202110426496ACN 112983382 ACN112983382 ACN 112983382A
Authority
CN
China
Prior art keywords
fracturing
motor
unit
turbine engine
plunger pump
Prior art date
Legal status (The legal status is an assumption and is not a legal conclusion. Google has not performed a legal analysis and makes no representation as to the accuracy of the status listed.)
Granted
Application number
CN202110426496.9A
Other languages
Chinese (zh)
Other versions
CN112983382B (en
Inventor
张鹏
吕亮
张日奎
毛竹青
王建伟
兰春强
吴义朋
李心成
Current Assignee (The listed assignees may be inaccurate. Google has not performed a legal analysis and makes no representation or warranty as to the accuracy of the list.)
Yantai Jereh Petroleum Equipment and Technologies Co Ltd
Original Assignee
Yantai Jereh Petroleum Equipment and Technologies Co Ltd
Priority date (The priority date is an assumption and is not a legal conclusion. Google has not performed a legal analysis and makes no representation as to the accuracy of the date listed.)
Filing date
Publication date
Application filed by Yantai Jereh Petroleum Equipment and Technologies Co LtdfiledCriticalYantai Jereh Petroleum Equipment and Technologies Co Ltd
Priority to AU2021390073ApriorityCriticalpatent/AU2021390073A1/en
Priority to CA3144930Aprioritypatent/CA3144930C/en
Priority to PCT/CN2021/096099prioritypatent/WO2022116483A1/en
Publication of CN112983382ApublicationCriticalpatent/CN112983382A/en
Priority to US17/542,330prioritypatent/US12000253B2/en
Priority to US17/891,664prioritypatent/US12134963B2/en
Priority to US18/064,150prioritypatent/US12006806B2/en
Priority to US18/936,367prioritypatent/US20250059870A1/en
Application grantedgrantedCritical
Publication of CN112983382BpublicationCriticalpatent/CN112983382B/en
Activelegal-statusCriticalCurrent
Anticipated expirationlegal-statusCritical

Links

Images

Classifications

Landscapes

Abstract

Translated fromChinese

提供一种压裂设备及压裂系统。压裂设备包括:柱塞泵,柱塞泵被配置为将压裂流体增压以形成高压压裂流体;涡轮发动机,涡轮发动机与柱塞泵联接,被配置为向柱塞泵提供驱动力;辅助单元,辅助单元包括驱动电机,辅助单元被配置为向压裂设备提供启动辅助功能、润滑功能、冷却功能和供气功能中至少之一的功能;以及电源,电源与辅助单元的驱动电机电连接,被配置为向辅助单元提供驱动力。使用涡轮发动机为作为压裂作业的主要动力源,使用电源以电驱动的方式为辅助单元提供动力,可以使压裂设备整体布局更加紧凑,全部使用清洁能源,不存在环境污染,并且可以实现效率最大化利用。

Figure 202110426496

A fracturing equipment and a fracturing system are provided. The fracturing apparatus includes: a plunger pump configured to pressurize the fracturing fluid to form a high pressure fracturing fluid; a turbine engine coupled to the plunger pump and configured to provide driving force to the plunger pump; The auxiliary unit, the auxiliary unit includes a drive motor, the auxiliary unit is configured to provide the fracturing equipment with at least one of a start-up assist function, a lubrication function, a cooling function and a gas supply function; and a power source, the power source and the drive motor of the auxiliary unit. The connection is configured to provide driving force to the auxiliary unit. Using a turbine engine as the main power source for fracturing operations, and using a power supply to provide power to auxiliary units in an electric drive way can make the overall layout of the fracturing equipment more compact, all use clean energy, there is no environmental pollution, and efficiency can be achieved Make the most of it.

Figure 202110426496

Description

Fracturing equipment and fracturing system
Cross Reference to Related Applications
The present application claims priority from chinese patent application No. 202011396989, filed 12/4/2020, the contents of which are incorporated herein by reference in their entirety as part of the present application.
Technical Field
Embodiments of the present disclosure relate to a fracturing apparatus and a fracturing system.
Background
Fracturing is a major measure of oil and gas field production. The current well site layout mainly comprises a turbine fracturing well site layout, an electric driving well site layout and a conventional diesel driving fracturing well site.
Disclosure of Invention
The embodiment of the disclosure provides fracturing equipment and a fracturing system.
In one aspect, at least one embodiment of the present disclosure provides a fracturing apparatus comprising: a plunger pump configured to pressurize a fracturing fluid to form a high pressure fracturing fluid; a turbine engine coupled with the plunger pump configured to provide a driving force to the plunger pump; an auxiliary unit including a driving motor, the auxiliary unit being configured to provide at least one of a start-up auxiliary function, a lubricating function, a cooling function, and an air supply function to the fracturing apparatus; and a power supply electrically connected to the driving motor of the auxiliary unit, configured to provide a driving force to the auxiliary unit.
For example, the auxiliary unit comprises a starting unit configured to start the turbine engine, and the drive motor comprises a starter motor.
For example, the starter motor is configured to directly start the turbine engine, the starter motor is directly connected to the turbine engine, and the starting unit is provided on the turbine engine.
For example, the auxiliary unit further includes a lubrication unit and a cooling unit, the driving motor includes a lubrication motor and a cooling motor, the lubrication unit further includes a lubrication pump and a lubrication oil tank, the lubrication motor is configured to drive the lubrication pump to deliver the lubrication oil in the lubrication oil tank to a lubrication point, the cooling unit further includes a radiator, the cooling motor is configured to drive the radiator to cool the lubrication oil, the lubrication motor is directly connected to the lubrication pump, and the cooling motor is directly connected to the radiator.
For example, fracturing equipment still includes the air feed unit, driving motor includes the gas circuit motor, the air feed unit still includes the air compressor machine, the gas circuit motor is configured to the drive the air compressor machine to turbine engine provides compressed air, the gas circuit motor with the air compressor machine directly links to each other.
For example, the fracturing apparatus further comprises a ventilation unit, the drive motor comprises a ventilation motor, the ventilation unit further comprises a ventilation component, the ventilation motor is configured to drive the ventilation component, and the ventilation motor is directly connected with the ventilation component.
For example, the power supply comprises at least one of a generator, a grid power supply, a fuel cell and an energy storage battery, and the power supply is electrically connected with the driving motor through a switch cabinet and a substation.
For example, the fracturing apparatus further comprises a carrier on which the plunger pump, the turbine engine, and at least a portion of the auxiliary unit are disposed, wherein the plunger pump is removably secured to the carrier.
For example, the plunger pump is fixed on a first base provided with a first forklift aperture, through which the plunger pump is detachably fixed on the carrier.
For example, the radiator is arranged above the plunger pump.
For example, the fracturing apparatus further comprises a muffler, the turbine engine comprises an exhaust pipe, the muffler is connected to the exhaust pipe, and the radiator is arranged on a side of the muffler remote from the exhaust pipe.
For example, there is a space between the radiator and the muffler, and the air outlet side of the radiator faces the muffler.
For example, the fracturing apparatus further comprises a baffle disposed outside the muffler and at least partially between the muffler and the radiator, the baffle including a plurality of holes, the distance between the baffle and the muffler being less than the distance between the baffle and the radiator.
For example, the muffler includes a first side, a second side, and a third side, the first side facing the radiator, the second side and the third side being connected to the first side, respectively, and the baffle is located outside the first side, the second side, and the third side of the muffler.
At least one embodiment of the present disclosure also provides a fracturing system, comprising: any of the fracturing apparatuses described above; and a peripheral device, the power supply configured to connect to the peripheral device to provide power thereto.
For example, the peripheral equipment comprises at least one of mixing equipment, sand mixing equipment and a conveying mechanism; the compounding device is configured to compound a fracturing base fluid; the fracturing blender apparatus is configured to mix the fracturing base fluid with a proppant to form the fracturing fluid; the delivery mechanism is configured to deliver proppant stored in the sand tank to the sand mulling facility.
For example, the fracturing equipment is provided in a plurality, and the plunger pump of at least one fracturing equipment is replaced by a generator to form at least one part of the power supply.
For example, the generator is fixed on a second base, which is provided with a second fork truck hole.
In another aspect, at least one embodiment of the present disclosure provides a fracturing apparatus comprising: a plunger pump configured to pressurize a fracturing fluid to form a high pressure fracturing fluid; a turbine engine coupled with the plunger pump configured to provide a driving force to the plunger pump, the turbine engine including an exhaust pipe; a lubrication unit configured to deliver lubrication oil to a lubrication point; a cooling unit including a radiator configured to cool the lubricating oil; a muffler connected to the exhaust pipe; the radiator is disposed at one side of the muffler, and the radiator is configured such that gas discharged therefrom flows toward the muffler.
For example, some embodiments of the present disclosure provide a fracturing apparatus wherein the radiator is disposed on a side of the muffler away from the exhaust pipe.
For example, some embodiments of the present disclosure provide a fracturing apparatus in which the radiator and the silencer have a space therebetween, and the air outlet side of the radiator faces the silencer.
For example, some embodiments of the present disclosure provide a fracturing apparatus further comprising a baffle disposed outside of the acoustic damper and at least partially between the acoustic damper and the heat sink, the baffle including a plurality of holes, the baffle being spaced from the acoustic damper by a distance less than the distance between the baffle and the heat sink.
For example, some embodiments of the present disclosure provide a fracturing apparatus wherein the muffler includes a first side, a second side, and a third side, the first side facing the heat sink, the second side and the third side being respectively connected to the first side, and the baffle is located outside the first side, the second side, and the third side of the muffler.
For example, in a fracturing apparatus provided in some embodiments of the present disclosure, the heat sink is disposed above the plunger pump.
For example, in some embodiments of the present disclosure, a fracturing apparatus is provided in which the heat sink is disposed obliquely to an axis of the plunger pump.
For example, in the fracturing equipment provided by some embodiments of the present disclosure, the lubricating unit includes a lubricating motor, a lubricating pump and a lubricating oil tank, the lubricating motor is configured to drive the lubricating pump to deliver the lubricating oil in the lubricating oil tank to the lubricating point, the cooling unit includes a cooling motor, the cooling motor is configured to drive the radiator to cool the lubricating oil, the lubricating motor is directly connected with the lubricating pump, and the cooling motor is directly connected with the radiator.
For example, in a fracturing apparatus provided in some embodiments of the present disclosure, the fracturing apparatus further comprises a starting unit configured to start the turbine engine, the starting unit comprising a starter motor.
For example, some embodiments of the present disclosure provide a fracturing apparatus wherein the starter motor is configured to directly start the turbine engine, the starter motor is directly connected to the turbine engine, and the starting unit is disposed on the turbine engine.
For example, in the fracturing equipment provided in some embodiments of the present disclosure, the fracturing equipment further includes an air supply unit, the air supply unit includes an air compressor and a gas circuit motor, the gas circuit motor is configured to drive the air compressor to supply gas with a predetermined pressure to the turbine engine, and the gas circuit motor is directly connected to the air compressor.
For example, in a fracturing apparatus provided by some embodiments of the present disclosure, the fracturing apparatus further comprises a ventilation unit, the ventilation unit further comprising a ventilation motor and a ventilation component, the ventilation motor being configured to drive the ventilation component, the ventilation motor being directly connected to the ventilation component.
For example, in the fracturing equipment provided by some embodiments of the present disclosure, the fracturing equipment further includes a power supply, and the lubricating motor, the cooling motor, the starting motor, the gas circuit motor, and the ventilation motor are respectively connected to the power supply.
At least one embodiment of the present disclosure also provides a fracturing system, comprising: any of the fracturing apparatuses described above; and a peripheral device, the power supply configured to connect to the peripheral device to provide power thereto.
For example, in a fracturing system provided by some embodiments of the present disclosure, the peripheral equipment includes at least one of a compounding device, a mulling device, a conveyance mechanism; the compounding device is configured to compound a fracturing base fluid; the fracturing blender apparatus is configured to mix the fracturing base fluid with a proppant to form the fracturing fluid; the delivery mechanism is configured to deliver proppant stored in the sand tank to the sand mulling facility.
In yet another aspect, embodiments of the present disclosure provide a fracturing apparatus, comprising: a plunger pump configured to deliver the fracturing fluid to a wellhead after pressurization; a turbine engine coupled with the plunger pump configured to provide a driving force to the plunger pump; an auxiliary unit including a drive motor, the auxiliary unit configured to provide a start-up auxiliary function, a lubrication function, a cooling function, and/or an air supply function to the fracturing apparatus; and a power supply electrically connected to the driving motor of the auxiliary unit, configured to provide a driving force to the auxiliary unit.
In one embodiment, the auxiliary unit comprises at least: a starting unit disposed on the turbine engine to assist in starting the turbine engine; a lubrication unit including a lubrication pump, a lubrication oil tank, and a lubrication motor configured to drive the lubrication pump to deliver lubrication oil within the lubrication oil tank to a lubrication point; a cooling unit including a radiator and a cooling motor configured to drive the radiator to cool the lubricating oil; the gas supply unit comprises a gas circuit motor and an air compressor, and the gas circuit motor is configured to drive the air compressor to provide gas with preset pressure to the turbine engine; the power supply is electrically connected with the starting unit, the lubricating motor, the cooling motor and the gas circuit motor respectively.
In one embodiment, the power source includes a generator, grid power, and/or an energy storage battery.
In one embodiment, the fracturing apparatus further comprises a carrier on which the plunger pump, the turbine engine and at least a portion of the auxiliary unit are integrally disposed, wherein the plunger pump is removably secured to the carrier.
In one embodiment, the plunger pump is fixed to a first base provided with a first forklift aperture, through which the plunger pump is detachably fixed to the carrier.
In one embodiment, the power source is electrically connected to the driving motor sequentially through a switch cabinet and a substation.
According to another aspect of an embodiment of the present disclosure, the fracturing system includes: a compounding apparatus configured to compound a fracturing base fluid; a fracturing blender unit fluidly connected to the compounding unit and configured to mix the fracturing base fluid with a proppant to form a fracturing fluid; and any of the fracturing apparatuses described above in fluid connection with the mulling apparatus.
In one embodiment, the power source of the fracturing equipment is electrically connected with the compounding equipment and/or the mulling equipment to supply power to the compounding equipment and/or the mulling equipment.
In one embodiment, the fracturing system further comprises a sand tank configured to store and deliver proppant to the fracturing blender via a delivery mechanism electrically connected to the power source and powered by the power source.
In one embodiment, the fracturing system comprises a plurality of fracturing devices, and the plunger pump of at least one of the fracturing devices is replaced with an electrical generator comprising at least a portion of the power source.
In one embodiment, the generator is secured to a second base, the second base being provided with a second forklift aperture.
Drawings
To more clearly illustrate the technical solutions of the embodiments of the present disclosure, the drawings of the embodiments will be briefly introduced below, and it is apparent that the drawings in the following description relate only to some embodiments of the present disclosure and are not limiting to the present disclosure.
FIG. 1A is a schematic view of a turbine fracturing apparatus;
FIG. 1B is a schematic diagram of a turbine fracturing hydraulic apparatus;
fig. 2A is a schematic diagram of a fracturing apparatus provided by an embodiment of the present disclosure;
fig. 2B is a schematic diagram of a fracturing apparatus provided by an embodiment of the present disclosure;
fig. 3A is a schematic diagram of a fracturing apparatus provided by an embodiment of the present disclosure;
fig. 3B is a schematic diagram of a fracturing apparatus provided by an embodiment of the present disclosure;
fig. 3C is a schematic diagram of a fracturing apparatus provided by an embodiment of the present disclosure;
fig. 4 is a schematic diagram of a fracturing apparatus provided by another embodiment of the present disclosure;
fig. 5A is a schematic diagram of a fracturing apparatus provided by another embodiment of the present disclosure;
fig. 5B is a schematic view of a baffle in a fracturing apparatus provided by an embodiment of the present disclosure;
fig. 5C is a schematic diagram illustrating an arrangement position of a baffle in a fracturing apparatus according to an embodiment of the present disclosure;
fig. 5D is a schematic diagram illustrating a setting position of a baffle in a fracturing apparatus according to another embodiment of the present disclosure;
FIG. 6 is a schematic diagram of a power supply and an actuator of a fracturing apparatus according to another embodiment of the present disclosure;
fig. 7A is a schematic diagram of a fracturing system provided by an embodiment of the present disclosure;
fig. 7B is a schematic diagram of a fracturing system provided by another embodiment of the present disclosure;
fig. 8 is a schematic diagram of a plunger pump for a fracturing apparatus provided by embodiments of the present disclosure; and
fig. 9 is a schematic diagram of a generator for a fracturing apparatus of an embodiment of the present disclosure.
Detailed Description
In order to make the objects, technical solutions and advantages of the embodiments of the present disclosure more apparent, the technical solutions of the embodiments of the present disclosure will be described clearly and completely with reference to the drawings of the embodiments of the present disclosure. It is to be understood that the described embodiments are only a few embodiments of the present disclosure, and not all embodiments. All other embodiments, which can be derived by a person skilled in the art from the described embodiments of the disclosure without any inventive step, are within the scope of protection of the disclosure.
Unless otherwise defined, technical or scientific terms used herein shall have the ordinary meaning as understood by one of ordinary skill in the art to which this disclosure belongs. The use of "first," "second," and similar terms in this disclosure is not intended to indicate any order, quantity, or importance, but rather is used to distinguish one element from another. Likewise, the word "comprising" or "comprises", and the like, means that the element or item listed before the word covers the element or item listed after the word and its equivalents, but does not exclude other elements or items. "upper", "lower", "left", "right", and the like are used merely to indicate relative positional relationships, and when the absolute position of the object being described is changed, the relative positional relationships may also be changed accordingly.
In the well site layout of the turbine fracturing equipment, a turbine engine using gas and an engine using fuel oil exist, so that great inconvenience is brought to environmental protection requirements, control of the fracturing equipment and the like.
In the electric-driven fracturing well site layout, all equipment is in an electric-driven mode, if a generator, frequency conversion equipment and the like have problems, the whole well site is broken down, and the fracturing operation is stopped, so that the method is dangerous. The power generation equipment adopts gas or fuel oil as power fuel, and compared with turbine equipment, intermediate links are added, and the efficiency is reduced.
In the conventional fracturing well site layout, equipment totally uses fuel oil as power fuel, and pollution caused by the fuel oil and noise pollution are serious and are inevitable defects. The conventional fracturing well site layout has the defects of high cost, low fuel utilization rate, high noise, high operation shutdown risk and the like.
The existing turbine fracturing equipment has at least one of the following disadvantages.
1. The existing turbine fracturing equipment is provided with a diesel engine to provide power for a complete machine, such as units for starting, lubricating, cooling, air supplying, ventilating and the like of the turbine engine, and has the defects of high cost, environmental pollution and the like.
2. In the turbine fracturing well site, the existing sand conveying, sand mixing, mixing and other equipment are driven by a diesel engine, and the defects of high cost, high noise, environmental pollution and the like exist.
3. The existing full-electric drive well site uses grid power, a frequency converter, a switch cabinet and other equipment to provide power for a motor, and the motor drives a fracturing pump (a plunger pump) to perform fracturing operation, but in the actual application process, the frequency converter and other electrical equipment have the problems of frequent failure and the like, the operation shutdown risk is large, and the well site operation efficiency is seriously influenced.
4. The occupied area of the well site is large.
5. The existing well site power supply has unstable condition, and has serious unreliable hidden trouble for fracturing construction operation, particularly plunger pump operation.
6. The existing turbine fracturing equipment is lubricated, cooled, started by a turbine engine and supplied with air by using a motor as a driving element, a hydraulic unit needs to be configured, the hydraulic unit needs a power source, and a power device for providing high pressure for the hydraulic unit, namely an engine, needs to be configured, and the engine serves as an auxiliary device for providing pressure for the hydraulic unit. This results in more accessories and increased cost.
7. The existing turbine engine uses a starting form of hydraulic starting, and an auxiliary engine must be started before the turbine engine is started.
Fig. 1A is a schematic diagram of a turbine fracturing device, and fig. 1B is a schematic diagram of a turbine fracturing hydraulic system. As shown in fig. 1B, the solid lines represent hydraulic fluid, the arrows represent hydraulic fluid flow, and the dashed lines are mechanical connections between components. Referring to fig. 1A and 1B, theturbine fracturing equipment 001 includes avehicle body 1, ahydraulic oil tank 01, afuel tank 02, anengine 03, aplunger pump 1, aturbine engine 2, aradiator 3, amuffler 4, aspeed reducer 6, and a lubricatingoil tank 8 provided on thevehicle body 100. For example, theengine 03 includes a diesel engine, and thefuel tank 02 includes a diesel tank.
As shown in fig. 1A, theplunger pump 1 is connected with theturbine engine 2 through thespeed reducer 6, acoupling 5 is arranged between theplunger pump 1 and thespeed reducer 6, thespeed reducer 6 comprises a speed reduction box and a speed reduction structure located in the speed reduction box, one end of theturbine engine 2 is connected with theplunger pump 1 through the speed reduction box to drive the plunger pump to suck in low-pressure fracturing fluid and discharge high-pressure fracturing fluid, that is, theplunger pump 1 is configured to pressurize the fracturing fluid to form high-pressure fracturing fluid. As shown in fig. 1A, the other end of theturbine engine 2 is connected to an exhaust assembly 49, and the exhaust assembly 49 includes an exhaust pipe 9 and amuffler 4; an exhaust pipe 9 is connected to theturbine engine 2 and configured to discharge exhaust gas. Themuffler 4 is connected to the exhaust pipe 9 and configured to reduce exhaust noise. Thefuel tank 02 supplies theengine 03, theengine 03 is connected to the hydraulic pump 04 (not shown in fig. 1A, see fig. 1B), and thehydraulic tank 01 is connected to the hydraulic pump 04 (see fig. 1B). For example, the fracturing fluid may also be referred to as a fracturing fluid.
Fig. 1A shows a sound-dampingcabin 7. As shown in fig. 1A, theturbine engine 2 and thespeed reducer 6 are located inside a sound-deadeningnacelle 7, and the sound-deadeningnacelle 7 is configured to reduce noise. Fig. 1A also shows ahigh pressure manifold 101. For example, thehigh pressure manifold 101 is configured to circulate a high pressure fracturing fluid.
As shown in fig. 1B, thehydraulic pump 04 supplies oil to theactuating motor 05 of the turbine fracturing equipment, theactuating motor 05 includes a starting motor 051, a lubricating motor 052, a cooling motor 053, and a hydraulic motor 054, and the lubricating motor 052 is connected with the lubricatingpump 11 to drive the lubricatingpump 11 to deliver lubricating oil from the lubricatingoil tank 8 to theplunger pump 1, thespeed reducer 6, and theturbine engine 2 for lubrication thereof. For example, thevehicle body 100 includes a semitrailer, but is not limited thereto.
As shown in fig. 1B, a cooling motor 053 drives theradiator 3, a starter motor 051 is connected to theturbine engine 2 to start theturbine engine 2, and a hydraulic motor 054 drives the hydraulic air compressor 06.
Theturbine fracturing equipment 001 adopts an auxiliary engine as a power source to drive components such as complete machine lubrication, cooling, turbine engine starting, gas supply and the like. The disadvantages of theturbine fracturing apparatus 001 are: 1) the whole vehicle is long in size, so that well site transportation and market promotion are not facilitated; 2) diesel oil is used as an auxiliary power fuel, so that certain environmental pollution is caused; 3) the hydraulic unit is inefficient.
Therefore, it is desirable to provide a fracturing apparatus and a fracturing system having the same to at least partially solve the above problems.
The embodiment of the disclosure provides fracturing equipment and a fracturing system with the same, which can be used for field fracturing construction operation of oil and gas fields. For example, the fracturing apparatus and fracturing system with the fracturing apparatus may be used in hydraulic fracturing well site layouts and process embodiments, which may be used at a fracturing well site, primarily for turbine fracturing well site construction operations.
Fig. 2A is a schematic diagram of a fracturing apparatus provided in an embodiment of the present disclosure, and fig. 2B is a schematic diagram of a fracturing apparatus provided in an embodiment of the present disclosure. In fig. 2B, the solid line indicates hydraulic fluid, the arrow indicates the hydraulic fluid flow, the broken line indicates mechanical connection between components, and the two-dot chain line indicates the power supply direction.
As shown in fig. 2A and 2B, the fracturing apparatus 1a mainly includes apower source 12, avehicle body 100, aturbine engine 2, aplunger pump 1, and an auxiliary unit 500. As shown in fig. 2B, the auxiliary unit 500 includes at least one of a starting unit 501, a lubricating unit 502, a cooling unit 503, an air supply unit 504, and a ventilation unit 505. For example, theturbine engine 2, theplunger pump 1, the cooling unit 503, and the lubricating unit 502 are provided on thevehicle body 100.
For example, as shown in fig. 2B, the auxiliary unit 500 includes the driving motor 50, and the auxiliary unit 500 is configured to provide an auxiliary function to the fracturing apparatus, for example, the auxiliary function includes at least one of a start-up auxiliary function, a lubrication function, a cooling function, a ventilation function, and an air supply function.
For example, as shown in fig. 2B, thepower source 12 is electrically connected to the driving motor 50 of the auxiliary unit 500, and configured to provide a driving force to the auxiliary unit 500.
For example, as shown in fig. 2B, the driving motor 50 includes at least one of a start motor 51, a lubrication motor 52, a cooling motor 53, a gas path motor 54, and a ventilation motor 55. For example, one driving motor is provided for each of the auxiliary units (each of the starting unit 501, the lubricating unit 502, the cooling unit 503, the air supply unit 504, and the ventilation unit 505). For example, each auxiliary unit is electrically driven and directly driven by a power source. For example, no hydraulic unit is provided in the assist unit 500. For example, the auxiliary unit 500 is not provided with a hydraulic pump, and is not provided with a fuel tank and an engine for driving the hydraulic pump. The embodiment of the present disclosure provides a fracturing apparatus 1A which is not provided with ahydraulic pump 04, nor with afuel tank 02 and anengine 03 for driving thehydraulic pump 04, as compared with thefracturing apparatus 001 shown in fig. 1A and 1B.
Embodiments of the present disclosure provide a fracturing apparatus 1a in which the auxiliary units are directly electrically driven. The motor can be provided for each auxiliary unit, point-to-point driving can be achieved, energy waste is reduced to the maximum extent, the motor can be powered off when not in work, input power of the motor is not needed, and comprehensive and reasonable distribution of energy consumption is achieved.
According to the embodiment of the disclosure, the turbine engine is used as a main power source of the fracturing operation, and the power supply is used for providing power for the auxiliary unit in an electrically driven mode, so that the overall layout of the fracturing equipment can be more compact.
For example, in some embodiments, the turbine engine is driven with natural gas, the fracturing equipment is entirely clean energy, there is no environmental pollution, and efficiency maximization may be achieved.
For example, as shown in fig. 2A, theturbine engine 2 is connected with theplunger pump 1 through a reduction gearbox, and is used for driving theplunger pump 1 to act so as to convert the low-pressure fracturing fluid into high-pressure fracturing fluid and then convey the high-pressure fracturing fluid to a wellhead. For example, as shown in fig. 2B, theturbine engine 2 is provided with a starting unit 501, which includes a starting motor 51, and is mainly used for starting the turbine engine, so as to achieve normal operation of the turbine engine and provide power for the operation of the fracturing pump. For example, as shown in fig. 2B, the starter motor 51 is configured to directly start theturbine engine 2, and the starter motor 51 is directly connected to theturbine engine 2. Of course, in other embodiments, the starter motor 51 may be used to drive a hydraulic unit used to start the turbine engine. For example, the hydraulic unit includes a hydraulic pump and a hydraulic motor.
For example, in some embodiments,turbine engine 2 is powered by fuel or gas, and startingturbine engine 2 is accomplished directly with electric drive. For example, in the case where theturbine engine 2 is driven by fuel, a fuel tank is provided.
For example, as shown in fig. 2A and 2B, the lubrication unit 502 includes thelubrication pump 11, thelubrication oil tank 8, and the lubrication motor 52. The main function of the lubrication motor 52 is to provide power to the lubrication oil, thereby achieving delivery of the lubrication oil in thelubrication oil tank 8 to the lubrication point. For example, the lubrication motor 52 is configured to drive thelubrication pump 11 to deliver the lubrication oil in thelubrication oil tank 8 to the lubrication point. For example, the lubrication point may be at least one of theplunger pump 1, theturbine engine 2, and thespeed reducer 6. For example, the lubrication points may also include motors. For example, as shown in FIG. 2B, the lubrication motor 52 is directly connected to thelubrication pump 11. For example, thelubrication pump 11 is directly electrically driven.
For example, as shown in fig. 2B, the cooling unit 503 includes a cooling motor 53 and aradiator 3. The main function of the cooling motor 53 is to power theradiator 3 for the purpose of cooling the lubricating oil. For example, the cooling motor 53 is configured to drive theradiator 3 to power the lubricating oil cooling. For example, theradiator 3 is configured to cool the lubricating oil, lowering the temperature of the lubricating oil. For example, as shown in fig. 2B, the cooling motor 53 is directly connected to theradiator 3. For example, theheat sink 3 is directly electrically driven. Theheat sink 3 includes, for example, a fan, but is not limited thereto.
For example, as shown in fig. 2B, the air supply unit 504 includes the air path motor 54 and the air compressor 13. For example, the gas circuit motor 54 is directly connected to the air compressor 13. The air compressor 13 is directly driven by electricity. The air compressor 13 is an electrically controlled air compressor. The gas circuit motor 54 mainly provides driving force for the air compressor 13, and provides gas (compressed air) with certain pressure for the turbine engine, so that dual fuel use of the turbine engine is realized.
For example, as shown in fig. 2B, the ventilation unit 505 includes the ventilation motor 55 and the ventilation part 14. For example, the ventilation motor 55 is directly connected to the drive ventilation unit 14. The ventilation unit 14 is directly electrically driven. The ventilation motor 55 is configured to drive the ventilation component 14. For example, the ventilation part 14 includes ventilation blades, but is not limited thereto. For example, the ventilation unit 505 is configured to reduce the temperature of the air inside the sound-deadeningcabin 7, and to circulate the air inside the sound-deadeningcabin 7 continuously. For example, the ventilation part 14 includes a fan, but is not limited thereto.
For example, thepower supply 12 supplies power to a lubrication motor, a cooling motor, a ventilation motor, a gas circuit motor, and a starting unit, respectively. For example, thepower source 12 may be at least one of a generator, grid power, a fuel cell, and an energy storage battery.
Taking the starting of a turbine engine as an example, a motor used in the existing fracturing equipment is driven, the starting motor needs to consume a part of power, and the hydraulic unit also consumes a part of power, so that the energy consumption of the whole equipment is increased; if the motor is used for driving, the frequency converter is used for controlling, point-to-point driving is achieved, energy waste is reduced to the maximum extent, the motor can be powered off after starting, the input power of the motor is not needed, and comprehensive and reasonable distribution of energy consumption is achieved. The same applies to the other auxiliary units, and reference may be made to the description of the start unit, which is not described here again.
According to the embodiment of the disclosure, the auxiliary engine is omitted from the fracturing equipment, and the hydraulic driving executive component is completely changed into the electric driving component, so that the advantage lies in at least one of the following.
1) The whole vehicle has small size, is more beneficial to well site transportation and market promotion, and has more compact layout.
The single machine power of the turbine fracturing equipment is higher, and compared with the conventional diesel drive equipment, the land occupation space of a well site is greatly saved. The diesel engine and the fuel tank are removed, and the hydraulic oil tank, the hydraulic motor and other components are removed, so that the number of parts of the whole vehicle is reduced, and the purpose of reducing the size of the whole vehicle is achieved; the function is unchangeable, and the size of whole car reduces to realize design optimization, well site overall arrangement will be more convenient, realizes the big operation of little well site.
2) The whole vehicle uses clean energy, and has no environmental pollution.
For example, in some embodiments, the turbine engine uses natural gas, all other components are driven by electric motors, and the power source of the electric motors is a power source and is clean energy.
3) According to each actuating element, a motor drive is arranged, and the scheme reduces energy waste caused by the hydraulic unit to the maximum extent, so that efficiency is utilized to the maximum.
For example, when a turbine engine is started, a motor used by the existing fracturing equipment is driven, the starting motor needs to consume a part of power, and the hydraulic unit also consumes a part of power, so that the energy consumption of the whole equipment is increased; if the motor is used for driving, the frequency converter is used for controlling, point-to-point driving is achieved, waste of energy consumption does not exist, the motor can be powered off after starting is completed, input power of the motor is not needed, and comprehensive and reasonable distribution of energy consumption is achieved.
4) The lubrication, cooling, turbine engine starting and gas supply of the turbine fracturing equipment are all driven by a motor, for example, a 380V power supply is adopted as the power supply, the source of the power supply is wide, and the power supply can be an energy storage battery, a fuel cell, a grid power, a generator and the like, and the high-voltage power of about 10kV of a conventional electric driving well site is not needed, so that the reliability of the well site is improved.
For example, a conventional electric drive wellsite requires the deployment of 4 power generation equipment of a predetermined power capacity, which if the power generation equipment fails, will result in the entire wellsite "breaking down". According to the embodiment of the disclosure, only 1 power generation device with the preset power can meet the electricity demand of the well site, and the plunger pump with the largest energy consumption demand can use clean energy natural gas as fuel. The energy utilization optimization of the fracturing operation is realized, the well site failure rate is reduced, and the reliability of the fracturing operation is improved. Of course, in other embodiments, the plunger pump may also be fueled with diesel fuel. For example, the predetermined power of the above-mentioned power generation apparatus may be less than 1MW, or the predetermined power of the power generation apparatus is greater than or equal to 1MW and less than or equal to 8 MW. For example, a conventional electric drive wellsite requires 4 pieces of electrical equipment with 5.8MW power deployed, whereas according to embodiments of the present disclosure, only 1 piece of power generation equipment with 5.8MW power is required to be able to meet the electrical demand at the wellsite. Of course, the power of the power plant may be adjusted as desired.
Fig. 3A is a schematic diagram of a fracturing apparatus provided by an embodiment of the present disclosure. The direction of the arrows in FIG. 3A is the gas flow direction. As shown in fig. 3A, the fracturing apparatus 1b includes aplunger pump 1 and aturbine engine 2. Theturbine engine 2 is configured to drive theplunger pump 1. One end of theturbine engine 2 is connected with theplunger pump 1 through aspeed reducer 6 to drive the plunger pump to suck in low-pressure fracturing fluid and discharge high-pressure fracturing fluid, i.e., theplunger pump 1 is configured to pressurize the fracturing fluid to form high-pressure fracturing fluid.
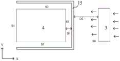
For example, as shown in fig. 3A, theradiator 3 is configured to cool the lubricating oil, lowering the temperature of the lubricating oil. As shown in fig. 3A, theradiator 3 is disposed on one side of themuffler 4, for example, theradiator 3 is disposed above theplunger pump 1. Because the height of the vertical part of thesilencer 4 is larger, although the gas exhausted by theradiator 3 in fig. 3A is upward, the gas exhausted by theradiator 3 can be considered to flow toward thesilencer 4, so that the flow speed of the gas outside thesilencer 4 can be increased, and the rapid cooling is facilitated. Theradiator 3 is arranged on the plunger pump, so that the length of a lubricating oil pipeline can be reduced, the space layout is saved, and the whole equipment structure is more compact.
For example, in an embodiment of the present disclosure, referring to fig. 2B and 3A, a lubrication oil line is provided to pass through each lubrication point, connect with thelubrication pump 11, and dissipate heat through theradiator 3. For example, thelubrication pump 11 is driven by the lubrication motor 52.
As shown in fig. 3A, the other end of theturbine engine 2 is connected to an exhaust assembly 49, and the exhaust assembly 49 includes an exhaust pipe 9 and amuffler 4; an exhaust pipe 9 is connected to theturbine engine 2 and configured to discharge exhaust gas. Themuffler 4 is connected to the exhaust pipe 9 and configured to reduce exhaust noise. For example, theturbine engine 2 includes an exhaust pipe 9, and themuffler 4 is connected to the exhaust pipe 9. For example, the aperture of the exhaust pipe 9 gradually increases from a position close to theturbine engine 2 to a position far from theturbine engine 2 to facilitate exhaust gas discharge.
For example, the fracturing apparatus 1b further includes apower source 12, avehicle body 100, and an auxiliary unit 500. With regard to thepower source 12, thevehicle body 100 and the auxiliary unit 500, reference may be made to the previous description of the fracturing device 1a, and the description thereof is omitted.
In some embodiments, for the cooling unit 503, the same as the fracturing unit 1a, theradiator 3 of the fracturing unit 1b is also directly connected with a cooling motor, and the cooling motor is directly driven.
In some embodiments, for the starting unit 501, theturbine engine 2 of the fracturing unit 1b is directly connected with the starting motor 51 and is directly driven by the starting motor 51, as is the fracturing unit 1 a.
In some embodiments, for the lubrication unit 502, the same as the fracturing unit 1a, thelubrication pump 11 of the fracturing unit 1b is directly connected to the lubrication motor 52, and is directly driven by the lubrication motor 52.
In some embodiments, as for the air supply unit 504, the air compressor 13 of the fracturing equipment 1b is directly connected with the air path motor 54 and is directly driven by the air path motor 54, as in the fracturing equipment 1 a.
In some embodiments, for the ventilation unit 505, like the fracturing unit 1a, the ventilation component 14 of the fracturing unit 1b is directly connected to the ventilation motor 55, and is directly driven by the ventilation motor 55.
In some embodiments, at least one of theradiator 3 of the fracturing device 1b, the auxiliary starting of theturbine engine 2, thelubrication pump 11, the air compressor 13 and the ventilation motor 55 is directly connected with a corresponding motor, and is directly driven by the motor.
In the fracturing equipment provided by the embodiment of the disclosure, the executing components such as theradiator 3, the auxiliary starting of theturbine engine 2, the lubricatingpump 11, the air compressor 13, the ventilation motor 55 and the like are directly driven by the motor, and compared with the mode that the motor drives the hydraulic unit, and the hydraulic unit drives theradiator 3, the auxiliary starting of theturbine engine 2, the lubricatingpump 11, the air compressor 13 and the ventilation motor 55, the energy consumption is low, the motor can be powered off when the executing components are not required to be driven, and the comprehensive and reasonable distribution of the energy consumption is favorably realized.
Fig. 3B is a schematic diagram of a fracturing apparatus provided by an embodiment of the present disclosure. As shown in fig. 3B, the fracturing unit 1B1 has theheat sink 3 tilted to facilitate the movement of the gas exhausted from theheat sink 3 towards themuffler 4, as compared to the fracturing unit 1B shown in fig. 3A. For example, the angle of inclination a1 of theradiator 3 is 10-30 ° in order to facilitate the movement of the gas exhausted by theradiator 3 towards themuffler 4 and to facilitate the mounting of the radiator and the lubricating oil line. For example, theradiator 3 is disposed obliquely with respect to the surface of thevehicle body 100. For example, theradiator 3 is disposed obliquely with respect to the axis a0 of theplunger pump 1. For example, the air outlet side of theradiator 3 is disposed obliquely toward themuffler 4.
Fig. 3C is a schematic diagram of a fracturing apparatus provided by an embodiment of the present disclosure. As shown in fig. 3C, the fracturing unit 1b2 has aprotective barrier 151 on the outside of thesilencer 4, as compared to the fracturing unit 1b shown in fig. 3A. For example, theprotective barrier 151 may be provided with lightening holes (not shown in the drawings). The lightening holes in theprotective shield 151 can be referred to as theholes 150 in theshield 15 mentioned later. Theprotective barrier 151 may serve as a protection. Aprotective barrier 151 is provided on at least one side of themuffler 4. For example, thebaffle 151 may be provided on three sides of themuffler 4 except for the side connected to the exhaust pipe.
Fig. 4 is a schematic diagram of a fracturing apparatus provided in another embodiment of the present disclosure. The fracturing unit 1c differs from the fracturing unit 1b in that: theradiator 3 is arranged on one side of themuffler 4. As shown in fig. 4, the gas discharged from theradiator 3 flows toward themuffler 4. That is, theradiator 3 is configured to flow gas discharged therefrom toward themuffler 4. For example, as shown in fig. 4, theradiator 3 is disposed on a side of themuffler 4 away from the exhaust pipe 9. For example, as shown in fig. 4, theradiator 3 is adjacent to themuffler 4.
Since the temperature of the outer surface of themuffler 4 is high relative to the temperature of the gas discharged from theradiator 3, the gas discharged from theradiator 3 can flow toward themuffler 4, so that the flow speed of the gas outside themuffler 4 is increased, thereby achieving rapid cooling and recycling of the gas.
Fig. 5A is a schematic diagram of a fracturing apparatus provided in another embodiment of the present disclosure. Fig. 5B is a schematic diagram of a baffle in a fracturing apparatus provided by an embodiment of the present disclosure. Fig. 5C is a schematic diagram of an arrangement position of a baffle in a fracturing apparatus according to an embodiment of the present disclosure. Fig. 5D is a schematic diagram of an arrangement position of a baffle in a fracturing device according to another embodiment of the present disclosure.
For example, thefracturing apparatus 1d shown in fig. 5A is provided with abaffle 15, as compared to the fracturing apparatus 1c shown in fig. 4. For example, to avoid the influence of the outer surface temperature of themuffler 4 on theradiator 3, abaffle 15 is provided on the outer side of themuffler 4, and thebaffle 15 is located on the side closer to themuffler 4. For example, as shown in fig. 5A, 5C, and 5D, thebaffle 15 is disposed outside themuffler 4 and at least partially between themuffler 4 and theradiator 3. The provision of thebaffle 15 facilitates maximum reduction of thermal radiation.
Referring to fig. 3A, 4 and 5A, in order to facilitate the positional arrangement of theradiator 3, theradiator 3 is disposed on one side of themuffler 4.
As shown in fig. 4 and 5A, theradiator 3 is disposed on one side of themuffler 4 such that the side (air-out side) S0 of theradiator 3 from which the gas is discharged faces themuffler 4, the gas discharged from theradiator 3 is made to flow toward themuffler 4, the flow speed of the gas outside themuffler 4 is increased, and rapid temperature reduction and recycling of the gas are achieved.
For example, as shown in fig. 5B, in order to facilitate the flow of the gas exhausted from theradiator 3 toward themuffler 4, thebaffle 15 includes a plurality ofholes 150, for example, the holes may be configured as circular holes, oblong holes, and the like, and the shape of the holes may be set according to the need, which is not limited herein. The baffle shown in fig. 5B is described by taking thehole 150 as a circular hole. For example, the gas exhausted from theradiator 3 may flow toward themuffler 4 through the holes in thebaffle 15. Referring to fig. 3A, 4, and 5A, theheat sink 3 includes an air outlet side and an air inlet side, which are disposed opposite to each other. As shown in fig. 3A, the upper side of theheat sink 3 is an air outlet side, and the lower side of theheat sink 3 is an air inlet side. As shown in fig. 4 and 5A, the left side of theheat sink 3 is an air outlet side, and the right side of theheat sink 3 is an air inlet side. For example, air enters from the intake side of theradiator 3 and exits from the exhaust side of theradiator 3.
For example, referring to fig. 5A, 5C, and 5D, there is a space between theradiator 3 and themuffler 4, and the exhaust gas side S0 of theradiator 3 faces themuffler 4. The exhaust gas side (air-out side) S0 of theradiator 3 is shown in fig. 3A, 3B, 4, 5A, and 5C.
For example, referring to fig. 5B, thebaffle 15 includes a plurality ofholes 150, and referring to fig. 5C, a distance D1 between thebaffle 15 and themuffler 4 is smaller than a distance D2 between thebaffle 15 and theradiator 3.
For example, as shown in fig. 5C and 5D, themuffler 4 includes a first side S1, a second side S2, and a third side S3, the first side S1 faces theradiator 3, the second side S2 and the third side S3 are respectively connected to the first side S1, and thebaffle 15 is located at least outside the first side S1 of themuffler 4 to separate the exposed high-temperature portion of themuffler 4 from the external part.
As shown in fig. 5C, thebaffle 15 is located outside the first side S1, the second side S2, and the third side S3 of themuffler 4. Thus, the exposed high-temperature portion of themuffler 4 is separated from the exterior component, and the influence of themuffler 4 on the exterior component such as theradiator 3 can be reduced. For example, the external components include, but are not limited to, theheat sink 3. Fig. 5C illustrates an example in which thebaffle 15 is provided on both the second side surface S2 and the third side surface S3, the length of the portion of thebaffle 15 located outside the second side surface S2 in the first direction X is greater than the length of the second side surface S2 in the first direction X, and the length of the portion of thebaffle 15 located outside the third side surface S3 in the first direction X is greater than the length of the third side surface S3 in the first direction X. In other embodiments, the portion of thebaffle 15 located outside the second side S2 may have other lengths in the first direction X, and the portion of thebaffle 15 located outside the third side S3 may have other lengths in the first direction X.
For example, in embodiments of the present disclosure, the second direction Y intersects the first direction X. For further example, the second direction Y is perpendicular to the first direction X. For example, the second direction Y and the first direction X are directions parallel to the support surface of the vehicle body. For example, the support surface of the vehicle body is a surface on which various components are placed.
The position of theshutter 15 is not limited to the position shown in fig. 5C. Thebaffle 15 may be provided only outside the first side surface S1 of themuffler 4 as shown in fig. 5D.
As shown in fig. 5C and 5D, the second side S2 and the third side S3 are oppositely disposed.
As shown in fig. 5C and 5D, themuffler 4 includes a fourth side S4, and the fourth side S4 is disposed opposite to the first side S1. For example, themuffler 4 is connected to the exhaust pipe 9 at the fourth side S4.
As shown in fig. 5D, themuffler 4, thebaffle 15, and theradiator 3 are arranged in this order in the first direction X. In some embodiments, to better reduce the heat radiation, the size of thebaffle 15 in the second direction Y is larger than the size of thesilencer 4 in the second direction Y and larger than the size of theradiator 3 in the second direction Y. As shown in fig. 5C, the dimension of the portion of thebaffle 15 outside the first side S1 of themuffler 4 in the second direction Y is larger than the dimension of themuffler 4 in the second direction Y and larger than the dimension of theradiator 3 in the second direction Y.
For example, thebaffle 15 may be made of a metal material, but is not limited thereto, and those skilled in the art may select a suitable material as needed. In some embodiments, thebaffle 15 may comprise a steel plate.
In an embodiment of the present disclosure, referring to fig. 1A, 3A to 5A, themuffler 4 may include a first portion 41 and a second portion 42, the first portion 41 intersecting the second portion 42, e.g., the first portion 41 being perpendicular to the second portion 42. For example, themuffler 4 is L-shaped. For example, the side of themuffler 4 may refer to the side of the first portion 41 of the muffler. For example, the bottom surface of the first portion 41 of themuffler 4 is located on thevehicle body 100. Of course, in other embodiments, the side surface of themuffler 4 may also refer to the entire side surface of themuffler 4, in which case, the side surface of themuffler 4 may refer to a portion of themuffler 4 that is not parallel to the supporting surface of thevehicle body 100.
It should be noted that, in the fracturing unit 1b, the fracturing unit 1b1, the fracturing unit 1b2, the fracturing unit 1c, or thefracturing unit 1d provided in the embodiments of the present disclosure, the auxiliary unit 500 may not be directly electrically driven. For example, each unit included in the auxiliary unit 500, for example, at least one of the starting unit 501, the lubricating unit 502, the cooling unit 503, the air supply unit 504, and the ventilation unit 505, may be hydraulically driven.
Fig. 6 is a schematic diagram of an auxiliary unit power transmission process in a fracturing device according to an embodiment of the present disclosure. As shown in fig. 6, the fracturing apparatus includes apower source 12, a power distribution unit 60, and an implement 70. For example, thepower source 12 mainly includes grid power, a chemical battery, a generator, hydrogen power generation, and the like. For example, the battery includes at least one of an energy storage battery, an aluminum battery, a fuel cell, a lithium ion secondary battery, and a nickel metal hydride battery. For example, the generator may be a gas turbine or an oil-fired power generation device.
For example, the power distribution unit 60 mainly includes a switch cabinet, a substation, a distribution station, and the like.
For example, the execution unit 70 mainly includes auxiliary units of the turbine fracturing equipment, sand conveying equipment, sand mixing equipment, chemical adding equipment and other equipment requiring power consumption. For example, the turbine fracturing auxiliary unit adopts a motor as a power source to drive components such as complete machine lubrication, cooling, turbine engine starting, air supply and ventilation.
For example, in embodiments of the present disclosure, direct connection of the drive motor to the implement component may mean that there is no hydraulic unit between the drive motor and the implement component. For example, the hydraulic unit includes a hydraulic pump. For example, in embodiments of the present disclosure, the implement components are electrically driven components, rather than hydraulically driven components.
At least one embodiment of the present disclosure provides a fracturing system comprising any of the fracturing apparatuses described above.
Fig. 7A shows a schematic diagram of a fracturing system including a turbine fracturing plant, manifold plant, sand mulling plant, compounding plant, sand transporting plant, sand tank, etc., as described above, in accordance with an embodiment of the present disclosure. For example, sand tanks are used to store and deliver proppant to a sand mulling facility through a delivery mechanism. For example, chemical addition equipment and clean water sources are connected with the mixing equipment to make the fracturing base fluid in the mixing equipment. For example, the compounding equipment can deliver the fracturing base fluid into the sand mulling equipment. For example, the fracturing blender apparatus thoroughly mixes the fracturing base fluid and proppant to form a fracturing fluid, which is delivered to the turbine fracturing apparatus through a manifold. For example, the turbine fracturing equipment pressurizes the low-pressure sucked fracturing fluid to form high-pressure fracturing fluid which is discharged to a wellhead.
For example, any one or more of a chemical feeding device, a sand mulling device, a sand transporting device, and a compounding device may be powered by thepower source 12. The centralized control is carried out through instrument equipment (vehicle-mounted, semi-trailer-mounted and skid-mounted), and the turbine fracturing equipment, the turbine generating equipment, thepower supply 12, the manifold equipment, the sand mixing equipment, the sand conveying equipment, the sand tank and the like can be controlled, so that the centralized control of the turbine-electric driving well site is realized.
For example, referring to fig. 6, thepower source 12 may provide electric power to the motor of the sand transporting device, the motor of the sand mixing device, the motor of the mixing device, and the motor of the auxiliary unit of the turbine fracturing device by connecting the switch cabinet and the substation in sequence.
Fig. 7B illustrates a fracturing system provided by an embodiment of the present disclosure. For example, as shown in fig. 7B, the plunger pump of at least one fracturing device in the fracturing system is removably disposed and can be removed and replaced with a generator forming part of thepower source 12. Aiming at the problem of electricity utilization at a well site, the quick replacement structure shown in fig. 8 and 9 is designed, so that the turbine fracturing equipment can be quickly changed into turbine power generation equipment, and the function can be converted by replacing theplunger pump 1 into thepower generator 303.
As shown in fig. 7A and 7B, the solid line represents the formulated fracture fluid and the fracture fluid walk diagram; the dashed lines indicate cable control.
As shown in fig. 8, afirst forklift hole 202 is formed in thefirst base 201, so that the plunger pump can be replaced conveniently. Withplunger pump 1 andfirst base 201 as a whole, whenplunger pump 1 needs to be changed, demolish the fixing bolt betweenfirst base 201 andautomobile body 100, stretch into firstfork truck hole 202 through fork truck, can carry out quick replacement withplunger pump 1.
Similarly, as shown in fig. 9, the quick-change structure of the generator mainly comprises agenerator 303, asecond base 301 and a secondfork truck hole 302. When turbine fracturing equipment needs to be changed into generator equipment, theplunger pump 1 only needs to be replaced quickly, thegenerator 303 is replaced quickly, and quick conversion between fracturing operation and power generation operation is achieved. The speed reducer connected with the turbine engine is set to a preset rotating speed, so that the rotating speed of the turbine engine can be reduced to a certain range, the requirement of the plunger pump operation can be met, and the generator can be driven to perform power generation operation. The output cable of the generator can be quickly connected with the control systems on the turbine fracturing equipment and the sand mixing, mixing and conveying equipment in a quick connection mode.
For example, the turbine power generation equipment is used for one-by-one use, the reliability of power supply is guaranteed, and any two turbine fracturing equipment in a well site can replace a plunger pump with a generator through a plunger pump quick-dismantling structure to be used as thepower source 12. In another embodiment, two replaced turbine power generation devices are preferably disposed on each side of the manifold device to facilitate connection of cables. In another embodiment, the two replaced turbine power generation devices are symmetrically arranged about the center line of the manifold device, so that cable laying is more convenient.
It should be noted that the fracturing equipment provided by the embodiment of the present disclosure may not adopt the structure for adjusting the installation positions of the radiator or the radiator and the silencer in fig. 3A, 4, and 5A. That is, some embodiments of the present disclosure provide a fracturing apparatus in which the radiator may not be disposed above theplunger pump 1, and some embodiments of the present disclosure provide a fracturing apparatus in which the radiator may not be disposed opposite to themuffler 4. That is, the fracturing equipment, the heat sink provided by some embodiments of the present disclosure may also adopt other arrangements.
Features of the same embodiment of the disclosure and of different embodiments may be combined with each other without conflict.
The above description is only for the specific embodiments of the present disclosure, but the scope of the present disclosure is not limited thereto, and any person skilled in the art can easily change or replace the embodiments within the technical scope of the present disclosure, and the embodiments are included in the scope of the present disclosure. Therefore, the protection scope of the present disclosure shall be subject to the protection scope of the claims.

Claims (18)

1. A fracturing apparatus, comprising:
a plunger pump configured to pressurize a fracturing fluid to form a high pressure fracturing fluid;
a turbine engine coupled with the plunger pump configured to provide a driving force to the plunger pump;
an auxiliary unit including a driving motor, the auxiliary unit being configured to provide at least one of a start-up auxiliary function, a lubricating function, a cooling function, and an air supply function to the fracturing apparatus; and
a power source electrically connected with the driving motor of the auxiliary unit, configured to provide a driving force to the auxiliary unit.
2. The fracturing apparatus of claim 1, wherein the auxiliary unit comprises a start unit configured to start the turbine engine, and the drive motor comprises a starter motor.
3. The fracturing apparatus of claim 2, wherein the starter motor is configured to directly start the turbine engine, the starter motor being directly connected to the turbine engine, the starting unit being disposed on the turbine engine.
4. The fracturing apparatus of any of claims 1 to 3, wherein the auxiliary unit further comprises a lubrication unit and a cooling unit,
the driving motor includes a lubrication motor and a cooling motor, the lubrication unit further includes a lubrication pump and a lubrication oil tank, the lubrication motor is configured to drive the lubrication pump to deliver the lubrication oil in the lubrication oil tank to a lubrication point,
the cooling unit further includes a radiator, the cooling motor is configured to drive the radiator to cool the lubricating oil,
the lubricating motor is directly connected with the lubricating pump, and the cooling motor is directly connected with the radiator.
5. The fracturing apparatus of claim 4, further comprising an air supply unit, wherein the drive motor comprises a gas path motor,
the air supply unit further comprises an air compressor, the air path motor is configured to drive the air compressor to provide compressed air to the turbine engine,
the gas circuit motor is directly connected with the air compressor.
6. The fracturing apparatus of any of claims 1-3, further comprising a ventilation unit, wherein the drive motor comprises a ventilation motor, the ventilation unit further comprising a ventilation component, the ventilation motor configured to drive the ventilation component,
the ventilation motor is directly connected with the ventilation component.
7. The fracturing apparatus of any of claims 1 to 3, wherein the power source comprises at least one of a generator, grid power, fuel cell and energy storage battery, the power source being electrically connected to the drive motor through a switchgear, substation.
8. The fracturing apparatus of any of claims 1-3, further comprising a carrier, wherein at least a portion of the plunger pump, the turbine engine, and the auxiliary unit are disposed on the carrier, wherein the plunger pump is removably secured to the carrier.
9. A fracturing apparatus according to claim 8, wherein the plunger pump is fixed on a first base provided with a first forklift aperture, the plunger pump being detachably fixed on the carrier by the first base.
10. The fracturing apparatus of claim 4, wherein the heat sink is disposed above the plunger pump.
11. The fracturing apparatus of claim 4, further comprising a muffler, wherein the turbine engine includes an exhaust pipe, the muffler being connected to the exhaust pipe, the radiator being disposed on a side of the muffler remote from the exhaust pipe.
12. The fracturing apparatus of claim 11, wherein the heat sink and the acoustic dampener have a space therebetween, the air outlet side of the heat sink facing the acoustic dampener.
13. The fracturing apparatus of claim 11 or 12, further comprising a baffle, wherein the baffle is disposed outside of the acoustic dampener and at least partially between the acoustic dampener and the heat sink, the baffle including a plurality of holes, the distance between the baffle and the acoustic dampener being less than the distance between the baffle and the heat sink.
14. The fracturing apparatus of claim 13, wherein the silencer includes a first side facing the heat sink, a second side and a third side connected to the first side, respectively, the baffle being positioned outside of the first, second and third sides of the silencer.
15. A fracturing system, comprising:
a fracturing apparatus according to any one of claims 1 to 14; and
a peripheral device, the power supply configured to connect to the peripheral device to provide power thereto.
16. The fracturing system of claim 15, wherein the peripheral equipment comprises at least one of compounding equipment, mulling equipment, and transport mechanisms;
the compounding device is configured to compound a fracturing base fluid;
the fracturing blender apparatus is configured to mix the fracturing base fluid with a proppant to form the fracturing fluid;
the delivery mechanism is configured to deliver proppant stored in the sand tank to the sand mulling facility.
17. The fracturing system of claim 15 or 16, wherein the fracturing apparatus is provided in plurality, and the plunger pump of at least one fracturing apparatus is replaced with an electrical generator comprising at least a part of the electrical power supply.
18. The fracturing system of claim 17, wherein the generator is secured to a second base, the base being provided with a second forklift aperture.
CN202110426496.9A2019-09-202021-04-20 Fracturing equipment and fracturing systemsActiveCN112983382B (en)

Priority Applications (7)

Application NumberPriority DateFiling DateTitle
CA3144930ACA3144930C (en)2020-12-042021-05-26Fracturing apparatus and fracturing system
PCT/CN2021/096099WO2022116483A1 (en)2020-12-042021-05-26Fracturing apparatus and fracturing system
AU2021390073AAU2021390073A1 (en)2020-12-042021-05-26Fracturing apparatus and fracturing system
US17/542,330US12000253B2 (en)2019-09-202021-12-03Fracturing apparatus and fracturing system
US17/891,664US12134963B2 (en)2019-09-202022-08-19Fracturing apparatus and fracturing system
US18/064,150US12006806B2 (en)2019-09-202022-12-09Fracturing apparatus and fracturing system
US18/936,367US20250059870A1 (en)2019-09-202024-11-04Fracturing apparatus and fracturing system

Applications Claiming Priority (2)

Application NumberPriority DateFiling DateTitle
CN2020113969882020-12-04
CN202011396988X2020-12-04

Publications (2)

Publication NumberPublication Date
CN112983382Atrue CN112983382A (en)2021-06-18
CN112983382B CN112983382B (en)2025-10-14

Family

ID=

Cited By (15)

* Cited by examiner, † Cited by third party
Publication numberPriority datePublication dateAssigneeTitle
CN113323834A (en)*2021-06-292021-08-31烟台杰瑞石油装备技术有限公司Turbine fracturing device
CN113978337A (en)*2021-10-092022-01-28烟台杰瑞石油装备技术有限公司Electric drive well cementing truck
CN114033348A (en)*2021-11-182022-02-11烟台杰瑞石油装备技术有限公司 Turbo fracturing equipment
CN114070169A (en)*2021-11-162022-02-18烟台杰瑞石油装备技术有限公司Fracturing equipment, starting method thereof and fracturing equipment set
CN114109335A (en)*2021-10-142022-03-01烟台杰瑞石油装备技术有限公司Fracturing equipment driven by variable-frequency speed-regulating all-in-one machine
CN115087792A (en)*2022-02-162022-09-20烟台杰瑞石油装备技术有限公司Electrically driven fracturing system
WO2023060704A1 (en)*2021-10-122023-04-20烟台杰瑞石油装备技术有限公司Power supply system for well-site electric drive equipment
US11677238B2 (en)2021-04-262023-06-13Yantai Jereh Petroleum Equipment & Technologies Co., Ltd.Electric power supply method and electric power supply system
US11680474B2 (en)2019-06-132023-06-20Yantai Jereh Petroleum Equipment & Technologies Co., Ltd.Fracturing apparatus and control method thereof, fracturing system
US11746636B2 (en)2019-10-302023-09-05Yantai Jereh Petroleum Equipment & Technologies Co., Ltd.Fracturing apparatus and control method thereof, fracturing system
US11982169B2 (en)2021-10-142024-05-14Yantai Jereh Petroleum Equipment & Technologies Co., Ltd.Fracturing device driven by a variable-frequency adjustable-speed integrated machine and a well site layout
US12173594B2 (en)2019-06-132024-12-24Yantai Jereh Petroleum Equipment & Technologies Co., Ltd.Fracturing system
US12313059B2 (en)2019-10-302025-05-27Yantai Jereh Petroleum Equipment & Technologies Co., Ltd.Variable-speed integrated machine and wellsite apparatus
US12326074B2 (en)2019-06-132025-06-10Yantai Jereh Petroleum Equipment & Technologies Co., Ltd.Fracturing apparatus and control method thereof, fracturing system
US12331625B2 (en)2021-11-182025-06-17Yantai Jereh Petroleum Equipment & Technologies Co., Ltd.Turbine fracturing apparatus and turbine fracturing well site

Citations (6)

* Cited by examiner, † Cited by third party
Publication numberPriority datePublication dateAssigneeTitle
JPH0640313U (en)*1992-10-281994-05-27富士重工業株式会社 Muffler cooling system for general-purpose engine with forced air cooling
CN110485983A (en)*2019-09-202019-11-22烟台杰瑞石油装备技术有限公司A kind of turbine pressure break semitrailer
CN110821464A (en)*2019-12-032020-02-21烟台杰瑞石油装备技术有限公司 A well site layout system for fracturing
US20200109617A1 (en)*2018-10-092020-04-09U.S. Well Services, LLCModular switchgear system and power distribution for electric oilfield equipment
CN111206992A (en)*2020-03-122020-05-29美国杰瑞国际有限公司Continuous high-power turbine fracturing equipment
CN214741266U (en)*2020-12-042021-11-16烟台杰瑞石油装备技术有限公司Fracturing equipment and fracturing system

Patent Citations (6)

* Cited by examiner, † Cited by third party
Publication numberPriority datePublication dateAssigneeTitle
JPH0640313U (en)*1992-10-281994-05-27富士重工業株式会社 Muffler cooling system for general-purpose engine with forced air cooling
US20200109617A1 (en)*2018-10-092020-04-09U.S. Well Services, LLCModular switchgear system and power distribution for electric oilfield equipment
CN110485983A (en)*2019-09-202019-11-22烟台杰瑞石油装备技术有限公司A kind of turbine pressure break semitrailer
CN110821464A (en)*2019-12-032020-02-21烟台杰瑞石油装备技术有限公司 A well site layout system for fracturing
CN111206992A (en)*2020-03-122020-05-29美国杰瑞国际有限公司Continuous high-power turbine fracturing equipment
CN214741266U (en)*2020-12-042021-11-16烟台杰瑞石油装备技术有限公司Fracturing equipment and fracturing system

Cited By (28)

* Cited by examiner, † Cited by third party
Publication numberPriority datePublication dateAssigneeTitle
US12326074B2 (en)2019-06-132025-06-10Yantai Jereh Petroleum Equipment & Technologies Co., Ltd.Fracturing apparatus and control method thereof, fracturing system
US12312930B2 (en)2019-06-132025-05-27Yantai Jereh Petroleum Equipment & Technologies Co., Ltd.Fracturing system
US12173594B2 (en)2019-06-132024-12-24Yantai Jereh Petroleum Equipment & Technologies Co., Ltd.Fracturing system
US11680474B2 (en)2019-06-132023-06-20Yantai Jereh Petroleum Equipment & Technologies Co., Ltd.Fracturing apparatus and control method thereof, fracturing system
US12313059B2 (en)2019-10-302025-05-27Yantai Jereh Petroleum Equipment & Technologies Co., Ltd.Variable-speed integrated machine and wellsite apparatus
US12180819B2 (en)2019-10-302024-12-31Yantai Jereh Petroleum Equipment & Technologies Co., Ltd.Fracturing apparatus and control method thereof, fracturing system
US11746636B2 (en)2019-10-302023-09-05Yantai Jereh Petroleum Equipment & Technologies Co., Ltd.Fracturing apparatus and control method thereof, fracturing system
US11677238B2 (en)2021-04-262023-06-13Yantai Jereh Petroleum Equipment & Technologies Co., Ltd.Electric power supply method and electric power supply system
WO2023272778A1 (en)*2021-06-292023-01-05烟台杰瑞石油装备技术有限公司Turbine fracturing device
US12117023B2 (en)2021-06-292024-10-15Yantai Jereh Petroleum Equipment & Technologies Co., Ltd.Turbine fracturing apparatus
CN113323834A (en)*2021-06-292021-08-31烟台杰瑞石油装备技术有限公司Turbine fracturing device
US11686329B2 (en)2021-06-292023-06-27Yantai Jereh Petroleum Equipment & Technologies Co., Ltd.Turbine fracturing apparatus
CN113978337A (en)*2021-10-092022-01-28烟台杰瑞石油装备技术有限公司Electric drive well cementing truck
WO2023060704A1 (en)*2021-10-122023-04-20烟台杰瑞石油装备技术有限公司Power supply system for well-site electric drive equipment
US12021389B2 (en)2021-10-122024-06-25Yantai Jereh Petroleum Equipment & Technologies Co., Ltd.Power supply system for electrically driven wellsite facility
US11982169B2 (en)2021-10-142024-05-14Yantai Jereh Petroleum Equipment & Technologies Co., Ltd.Fracturing device driven by a variable-frequency adjustable-speed integrated machine and a well site layout
CN114109335B (en)*2021-10-142023-09-19烟台杰瑞石油装备技术有限公司Fracturing equipment driven by variable-frequency speed regulation integrated machine and well site layout
CN114109335A (en)*2021-10-142022-03-01烟台杰瑞石油装备技术有限公司Fracturing equipment driven by variable-frequency speed-regulating all-in-one machine
US12331626B2 (en)2021-10-142025-06-17Yantai Jereh Petroleum Equipment & Technologies Co., Ltd.Fracturing device driven by a variable-frequency adjustable-speed integrated machine and a well site layout
CN114070169B (en)*2021-11-162023-08-18烟台杰瑞石油装备技术有限公司Fracturing equipment, starting method thereof and fracturing equipment set
CN114070169A (en)*2021-11-162022-02-18烟台杰瑞石油装备技术有限公司Fracturing equipment, starting method thereof and fracturing equipment set
CN114033348B (en)*2021-11-182022-11-25烟台杰瑞石油装备技术有限公司Turbine fracturing device
CN115977602A (en)*2021-11-182023-04-18烟台杰瑞石油装备技术有限公司 Turbo fracturing equipment
CN114033348A (en)*2021-11-182022-02-11烟台杰瑞石油装备技术有限公司 Turbo fracturing equipment
WO2023087528A1 (en)*2021-11-182023-05-25烟台杰瑞石油装备技术有限公司Turbine fracturing equipment and turbine fracturing wellsite
US12331625B2 (en)2021-11-182025-06-17Yantai Jereh Petroleum Equipment & Technologies Co., Ltd.Turbine fracturing apparatus and turbine fracturing well site
CN115087792A (en)*2022-02-162022-09-20烟台杰瑞石油装备技术有限公司Electrically driven fracturing system
US12203353B2 (en)2022-02-162025-01-21Yantai Jereh Petroleum Equipment & Technologies Co., Ltd.Electrically-driven fracturing system

Also Published As

Publication numberPublication date
CN214741266U (en)2021-11-16
WO2022116483A1 (en)2022-06-09

Similar Documents

PublicationPublication DateTitle
US12006806B2 (en)Fracturing apparatus and fracturing system
US12134963B2 (en)Fracturing apparatus and fracturing system
US11905880B2 (en)Power generation apparatus and power system
US20220259964A1 (en)Adaptive Mobile Power Generation System
US12331626B2 (en)Fracturing device driven by a variable-frequency adjustable-speed integrated machine and a well site layout
US20240035363A1 (en)Fracturing apparatus and control method thereof, fracturing system
CN210660319U (en)Double-vehicle-mounted gas turbine generator set
CN210289932U (en)Mobile power generation system
US12331625B2 (en)Turbine fracturing apparatus and turbine fracturing well site
CN110848028A (en) A system for providing mobile power
CN114109335B (en)Fracturing equipment driven by variable-frequency speed regulation integrated machine and well site layout
CN219754663U (en)Mobile power generation equipment and fracturing system
US12234712B2 (en)Adaptive mobile power generation system
CN214741266U (en)Fracturing equipment and fracturing system
CN217602640U (en)Fracturing equipment and fracturing system
US20250027397A1 (en)Pump system, wellsite layout and method for controlling the pump system
CN112983382B (en) Fracturing equipment and fracturing systems
CN109689504A (en) Ground starting devices for starting and servicing aircraft jet engines
CA3144930C (en)Fracturing apparatus and fracturing system
CN112937409A (en)Construction vehicle
US20230332598A1 (en)Connecting Structure, Plunger Pump Device and Generator Device
US20250059870A1 (en)Fracturing apparatus and fracturing system
CN217455790U (en)Mobile power generation equipment
WO2022252769A1 (en)Power generation apparatus and power system
CN223161629U (en)Mixed mining dump truck heat abstractor

Legal Events

DateCodeTitleDescription
PB01Publication
PB01Publication
SE01Entry into force of request for substantive examination
SE01Entry into force of request for substantive examination
GR01Patent grant

[8]ページ先頭

©2009-2025 Movatter.jp