






技术领域technical field
本发明涉及指针式仪表制造领域,具体是一种无线供电激光指针仪表。The invention relates to the field of pointer type instrument manufacturing, in particular to a wireless power supply laser pointer instrument.
背景技术Background technique
现今的指针式仪表,都有一个实体的指针,但由于转动惯量与实体指针的长度呈现平方的关系,因此实体指针不能做的太长,从而不可能使电流表的刻度盘的尺寸范围做大,较短指针仪表在教学演示中,不能使的离仪表稍远的学员直接观看到仪表的指示值。Today's pointer instruments all have a solid pointer, but since the moment of inertia and the length of the solid pointer are in a square relationship, the solid pointer cannot be made too long, so it is impossible to make the size range of the ammeter dial larger. In the teaching demonstration of the short pointer meter, the students who are far away from the meter cannot directly view the indicated value of the meter.
发明内容SUMMARY OF THE INVENTION
本发明的目的就是克服实体指针式仪表的不足,提供了不需要实体指针,而采用无线供电产生的激光束作为指针的仪表的结构。The purpose of the present invention is to overcome the deficiencies of the physical pointer type instrument, and to provide a structure of the instrument that does not require a physical pointer and uses a laser beam generated by wireless power supply as the pointer.
一种无线供电激光指针仪表,包括壳体、刻度盘、偏转机构、直流电源,激光模组,还包括无线供电接收模块和无线供电发送模块,无线供电接收模块和激光模组与偏转机构设置为一体结构,无线供电接收模块的电压输出端连接于激光模组的电源入端,无线供电发送模块设置在壳体上,无线供电发送模块的电源入端连接于直流电源的电压输出端。A wireless power supply laser pointer instrument includes a casing, a dial, a deflection mechanism, a DC power supply, a laser module, a wireless power supply receiving module and a wireless power supply sending module, and the wireless power supply receiving module, the laser module and the deflection mechanism are arranged as Integrated structure, the voltage output end of the wireless power supply receiving module is connected to the power input end of the laser module, the wireless power supply sending module is arranged on the housing, and the power input end of the wireless power supply sending module is connected to the voltage output end of the DC power supply.
所述无线供电发送模块与偏转机构无任何机械连接。The wireless power supply sending module has no mechanical connection with the deflection mechanism.
所述无线供电发送模块设置在壳体上位于无线供电接收模块正上方的位置,无线供电发送模块的发送线圈平面与无线供电接收模块的接收线圈平面平行且尽量靠近,无线供电发送模块隔空向无线供电接收模块发送电磁波能量,无线供电接收模块将接收的电磁波能量再转换为电能供给激光模组。The wireless power supply sending module is arranged on the casing at a position just above the wireless power supply receiving module, the plane of the sending coil of the wireless power supply sending module is parallel to and as close as possible to the plane of the receiving coil of the wireless power supply receiving module, and the wireless power supply sending module is spaced to the side. The wireless power supply receiving module transmits electromagnetic wave energy, and the wireless power supply receiving module converts the received electromagnetic wave energy into electrical energy to supply the laser module.
所述激光模组的电源是由无线供电接收模块提供,即先由直流电源给无线供电发送模块供电,无线供电发送模块隔空给无线供电接收模块发送电磁波能量,无线供电接收模块将接收的电磁波能量变换成电能供给激光模组,实现了直流电源向激光模组供电的无线传输。The power supply of the laser module is provided by the wireless power supply receiving module, that is, the DC power supply first supplies power to the wireless power supply transmitting module, the wireless power supply transmitting module transmits electromagnetic wave energy to the wireless power supply receiving module in a space, and the wireless power supply receiving module will receive the electromagnetic wave energy. The energy is converted into electric energy and supplied to the laser module, which realizes the wireless transmission of the DC power supply to the laser module.
所述激光模组跟随偏转机构一起偏转,激光模组发出的激光束投射到刻度盘的上表面,形成激光指针。The laser module is deflected together with the deflection mechanism, and the laser beam emitted by the laser module is projected onto the upper surface of the dial to form a laser pointer.
所述激光模组上设置有扩束镜,使得激光头发出的激光被扩束成沿垂直于刻度盘面方向的扇面状激光束,扩束镜与激光模组既可以采取分离结构,也可以采取一体结构。The laser module is provided with a beam expander, so that the laser beam emitted by the laser head is expanded into a fan-shaped laser beam along the direction perpendicular to the dial surface. The beam expander and the laser module can adopt a separate structure or All-in-one structure.
在刻度盘上表面设置有弧形遮光条,弧形遮光条的下沿边距离刻度盘的上表面有一定的高度,弧形遮光条的弧线中心与偏转机构转的中轴线重合。An arc shading strip is arranged on the upper surface of the dial, the lower edge of the arc shading strip is a certain height from the upper surface of the dial, and the arc center of the arc shading strip coincides with the central axis of the deflection mechanism.
所述弧形遮光条遮挡了扇面状激光束的上扇面部分,下扇面部分的激光束投射到刻度盘的表面上,使得刻度盘上方的区域不会有激光束照射。The arc-shaped light shielding strip shields the upper fan surface part of the fan-shaped laser beam, and the laser beam of the lower fan surface part is projected on the surface of the dial, so that the area above the dial is not irradiated by the laser beam.
所述偏转机构包含有磁电系偏转结构、电磁系偏转结构、电动系偏转结构,或是非电偏转结构。The deflection mechanism includes a magnetoelectric deflection structure, an electromagnetic deflection structure, an electrodynamic deflection structure, or a non-electric deflection structure.
本实发明的有益效果是:The beneficial effects of the present invention are:
1.由于激光指针不受到长度限制,激光指针表的刻度盘可以比实体指针的刻度盘大许多倍,特别方便用于物理量测量教学的演示。1. Since the laser pointer is not limited in length, the dial of the laser pointer watch can be many times larger than the dial of the physical pointer, which is especially convenient for demonstration of physical quantity measurement teaching.
2.激光指针随被测物理量变化的偏转响应的比长实体指针速度快,可以极快地响应被测物理量的快速变化。2. The deflection response of the laser pointer with the change of the measured physical quantity is faster than that of the long solid pointer, and it can respond extremely quickly to the rapid change of the measured physical quantity.
3.无线供电激光指针仪表可以非常方便的做成激光指针电流表,在电流表电路上加接传感元件和变换电路后,还可以做成测量其他任何物理量的激光指针式测量仪表。3. The wireless powered laser pointer meter can be easily made into a laser pointer ammeter. After adding a sensing element and a conversion circuit to the ammeter circuit, it can also be made into a laser pointer measuring instrument for measuring any other physical quantity.
附图说明:Description of drawings:
图1是本发明的基本结构示意图。FIG. 1 is a schematic diagram of the basic structure of the present invention.
图2是本发明的电气连接示意图。Figure 2 is a schematic diagram of the electrical connection of the present invention.
图3是本发明实施例一的结构示意图。FIG. 3 is a schematic structural diagram of
图4是本发明实施例二的结构示意图。FIG. 4 is a schematic structural diagram of
图5是实施例二的电气连接示意图。FIG. 5 is a schematic diagram of the electrical connection of the second embodiment.
图6是本发明实施例三的结构示意图。FIG. 6 is a schematic structural diagram of
图7是本发明实施例四的结构示意图。FIG. 7 is a schematic structural diagram of
具体实施方式Detailed ways
下面结合附图和实施例对本发明作进一步说明。The present invention will be further described below with reference to the accompanying drawings and embodiments.
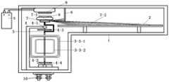
见图1和图2所示,一种无线供电激光指针仪表,包括壳体1、刻度盘2、偏转机构3、直流电源5,激光模组7,7-1是扩束镜,4-1和4-2分别是上轴承和下轴承,4-3和4-4分别是上游丝和下游丝,还包括无线供电接收模块8、8-1是无线供电接收线圈,和无线供电发送模块9、9-1是无线供电发送线圈、,10是测量接线桩,无线供电接收模块8和激光模组7与偏转机构3设置为一体结构,无线供电接收模块8的电压输出端连接于激光模组7的电源入端,无线供电发送模块9设置在壳体1上,无线供电发送模块9的电源入端连接于直流电源5的电压输出端。As shown in Figures 1 and 2, a wireless power supply laser pointer instrument includes a
具体实施例一:本实施例是无线供电激光指针式磁电系电流表。Specific embodiment 1: This embodiment is a wireless power supply laser pointer type magnetoelectric ammeter.
图3是本实施例的结构示意图,图3附图标记包含:1是壳体,2是刻度盘,3是偏转机构,3-1-1是磁电系偏转机构铝框及偏转线圈,3-1-2是磁电系偏转机构铁芯,3-1-3是磁电系偏转机构永磁体,4是偏转机构支架,4-1和4-2分别是上轴承和下轴承,4-3和4-4分别是上游丝和下游丝,5是直流电源,6是弧形遮光条,7是激光模组,7-1是扩束镜,8是无线供电接收模块,8-1是无线供电接收线圈,9是无线供电发送模块,9-1是无线供电发送线圈,10是测量接线桩。Fig. 3 is a schematic diagram of the structure of this embodiment, and the reference numerals in Fig. 3 include: 1 is the casing, 2 is the dial, 3 is the deflection mechanism, 3-1-1 is the aluminum frame and the deflection coil of the magnetoelectric system deflection mechanism, 3 -1-2 is the iron core of the magnetoelectric system deflection mechanism, 3-1-3 is the permanent magnet of the magnetoelectric system deflection mechanism, 4 is the deflection mechanism bracket, 4-1 and 4-2 are the upper and lower bearings respectively, 4- 3 and 4-4 are the upstream wire and the downstream wire respectively, 5 is the DC power supply, 6 is the arc shading strip, 7 is the laser module, 7-1 is the beam expander, 8 is the wireless power supply receiving module, 8-1 is the Wireless power supply receiving coil, 9 is a wireless power supply sending module, 9-1 is a wireless power supply sending coil, and 10 is a measurement wiring stake.
无线供电接收模块8、激光模组7与设置在偏转机构3上,激光模组7与无线供电接收模块8电气连接,激光模组7发出的激光束7-2投射到刻度盘2上形成激光指针。The wireless power
无线供电发送模块(9)设置在壳体(1)上,无线供电发送模块(9)的电源入端连接于直流电源(5)的电压输出端。The wireless power supply sending module (9) is arranged on the casing (1), and the power input end of the wireless power supply sending module (9) is connected to the voltage output end of the DC power supply (5).
激光模组7的电源是由无线供电接收模块8提供,先由直流电源5给无线供电发送模块9供电,无线供电发送模块9隔空给无线供电接收模块8发送电磁波能量,无线供电接收模块8将接收的电磁波能量变换成电能供给激光模组7,实现了激光模组7所需电源的无线供电。The power supply of the
弧形遮光条设置在距刻度盘上表面上,由于弧形遮光条遮挡激光束的上扇面部分,使得刻度盘上方的区域不会有激光束照射。The arc-shaped light-shielding strip is arranged on the upper surface of the dial. Since the arc-shaped light-shielding strip shields the upper fan of the laser beam, the area above the dial will not be irradiated by the laser beam.
当接通电源5,激光模块7发出激光束7-2,照射到刻度盘上。When the
经测量桩头10给磁电系电流表通以被测电流,偏转机构3带动激光模组7及发出的激光束7-2一起偏转,依被测电流大小发生一定偏转角度的激光束7-2投射到刻度盘2上,在刻度盘2上读出具体的被测电流值,实现了无线供电激光指针磁电系电流表对被测电流的测量。The measured current is supplied to the magnetoelectric ammeter through the
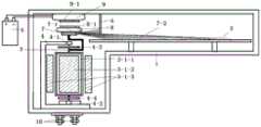
具体实施例二:本实施例是将实施例一进行功能进一步扩展而成的激光指针式万用表,本实施例就是将实施例一与一块指针万用表进行组合,形成的无线供电激光指针万用表,见图4和图5。Specific embodiment 2: This embodiment is a laser pointer multimeter obtained by further extending the functions of the first embodiment. This embodiment is a wireless power supply laser pointer multimeter formed by combining the first embodiment and a pointer multimeter, as shown in Fig. 4 and Fig. 5.
图4是本实施例结构示意图,图4附图标记包含:30是实施例一形成的激光指针磁电系电流表,30-1所在位置是包含了实施例一中的偏转机构、激光模组、扩束镜、无线供电接收模块和无线供电发送模块等,7-2是激光射线束,30-2是大刻度盘的刻度线,5是直流电源,20是万用表,20-1是万用表表头,20-2是万用表的刻度线,20-3是万用表测量档位选择旋钮,20-4是万用表测量插孔,40是表头切换兼具电源开闭的复合开关。4 is a schematic structural diagram of the present embodiment, and the reference numerals in FIG. 4 include: 30 is the laser pointer magnetoelectric ammeter formed in the first embodiment, and the position of 30-1 includes the deflection mechanism, the laser module, the Beam expander, wireless power receiving module and wireless power sending module, etc. 7-2 is the laser beam, 30-2 is the scale line of the large dial, 5 is the DC power supply, 20 is the multimeter, and 20-1 is the multimeter head , 20-2 is the scale line of the multimeter, 20-3 is the multimeter measurement gear selection knob, 20-4 is the multimeter measurement jack, and 40 is the composite switch of the meter switch and the power switch.
图5是本实施例的电气连接示意图,图5附图标记包含:5是直流电源,7是激光模组,8是无线供电接收模块,9是无线供电发送模块,20是指针万用表,20-1是指针万用表表头,20-3是测量档位选择旋钮,20-4是万用表测量表笔插孔,30是实施例一形成的激光指针磁电系电流表,40是表头切换兼具电源开闭的复合开关。Fig. 5 is a schematic diagram of the electrical connection of this embodiment, and the reference numerals in Fig. 5 include: 5 is a DC power supply, 7 is a laser module, 8 is a wireless power supply receiving module, 9 is a wireless power supply sending module, 20 is a pointer multimeter, 20- 1 is the pointer multimeter head, 20-3 is the measuring gear selection knob, 20-4 is the multimeter measuring pen jack, 30 is the laser pointer magnetoelectric ammeter formed in the first embodiment, and 40 is the head switch and power on. closed composite switch.
当复合开关40拨向一侧,是直流电源关闭,及切换为万用表表头20-1,当复合开关40拨向另一侧,是直流电源开启和切换为激光指针电流表30。When the
本实施例中,将激光指针电流表30的内阻和满刻度值都调整到与万用表表头20-1相同,将万用表指针刻度线进行许多倍的放大,制成激光指针电流表的刻度线30-2,这样,对同一对象的电流测量,激光指针电流表30的读数与切换为万用表实体指针表头20-1的读数就完全一致。In this embodiment, the internal resistance and full scale value of the
将复合开关拨至电源开启及启用激光指针电流表一侧,无线供电发送模块9通电,激光模块7通过无线供电接收模块8获得所需电源,发出激光束7-2投射到激光指针电流表的刻度线30-2上,通过档位旋钮20-3选择所需的测量档位,就可实现激光指针式万用表对直流电压、交流电压、直流电流、电阻和晶体管放大倍率等参数的测量。Turn the composite switch to the side of the power on and enable the laser pointer ammeter, the wireless power
由于激光指针7-2可以很长,刻度盘可以做的非常大,所以距离很远也能看清激光指针指示出的电流读数,这种无线供电激光指针万用表非常适合于电工电子学科的课堂教学演示。Since the laser pointer 7-2 can be very long and the dial can be made very large, the current reading indicated by the laser pointer can be clearly seen from a long distance. This wireless power laser pointer multimeter is very suitable for the classroom teaching of electrical and electronic subjects. demo.
具体实施例三:本实施例是无线供电激光指针式电磁系电流表。Specific embodiment 3: This embodiment is a wireless power supply laser pointer type electromagnetic ammeter.
图6是本实施例的结构示意图,图6附图标记包含:1是壳体,2是刻度盘,3是偏转机构,3-2-1是电磁系偏转机构的固定线圈,3-2-2是电磁系偏转机构的固定弧形铁片,3-2-3是电磁系偏转机构的活动弧形铁片,4是偏转机构支架,4-1和4-2分别是上轴承和下轴承,4-3是游丝,5是直流电源,6是弧形遮光条,7是激光模组,7-1是扩束镜,8是无线供电接收模块,9是无线供电发送模块,10是测量接线桩。Fig. 6 is a schematic diagram of the structure of this embodiment, and the reference numerals in Fig. 6 include: 1 is the casing, 2 is the dial, 3 is the deflection mechanism, 3-2-1 is the fixed coil of the electromagnetic system deflection mechanism, 3-2- 2 is the fixed arc iron piece of the electromagnetic system deflection mechanism, 3-2-3 is the movable arc iron piece of the electromagnetic system deflection mechanism, 4 is the deflection mechanism bracket, 4-1 and 4-2 are the upper bearing and the lower bearing respectively , 4-3 is the hairspring, 5 is the DC power supply, 6 is the arc shading strip, 7 is the laser module, 7-1 is the beam expander, 8 is the wireless power supply receiving module, 9 is the wireless power supply sending module, and 10 is the measurement Wiring post.
本实施例与实施例一的不同点在于偏转机构3的具体结构,实施例一的偏转机构3是由磁电系偏转机构的偏转线圈3-1-1、铁心柱3-1-2和永磁体3-1-3构成;本实施例的偏转机构3是由电磁系表偏转机构的电磁线圈3-2-1、固定弧形铁片3-2-2和活动弧形铁片3-2-3构成。The difference between this embodiment and the first embodiment lies in the specific structure of the
本实施例的激光模块无线供电及激光指针在刻度盘上形成读数指示等均与实施例一相同,无需在此赘述。The wireless power supply of the laser module and the reading indication formed by the laser pointer on the dial in this embodiment are the same as those in the first embodiment, and need not be repeated here.
具体实施例四:本实施例是无线供电激光指针式电动系电流表。Specific embodiment four: This embodiment is a wireless power supply laser pointer type electric current meter.
图7是本实施例的结构示意图,图7附图标记包含:1是壳体,2是刻度盘,3是偏转机构,3-3-1是电动系偏转机构的固定线圈,3-3-2是电动系偏转机构的活动偏转线圈,4是偏转机构支架,4-1和4-2分别是上轴承和下轴承,4-3和4-4分别是上游丝和下游丝,5是直流电源,6是弧形遮光条,7是激光模组,7-1是扩束镜,8是无线供电接收模块,9是无线供电发送模块,10是测量接线桩。Fig. 7 is a schematic view of the structure of the present embodiment, and the reference numerals in Fig. 7 include: 1 is the casing, 2 is the dial, 3 is the deflection mechanism, 3-3-1 is the fixed coil of the electric deflection mechanism, 3-3- 2 is the movable deflection coil of the electric deflection mechanism, 4 is the deflection mechanism bracket, 4-1 and 4-2 are the upper bearing and the lower bearing respectively, 4-3 and 4-4 are the upstream wire and the downstream wire respectively, and 5 is the DC Power supply, 6 is an arc shading strip, 7 is a laser module, 7-1 is a beam expander, 8 is a wireless power supply receiving module, 9 is a wireless power supply sending module, and 10 is a measurement wiring stake.
本实施例与实施例一的不同点在于偏转机构3的具体结构,实施例一的具体偏转机构是由电系表偏转机构的偏转线圈3-1-1、铁心柱3-1-2和永磁体3-1-3构成;本实施例的偏转机构3是由电动系表偏转机构的固定线圈3-3-1和活动偏转线圈3-3-2构成。The difference between this embodiment and the first embodiment lies in the specific structure of the
本实施例的激光模块无线供电及激光指针在刻度盘上形成读数指示等均与实施例一相同,无需在此赘述。The wireless power supply of the laser module and the reading indication formed by the laser pointer on the dial in this embodiment are the same as those in the first embodiment, and need not be repeated here.
以上为本发明的优选方案,显示和描述了本发明的基本原理、主要特征和本发明的优点。本领域的技术人员应该了解发明不受上述实施例的限制,上述实施例和说明书中描述的只是说明本发明的原理,在不脱离本发明精神和范围的前提下本发明还会有各种变化和改进,这些变化和改进都落入要求保护的本发明范围内,本发明要求保护范围由所附的权利要求书及其等同物界定。The above are the preferred solutions of the present invention, showing and describing the basic principles, main features and advantages of the present invention. Those skilled in the art should understand that the invention is not limited by the above-mentioned embodiments. The above-mentioned embodiments and descriptions only illustrate the principle of the present invention, and there will be various changes in the present invention without departing from the spirit and scope of the present invention. and improvements, such changes and improvements all fall within the scope of the claimed invention, which is defined by the appended claims and their equivalents.
| Application Number | Priority Date | Filing Date | Title |
|---|---|---|---|
| CN202011025131.7ACN112097819A (en) | 2020-09-25 | 2020-09-25 | A wireless power supply laser pointer instrument |
| Application Number | Priority Date | Filing Date | Title |
|---|---|---|---|
| CN202011025131.7ACN112097819A (en) | 2020-09-25 | 2020-09-25 | A wireless power supply laser pointer instrument |
| Publication Number | Publication Date |
|---|---|
| CN112097819Atrue CN112097819A (en) | 2020-12-18 |
| Application Number | Title | Priority Date | Filing Date |
|---|---|---|---|
| CN202011025131.7AWithdrawnCN112097819A (en) | 2020-09-25 | 2020-09-25 | A wireless power supply laser pointer instrument |
| Country | Link |
|---|---|
| CN (1) | CN112097819A (en) |
| Publication number | Priority date | Publication date | Assignee | Title |
|---|---|---|---|---|
| JP2004163261A (en)* | 2002-11-13 | 2004-06-10 | Calsonic Kansei Corp | Light-emitting pointer instrument |
| JP2005061924A (en)* | 2003-08-08 | 2005-03-10 | Denso Corp | Pointer instrument for car |
| CN102590572A (en)* | 2012-03-12 | 2012-07-18 | 韩亚兰 | Laser pointer type current meter structure |
| CN103675407A (en)* | 2013-12-03 | 2014-03-26 | 浙江华采科技有限公司 | Strut-type current collection device for power transmission lines |
| CN104236514A (en)* | 2014-08-29 | 2014-12-24 | 浙江荣胜工具有限公司 | Pointer type angle measuring device with wireless power lighting function |
| CN108051994A (en)* | 2017-12-27 | 2018-05-18 | 张雨飞 | Projection clock with dynamic suspension pointer |
| CN108761153A (en)* | 2018-06-26 | 2018-11-06 | 关佳琳 | It is a kind of to amplify the ammeter regarding number |
| CN208092444U (en)* | 2018-03-29 | 2018-11-13 | 烟台职业学院 | The rock-steady structure of the lightweight pointer of turret clock when microcontroller control pointer is walked |
| CN208765746U (en)* | 2018-09-14 | 2019-04-19 | 广州维思车用部件有限公司 | Laser pointer instrument |
| CN212513098U (en)* | 2020-09-25 | 2021-02-09 | 韩亚兰 | Wireless power supply laser pointer instrument |
| Publication number | Priority date | Publication date | Assignee | Title |
|---|---|---|---|---|
| JP2004163261A (en)* | 2002-11-13 | 2004-06-10 | Calsonic Kansei Corp | Light-emitting pointer instrument |
| JP2005061924A (en)* | 2003-08-08 | 2005-03-10 | Denso Corp | Pointer instrument for car |
| CN102590572A (en)* | 2012-03-12 | 2012-07-18 | 韩亚兰 | Laser pointer type current meter structure |
| CN103675407A (en)* | 2013-12-03 | 2014-03-26 | 浙江华采科技有限公司 | Strut-type current collection device for power transmission lines |
| CN104236514A (en)* | 2014-08-29 | 2014-12-24 | 浙江荣胜工具有限公司 | Pointer type angle measuring device with wireless power lighting function |
| CN108051994A (en)* | 2017-12-27 | 2018-05-18 | 张雨飞 | Projection clock with dynamic suspension pointer |
| CN208092444U (en)* | 2018-03-29 | 2018-11-13 | 烟台职业学院 | The rock-steady structure of the lightweight pointer of turret clock when microcontroller control pointer is walked |
| CN108761153A (en)* | 2018-06-26 | 2018-11-06 | 关佳琳 | It is a kind of to amplify the ammeter regarding number |
| CN208765746U (en)* | 2018-09-14 | 2019-04-19 | 广州维思车用部件有限公司 | Laser pointer instrument |
| CN212513098U (en)* | 2020-09-25 | 2021-02-09 | 韩亚兰 | Wireless power supply laser pointer instrument |
| Publication | Publication Date | Title |
|---|---|---|
| JP3345430B2 (en) | Portable electronic precision caliper | |
| CN210720533U (en) | High-precision TMR current sensor for direct current metering | |
| JP2018084537A (en) | Wind measuring device | |
| CN208921730U (en) | A kind of portable wind direction and wind velocity measuring instrument | |
| CN212513098U (en) | Wireless power supply laser pointer instrument | |
| CN204557898U (en) | Magnetostriction and Hall effect comprehensive test instrument | |
| CN106197254A (en) | Hall-type angular transducer based on radial magnetizing | |
| US2057845A (en) | Electrical measuring instrument | |
| CN112097819A (en) | A wireless power supply laser pointer instrument | |
| CN206489256U (en) | Hall effect digital switch test device | |
| CN112014625A (en) | Novel laser pointer instrument | |
| CN102590572A (en) | Laser pointer type current meter structure | |
| US2652533A (en) | Gaussmeter | |
| CN211477325U (en) | Liquid level detection device based on Hall effect | |
| CN108196115A (en) | A kind of zero point adjusting method and circuit of digital direct current pincerlike meter | |
| CN207302440U (en) | A kind of Ampere's right-handed screw rule demonstration instrument for teaching | |
| CN202793304U (en) | Construction engineering quantity measuring instrument | |
| CN205537596U (en) | Novel station type electron distancer entirely | |
| CN102798335A (en) | Method and device for measuring straight line distance and angle through construction engineering quantity measuring instrument | |
| CN220438373U (en) | Miniaturized wind direction monitor for miniature weather station | |
| CN222233174U (en) | Photoelectric effect exploring instrument | |
| CN211827819U (en) | A multifunctional electromagnetic display instrument | |
| CN220290341U (en) | Eddy current effect comprehensive demonstrator | |
| CN202486188U (en) | Laser pointer ammeter structure | |
| Durbin et al. | An anemometer for highly turbulent or recirculating flows |
| Date | Code | Title | Description |
|---|---|---|---|
| PB01 | Publication | ||
| PB01 | Publication | ||
| SE01 | Entry into force of request for substantive examination | ||
| SE01 | Entry into force of request for substantive examination | ||
| WW01 | Invention patent application withdrawn after publication | ||
| WW01 | Invention patent application withdrawn after publication | Application publication date:20201218 |