



技术领域technical field
本发明涉及连接器领域,尤其涉及一种反向标准型防插错水密连接器。The invention relates to the field of connectors, in particular to a reverse standard type anti-mis-insertion watertight connector.
背景技术Background technique
随着水下事业的蓬勃发展,对水下用连接器可靠度的要求越来越高。现有的水密连接器存在以下问题:With the vigorous development of underwater business, the requirements for the reliability of underwater connectors are getting higher and higher. Existing watertight connectors have the following problems:
1.在插座和插头结合密封处一旦进入潮气或者进水,水密连接器的绝缘性能会下降,影响绝缘效果,甚至导致绝缘失效。1. Once moisture or water enters the joint seal between the socket and the plug, the insulation performance of the watertight connector will decline, affecting the insulation effect, and even causing insulation failure.
2.当插座、插头上的孔与针的位置呈对称形式分布时,在安装的时候极易插错,一旦插错将导致在传递信号时造成短路现象,严重时使设备遭到破坏。2. When the positions of the holes and pins on the sockets and plugs are symmetrically distributed, it is very easy to insert them wrongly during installation.
发明内容SUMMARY OF THE INVENTION
本发明的目的是提供一种反向标准型防插错水密连接器,解决现有技术中有时出现的进水、进潮气现象而导致的密封失效、电绝缘性能下降以及插针与插孔呈对称形式分布时易插错等问题,满足在恶劣状况下进行湿插拔的需求,具有防插错功能,保证密封效果及电绝缘性能要求。The purpose of the present invention is to provide a reverse standard type anti-insertion watertight connector, which solves the sealing failure caused by the phenomenon of water ingress and moisture ingress sometimes in the prior art, and the electrical insulation performance is reduced. Symmetrical distribution is prone to mis-plugging and other problems, meeting the needs of wet plugging and unplugging in harsh conditions, and has the function of preventing mis-plugging, ensuring the sealing effect and electrical insulation performance requirements.
为了实现上述目的,本发明的技术方案是:In order to achieve the above object, the technical scheme of the present invention is:
一种反向标准型防插错水密连接器,包括插座和插头,所述插座的一端安装在水下作业设备上,所述插座的另一端与插头密封连接,其特征在于:A reverse standard type anti-mis-insertion watertight connector, comprising a socket and a plug, one end of the socket is installed on the underwater operation equipment, and the other end of the socket is sealed with the plug, and is characterized in that:
所述插座包括壳体、插座密封体和外螺纹锁紧螺帽,所述壳体安装在水下作业设备上,所述壳体的材料为316L,所述插座密封体与壳体密封连接,所述插座密封体上沿轴向设有导向销,所述壳体内设有定位支撑块,所述定位支撑块的一端与插座密封体连接,所述定位支撑块的一端与壳体之间浇注有环氧密封体,所述插针上的导线依次穿过定位支撑块和密封体,所述外螺纹锁紧螺帽套接在插座密封体的外侧,所述外螺纹锁紧螺帽与插座密封体连接;The socket includes a casing, a socket sealing body and an external thread locking nut, the casing is installed on the underwater operation equipment, the material of the casing is 316L, and the socket sealing body is sealed with the casing. The socket sealing body is provided with a guide pin along the axial direction, the housing is provided with a positioning support block, one end of the positioning support block is connected with the socket sealing body, and one end of the positioning support block is casted between the housing and the housing. There is an epoxy sealing body, the wires on the pins pass through the positioning support block and the sealing body in turn, the external thread locking nut is sleeved on the outside of the socket sealing body, and the external thread locking nut is connected to the socket. sealing body connection;
所述插头包括插孔、插头密封体、内螺纹锁紧螺帽和导向孔,所述插头密封体沿轴向设有导向孔和若干个内腔,所述内腔内设有插孔,所述插孔连接有电缆,所述内螺纹锁紧螺帽套接在插头密封体的外侧,所述内螺纹锁紧螺帽的一端与插头密封体连接,所述内螺纹锁紧螺帽的另一端与外螺纹锁紧螺帽通过螺纹配合连接;The plug includes a jack, a plug sealing body, an internal thread locking nut and a guide hole, the plug sealing body is provided with a guide hole and a plurality of inner cavities along the axial direction, and the inner cavity is provided with a socket, so The jack is connected with a cable, the inner thread locking nut is sleeved on the outside of the plug sealing body, one end of the inner thread locking nut is connected with the plug sealing body, and the other end of the inner thread locking nut is connected to the plug sealing body. One end is connected with the external thread locking nut through thread fit;
所述插座密封体上设有导向销和插针,所述插针与内腔的数量相同,所述插针的一端插入插座密封体,所述插针的一端与导线连接,所述插针的另一端外露于插座密封体外,所述插针的另一端与插孔的位置对应;The socket sealing body is provided with guide pins and pins, the pins are the same in number as the inner cavity, one end of the pins is inserted into the socket sealing body, one end of the pins is connected with the wires, and the pins are inserted into the socket sealing body. The other end of the pin is exposed outside the sealing body of the socket, and the other end of the pin corresponds to the position of the jack;
所述导向销的一端插入插座密封体内,所述导向销的另一端外露于插座密封体外,所述导向销的另一端与导向孔的位置对应。One end of the guide pin is inserted into the socket seal body, the other end of the guide pin is exposed outside the socket seal body, and the other end of the guide pin corresponds to the position of the guide hole.
进一步地,所述插座密封体沿轴向延伸设有橡胶棒,所述橡胶棒包裹在插针的外侧,所述橡胶棒与内腔的位置对应Further, the socket sealing body is provided with a rubber rod extending in the axial direction, the rubber rod is wrapped on the outer side of the pin, and the rubber rod corresponds to the position of the inner cavity
进一步地,所述内腔的内壁上沿轴向均布有若干个环形凸起,所述环形凸起沿径向向内侧凸出,所述橡胶棒位于内腔内,所述橡胶棒与环形凸起密封连接。Further, the inner wall of the inner cavity is evenly distributed with a number of annular protrusions in the axial direction, the annular protrusions protrude inward in the radial direction, the rubber rod is located in the inner cavity, and the rubber rod is connected to the annular protrusion. Raised seal connection.
进一步地,所述导向孔的数目为一个,所述导向孔沿插座密封体的轴向开设,所述导向销的数目为一个,所述导向销呈圆柱状,所述插头与插座通过导向销和导向孔之间的插接配合。Further, the number of the guide holes is one, the guide holes are opened along the axial direction of the socket sealing body, the number of the guide pins is one, the guide pins are cylindrical, and the plug and the socket pass through the guide pins. and the plug-in fit between the pilot hole.
进一步地,所述壳体的一端设有外螺纹,所述壳体与水下作业设备通过螺纹配合连接,所述壳体的另一端与插座密封体粘接成一体结构,所述壳体的内部沿轴向设有通孔,所述定位支撑块位于通孔的一端,所述定位支撑块的一端与插座密封体粘接成一体结构,所述壳体与作业设备的接触面设有环形凹槽,所述环形凹槽内设有O型密封圈。Further, one end of the casing is provided with an external thread, the casing is connected with the underwater operation equipment through threaded fitting, and the other end of the casing and the socket sealing body are bonded to form an integral structure, and the The interior is provided with a through hole along the axial direction, the positioning support block is located at one end of the through hole, and one end of the positioning support block is bonded to the socket sealing body to form an integral structure, and the contact surface between the shell and the operating equipment is provided with a ring shape. Grooves, the annular grooves are provided with O-rings.
进一步地,所述外螺纹锁紧螺帽的一端通过卡簧与插座密封体连接,所述外螺纹锁紧螺帽的另一端设有外螺纹。Further, one end of the external thread locking nut is connected with the socket sealing body through a retaining spring, and the other end of the external thread locking nut is provided with an external thread.
进一步地,所述插针与插头密封体粘接的一端设有盲孔,所述电缆内的导线与盲孔的内壁焊接,所述插针的另一端插入插孔。Further, a blind hole is provided at one end of the pin and the plug sealing body, the wire in the cable is welded to the inner wall of the blind hole, and the other end of the pin is inserted into the jack.
本发明的优点在于:The advantages of the present invention are:
可在潮湿带水环境下进行插拔,能在恶劣海况下满足水下密封作用,所采用的316L和橡胶体能耐海水腐蚀,在浅海、深海均能应用,适合在各种水下作业用的设备上传递电信号,水下密封可靠性高;It can be plugged and unplugged in a humid and water environment, and can meet the underwater sealing function in harsh sea conditions. The electrical signal is transmitted on the equipment, and the underwater sealing reliability is high;
插座密封体上的导向销与插头密封体内的导向孔相结合,起到了防止安装过程中出现插错的现象;The guide pin on the socket sealing body is combined with the guiding hole in the plug sealing body to prevent wrong insertion during installation;
插头密封体内的插孔前端每个内腔中的环形小凸起与插座密封体上的插针后端上的每个橡胶棒做到了独立相结合的密封效果,即使进入潮气或水滴,也不影响绝缘性能,达到了整体轴向密封的效果。The small annular protrusions in each inner cavity at the front end of the jack in the plug sealing body and each rubber rod on the rear end of the pin on the socket sealing body achieve an independent combined sealing effect, even if moisture or water droplets enter, it will not be sealed. It affects the insulation performance and achieves the effect of overall axial sealing.
附图说明Description of drawings
图1为本发明插座的内部结构示意图;1 is a schematic diagram of the internal structure of the socket of the present invention;
图2为图1的左视图;Fig. 2 is the left side view of Fig. 1;
图3为本发明插头的内部结构示意图;3 is a schematic diagram of the internal structure of the plug of the present invention;
图4为图3的左视图。FIG. 4 is a left side view of FIG. 3 .
附图标记:Reference number:
1导向销,2橡胶棒,3插座密封体,4插针,5导线,6外螺纹锁紧螺帽,1 guide pin, 2 rubber rod, 3 socket seal, 4 pins, 5 wires, 6 male cage nuts,
7卡簧,8定位支撑块,9 O型密封圈,10壳体,11环氧密封体,7 circlips, 8 positioning support blocks, 9 O-rings, 10 shells, 11 epoxy seals,
12内腔,13插孔,14环形凸起,15插头密封体,16内螺纹锁紧螺帽,12 inner cavity, 13 socket, 14 annular protrusion, 15 plug sealing body, 16 female thread locking nut,
17电缆,18导向孔。17 cables, 18 pilot holes.
具体实施方式Detailed ways
下面将结合附图对本发明的技术方案进行清楚、完整地描述,显然,所描述的实施例是本发明一部分实施例,而不是全部的实施例。基于本发明中的实施例,本领域普通技术人员在没有做出创造性劳动前提下所获得的所有其他实施例,都属于本发明保护的范围。The technical solutions of the present invention will be clearly and completely described below with reference to the accompanying drawings. Obviously, the described embodiments are a part of the embodiments of the present invention, but not all of the embodiments. Based on the embodiments of the present invention, all other embodiments obtained by those of ordinary skill in the art without creative efforts shall fall within the protection scope of the present invention.
本发明公开了一种反向标准型防插错水密连接器,水密连接器包括插座和插头,插座的一端安装在水下设备的密封舱上,插头插入插座的另一端,起到轴向密封的效果,插座与插头通过锁紧螺帽的螺纹连接防止松脱。The invention discloses a reverse standard type anti-insertion watertight connector. The watertight connector includes a socket and a plug. One end of the socket is installed on a sealed cabin of an underwater equipment, and the plug is inserted into the other end of the socket to serve as an axial seal. As a result, the socket and the plug are prevented from loosening by the threaded connection of the lock nut.
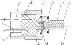
如图1、图2所示,所述插座包括导向销1、壳体10、插座密封体3、插针4、外螺纹锁紧螺帽6、卡簧7、定位支撑块8和环氧密封体11,所述壳体10的材料为316L,所述壳体10的一端设有外螺纹,所述壳体10一端的外螺纹与水下作业设备密封舱的内螺纹配合,所述壳体10与水下作业设备密封舱的接触面设有环形凹槽,所述环形凹槽内设有O型密封圈9,所述插座与密封舱结合后起到径向密封的作用。As shown in Figures 1 and 2, the socket includes a guide pin 1, a
所述壳体10的另一端与插座密封体3的一端粘接成一体结构,所述壳体10内沿轴向设有通孔,所述定位支撑块8镶在通孔的一端,所述定位支撑块8与插座密封体3的一端粘接为一体结构。The other end of the
所述插针4靠近定位支撑块8的一端设有盲孔,所述插针4的盲孔内壁焊接有导线5,所述定位支撑块8上设有四个通孔,所述通孔用于安装导线5,所述插针4与导线5焊接后,所述导线5穿过定位支撑块8上的通孔,所述定位支撑块8与壳体10之间浇注环氧密封体11。One end of the
所述外螺纹锁紧螺帽6的材料为ABS(工程塑料),所述外螺纹锁紧螺帽6套接于插座密封体3的外侧,所述外螺纹锁紧螺帽6的一端通过卡簧7与插座密封体3连接,所述外螺纹锁紧螺帽6的另一端设有外螺纹。The material of the external
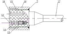
如图3、图4所示,所述插头包括插孔13、插头密封体15、内螺纹锁紧螺帽16及导向孔18,所述插头密封体15的一端设有电缆17,所述插头密封体15的另一端沿轴向设有多个内腔12,本发明优选为三芯水密连接器,具有三个内腔12和一个导向孔18,所述内腔12均为盲孔结构,每个内腔12均安装插孔13,所述插孔13的材料为铍青铜,所述插孔13的内表面镀金,所述插孔13的外表面与内腔12的内壁粘接,所述插孔13的外表面硫化后与内腔12成为一体,所述插孔13与电缆17内的导线焊接。As shown in FIG. 3 and FIG. 4 , the plug includes a
所述插孔13设置于插头密封体15内,每个插孔13的前端设有内腔12,所述内腔12的内壁上沿轴向均匀分布设有多个环形凸起14,所述环形凸起14沿径向向内侧凸出,所述导向孔18沿插头密封体15的轴向设置。The
所述插头密封体15的另一端沿轴向向外延伸形成与内腔12数量相等的橡胶棒2,所述橡胶棒2与内腔12的位置对应,所述插座密封体3的另一端设有多个插针4和一个导向销1,本发明优选为三个插针4,所述插针4的材料为海军铜,所述插针4的表面镀金,所述插针4的一端与插座密封体3粘接,所述插针4的一端设有盲孔,所述导线5与盲孔的内壁焊接,所述插针4的另一端从橡胶棒2穿出外露于插座密封体3外,所述插针4的另一端与插孔13的位置对应。The other end of the
所述导向销1为圆柱体结构,导向销1的外表面光滑,所述导向销1的一端与插座密封体3粘接,所述导向销1的另一端与插头密封体15上导向孔18的位置对应,所述导向销1的另一端在插头与插座插接时插入导向孔18中。The guide pin 1 has a cylindrical structure, and the outer surface of the guide pin 1 is smooth. The other end of the guide pin 1 is inserted into the
所述内螺纹锁紧螺帽16的材料为ABS(工程塑料),所述内螺纹锁紧螺帽16的一端通过卡簧7与插头密封体15连接,所述内螺纹锁紧螺帽16的另一端设有内螺纹,所述内螺纹锁紧螺帽16与外螺纹锁紧螺帽6通过内外螺纹配合连接,插头通过内螺纹锁紧螺帽16与插座的外螺纹锁紧螺帽6结合,防止松脱,所述插座密封体3和插头密封体15优选采用氯丁橡胶。The material of the inner
本发明在使用时,首先在陆地上将插座安装在水下作业的密封舱相对应的位置,其中壳体10上的O型密封圈9与密封舱紧密接触,起到径向密封的作用,将插座上的导向销1插入插头中的导向孔18,防止插错,同时将插头密封体15上的插孔13插到插座密封体3的插针4上,橡胶棒2进入内腔12中,使橡胶棒2与环形凸起14密封抵接,所述插座密封体3另一端的端面与插头密封体15另一端的端面密封抵接,然后拧紧外螺纹锁紧螺帽6及内螺纹锁紧螺帽16,橡胶棒2进入内腔12与环形凸起14密封抵接,起到独立的轴向密封,插头上的内螺纹锁紧螺帽16与插座上的外螺纹锁紧螺帽6连接,防止发生松脱。When the present invention is in use, firstly, the socket is installed on the land at the corresponding position of the sealed cabin for underwater operation, wherein the O-
最后应说明的是:以上各实施例仅用以说明本发明的技术方案,而非对其限制;尽管参照前述各实施例对本发明进行了详细的说明,本领域的普通技术人员应当理解:其依然可以对前述各实施例所记载的技术方案进行修改,或者对其中部分或者全部技术特征进行等同替换;而这些修改或者替换,并不使相应技术方案的本质脱离本发明各实施例技术方案的范围。Finally, it should be noted that the above embodiments are only used to illustrate the technical solutions of the present invention, but not to limit them; although the present invention has been described in detail with reference to the foregoing embodiments, those of ordinary skill in the art should understand that: The technical solutions described in the foregoing embodiments can still be modified, or some or all of the technical features thereof can be equivalently replaced; and these modifications or replacements do not make the essence of the corresponding technical solutions deviate from the technical solutions of the embodiments of the present invention. scope.
| Application Number | Priority Date | Filing Date | Title |
|---|---|---|---|
| CN202010377882.9ACN111509477A (en) | 2020-05-07 | 2020-05-07 | Reverse standard type anti-misplug watertight connector |
| Application Number | Priority Date | Filing Date | Title |
|---|---|---|---|
| CN202010377882.9ACN111509477A (en) | 2020-05-07 | 2020-05-07 | Reverse standard type anti-misplug watertight connector |
| Publication Number | Publication Date |
|---|---|
| CN111509477Atrue CN111509477A (en) | 2020-08-07 |
| Application Number | Title | Priority Date | Filing Date |
|---|---|---|---|
| CN202010377882.9AWithdrawnCN111509477A (en) | 2020-05-07 | 2020-05-07 | Reverse standard type anti-misplug watertight connector |
| Country | Link |
|---|---|
| CN (1) | CN111509477A (en) |
| Publication number | Priority date | Publication date | Assignee | Title |
|---|---|---|---|---|
| CN111509478A (en)* | 2020-05-07 | 2020-08-07 | 上海蓝梭电子科技有限公司 | Standard anti-misplug watertight connector |
| SE2051564A1 (en)* | 2020-12-28 | 2022-06-29 | Ride Awake Ab | Power systems for watercraft |
| USD995678S1 (en) | 2020-01-03 | 2023-08-15 | Ride Awake Ab | Electronically propelled surfboard |
| US11780538B2 (en) | 2017-12-27 | 2023-10-10 | Ride Awake Ab | Electric motorised watercraft and driveline system |
| Publication number | Priority date | Publication date | Assignee | Title |
|---|---|---|---|---|
| CN103779720A (en)* | 2012-10-19 | 2014-05-07 | 中国科学院沈阳自动化研究所 | Watertight connector |
| CN103855515A (en)* | 2012-12-07 | 2014-06-11 | 中国科学院沈阳自动化研究所 | Misplug-preventing watertight connector |
| CN206619737U (en)* | 2017-02-21 | 2017-11-07 | 上海蓝梭电子科技有限公司 | A kind of precharge pressure balanced type underwater pluggable electric connector |
| CN108270133A (en)* | 2016-12-29 | 2018-07-10 | 中国科学院沈阳自动化研究所 | One kind divides valve watertight connector |
| CN108598757A (en)* | 2018-04-19 | 2018-09-28 | 郑州航天电子技术有限公司 | A kind of multicore crunch seal anti-high voltage connector |
| CN212934960U (en)* | 2020-05-07 | 2021-04-09 | 上海蓝梭电子科技有限公司 | Reverse standard type anti-misplug watertight connector |
| Publication number | Priority date | Publication date | Assignee | Title |
|---|---|---|---|---|
| CN103779720A (en)* | 2012-10-19 | 2014-05-07 | 中国科学院沈阳自动化研究所 | Watertight connector |
| CN103855515A (en)* | 2012-12-07 | 2014-06-11 | 中国科学院沈阳自动化研究所 | Misplug-preventing watertight connector |
| CN108270133A (en)* | 2016-12-29 | 2018-07-10 | 中国科学院沈阳自动化研究所 | One kind divides valve watertight connector |
| CN206619737U (en)* | 2017-02-21 | 2017-11-07 | 上海蓝梭电子科技有限公司 | A kind of precharge pressure balanced type underwater pluggable electric connector |
| CN108598757A (en)* | 2018-04-19 | 2018-09-28 | 郑州航天电子技术有限公司 | A kind of multicore crunch seal anti-high voltage connector |
| CN212934960U (en)* | 2020-05-07 | 2021-04-09 | 上海蓝梭电子科技有限公司 | Reverse standard type anti-misplug watertight connector |
| Publication number | Priority date | Publication date | Assignee | Title |
|---|---|---|---|---|
| US11780538B2 (en) | 2017-12-27 | 2023-10-10 | Ride Awake Ab | Electric motorised watercraft and driveline system |
| USD995678S1 (en) | 2020-01-03 | 2023-08-15 | Ride Awake Ab | Electronically propelled surfboard |
| CN111509478A (en)* | 2020-05-07 | 2020-08-07 | 上海蓝梭电子科技有限公司 | Standard anti-misplug watertight connector |
| SE2051564A1 (en)* | 2020-12-28 | 2022-06-29 | Ride Awake Ab | Power systems for watercraft |
| WO2022144278A2 (en) | 2020-12-28 | 2022-07-07 | Ride Awake Ab | Power systems for watercraft |
| SE547089C2 (en)* | 2020-12-28 | 2025-04-22 | Ride Awake ApS | An electrical connector system for a modular watercraft |
| Publication | Publication Date | Title |
|---|---|---|
| CN111509477A (en) | Reverse standard type anti-misplug watertight connector | |
| CN103855515B (en) | Misplug-preventing watertight connector | |
| CN103779720B (en) | A watertight connector | |
| US3719918A (en) | Electrical connector | |
| CN111509478A (en) | Standard anti-misplug watertight connector | |
| US3657681A (en) | Self-purging multi-contact electrical connector | |
| CN108270133A (en) | One kind divides valve watertight connector | |
| CN206293701U (en) | Small watertight connector | |
| CN109038126B (en) | High-current water-tight plug-in device | |
| CN101615748A (en) | Straight-plug watertight connector assembly and its plug and socket | |
| US3626356A (en) | Underwater connector | |
| CN115693266A (en) | Underwater plugging electric connector with double redundant sealing structures | |
| CN105048175B (en) | A kind of connector assembly | |
| WO2024153258A1 (en) | Electrical connector sealing structure, electrical connector, and electrical connector assembly | |
| CN206293738U (en) | Divide valve watertight connector | |
| CN208820133U (en) | An all-rubber watertight connector | |
| CN212934960U (en) | Reverse standard type anti-misplug watertight connector | |
| CN211180291U (en) | Split type watertight optical connector | |
| CN108258506A (en) | A kind of small watertight connector | |
| CN207938863U (en) | Micro Rectangular High Voltage Electrical Socket Connector | |
| CN108075330B (en) | Underwater wet-type electrical universal connector | |
| CN216671983U (en) | Connector Housing Assemblies, Connectors and Connector Assemblies | |
| CN214754388U (en) | Deep sea water density wet plugging connector | |
| CN108155513A (en) | A kind of underwater pluggable electric connector of ROV operations | |
| CN208062422U (en) | A kind of miniature watertight connector |
| Date | Code | Title | Description |
|---|---|---|---|
| PB01 | Publication | ||
| PB01 | Publication | ||
| SE01 | Entry into force of request for substantive examination | ||
| SE01 | Entry into force of request for substantive examination | ||
| WW01 | Invention patent application withdrawn after publication | Application publication date:20200807 | |
| WW01 | Invention patent application withdrawn after publication |