Movatterモバイル変換


[0]ホーム

URL:


CN102372138A - Heat-preservation cabinet and refrigerator wagon having the same - Google Patents

Heat-preservation cabinet and refrigerator wagon having the same
Download PDF

Info

Publication number
CN102372138A
CN102372138ACN2010102541920ACN201010254192ACN102372138ACN 102372138 ACN102372138 ACN 102372138ACN 2010102541920 ACN2010102541920 ACN 2010102541920ACN 201010254192 ACN201010254192 ACN 201010254192ACN 102372138 ACN102372138 ACN 102372138A
Authority
CN
China
Prior art keywords
snapping portion
snapping
insulation
narrow boards
tie
Prior art date
Legal status (The legal status is an assumption and is not a legal conclusion. Google has not performed a legal analysis and makes no representation as to the accuracy of the status listed.)
Pending
Application number
CN2010102541920A
Other languages
Chinese (zh)
Inventor
宋卫国
戴功银
吴学奇
宋祖兴
Current Assignee (The listed assignees may be inaccurate. Google has not performed a legal analysis and makes no representation or warranty as to the accuracy of the list.)
China International Marine Containers Group Co Ltd
Shanghai CIMC Reefer Containers Co Ltd
Original Assignee
China International Marine Containers Group Co Ltd
Shanghai CIMC Reefer Containers Co Ltd
Priority date (The priority date is an assumption and is not a legal conclusion. Google has not performed a legal analysis and makes no representation as to the accuracy of the date listed.)
Filing date
Publication date
Application filed by China International Marine Containers Group Co Ltd, Shanghai CIMC Reefer Containers Co LtdfiledCriticalChina International Marine Containers Group Co Ltd
Priority to CN2010102541920ApriorityCriticalpatent/CN102372138A/en
Publication of CN102372138ApublicationCriticalpatent/CN102372138A/en
Pendinglegal-statusCriticalCurrent

Links

Images

Landscapes

Abstract

Translated fromChinese

本发明公开了一种保温箱以及具有该保温箱的冷藏保温车,该保温箱包括多个连接板、多个连接梁和后端总成,该多个连接板包括底板、侧板、前板和顶板,该多个连接板分别与该多个连接梁中相应的连接梁连接,以将该多个连接板固定,该多个连接板中的至少一个连接板与该多个连接梁中的至少一个连接梁之间扣接连接。本发明的保温箱的各个部件之间的连接不需要采用额外的零件,连接部为迷宫式连接,因此避免了漏水点的产生,并且长期使用仍然连接牢靠,且拆卸方便。此外,本发明的保温箱组装不需要借助复杂的工具,安装简单、快速、可靠,外观美观。

Figure 201010254192

The invention discloses an insulated box and a refrigerated and insulated vehicle with the insulated box. The insulated box includes a plurality of connecting plates, a plurality of connecting beams and a rear end assembly, and the plurality of connecting plates include a bottom plate, a side plate and a front plate and the top plate, the plurality of connecting plates are respectively connected to the corresponding connecting beams in the plurality of connecting beams to fix the plurality of connecting plates, at least one of the connecting plates is connected to the connecting beams in the plurality of connecting beams Snap connection between at least one connecting beam. The connection between the various parts of the incubator of the present invention does not need to use additional parts, and the connection part is a labyrinth connection, so the generation of water leakage points is avoided, and the connection is still firm after long-term use, and it is easy to disassemble. In addition, the incubator of the present invention does not need complex tools for assembly, and the installation is simple, fast, reliable and beautiful in appearance.

Figure 201010254192

Description

A kind of insulation can and refrigerated truck with this insulation can
Technical field
The present invention relates to transfer cask, the refrigerated truck that relates in particular to a kind of insulation can and have this insulation can.
Background technology
Along with the development of international trade and home-trade, transfer cask plays more and more important effect therein.Under the temperature to goods has certain requirements situation, need to adopt insulation can to load.This insulation can is such as being vehicle-mounted insulation can or thermal container.This insulation can be applied to refrigerated truck.
Conventional insulation can comprises base plate, header board, two side plates, top board and rear end assemblies, uses modes such as riveted joint, bolted connection, glue bonding or welding to assemble connection between its latus inframedium, header board, top board and the base plate usually.Fig. 1 shows the connection between thetop board 110 andside plate 120 in the insulation can of prior art.Top board 110 comprises thefoaming layer 113 betweeninside ceiling panel 111,roof sheet 112 and insideceiling panel 111 and theroof sheet 112, andside plate 120 comprises thefoaming layer 123 betweeninterior plate 121,outer panel 122 andinterior plate 121 and the outer panel 122.Connect throughdrift angle envelope 130 betweeninside ceiling panel 111 and theinterior plate 121, the both wings ofdrift angle envelope 130 are riveted on respectively on insideceiling panel 111 and the interior plate 121.Connect through tie-beam 140 betweentop board 110 and the side plate 120.In the horizontal component of tie-beam 140,outer panel 122 passes through welded lap in the vertical part of tie-beam 140 toroof sheet 112 through welded lap.Can also there be rivet or screw that it is connected onside plate 120 or thetop board 110 on the tie-beam 140.
Fig. 2 shows the connection between another insulation can latusinframedium 210 of the prior art and the header board 220.Connect through tie-beam 230 betweenside plate 210 and the header board 220.Itslatus inframedium 210 is connected on the tie-beam 230 through rivet 240.In addition, though not shown, the connection betweenheader board 220 and the tie-beam 230 also is to realize through rivet.
Combine Fig. 1 and Fig. 2 only to describe several kinds of concrete structures of insulation can above, but in the insulation can that adopts other structures, be to adopt above-mentioned welding, riveted joint or screw to connect equally in the prior art.In a kind of existing technology,, also can adopt glue that upper beam is connected with top board or side plate for reason attractive in appearance.
When adopting riveted joint to be connected, need extra part with screw, and since poorly sealed close, be easy to generate leakage point in the junction.And adopt this connection, influenced the outward appearance of insulation can.Beautified outward appearance though adopt glue to connect, after long-time the use, the glue easy ageing causes connection not firm.When adopting Type of Welding, assemble up trouble, and not quick detachable.In addition, above-mentioned connection mode assembles up and need can not realize quick assembling by more instrument, has influenced efficient.
Though top combination insulation can is described, in the casing that adopts single-skin panel, also be to adopt above-mentioned method to carry out the connection between plate and the plate, therefore, top problem is arranged equally.
Further; Outside plate for above-mentioned top board, side plate etc.; Usually adopt metal sheets such as a plurality of steel plates or aluminium sheet to be formed by connecting, the connection between these plates also adopts welding, rivet, screw or glue to connect usually, therefore has the existence of above problem equally.
Therefore, need provide a kind of insulation can to address the above problem.
Summary of the invention
In order to address the above problem; The invention discloses a kind of insulation can; Comprise a plurality of connecting panels, a plurality of tie-beam and rear end assembly, these a plurality of connecting panels comprise base plate, side plate, header board and top board, these a plurality of connecting panels respectively with these a plurality of tie-beams in corresponding tie-beam be connected; Should fixing by a plurality of connecting panels, snapping is connected between at least one tie-beam at least one connecting panel in these a plurality of connecting panels and these a plurality of tie-beams.
Further, this at least one connecting panel is provided with connecting panel snapping portion, and this at least one tie-beam is provided with tie-beam snapping portion, and this connecting panel snapping portion is connected with this tie-beam snapping portion snapping.Preferably, this connecting panel snapping portion is " U " font with this tie-beam snapping portion.
Preferably, this at least one connecting panel is provided with protuberance, this protuberance and this tie-beam snapping portion against, be connected with the snapping of this tie-beam snapping portion with fixing this connecting panel snapping portion.Alternately, this at least one tie-beam is provided with protuberance, this protuberance and this connecting panel snapping portion against, be connected with the snapping of this tie-beam snapping portion with fixing this connecting panel snapping portion.
Preferably, this connecting panel snapping portion is connected through the fastener snapping with this tie-beam snapping portion.Further; This fastener comprises the first fastener snapping portion and the second fastener snapping portion; This first fastener snapping portion and this second fastener snapping portion are " U " font; This first fastener snapping portion is connected with this connecting panel snapping portion snapping, and this second fastener snapping portion is connected with this tie-beam snapping portion snapping.
Preferably, one in this connecting panel snapping portion and this tie-beam snapping portion is " U " font, and another in this connecting panel snapping portion and this tie-beam snapping portion is " one " font.
Preferably, this at least one connecting panel comprises inner panel and outside plate, and this connecting panel snapping portion is arranged on this outside plate and/or this inner panel.
Further, these a plurality of connecting panels comprise inner panel and outside plate.This inner panel and/or this outside plate are metal sheet.Preferably, this inner panel and/or this outside plate comprise a plurality of narrow boards.
Preferably, in these a plurality of narrow boards between at least one group of first adjacent narrow boards and second narrow boards snapping connect.Further, this first narrow boards is provided with the first narrow boards snapping portion, and this second narrow boards is provided with the second narrow boards snapping portion, and this first narrow boards snapping portion is connected with this second narrow boards snapping portion snapping.Further, this first narrow boards snapping portion is " U " font with this second narrow boards snapping portion.Preferably, this first narrow boards snapping portion is provided with protuberance, this protuberance and this second narrow boards snapping portion each other against, be connected with the snapping of fixing this first narrow boards snapping portion and this second narrow boards snapping portion.Further again, this first narrow boards snapping portion is connected through the fastener snapping with this second narrow boards snapping portion.Further; This fastener is provided with the first fastener snapping portion and the second fastener snapping portion; This first fastener snapping portion and this second fastener snapping portion are " U " font; This first narrow boards snapping portion is connected with this first fastener snapping portion snapping, and this second narrow boards snapping portion is connected with this second fastener snapping portion snapping.Preferably, this first narrow boards snapping portion and this second narrow boards snapping portion after snapping is connected each other against.
Further, this inner panel and/or this outside plate are the glass fiber reinforced plastic plate.
Preferably, the snapping junction between this at least one connecting panel and this at least one tie-beam is provided with aquaseal.
Preferably, snapping is connected between these a plurality of connecting panels and corresponding this tie-beam.
The present invention further discloses a kind of refrigerated truck, this refrigerated truck comprises above-mentioned insulation can.
Connection between each parts of insulation can of the present invention, and the narrow boards and the connection between the narrow boards that constitute outside plate and/or inner panel need not adopt extra part, connecting portion is that labyrinth type connects, and has therefore avoided the generation of leakage point.And long-term use still connects firm and convenient disassembly.In addition, insulation can assembling of the present invention need be by the instrument of complicacy, and installation is simple, quick, reliable, appearance looks elegant.
In the summary of the invention part, introduced the notion of a series of reduced forms, this will further explain in specific embodiment part.Content part of the present invention does not also mean that key feature and the essential features that will attempt to limit technical scheme required for protection, does not more mean that the protection domain of attempting to confirm technical scheme required for protection.
Below in conjunction with accompanying drawing, specify advantage of the present invention and characteristic.
Description of drawings
Fig. 1 shows the top board of insulation can in the prior art and the bonded assembly scheme drawing between the side plate;
Fig. 2 shows the top board of another insulation can in the prior art and the bonded assembly scheme drawing between the side plate;
Fig. 3 A is the side plate and the header board bonded assembly scheme drawing of insulation can according to an embodiment of the invention, is state before connecting this moment;
Fig. 3 B is the side plate and the header board bonded assembly scheme drawing of insulation can according to an embodiment of the invention, and this moment is for connecting the back state;
Fig. 3 C and 3D are respectively the enlarged diagram of C partial sum D part among Fig. 3 B;
Fig. 4 A is the side plate and the header board bonded assembly scheme drawing of insulation can according to another embodiment of the present invention, is state before connecting this moment;
Fig. 4 B is the side plate and the header board bonded assembly scheme drawing of insulation can according to another embodiment of the present invention, and this moment is for connecting the back state;
Fig. 4 C and 4D are respectively the enlarged diagram of C partial sum D part among Fig. 4 B;
Fig. 5 A is the side plate of insulation can according to an embodiment of the invention and the bonded assembly scheme drawing between top board, side plate and the base plate, is state before connecting this moment;
Fig. 5 B is the side plate of insulation can according to an embodiment of the invention and the bonded assembly scheme drawing between top board, side plate and the base plate, and this moment is for connecting the back state;
Fig. 6 A is the side plate of insulation can according to another embodiment of the present invention and the bonded assembly scheme drawing between top board, side plate and the base plate, is state before connecting this moment;
Fig. 6 B is the side plate of insulation can according to another embodiment of the present invention and the connection scheme drawing between top board, side plate and the base plate, and this moment is for connecting the back state;
Fig. 7 A-7C is the bonded assembly scheme drawing of the outside plate of the connecting panel of insulation can according to an embodiment of the invention.
The specific embodiment
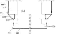
Embodiments of the invention disclose a kind of insulation can; Comprise a plurality of connecting panels, a plurality of tie-beam and rear end assembly; These a plurality of connecting panels comprise base plate, side plate, header board and top board; These a plurality of connecting panels respectively with these a plurality of tie-beams in corresponding tie-beam be connected, should fixing by a plurality of connecting panels, snapping is connected between at least one tie-beam at least one connecting panel in these a plurality of connecting panels and these a plurality of tie-beams.In an embodiment of the present invention, a plurality of connecting panels are through corresponding tie-beam bonded assembly in a plurality of tie-beams.Such as connecting through the upper beam in a plurality of tie-beams between side plate and the top board, connect or the like through the vertical beam in a plurality of tie-beams between side plate and the header board.According to embodiments of the invention, connecting panel is provided with connecting panel snapping portion, and tie-beam is provided with tie-beam snapping portion, is connected with tie-beam snapping portion snapping through connecting panel snapping portion and realizes that snapping is connected between connecting panel and the tie-beam.To combine the concrete structure of insulation can that embodiments of the invention are done detailed description in the following description.In addition, though be that snapping connects between connecting panel and the tie-beam among the following embodiment, this only is an example of the present invention.Connection between connecting panel and the tie-beam can have only one or more employing snappings to connect.Between certain a plurality of connecting panel and the corresponding said tie-beam can all be that snapping is connected.With reference to figure 3A, be the side plate and the header board bonded assembly scheme drawing of insulation can according to an embodiment of the invention, be state before connecting this moment.Arrow among Fig. 3 A shows installation direction.Simultaneously with reference to figure 3B, be side plate and the header board bonded assembly scheme drawing of insulation can according to an embodiment of the invention, be state after the connection this moment.Fig. 3 A and 3B are the birds-eye vieies of looking down from the top of insulation can.Combine leftside side plate 310 to elaborate here.In the description that combines Fig. 3 A and 3B, connecting panel is side plate and header board, and tie-beam is a vertical beam.
Side plate 310 at first is connected withvertical beam 330, and thenheader board 320 is connected withvertical beam 330, accomplishes the connection betweenside plate 310 and theheader board 320 with this.Whereinvertical beam 330 is arranged on an end of side plate 310.Side plate 310 comprises outer panel 311 and interior plate, and wherein outer panel 311 can be made up of a plurality of narrow boards as described in following combination Fig. 7 A-7C with interior plate.Outer panel 311 is provided with sideplate snapping portion 312, and this sideplate snapping portion 312 promptly is an example of connecting panel snapping above-mentioned portion.Vertical beam 330 is provided with the first verticalbeam snapping portion 331 and the second verticalbeam snapping portion 332, and it all is the example of tie-beam snapping portion.The sideplate snapping portion 312 and the first verticalbeam snapping portion 331 link together through the snapping mode and accomplish the connection betweenside plate 310 and the vertical beam 330.Header board 320 comprisesouter header board 321 and interior header board, and an end ofheader board 321 is provided with headerboard snapping portion 322 outside.The headerboard snapping portion 322 and the second verticalbeam snapping portion 332 link together through the snapping mode and accomplish the connection betweenheader board 320 and thevertical beam 330.
Connection betweenside plate 310 and thevertical beam 330 is in further detail with reference to figure 3C, and it is the enlarged diagram of C part among Fig. 3 B.The sideplate snapping portion 312 of the outer panel 311 on theside plate 310 is " U " font, and the first verticalbeam snapping portion 331 ofvertical beam 330 is " U " font equally.And " U " font opening of the sideplate snapping portion 312 and the first verticalbeam snapping portion 331 is towards relative direction, and the sideplate snapping portion 312 and the first verticalbeam snapping portion 331 link together through mutual fastening like this.
Preferable, in order further to guarantee the relative fixed of the sideplate snapping portion 312 and the first verticalbeam snapping portion 331, on outer panel 311 orvertical beam 330, protuberance can also be set.This sentences this protuberance and is arranged on thevertical beam 330 and describes for example.First protuberance 333 on thevertical beam 330 is set to outside side plate 311 directions protrusion.Like this after sideplate snapping portion 312 and the first vertical beam snapping portion, 331 mutual fastenings; Make win protuberance 333 and sideplate snapping portion 312 each other against; Sideplate snapping portion 312 can be fixed between this first protuberance 333 and the first verticalbeam snapping portion 331; Guarantee the relative fixed betweenside plate 310 and thevertical beam 330 with this, promptly fixed side plate snapping portion and be connected with the snapping of the first vertical beam snapping portion.
As another kind of alternative, the connection between the sideplate snapping portion 312 and the first verticalbeam snapping portion 331 also can no longer specify at this through carrying out below in conjunction with the fastener of describing among Fig. 7 A and the 7B.
Connection betweenheader board 320 and thevertical beam 330 is in further detail with reference to figure 3D, and it is the enlarged diagram of D part among Fig. 3 B.The headerboard snapping portion 322 of theouter header board 321 on theheader board 321 is " U " font, and the second verticalbeam snapping portion 332 ofvertical beam 330 is " U " font equally.And " U " font opening of the headerboard snapping portion 322 and the second verticalbeam snapping portion 332 is towards relative direction, and the headerboard snapping portion 322 and the second verticalbeam snapping portion 332 link together through mutual fastening like this.
Preferable, in order further to guarantee the relative fixed betweenheader board 320 and thevertical beam 330, onheader board 320 orvertical beam 330, protuberance can be set.This sentences this protuberance and is arranged on thevertical beam 330 and describes for example.Second protuberance 334 on thevertical beam 330 is set tooutside header board 321 directions protrusion.Like this after headerboard snapping portion 322 and the second vertical beam snapping portion, 332 mutual fastenings; Makesecond protuberance 334 and headerboard snapping portion 322 each other against; Headerboard snapping portion 322 can be fixed between thissecond protuberance 334 and the second verticalbeam snapping portion 332; Guarantee the relative fixed betweenheader board 320 and thevertical beam 330 with this, promptly fixed header board snapping portion and be connected with the snapping of the second vertical beam snapping portion.
Likewise, as another kind of alternative, the connection between the headerboard snapping portion 322 and the second verticalbeam snapping portion 332 also can no longer specify at this through carrying out like the fastener of describing among following combination Fig. 7 A and the 7B.
With reference to figure 4A, be the side plate and the header board bonded assembly scheme drawing of insulation can according to another embodiment of the present invention, be state before connecting this moment.Arrow among Fig. 4 A shows installation direction.And, being side plate and the header board bonded assembly scheme drawing of insulation can according to another embodiment of the present invention simultaneously with reference to figure 4B, be state after the connection this moment.Combine leftside side plate 410 to elaborate here.In the description that combines Fig. 4 A and 4B, connecting panel is side plate and header board, and tie-beam is a vertical beam.
Side plate 410 at first is connected withvertical beam 430, and thenheader board 420 is connected withvertical beam 430, accomplishes the connection betweenside plate 410 and theheader board 420 with this.Whereinvertical beam 430 is arranged on an end of side plate 410.Side plate 410 comprisesouter panel 411 and interior plate, and whereinouter panel 411 can be made up of a plurality of narrow boards as described in following combination Fig. 7 A-7C with interior plate.Different with the embodiment that describes among Fig. 3 is, the sideplate snapping portion 412 that is provided with on theouter panel 411 ofside plate 410 and theouter header board 421 ofheader board 420 is not " U " font with headerboard snapping portion 422, but " one " font.Vertical beam 430 is provided with the first verticalbeam snapping portion 431 and the second vertical beam snapping portion 432.Sideplate snapping portion 412 onouter panel 411, theouter header board 421 and headerboard snapping portion 422 directly snap in the first verticalbeam snapping portion 431 and the second verticalbeam snapping portion 432 to accomplish the connection betweenside plate 410 andvertical beam 430,header board 420 and the vertical beam 430.Similarly, this sideplate snapping portion 412 all is the example of connecting panel snapping portion with headerboard snapping portion 422, and this first verticalbeam snapping portion 431 and the second verticalbeam snapping portion 432 all are the example of tie-beam snapping portion.
Connection betweenvertical beam 430 and theside plate 410 is the enlarged diagram of C part among Fig. 4 B in further detail with reference to figure 4C.As stated, on theouter panel 411 ofside plate 410 sideplate snapping portion 412 is set.The first verticalbeam snapping portion 431 ofvertical beam 430 is " U " font.The sideplate snapping portion 412 that is provided with on theouter panel 411 directly snaps onto in the first verticalbeam snapping portion 431 to connectvertical beam 430 andside plate 410.
Connection betweenvertical beam 430 and theheader board 420 is the enlarged diagram of D part among Fig. 4 B in further detail with reference to figure 4D.The second verticalbeam snapping portion 432 ofvertical beam 430 is " U " font.The headerboard snapping portion 422 that is provided with on theouter header board 421 on theheader board 420 directly snaps onto in the second verticalbeam snapping portion 432.
The described another embodiment of the present invention of Fig. 4 A-4D is particularly useful for situation about processing when the material that the outside plate employing that constitutes insulation can not bend.Such as, when whole outside plate adopts glass fiber reinforced plastic (FRP),, therefore can adopt the form of " one " font and directly snap onto in the snapping portion on the vertical beam because FRP is difficult for processing the structure of aforesaid U-shaped snapping portion.It is understandable that top " U " font snapping portion and " one " font snapping portion can exchange.Such as, the first verticalbeam snapping portion 431 can be " one " font, and sideplate snapping portion 412 is " U " font.
With reference to figure 5A, be the side plate of insulation can according to an embodiment of the invention and the bonded assembly scheme drawing between top board, side plate and the base plate, be state before connecting this moment.Arrow among Fig. 5 A shows installation direction.Fig. 5 B is the side plate of insulation can and the bonded assembly scheme drawing between top board, side plate and the base plate according to an embodiment of the invention, and this moment is for connecting the back state.This moment connecting panel and be side plate, top board and base plate.Tie-beam is respectively puts the beams in place and underbeam.
Side plate 510,top board 520 have been shown among Fig. 5 A and have put the beams in place 530.Side plate 510 comprisesouter panel 511, andouter panel 511 is provided with side plate snapping portion 512.Top board 520 comprisesroof sheet 521, androof sheet 521 is provided with top board snapping portion 522.Preferably, topboard snapping portion 522 is arranged on an end of roof sheet.Upper beam 530 comprises the first upperbeam snapping portion 531 and the second upper beam snapping portion 532.The first upperbeam snapping portion 531 is used for being connected with sideplate snapping portion 512, and the second upperbeam snapping portion 532 is used for being connected with top board snapping portion 522.These snapping portions can all be " U " font.Connection between them is described in detail in the above, repeats no more at this.
Similarly, utilizeunderbeam 540 thatside plate 510 is connected with base plate 550.Underbeam 540 at first is connected withside plate 510, and its connection mode can adopt the connection mode between the vertical beam and side plate among Fig. 3 C.The connection mode ofbase plate 550 andunderbeam 540, the connection among employing Fig. 4 D between header board and the vertical beam.Can certainly adopt the connection between the header board and vertical beam among Fig. 3 D.No longer its concrete structure is described in detail at this.
With reference to figure 6A,, be state before connecting this moment for bonded assembly scheme drawing between the side plate of insulation can according to another embodiment of the present invention and top board, side plate and the base plate.Arrow among Fig. 6 A shows installation direction.Fig. 6 B is bonded assembly scheme drawing between side plate and top board, side plate and the base plate of insulation can according to another embodiment of the present invention, and this moment is for connecting the back state.This moment, connecting panel was side plate, top board and base plate.Tie-beam is respectively puts the beams in place and underbeam.
Fig. 6 A is similar with 5B with Fig. 5 A with 6B; Different places are that what connection between the roof sheet of connection between the outer panel ofupper beam 630,underbeam 640 andside plate 610,upper beam 630 andtop board 620 and the connection betweenunderbeam 640 and thebase plate 650 were adopted is the connection mode among Fig. 4 C and the 4D.As stated, this mode is particularly suitable for the situation that adopts the material that can not bend to process when the outside plate that constitutes insulation can.Such as, when whole outside plate adopted glass fiber reinforced plastic (FRP), it can adopt the form of " one " font and directly snap onto in the snapping portion on the upper beam.No longer its concrete structure is described in detail at this.
Above embodiment in, the snapping portion on header board, the top board is arranged on its outside plate separately, but these snapping portions also can set within it on the plate, such as interior header board, inside ceiling panel etc.In addition, though in the above embodiments, be to connect through beam (such as vertical beam, upper beam etc.) between the parts of insulation can, these beams can be included in the parts of insulation can, on side plate.This moment, side plate directly linked to each other with top board, base plate etc.When using, also can only have only the connection between the connecting panel partly to adopt disclosed snapping in the embodiments of the invention.
The invention also discloses outside plate and/or the connection of inner panel, the below detailed description of the connecting panel of insulation can.
With reference to figure 7A-7C, be the bonded assembly scheme drawing of the outside plate of the connecting panel of insulation can according to an embodiment of the invention.Outside plate among this paper refers to the connecting panel outside plate that constitutes insulation can, and such as outer panel above-mentioned, outer header board etc., correspondingly, inner panel refers to the connecting panel inner panel that constitutes insulation can, such as interior plate above-mentioned, interior header board etc.Because inner panel and outside plate can have same or analogous structure, therefore only combine outside plate to do an explanation here, but following description is equally applicable to the situation of inner panel.
When outside plate adopted metal sheet, it normally was spliced by a plurality of narrower plates.Fig. 7 A-7C shows first adjacentnarrow boards 710 and the connection between second narrow boards 720.Wherein Fig. 7 A is the scheme drawing before installing, and Fig. 7 B is the scheme drawing after installing, and Fig. 7 C shows another kind of connection mode.Firstnarrow boards 710 comprises the first narrow boards snapping portion 711.The first narrowboards snapping portion 711 preferably is arranged on an end of firstnarrow boards 710, for example can bend to form this first narrowboards snapping portion 711 through the end with first narrow boards 710.Secondnarrow boards 720 comprises the second narrowboards snapping portion 721; The second narrowboards snapping portion 721 preferably is arranged on secondnarrow boards 720 end relative with the first narrowboards snapping portion 711, for example can through with this end bending of secondnarrow boards 720 to form this second narrow boards snapping portion 721.Connecting the snapping of having realized between firstnarrow boards 710 and secondnarrow boards 720 through the first narrowboards snapping portion 711 and the second narrow boards snapping portion, 721 snappings connects.The first narrowboards snapping portion 711 and the second narrowboards snapping portion 721 are " U " font.
In addition, also be provided with thefastener 730 that is used to connect firstnarrow boards 710 and second narrow boards 720.Fastener 730 comprises the firstfastener snapping portion 731 and the secondfastener snapping portion 732 that is separately positioned on its two ends; Wherein the firstfastener snapping portion 731 in order to the first narrow boards snapping portion, 711 snappings, the opening direction of the firstfastener snapping portion 731 and the first narrowboards snapping portion 711 is oppositely arranged; The secondfastener snapping portion 732 in order to the second narrow boards snapping portion, 721 snappings, the opening of the secondfastener snapping portion 732 and the second narrowboards snapping portion 721 is oppositely arranged equally.The firstfastener snapping portion 731 and the secondfastener snapping portion 732 are " U " font equally.It is understandable that, before snapping, above-mentioned being " U " font the opening of snapping portion more greatly to make things convenient for snapping.
In when assembling, with the firstfastener snapping portion 731 and first narrowboards snapping portion 711 snappings and with the secondfastener snapping portion 732 and the second narrow boards snapping portion, 721 snappings.After snapping, the snapping place is compressed with firstnarrow boards 710,fastener 730 and secondnarrow boards 720 are linked together (shown in Fig. 7 B).
Preferably, the assembling after, the first narrowboards snapping portion 711 and the second narrowboards snapping portion 721 each other against, guarantee the relative fixed between firstnarrow boards 710 and secondnarrow boards 720 with this.The certain first narrowboards snapping portion 711 and the second narrowboards snapping portion 721 can be not yet each other against, protuberance can be set to keep narrow boards and fastener relative fixed this moment on fastener 730.The setting of relevant protuberance is described in detail in the above, repeats no more at this.Simultaneously, the connection between the snapping portion that combines above to describe among Fig. 3 A to 6B also can adopt fastener described herein to connect.
Fig. 7 C shows under the situation that does not adoptfastener 730, the connection between firstnarrow boards 710 and second narrow boards 720.At this moment, the second narrow boards snapping portion, the 721 directly mutual snappings that are " U " font of the first narrowboards snapping portion 711 that is " U " font of firstnarrow boards 710 and second narrow boards 720.In order further to guarantee the relative fixed between firstnarrow boards 710 and secondnarrow boards 720, on secondnarrow boards 720, also be provided with protuberance 722.Protuberance 722 on secondnarrow boards 720 to upper process; Theprotuberance 722 and the first narrowboards snapping portion 711 each other against; So that the first narrowboards snapping portion 711 is remained between the second narrowboards snapping portion 721 and thisprotuberance 722, the snapping of the promptly fixing first narrowboards snapping portion 711 and the second narrowboards snapping portion 721 is connected.Certainly, this protuberance also can be arranged on firstnarrow boards 710.
In order to improve sealing effectiveness further, aquaseal can be set in above-mentioned snapping junction.
Above-mentioned insulation can goes for refrigerated truck, therefore the invention also discloses a kind of refrigerated truck, and said refrigerated truck comprises above-mentioned insulation can.
Further it is understandable that,, go for the casing that constitutes by single-skin panel equally though the present invention combines insulation can be described.
Connection between each parts of insulation can of the present invention, and the narrow boards and the connection between the narrow boards that constitute outside plate and/or inner panel need not adopt extra part, connecting portion is that labyrinth type connects, and has therefore avoided the generation of leakage point.And long-term use still connects firm and convenient disassembly.In addition, insulation can assembling of the present invention need be by the instrument of complicacy, and installation is simple, quick, reliable, appearance looks elegant.
The present invention is illustrated through the foregoing description, but should be understood that, the foregoing description just is used for for example and illustrative purposes, but not is intended to the present invention is limited in the described scope of embodiments.It will be appreciated by persons skilled in the art that in addition the present invention is not limited to the foregoing description, can also make more kinds of variants and modifications according to instruction of the present invention, these variants and modifications all drop in the present invention's scope required for protection.Protection scope of the present invention is defined by appended claims book and equivalent scope thereof.

Claims (23)

1. insulation can; Comprise a plurality of connecting panels, a plurality of tie-beam and rear end assembly; Said a plurality of connecting panel comprises base plate, side plate, header board and top board, said a plurality of connecting panels respectively with said a plurality of tie-beams in corresponding tie-beam be connected, so that said a plurality of connecting panels are fixed; It is characterized in that snapping is connected between at least one tie-beam at least one connecting panel in said a plurality of connecting panels and the said a plurality of tie-beams.
2. insulation can according to claim 1; It is characterized in that; Said at least one connecting panel is provided with connecting panel snapping portion, and said at least one tie-beam is provided with tie-beam snapping portion, and said connecting panel snapping portion is connected with said tie-beam snapping portion snapping.
3. insulation can according to claim 2 is characterized in that, said connecting panel snapping portion and said tie-beam snapping portion are " U " font.
4. insulation can according to claim 3 is characterized in that, said at least one connecting panel is provided with protuberance, said protuberance and said tie-beam snapping portion against, be connected with the snapping of said tie-beam snapping portion with fixing said connecting panel snapping portion.
5. insulation can according to claim 3 is characterized in that, said at least one tie-beam is provided with protuberance, said protuberance and said connecting panel snapping portion against, be connected with the snapping of said tie-beam snapping portion with fixing said connecting panel snapping portion.
6. insulation can according to claim 3 is characterized in that, said connecting panel snapping portion is connected through the fastener snapping with said tie-beam snapping portion.
7. insulation can according to claim 6; It is characterized in that; Said fastener comprises the first fastener snapping portion and the second fastener snapping portion; Said first fastener snapping portion and the said second fastener snapping portion are " U " font, and the said first fastener snapping portion is connected with said connecting panel snapping portion snapping, and the said second fastener snapping portion is connected with said tie-beam snapping portion snapping.
8. insulation can according to claim 2 is characterized in that, one in said connecting panel snapping portion and the said tie-beam snapping portion is " U " font, and another in said connecting panel snapping portion and the said tie-beam snapping portion is " one " font.
9. insulation can according to claim 2 is characterized in that, said at least one connecting panel comprises inner panel and outside plate, and said connecting panel snapping portion is arranged on said outside plate and/or the said inner panel.
10. insulation can according to claim 1 is characterized in that, said a plurality of connecting panels comprise inner panel and outside plate.
11. insulation can according to claim 10 is characterized in that, said inner panel and/or said outside plate are metal sheet.
12. insulation can according to claim 11 is characterized in that, said inner panel and/or said outside plate comprise a plurality of narrow boards.
13. insulation can according to claim 12 is characterized in that, in said a plurality of narrow boards between at least one group of first adjacent narrow boards and second narrow boards snapping connect.
14. insulation can according to claim 13 is characterized in that, said first narrow boards is provided with the first narrow boards snapping portion, and said second narrow boards is provided with the second narrow boards snapping portion, and the said first narrow boards snapping portion is connected with the said second narrow boards snapping portion snapping.
15. insulation can according to claim 14 is characterized in that, said first narrow boards snapping portion and the said second narrow boards snapping portion are " U " font.
16. insulation can according to claim 15 is characterized in that, the said first narrow boards snapping portion is connected through the fastener snapping with the said second narrow boards snapping portion.
17. insulation can according to claim 16; It is characterized in that; Said fastener is provided with the first fastener snapping portion and the second fastener snapping portion; Said first fastener snapping portion and the said second fastener snapping portion are " U " font, and the said first narrow boards snapping portion is connected with the said first fastener snapping portion snapping, and the said second narrow boards snapping portion is connected with the said second fastener snapping portion snapping.
18. insulation can according to claim 17 is characterized in that, the said first narrow boards snapping portion and the said second narrow boards snapping portion after snapping is connected each other against.
19. insulation can according to claim 15; It is characterized in that; The said first narrow boards snapping portion is provided with protuberance, said protuberance and the said second narrow boards snapping portion each other against, be connected with the snapping of fixing said first narrow boards snapping portion and the said second narrow boards snapping portion.
20. insulation can according to claim 10 is characterized in that, said inner panel and/or said outside plate are the glass fiber reinforced plastic plate.
21. insulation can according to claim 1 is characterized in that, the snapping junction between said at least one connecting panel and said at least one tie-beam is provided with aquaseal.
22. insulation can according to claim 1 is characterized in that, snapping is connected between said a plurality of connecting panels and the corresponding said tie-beam.
23. a refrigerated truck is characterized in that, said refrigerated truck comprises according to arbitrary described insulation can among the claim 1-22.
CN2010102541920A2010-08-162010-08-16Heat-preservation cabinet and refrigerator wagon having the samePendingCN102372138A (en)

Priority Applications (1)

Application NumberPriority DateFiling DateTitle
CN2010102541920ACN102372138A (en)2010-08-162010-08-16Heat-preservation cabinet and refrigerator wagon having the same

Applications Claiming Priority (1)

Application NumberPriority DateFiling DateTitle
CN2010102541920ACN102372138A (en)2010-08-162010-08-16Heat-preservation cabinet and refrigerator wagon having the same

Publications (1)

Publication NumberPublication Date
CN102372138Atrue CN102372138A (en)2012-03-14

Family

ID=45791485

Family Applications (1)

Application NumberTitlePriority DateFiling Date
CN2010102541920APendingCN102372138A (en)2010-08-162010-08-16Heat-preservation cabinet and refrigerator wagon having the same

Country Status (1)

CountryLink
CN (1)CN102372138A (en)

Cited By (1)

* Cited by examiner, † Cited by third party
Publication numberPriority datePublication dateAssigneeTitle
CN103448804A (en)*2013-08-162013-12-18镇江飞驰汽车集团有限责任公司Refrigeration car

Citations (5)

* Cited by examiner, † Cited by third party
Publication numberPriority datePublication dateAssigneeTitle
CN1622905A (en)*2002-01-282005-06-01伊西德罗·赫内斯卡·罗梅乌 self heating container
CN2823175Y (en)*2005-09-302006-10-04中国国际海运集装箱(集团)股份有限公司Wall plate jointing structure for refrigerating container or refrigerating carrige
CN1939814A (en)*2005-09-302007-04-04中国国际海运集装箱(集团)股份有限公司Connecting structure and method of wallboards for refrigerating container or coach
CN201380881Y (en)*2009-04-102010-01-13中国国际海运集装箱(集团)股份有限公司 box body
CN201745975U (en)*2010-08-162011-02-16上海中集冷藏箱有限公司Thermal insulation box and refrigerator wagon comprising same

Patent Citations (5)

* Cited by examiner, † Cited by third party
Publication numberPriority datePublication dateAssigneeTitle
CN1622905A (en)*2002-01-282005-06-01伊西德罗·赫内斯卡·罗梅乌 self heating container
CN2823175Y (en)*2005-09-302006-10-04中国国际海运集装箱(集团)股份有限公司Wall plate jointing structure for refrigerating container or refrigerating carrige
CN1939814A (en)*2005-09-302007-04-04中国国际海运集装箱(集团)股份有限公司Connecting structure and method of wallboards for refrigerating container or coach
CN201380881Y (en)*2009-04-102010-01-13中国国际海运集装箱(集团)股份有限公司 box body
CN201745975U (en)*2010-08-162011-02-16上海中集冷藏箱有限公司Thermal insulation box and refrigerator wagon comprising same

Cited By (2)

* Cited by examiner, † Cited by third party
Publication numberPriority datePublication dateAssigneeTitle
CN103448804A (en)*2013-08-162013-12-18镇江飞驰汽车集团有限责任公司Refrigeration car
CN103448804B (en)*2013-08-162016-05-04镇江飞驰汽车集团有限责任公司A kind of refrigerator car

Similar Documents

PublicationPublication DateTitle
US9074372B2 (en)Connector assemblies for connecting panels
US7571578B2 (en)Thermal wall system
US9243399B2 (en)Thermal clip system and apparatus for a building wall assembly
CN201694562U (en)House-type insulating container
CN109747723B (en) A modular assembly lightweight carriage
US9951517B2 (en)Wall attachment clip, wall panel system, and system and method for supporting wall panels
US20170170778A1 (en)Solar module and solar module frame
US20100213740A1 (en)Vehicle and Container Body Structure Thereof
US20090056248A1 (en)Enclosure and method therefor
CN112814210B (en)Split assembled wall and installation method thereof
CN102372138A (en)Heat-preservation cabinet and refrigerator wagon having the same
EP2926332B1 (en)Sign and sign suspension means
CN109263725A (en)Vehicle and its roof module
CN201745975U (en)Thermal insulation box and refrigerator wagon comprising same
CN206220369U (en)Roof board system
CN207060172U (en)A kind of combined type roof and the vehicle using the combined type roof
CN222361022U (en) A box panel connector
CN223269843U (en)Gypsum board cracking prevention structure at window
JP4490600B2 (en) Roof structure
CN111806901A (en) A special profile for a folding container
KR102143494B1 (en)Glass curtain wall system and construction method of glass curtain wall system
CN206220368U (en)Roof board system
CN215484290U (en)Horizontal mosaic structure of assembled outer wall battenboard
CN105201117B (en)Combined container house roof
CN213058572U (en) container

Legal Events

DateCodeTitleDescription
C06Publication
PB01Publication
C10Entry into substantive examination
SE01Entry into force of request for substantive examination
C05Deemed withdrawal (patent law before 1993)
WD01Invention patent application deemed withdrawn after publication

Application publication date:20120314


[8]ページ先頭

©2009-2025 Movatter.jp