







技术领域technical field
本发明涉及带立式炭化室的炼焦炉,尤其涉及应用于侧装煤捣固焦炉的U型管导烟除尘车,运行在焦炉炉顶的专用轨道上。The invention relates to a coke oven with a vertical carbonization chamber, in particular to a U-shaped pipe smoke guide and dust removal vehicle applied to a side-loaded coal tamping coke oven, which runs on a special track on the top of the coke oven.
背景技术Background technique
在现有技术中,当焦炉机侧的捣固装煤车进行煤饼装炉操作时,单独使用集尘伸缩套导烟装置,由炉顶吸尘口,将正在装煤的碳化室产生的烟气经集尘干管全部导入地面除尘站,由布袋除尘器进行过滤处理后达标排放。其缺点是该装置在导烟过程中,需消耗较多能源,运行成本高。如果能借助相邻碳化室结焦末期的负压或地面除尘站,采用U型管导烟除尘车把装煤时产生的烟气经U型管导入相邻碳化室里,或经集尘伸缩套导入地面除尘站进行过滤处理后达标排放自当事半而功倍。加之,U型管导烟除尘车的辅助功能,如机械清扫上升管、机械关闭上升管盖、高低压氨水切换、机械清扫炉顶、轨道吹扫、机械揭关炉盖和检修上升管悬臂吊等,必将成为一种新型、高效,既节能、环保又有较高机械化程度的导烟、除尘设备。In the prior art, when the tamping coal loading car on the side of the coke oven machine is used for coal cake loading operation, the dust collection telescopic sleeve smoke guide device is used alone, and the dust suction port on the furnace top generates the carbonization chamber that is charging coal. The flue gas is all introduced into the ground dust removal station through the dust collection dry pipe, and is filtered by the bag filter before being discharged up to the standard. The disadvantage is that the device needs to consume more energy in the process of guiding the smoke, and the operating cost is high. If the negative pressure at the end of coking in the adjacent carbonization chamber or the ground dust removal station can be used, the flue gas generated during coal loading can be introduced into the adjacent carbonization chamber through the U-shaped pipe through the U-shaped pipe for smoke and dust removal, or the dust collection telescopic sleeve Imported to the ground dust removal station for filtration treatment, the standard emission is achieved with half the effort. In addition, the auxiliary functions of the U-shaped pipe smoke guide and dust removal vehicle, such as mechanical cleaning of the rising pipe, mechanical closing of the rising pipe cover, switching between high and low pressure ammonia water, mechanical cleaning of the furnace roof, track purging, mechanical opening and closing of the furnace cover, and maintenance of the rising pipe cantilever crane etc., will surely become a new type, high-efficiency, energy-saving, environmentally friendly and highly mechanized smoke guide and dust removal equipment.
根据捣固焦炉配置需要,U型管导烟除尘车的设计可分为左、右型:站在焦炉炉顶,面向煤塔,煤塔右侧选用右型导烟除尘车,煤塔左侧则选用左型导烟除尘车。这种U型管导烟除尘车,即可单独使用U型导烟管装置进行导烟,又可单独使用集尘伸缩套导烟装置进行导烟,并可两种装置同时进行导烟,导烟效率高,操作灵活。According to the configuration requirements of the tamping coke oven, the design of the U-shaped pipe smoke guide and dust removal vehicle can be divided into left and right types: standing on the top of the coke oven, facing the coal tower, the right type of smoke guide and dust removal vehicle is selected on the right side of the coal tower, and the coal tower The left side uses the left-type smoke guide and dust removal vehicle. This U-shaped pipe smoke guide and dust removal vehicle can use the U-shaped smoke guide device alone for smoke guide, and can also use the dust collection telescopic sleeve smoke guide device for smoke guide alone, and the two devices can be used for smoke guide at the same time. High smoke efficiency and flexible operation.
单独使用U型管导烟装置的导烟炉序是n+x,其过程是由U型管将正在装煤的n碳化室和n+x碳化室的水密封炉口进行连通,在高压氨水作用下,借助n+x碳化室内的负压,将n碳化室装煤时产生的烟气吸入n+x碳化室内,经焦炉荒煤气集气管回收利用。该装置在导烟过程中,不额外消耗能源,运行成本低,是理想的节能减排措施。如将上述两种装置联合使用,可获得更好的导烟除尘效果,并可适当降低地面站除尘能源消耗,即环保,又经济。The smoke guide furnace sequence using the U-shaped pipe smoke guide device alone is n+x. The process is to connect the water-sealed furnace mouth of the n carbonization chamber and the n+x carbonization chamber being charged by the U-shaped pipe. Under the action, with the help of the negative pressure in the n+x carbonization chamber, the flue gas generated when the n carbonization chamber is charged with coal is sucked into the n+x carbonization chamber, and recycled through the coke oven waste gas collection pipe. The device does not consume additional energy during the smoke guiding process, and has low operating costs, so it is an ideal measure for energy saving and emission reduction. If the above two devices are used in combination, better smoke guide and dust removal effect can be obtained, and the energy consumption of dust removal at the ground station can be appropriately reduced, which is environmentally friendly and economical.
发明内容Contents of the invention
本发明的发明目的,在于提供一种U型管导烟除尘车。本实用新型的技术解决方案是这样实现的:The object of the present invention is to provide a U-shaped pipe smoke guide and dust removal vehicle. The technical solution of the present utility model is realized in this way:
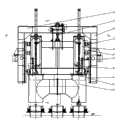
一种U型管导烟除尘车,包括车架体、走行装置、揭炉盖装置、U型管导烟装置、集尘装置、炉顶清扫装置、上升管清扫装置、关上升管盖装置、氨水切换装置、悬臂吊、空气吹扫装置、液压系统和电控系统,其特征在于:所述的U型管装置中有门型架,由门横梁、及门框组成,门框的内侧装有升降导轨,升降导轨上装V型铁;门型架之下有升降架升降架由上横梁、下横梁、左支梁和右支梁组成,所述的横梁与支梁均为箱型结构,其中的上横梁通过升降装置与门型架联接,其下横梁则与U型导烟管的上端面螺栓连接;在所述左右支梁的内部装有卡抓装置,其外壁则装有导向滚并与所述V型铁自由连接;在所述升降装置的带动下,升降架可沿门型架的升降轨道上下运动,从而带动U型导烟管插入和/或提出焦炉炭化室的水密封炉口。A U-shaped pipe smoke guide dust removal vehicle, including a vehicle frame body, a running device, a device for removing the furnace cover, a U-shaped pipe smoke guide device, a dust collection device, a furnace top cleaning device, an ascending pipe cleaning device, a device for closing the ascending pipe cover, Ammonia water switching device, cantilever crane, air purging device, hydraulic system and electric control system, characterized in that: the U-shaped pipe device has a portal frame, which is composed of a door beam and a door frame, and the inside of the door frame is equipped with a lifting The guide rail is equipped with V-shaped iron on the lifting guide rail; there is a lifting frame under the portal frame. The lifting frame is composed of an upper beam, a lower beam, a left support beam and a right support beam. The upper beam is connected with the portal frame through the lifting device, and the lower beam is connected with the upper end surface of the U-shaped smoke pipe by bolts; the left and right beams are equipped with grabbing devices inside, and the outer wall is equipped with guide rollers and The V-shaped iron is freely connected; driven by the lifting device, the lifting frame can move up and down along the lifting track of the portal frame, thereby driving the U-shaped smoke guide pipe to insert and/or lift out the water-sealed furnace of the coke oven carbonization chamber mouth.
所述的卡抓装置包括F1型油缸、套筒、卡抓、导套、卡抓座和推拉体,其中的F1型油缸的端头有连接体和卡抓升降液压缸连接,液压缸带动F1型油缸做升降运动并完成卡抓的开闭运动。The gripping device includes an F1 type oil cylinder, a sleeve, a gripper, a guide sleeve, a gripping seat and a push-pull body, wherein the end of the F1 type oil cylinder is connected with a connecting body and the gripping lifting hydraulic cylinder, and the hydraulic cylinder drives the F1 The type oil cylinder does the lifting movement and completes the opening and closing movement of the grip.
所述的上升管清扫装置坐落在平移小车上,该平移小车包括支架、车体、液压缸和重锤,重锤由钢绳经滑轮与卷筒连接;液压缸固定在车体上,其缸杆则与尾座固定连接。The rising pipe cleaning device is located on a translation trolley, which includes a bracket, a car body, a hydraulic cylinder and a weight, the weight is connected to the reel by a steel rope through a pulley; the hydraulic cylinder is fixed on the car body, and its cylinder The rod is fixedly connected with the tailstock.
与现有技术相比较,本发明的优点是显而易见的,主要表现在:采用U型管导烟和/或由U型管与集尘伸缩套导烟装置进行联合导烟除尘,可获得更好的导烟除尘效果,并可适当降低地面站除尘能源消耗,既环保,又经济。Compared with the prior art, the advantages of the present invention are obvious, which are mainly manifested in: using a U-shaped pipe to guide the smoke and/or conducting a joint smoke guide and dust removal by the U-shaped pipe and the dust-collecting telescopic sleeve smoke guide device can obtain better Excellent smoke guide and dust removal effect, and can properly reduce the dust removal energy consumption of the ground station, which is both environmentally friendly and economical.
附图说明Description of drawings
本发明有附图9幅,其中:The present invention has 9 accompanying drawings, wherein:
图1是本发明的主视图;Fig. 1 is the front view of the present invention;
图2是图1的俯视图;Fig. 2 is the top view of Fig. 1;
图3是图1的A向视图;Fig. 3 is the A direction view of Fig. 1;
图4是本发明的U型导烟管装置的主视图;Fig. 4 is the front view of the U-shaped smoke guiding pipe device of the present invention;
图5是图4的俯视图;Figure 5 is a top view of Figure 4;
图6是图5的B-B剖视图;Fig. 6 is the B-B sectional view of Fig. 5;
图7是本发明的卡抓装置的主视图;Fig. 7 is a front view of the gripping device of the present invention;
图8是图7的B向视图;Fig. 8 is the B direction view of Fig. 7;
图9是本发明的平移小车落锤式上升管清扫装置主视图。Fig. 9 is a front view of the lifting pipe cleaning device of the present invention with a sliding trolley dropping hammer.
在图中:1、车架体,2、走行装置,3、揭炉盖装置,4、U型导烟管装置,5、集尘装置,6、炉顶清扫装置,7、上升管清扫装置,8、关上升管盖装置,9、氨水切换装置,10、悬臂吊,11、空气吹扫装置,12、液压系统,13、电控系统,14、安全钩装置,15、升降装置,16、门型架,17、导向滚,18、升降架,19、卡抓装置,20、炉盖认定装置,21、升降导轨,22、导烟管,23、门型架横梁,24、升降架支梁,25、升降架横梁,26、F1型油缸,27、套筒,28、卡抓,29、导套,30、卡抓座,31、推拉体,32、支架,33、平移小车,34、液压缸,35、重锤。In the figure: 1. Vehicle frame body, 2. Running device, 3. Furnace cover uncovering device, 4. U-shaped smoke guide device, 5. Dust collecting device, 6. Furnace top cleaning device, 7. Rising pipe cleaning device , 8. Closing riser pipe cover device, 9. Ammonia water switching device, 10. Cantilever crane, 11. Air purging device, 12. Hydraulic system, 13. Electric control system, 14. Safety hook device, 15. Lifting device, 16 , portal frame, 17, guide roller, 18, lifting frame, 19, gripping device, 20, furnace cover identification device, 21, lifting guide rail, 22, smoke guide pipe, 23, portal frame beam, 24, lifting frame Support beam, 25, lifting frame beam, 26, F1 type oil cylinder, 27, sleeve, 28, catch, 29, guide sleeve, 30, catch seat, 31, push-pull body, 32, bracket, 33, translation trolley, 34, hydraulic cylinder, 35, heavy hammer.
具体实施方式Detailed ways
如图1~图9所示的一种U型管导烟除尘车,由车架体、走行装置、揭炉盖装置、U型管导烟装置、集尘装置、炉顶清扫装置、上升管清扫装置、关上升管盖装置、氨水切换装置、悬臂吊、空气吹扫装置、液压系统与电控系统等组成。所述的车架体,由由焦侧端梁、前端梁、中梁、机侧端梁、组合梁、后端梁组合成门型框架结构。各梁由钢板和型钢组焊,各梁之间的连接采用栓焊结构,即采用螺栓组把合定位后再组焊的连接方式,方便拆卸、运输和装配。A U-shaped tube smoke guide and dust removal vehicle as shown in Figures 1 to 9 is composed of a vehicle frame, a running device, a furnace cover device, a U-shaped tube smoke guide device, a dust collection device, a furnace top cleaning device, and a rising pipe. It is composed of cleaning device, rising pipe cover closing device, ammonia water switching device, cantilever crane, air purging device, hydraulic system and electric control system, etc. The vehicle frame body is composed of focal side end beams, front end beams, middle beams, machine side end beams, combined beams and rear end beams to form a door-shaped frame structure. Each beam is assembled and welded by steel plate and section steel, and the connection between the beams adopts a bolt-welded structure, that is, a connection method in which bolts are assembled and positioned and then assembled and welded, which is convenient for disassembly, transportation and assembly.
司机室设在车架体平台下面的中间位置,便于走行对位操作和观察U型导烟管升降对位操作;司机室内设有工业电视,便于监控揭炉盖装置、集尘装置、上升管清扫装置、关上升管盖装置、氨水切换装置的操作过程;电器室和机器室设在车架体平台上方;司机室、电器室和机器室设有保温层,内设工业空调,改善操作工的工作环境。门型平台四周设有安全防护栏杆。The driver's cab is located in the middle of the platform of the frame body, which is convenient for walking alignment operation and observing the lifting and alignment operation of the U-shaped smoke guide pipe; the driver's cab is equipped with an industrial TV, which is convenient for monitoring the furnace cover removal device, dust collection device, and rising pipe The operation process of the cleaning device, the device for closing the rising pipe cover, and the switching device for ammonia water; the electrical room and the machine room are set above the platform of the frame body; working environment. There are security railings around the gate platform.
走行装置由主动轮组和被动轮组组成,分别安装在机侧端梁和焦侧端梁下方,各轮组设有减震弹簧,减缓导烟除尘车行走时对炉体的动载冲击;各轮对采用滚动轴承,阻力小,寿命长,轴承箱为直角安装结构,便于检修更换。The running device consists of a driving wheel set and a passive wheel set, which are respectively installed under the end beam on the machine side and the end beam on the coke side. Each wheel set is equipped with a shock-absorbing spring to slow down the dynamic load impact on the furnace body when the smoke guide and dust removal vehicle travels; Each wheel set adopts rolling bearing, which has low resistance and long service life. The bearing box is installed at right angles, which is convenient for maintenance and replacement.
走行传动采用外挂式齿轮减速器,噪音低,扭矩大,便于维护;走行电机为变频调速电机,调速范围大,运行平稳,便于停准对位;走行制动采用液压推杆制动器,制动平稳可靠;走行两端设有声光报警器,提示工作人员注意行车安全。The travel transmission adopts an external gear reducer, which has low noise, large torque and is easy to maintain; the travel motor is a frequency conversion speed regulation motor with a wide speed range, stable operation, and easy to stop and align; the travel brake adopts a hydraulic push rod brake. The movement is stable and reliable; there are sound and light alarms at both ends of the walking line to remind the staff to pay attention to driving safety.
揭炉盖装置由揭炉盖机构、吊架、横梁等组成。电磁铁移动小车由液压杠杆机构驱动,通过水平S型导轨或垂直升降导轨实现平移与升降动作;电磁铁移动小车设有液压炉盖搓动机构,研磨掉炉盖与炉座之间的石墨,使炉盖闭合后,密封良好;电磁铁上方设有炉盖吸合确认装置,便于司机操控。各运动机构由接近开关控制。The device for removing the furnace cover is composed of a furnace cover mechanism, a hanger, and a beam. The electromagnet moving trolley is driven by a hydraulic lever mechanism, and the translation and lifting actions are realized through the horizontal S-shaped guide rail or the vertical lifting guide rail; the electromagnet moving trolley is equipped with a hydraulic furnace cover rubbing mechanism, which grinds away the graphite between the furnace cover and the furnace base. After the furnace cover is closed, it is well sealed; a device for confirming the closure of the furnace cover is installed above the electromagnet, which is convenient for the driver to operate. Each movement mechanism is controlled by a proximity switch.
U型管导烟装置由安全钩装置、升降装置、门型架、导向滚、升降架、卡抓装置、炉盖认定装置、升降导轨、U型导烟管等组成。The U-shaped pipe smoke guiding device is composed of a safety hook device, a lifting device, a portal frame, a guide roller, a lifting frame, a grabbing device, a furnace cover identification device, a lifting guide rail, and a U-shaped smoke guiding pipe.
U型管导烟装置可根据焦炉导烟工艺需要,分别采用单排U型导烟管或双排U型导烟管结构;U型管导烟装置的导烟炉序是n+x碳化室;炉顶导烟孔可采用水封盖或非水封盖两种方式。The U-shaped pipe smoke guide device can adopt a single-row U-shaped smoke guide pipe or a double-row U-shaped smoke guide pipe structure according to the needs of the coke oven smoke guide process; the smoke guide furnace sequence of the U-shaped pipe smoke guide device is n+x carbonization chamber; the smoke guide hole on the top of the furnace can be covered by water or non-water.
U型导烟管固定在升降架的下部,由两个L型导烟管把合后组成的,便于制作、运输、维修更换。The U-shaped smoke guide tube is fixed on the lower part of the lifting frame, and is composed of two L-shaped smoke guide tubes combined, which is convenient for manufacture, transportation, maintenance and replacement.
升降导轨垂直安装在门型架的两侧,采用V型铁形式,结构简单,升降平稳,定位可靠。The lifting guide rails are vertically installed on both sides of the portal frame, adopting V-shaped iron form, with simple structure, stable lifting and reliable positioning.
U型导烟管的升降和卡抓的升降与夹紧采用液压驱动,U型导烟管的上方设有炉盖认定装置,便于司机操控。The lifting and clamping of the U-shaped smoke guide pipe is driven by hydraulic pressure, and the upper part of the U-shaped smoke guide pipe is equipped with a furnace cover identification device, which is convenient for the driver to control.
U型导烟管处于非工作位置时,升降架由液压安全钩锁紧;防止因升降机构突然失控,U型导烟管下落,造成挂碰炉顶水封盖事故。U型管导烟装置的各运动机构由接近开关控制。When the U-shaped smoke guide pipe is in the non-working position, the lifting frame is locked by the hydraulic safety hook; to prevent the U-shaped smoke guide pipe from falling due to the sudden loss of control of the lifting mechanism, resulting in an accident of hanging on the water seal cover of the furnace roof. Each movement mechanism of the U-shaped pipe smoke guiding device is controlled by a proximity switch.
集尘装置由导套装置、导烟管、闸板阀装置、开盖装置、集尘移动方管装置、前支架、后支架、风压检测管装置等组成。The dust collection device is composed of a guide sleeve device, a smoke guide pipe, a gate valve device, a cover opening device, a dust collection mobile square pipe device, a front bracket, a rear bracket, and a wind pressure detection tube device.
导套采用对开把合结构,导烟管分为上下两部分,便于制作、运输、维修更换。导套装置设有配重,保证导套在非工作时,无外力作用时始终处于提起状态,防止导烟车走行时,因导套突然下落,造成挂碰事故。The guide sleeve adopts the structure of opening and closing, and the smoke guide pipe is divided into upper and lower parts, which is convenient for production, transportation, maintenance and replacement. The guide sleeve device is equipped with a counterweight to ensure that the guide sleeve is always in the lifting state when there is no external force when it is not working, so as to prevent the guide sleeve from falling suddenly when the smoke guiding vehicle is running, causing a hitch accident.
闸板阀位于上下导烟管结合处,由液压缸驱动闸板旋转,调节导烟管内的烟气流量,获得最佳导烟效果;导烟管内的烟气压力通过风压检测管连接到司机室内。The gate valve is located at the junction of the upper and lower smoke guide pipes, and the hydraulic cylinder drives the gate to rotate to adjust the flow of smoke in the smoke guide pipe to obtain the best smoke guide effect; the smoke pressure in the smoke guide pipe is connected to the driver through the wind pressure detection tube indoor.
开盖装置位于集尘装置的最上方,由液压缸驱动推杆顶压地面除尘站集尘干管翻板阀杠杆,将密封翻板打开。The cover opening device is located at the top of the dust collection device. The hydraulic cylinder drives the push rod to press the flap valve lever of the dust collection dry pipe of the ground dust removal station to open the sealing flap.
集尘移动方管装置位于上导烟管的前部,集尘方管是个平移导套,由四个轮组坐落在后支架前部水平导轨上;密封翻板打开后,由液压缸驱动集尘方管前移,与地面除尘站集尘干管水平连接管对接,集尘方管的下部设有挡烟板,可将集尘干管水平连接管的上下烟道连通起来,将装煤时,从机侧装煤口上方溢出的烟气经集尘方管导入地面除尘站;为减少对集尘干管的冲击力,集尘方管前端的活动导套设有缓冲弹簧装置。集尘装置的各运动机构由接近开关控制。The dust collection mobile square pipe device is located in the front of the upper smoke guide pipe. The dust collection square pipe is a translational guide sleeve, and the four wheel sets are located on the horizontal guide rail at the front of the rear bracket; after the sealing flap is opened, the collection is driven by a hydraulic cylinder. The square dust pipe moves forward and connects with the horizontal connecting pipe of the dust collection main pipe of the ground dust removal station. The lower part of the dust collection square pipe is equipped with a smoke baffle, which can connect the upper and lower flues of the horizontal connection pipe of the dust collection main pipe, and the coal loading At the same time, the flue gas overflowing from the top of the coal loading port on the side of the machine is introduced into the ground dust removal station through the dust collection square pipe; in order to reduce the impact on the dust collection dry pipe, the movable guide sleeve at the front end of the dust collection square pipe is equipped with a buffer spring device. Each movement mechanism of the dust collecting device is controlled by a proximity switch.
炉顶清扫装置由吸尘小车、链条机构、布袋除尘器、排出阀、离心通风机、消音器等组成。The furnace top cleaning device is composed of a dust collection trolley, a chain mechanism, a bag filter, a discharge valve, a centrifugal fan, and a muffler.
吸尘小车的车架上方设有主动轮组和被动轮组,吊挂在车架体前端梁H型钢导轨上;主动轮组采用链传动,由电动摆线减速机驱动,沿炉顶轨道垂直方向运行。吸尘小车设有两组吸嘴,由液压缸驱动升降;吸嘴设有配重,保证吸嘴在非工作时,无外力作用时始终处于提起状态,防止导烟车走行时,因吸嘴突然下落,造成挂碰事故。There are active wheel set and passive wheel set above the frame of the dust collection trolley, which are hung on the H-shaped steel guide rail of the front beam of the frame body; the active wheel set is driven by a chain drive, driven by an electric cycloid reducer, and vertically along the furnace roof track. direction run. The vacuum trolley is equipped with two sets of suction nozzles, which are driven up and down by hydraulic cylinders; the suction nozzles are equipped with a counterweight to ensure that the suction nozzles are always lifted when there is no external force when they are not working, so as to prevent the smoke guide car from being damaged by the suction nozzles when it is walking. Sudden fall, resulting in a hitch accident.
链条机构装有吸尘软管、液压软管和电缆线,用来将吸尘小车的各种管线与布袋除尘器、液压配管、电器配线连接起来。The chain mechanism is equipped with vacuum hoses, hydraulic hoses and cables, which are used to connect various pipelines of the vacuum trolley with the bag filter, hydraulic piping, and electrical wiring.
由布袋除尘器、排出阀、离心通风机、消音器等组成车上真空除尘系统;布袋除尘器设有震动电机,司机根据使用情况,随时启动震动电机,将聚集在布袋上的灰尘震落,使布袋除尘器始终处于良好工作状态;排出阀固定在布袋除尘器的下方,由液压缸驱动翻板旋转,定时将布袋除尘器下部料斗寄存的灰尘排放到炉顶指定位置。炉顶清扫装置的各运动机构由接近开关控制。The on-vehicle vacuum dust removal system is composed of bag filter, discharge valve, centrifugal fan, muffler, etc.; the bag filter is equipped with a vibration motor, and the driver can start the vibration motor at any time according to the usage situation to shake off the dust collected on the bag. The bag filter is always in good working condition; the discharge valve is fixed under the bag filter, and the flap is driven by the hydraulic cylinder to rotate, and the dust stored in the lower hopper of the bag filter is discharged to the designated position on the furnace top at regular intervals. Each movement mechanism of the furnace top cleaning device is controlled by a proximity switch.
上升管清扫装置由链轮、链条闸板、滚筒装置、重锤装置、走行装置、底架、涡轮减速机等组成。The riser cleaning device is composed of a sprocket, a chain ram, a roller device, a weight device, a running device, an underframe, and a turbine reducer.
由走行装置和底架组成的平移小车,安放在关上升管盖装置的固定架上部水平导轨中,由液压缸驱动平移。The translation trolley composed of the traveling device and the bottom frame is placed in the upper horizontal guide rail of the fixed frame of the closing riser pipe cover device, and is driven by a hydraulic cylinder to move in translation.
上升管清扫装置的其余零部件都安装在平移小车上,为防止平移小车偏载,在电机和涡轮减速机的对称部位设置配重。The remaining parts of the rising pipe cleaning device are all installed on the translation trolley. In order to prevent the translation trolley from unbalanced load, counterweights are arranged at the symmetrical parts of the motor and the worm gear reducer.
滚筒装置采用圆锥摩擦离合器结构,当清扫上升管时,摩擦离合器打开,卷筒空转,重锤成自由落体快速下降,清除上升管中集结的石墨;摩擦离合器闭合后,电机驱动卷筒旋转将重锤提起。The roller device adopts a conical friction clutch structure. When cleaning the ascending pipe, the friction clutch is opened, the reel rotates idly, and the heavy hammer falls freely and falls rapidly to remove the graphite accumulated in the ascending pipe; after the friction clutch is closed, the motor drives the reel to rotate and will Hammer lifted.
重锤提起后,由链条闸板的插销锁紧,防止导烟车走行时,因重锤突然坠落,造成挂碰事故。After the heavy hammer is lifted, it is locked by the latch of the chain gate to prevent the heavy hammer from falling suddenly when the smoke guiding vehicle is running, causing a hitch accident.
关上升管盖装置由固定架、推杆、液压缸等组成。液压缸带动推杆前移,顶推打开的上升管盖,将其关闭,推杆自动退回原位。固定架上部设水平导轨,安放上升管清扫装置。The device for closing the rising pipe cover is composed of a fixed frame, a push rod, and a hydraulic cylinder. The hydraulic cylinder drives the push rod to move forward, pushes the opened ascending pipe cover to close it, and the push rod returns to its original position automatically. A horizontal guide rail is arranged on the upper part of the fixed frame, and the rising pipe cleaning device is placed.
氨水切换装置由支座、伸缩杆、液压缸等组成。液压缸分上下水平布置。上部液压缸执行低压切换,下部液压缸执行高压切换。The ammonia water switching device is composed of a support, a telescopic rod, and a hydraulic cylinder. The hydraulic cylinders are arranged horizontally up and down. The upper hydraulic cylinder performs low-pressure switching and the lower hydraulic cylinder performs high-pressure switching.
液压缸带动伸缩杆前移,顶推氨水阀切换杠杆,完成切换操作后,伸缩杆自动退回原位。为减少对切换杠杆的冲击力,伸缩杆内设有缓冲弹簧。各液压缸的进退操作由接近开关控制。The hydraulic cylinder drives the telescopic rod to move forward, and pushes the switching lever of the ammonia water valve. After the switching operation is completed, the telescopic rod automatically returns to its original position. In order to reduce the impact on the switching lever, a buffer spring is provided in the telescopic rod. The forward and backward operation of each hydraulic cylinder is controlled by a proximity switch.
空气吹扫装置由两台螺杆空压机组、储气罐、电磁阀、过滤器和油雾器、管路附件及吹扫喷嘴等组成。The air purging device consists of two screw air compressors, air storage tank, solenoid valve, filter and lubricator, pipeline accessories and purging nozzles.
螺杆空压机结构紧凑,效率高,噪音低,使用寿命长,两台机组一用一备。The screw air compressor has compact structure, high efficiency, low noise and long service life, and there are two units for one use and one for standby.
走行轨道两侧设有吹扫喷嘴,喷嘴与地面成45度角;导烟除尘车行走时,吹扫喷嘴将轨道附近的灰尘吹离轨道,使其处于炉顶清扫装置吸嘴的吸尘范围。There are blowing nozzles on both sides of the running track, and the nozzles are at an angle of 45 degrees to the ground; when the smoke guide and dust removal vehicle is walking, the blowing nozzles blow the dust near the track away from the track, so that it is within the dust collection range of the suction nozzle of the furnace top cleaning device .
导烟除尘车平台上设有检修上升管悬臂起重机。The platform of the smoke guide and dust removal vehicle is equipped with a cantilever crane for inspection and maintenance of the rising pipe.
液压系统安装于机器室内,分为泵站和阀站两部分。The hydraulic system is installed in the machine room, which is divided into two parts: the pump station and the valve station.
泵站采用双泵结构,一套工作,一套备用;并附设手动油泵或蓄能器,当导烟除尘车使用过程中发生突然停电事故时:通过手动油泵或蓄能器完成揭炉盖装置、U型管导烟装置、集尘装置、上升管清扫装置、氨水切换装置等正在进行的液压操作程序,并使其回归原位,防止上述各装置被火烧坏,保正焦炉操作正常运行。The pumping station adopts a double-pump structure, one set for working and one set for standby; it is also equipped with a manual oil pump or accumulator. When a sudden power failure occurs during the use of the smoke guide and dust removal vehicle: complete the furnace cover removal device through the manual oil pump or accumulator , U-shaped pipe smoke guide device, dust collection device, rising pipe cleaning device, ammonia water switching device and other ongoing hydraulic operation procedures, and return them to their original positions to prevent the above-mentioned devices from being burned out by fire and ensure the normal operation of the coke oven .
阀站由阀组、压力表、铭牌、底座、管路附件、电器接线箱等组成。阀组采用集成块式,每个阀组的进油口都安有截止阀,便于单体检修。The valve station is composed of valve group, pressure gauge, nameplate, base, pipeline accessories, electrical junction box and so on. The valve group adopts integrated block type, and the oil inlet of each valve group is equipped with a stop valve, which is convenient for single maintenance.
电控系统由电源滑触器、电控柜、操作台、电缆槽、接线箱。The electric control system consists of a power slider, an electric control cabinet, an operating table, a cable trough, and a junction box.
电子监控器、照明灯等组成。Electronic monitors, lights and other components.
电源:3Ph,380V,50Hz。Power supply: 3Ph, 380V, 50Hz.
供电方式;滑触线导入。Power supply mode; trolley line lead-in.
走行电机及炉顶除尘风机采用变频调速,其他各部操作采用手动和PLC单元自动程序控制。The running motor and furnace top dust removal fan adopt frequency conversion speed regulation, and other operations are controlled by manual and PLC unit automatic program.
采用电子摄像头监控U型管导烟装置、集尘装置、上升管清扫装置、关上升管盖装置、氨水切换装置。Electronic cameras are used to monitor the U-shaped pipe smoke guide device, dust collection device, rising pipe cleaning device, rising pipe cover closing device, and ammonia water switching device.
| Application Number | Priority Date | Filing Date | Title |
|---|---|---|---|
| CN 200910012666CN101602950B (en) | 2009-07-21 | 2009-07-21 | U-shaped pipe smoke guide and dust removal vehicle |
| Application Number | Priority Date | Filing Date | Title |
|---|---|---|---|
| CN 200910012666CN101602950B (en) | 2009-07-21 | 2009-07-21 | U-shaped pipe smoke guide and dust removal vehicle |
| Publication Number | Publication Date |
|---|---|
| CN101602950Atrue CN101602950A (en) | 2009-12-16 |
| CN101602950B CN101602950B (en) | 2013-05-08 |
| Application Number | Title | Priority Date | Filing Date |
|---|---|---|---|
| CN 200910012666ActiveCN101602950B (en) | 2009-07-21 | 2009-07-21 | U-shaped pipe smoke guide and dust removal vehicle |
| Country | Link |
|---|---|
| CN (1) | CN101602950B (en) |
| Publication number | Priority date | Publication date | Assignee | Title |
|---|---|---|---|---|
| CN102199432A (en)* | 2010-11-30 | 2011-09-28 | 大连华锐股份有限公司 | U-shaped pipe smoke guiding vehicle-based cover uncovering device |
| CN102275164A (en)* | 2011-07-14 | 2011-12-14 | 张家港长力机械有限公司 | Cover-capturing manipulator on a fume guiding car |
| CN102352261A (en)* | 2011-09-19 | 2012-02-15 | 济钢集团重工机械有限公司 | Smoke-guiding and dust-removing device for top-loading coke furnace coal-charging vehicle |
| CN102391883A (en)* | 2011-09-21 | 2012-03-28 | 大连华锐股份有限公司 | Tamping coal charging dust removal system and working method thereof |
| CN102641632A (en)* | 2012-04-12 | 2012-08-22 | 江苏精亚环境科技有限公司 | Three-dimensional suction arm movement mechanism of cellular dust collector |
| CN102660303A (en)* | 2012-05-08 | 2012-09-12 | 山东兖煤凯达环保机械有限公司 | Device for recovering gas without smoke dust discharge during coal charging and coke discharge of coke oven |
| CN104312596A (en)* | 2014-11-14 | 2015-01-28 | 大连华锐重工焦炉车辆设备有限公司 | Tamping coke oven U-shaped pipe smoke-guide trolley with mobile smoke guide pipe and application method of smoke-guide trolley |
| CN104673335A (en)* | 2015-02-16 | 2015-06-03 | 大连重矿设备制造有限公司 | Ladder regenerative mixed combustion chamber smoke elimination and energy-saving vehicle |
| CN105219405A (en)* | 2015-11-04 | 2016-01-06 | 上海梅山工业民用工程设计研究院有限公司 | A kind of cover-taking off device for the cleaning of coke oven coal filling car bell |
| CN107231516A (en)* | 2017-07-27 | 2017-10-03 | 重庆万建电子工程有限责任公司重庆第分公司 | Band scrapes the dome-type camera of grey structure |
| CN109666487A (en)* | 2018-12-12 | 2019-04-23 | 北京中冶设备研究设计总院有限公司 | A kind of closing of coke oven and ventilating dust-arrester and method |
| CN111151089A (en)* | 2019-12-25 | 2020-05-15 | 太原重工股份有限公司 | Coke oven dust pelletizing system |
| CN112724988A (en)* | 2020-12-29 | 2021-04-30 | 黑龙江建龙化工有限公司 | New method for replacing riser bridge pipe |
| CN114214078A (en)* | 2022-01-12 | 2022-03-22 | 大连华锐重工焦炉车辆设备有限公司 | Dust and smoke removing vehicle with belt-mounted dust removing device |
| Publication number | Priority date | Publication date | Assignee | Title |
|---|---|---|---|---|
| CN1247325C (en)* | 2003-12-22 | 2006-03-29 | 苏循高 | Dust removing and purifying vehicle for coke oven |
| CN201094963Y (en)* | 2007-10-18 | 2008-08-06 | 中冶华天工程技术有限公司 | Mobile dust removing device for ore tank |
| CN201115857Y (en)* | 2007-10-26 | 2008-09-17 | 郭晋民 | Tamping coke oven side-installed coal smoke-eliminating and dust-collecting device |
| Publication number | Priority date | Publication date | Assignee | Title |
|---|---|---|---|---|
| CN102199432B (en)* | 2010-11-30 | 2013-08-14 | 大连华锐重工集团股份有限公司 | U-shaped pipe smoke guiding vehicle-based cover uncovering device |
| CN102199432A (en)* | 2010-11-30 | 2011-09-28 | 大连华锐股份有限公司 | U-shaped pipe smoke guiding vehicle-based cover uncovering device |
| CN102275164A (en)* | 2011-07-14 | 2011-12-14 | 张家港长力机械有限公司 | Cover-capturing manipulator on a fume guiding car |
| CN102352261A (en)* | 2011-09-19 | 2012-02-15 | 济钢集团重工机械有限公司 | Smoke-guiding and dust-removing device for top-loading coke furnace coal-charging vehicle |
| CN102391883A (en)* | 2011-09-21 | 2012-03-28 | 大连华锐股份有限公司 | Tamping coal charging dust removal system and working method thereof |
| CN102641632A (en)* | 2012-04-12 | 2012-08-22 | 江苏精亚环境科技有限公司 | Three-dimensional suction arm movement mechanism of cellular dust collector |
| CN102641632B (en)* | 2012-04-12 | 2013-05-01 | 江苏精亚环境科技有限公司 | Three-dimensional suction arm movement mechanism of cellular dust collector |
| CN102660303A (en)* | 2012-05-08 | 2012-09-12 | 山东兖煤凯达环保机械有限公司 | Device for recovering gas without smoke dust discharge during coal charging and coke discharge of coke oven |
| CN104312596A (en)* | 2014-11-14 | 2015-01-28 | 大连华锐重工焦炉车辆设备有限公司 | Tamping coke oven U-shaped pipe smoke-guide trolley with mobile smoke guide pipe and application method of smoke-guide trolley |
| CN104673335B (en)* | 2015-02-16 | 2017-03-22 | 大连重矿设备制造有限公司 | Ladder regenerative mixed combustion chamber smoke elimination and energy-saving vehicle |
| CN104673335A (en)* | 2015-02-16 | 2015-06-03 | 大连重矿设备制造有限公司 | Ladder regenerative mixed combustion chamber smoke elimination and energy-saving vehicle |
| CN105219405A (en)* | 2015-11-04 | 2016-01-06 | 上海梅山工业民用工程设计研究院有限公司 | A kind of cover-taking off device for the cleaning of coke oven coal filling car bell |
| CN107231516A (en)* | 2017-07-27 | 2017-10-03 | 重庆万建电子工程有限责任公司重庆第分公司 | Band scrapes the dome-type camera of grey structure |
| CN109666487A (en)* | 2018-12-12 | 2019-04-23 | 北京中冶设备研究设计总院有限公司 | A kind of closing of coke oven and ventilating dust-arrester and method |
| CN109666487B (en)* | 2018-12-12 | 2020-10-09 | 北京中冶设备研究设计总院有限公司 | Coke oven sealing and ventilating dust removal device and method |
| CN111151089A (en)* | 2019-12-25 | 2020-05-15 | 太原重工股份有限公司 | Coke oven dust pelletizing system |
| CN111151089B (en)* | 2019-12-25 | 2022-03-29 | 太原重工股份有限公司 | Coke oven dust pelletizing system |
| CN112724988A (en)* | 2020-12-29 | 2021-04-30 | 黑龙江建龙化工有限公司 | New method for replacing riser bridge pipe |
| CN114214078A (en)* | 2022-01-12 | 2022-03-22 | 大连华锐重工焦炉车辆设备有限公司 | Dust and smoke removing vehicle with belt-mounted dust removing device |
| CN114214078B (en)* | 2022-01-12 | 2024-02-02 | 大连华锐重工焦炉车辆设备有限公司 | Dust-removing smoke-guiding vehicle with airborne dust-removing device |
| Publication number | Publication date |
|---|---|
| CN101602950B (en) | 2013-05-08 |
| Publication | Publication Date | Title |
|---|---|---|
| CN101602950A (en) | U-shaped pipe smoke guide and dust removal vehicle | |
| CN111491709B (en) | Bag collector ash removal device | |
| CN201166520Y (en) | Intermediate frequency furnace flue gas capture device | |
| CN108435701B (en) | Track cleaning device | |
| CN101735832B (en) | Coal-charging and coke-discharging three-in-one flue dust collecting and purifying method and device of coke oven | |
| CN101054609A (en) | Telescopic closing cover for mobile vehicle | |
| CN201442921U (en) | U-shaped pipe smoke guide and dust removal vehicle | |
| CN221002756U (en) | Equipment for quickly cleaning slurry of earth pressure balance shield machine | |
| CN112081618A (en) | Dust device for industrial and mining | |
| CN219510983U (en) | Ventilating duct with fireproof structure | |
| CN115123711B (en) | Full-underground garbage compression transfer station | |
| CN210394480U (en) | Intermediate frequency furnace smelting production line with dust removal function | |
| CN215888546U (en) | Railway tunnel sludge cleaning vehicle | |
| CN204923917U (en) | Portable dust collector in line frequency furnace stokehold | |
| CN201446116U (en) | Furnace top sweeping device for tamping type side-loading coal smoke guide vehicle | |
| CN109603335A (en) | One kind being used for industrial heavy duty detergent sack cleaner | |
| CN209669128U (en) | A kind of coke oven coaling smoke collecting device | |
| CN201470865U (en) | High-pressure water based sand core sand cleaning device | |
| CN204429797U (en) | A kind of steel-making hydro-steam ejector pump automatic flushing device | |
| CN220283423U (en) | Double-hydraulic motor haulage winch | |
| CN219950893U (en) | Heavy hammer valve sealing pipeline valve lump lifting device | |
| CN113417358A (en) | Railway tunnel sludge cleaning vehicle | |
| CN120557494B (en) | High-pressure pipeline endoscope robot of compressed air energy storage system | |
| CN220520432U (en) | Trailing dust collector of smoke guiding vehicle | |
| CN205635664U (en) | Blast furnace iron notch dust collector |
| Date | Code | Title | Description |
|---|---|---|---|
| C06 | Publication | ||
| PB01 | Publication | ||
| C10 | Entry into substantive examination | ||
| SE01 | Entry into force of request for substantive examination | ||
| C14 | Grant of patent or utility model | ||
| GR01 | Patent grant | ||
| PE01 | Entry into force of the registration of the contract for pledge of patent right | ||
| PE01 | Entry into force of the registration of the contract for pledge of patent right | Denomination of invention:U-shaped pipe smoke guide and dust removal vehicle Effective date of registration:20220329 Granted publication date:20130508 Pledgee:Industrial and Commercial Bank of China Limited Dalian high tech Park sub branch Pledgor:DALIAN ZHONGKUANG EQUIPMENT MANUFACTURING Co.,Ltd. Registration number:Y2022980003459 | |
| PC01 | Cancellation of the registration of the contract for pledge of patent right | ||
| PC01 | Cancellation of the registration of the contract for pledge of patent right | Date of cancellation:20230314 Granted publication date:20130508 Pledgee:Industrial and Commercial Bank of China Limited Dalian high tech Park sub branch Pledgor:DALIAN ZHONGKUANG EQUIPMENT MANUFACTURING Co.,Ltd. Registration number:Y2022980003459 | |
| PE01 | Entry into force of the registration of the contract for pledge of patent right | ||
| PE01 | Entry into force of the registration of the contract for pledge of patent right | Denomination of invention:U-shaped pipe smoke and dust removal vehicle Granted publication date:20130508 Pledgee:Industrial and Commercial Bank of China Limited Dalian high tech Park sub branch Pledgor:DALIAN ZHONGKUANG EQUIPMENT MANUFACTURING Co.,Ltd. Registration number:Y2024980025625 |